Property
Account |
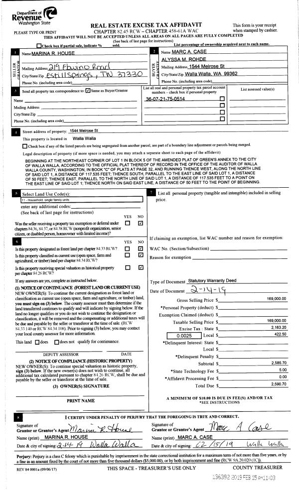
| Property ID: | 8645 | Abbreviated Legal Description: | GREENS ANNEX TAX 7B LOT 1 BLK 5 |
| Parcel Number: | 360721750514 | Agent Code: | |
| Type: | Real | | |
| Tax Area: | 1 - OL-140-F | Land Use Code | 11 |
| Open Space: | N | DFL | N |
| Historic Property: | N | Remodel Property: | N |
| Multi-Family Redevelopment: | N | | |
| Township: | 7 | Section: | 21 |
| Range: | 36 |
Location |
| Address: | 1544 MELROSE ST WA 99362 | Mapsco: | |
| Neighborhood: | A-SFR | Map ID: | |
| Neighborhood CD: | 513011 |
Owner |
| Name: | CONWAY SARAH MICHELLE & ROBERT KING JR | Owner ID: | 73315 |
| Mailing Address: | 1544 MELROSE ST WALLA WALLA, WA 99362 | % Ownership: | 100.0000000000% |
| | | Exemptions: | |
Taxes and Assessment Details
Property Tax Information as of
02/21/2026
Click on "Statement Details" to expand or collapse a tax statement.
* Please enter a valid date ** Please enter a valid date *
Statement Details |
| | TOTAL: | $0.00 | $0.00 | $0.00 | $0.00 | $0.00 | $0.00 |
|
| | $0.00 | $0.00 | $0.00 | $0.00 | $0.00 | $0.00 |
Values
| (+) Improvement Homesite Value: | + | $0 | |
| (+) Improvement Non-Homesite Value: | + | $238,980 | |
| (+) Land Homesite Value: | + | $0 | |
| (+) Land Non-Homesite Value: | + | $36,560 | |
| (+) Curr Use (HS): | + | $0 | $0 |
| (+) Curr Use (NHS): | + | $0 | $0 |
| | | -------------------------- | |
| (=) Market Value: | = | $275,540 | |
| (–) Productivity Loss: | – | $0 | |
| | | -------------------------- | |
| (=) Subtotal: | = | $275,540 | |
| (+) Senior Appraised Value: | + | $0 | |
| (+) Non-Senior Appraised Value: | + | $275,540 | |
| | | -------------------------- | |
| (=) Total Appraised Value: | = | $275,540 | |
| (–) Senior Exemption Loss: | – | $0 | |
| (–) Exemption Loss: | – | $0 | |
| | | -------------------------- | |
| (=) Taxable Value: | = | $275,540 | |
Taxing Jurisdiction
| Owner: | CONWAY SARAH MICHELLE & ROBERT KING JR | | |
| % Ownership: | 100.0000000000% | | |
| Total Value: | $275,540 | | |
| Tax Area: | 1 - OL-140-F |
| CERFD | CURRENT EXPENSE REFUND 010 | 0.0000000000 | $275,540 | $275,540 | $0.00 | | |
| CURREXP | CURRENT EXPENSE 010 | 1.0175366760 | $275,540 | $275,540 | $280.37 | | |
| HUMNSERV | HUMAN SERVICES 119 | 0.0250000000 | $275,540 | $275,540 | $6.89 | | |
| SLDREL | SOLDIERS RELIEF 121 | 0.0155990005 | $275,540 | $275,540 | $4.30 | | |
| EMERGSER | EMS 147 | 0.3792580840 | $275,540 | $275,540 | $104.50 | | |
| EMSRFD | EMS REFUND 147 | 0.0000000000 | $275,540 | $275,540 | $0.00 | | |
| PORTRFD | PORT REFUND 640 | 0.0000000000 | $275,540 | $275,540 | $0.00 | | |
| PORTWWGEN | PORT OF WW 640 | 0.2460186015 | $275,540 | $275,540 | $67.79 | | |
| SD140BOND | SD #140 BOND 764 | 0.8342371393 | $275,540 | $275,540 | $229.87 | | |
| SD140GEN | SD #140 GENERAL 760 | 2.0646500647 | $275,540 | $275,540 | $568.89 | | |
| ST2 | STATE SCHOOL PART 2 600 | 0.8131451643 | $275,540 | $275,540 | $224.05 | | |
| STATESCHL | STATE SCHOOL 600 | 1.5158548041 | $275,540 | $275,540 | $417.68 | | |
| STREFUND | STATE REFUND LEVY 603 | 0.0000000000 | $275,540 | $275,540 | $0.00 | | |
| CWWBOND | C OF WW BOND 643 | 0.2760494372 | $275,540 | $275,540 | $76.06 | | |
| CWWGEN | CITY OF WW 631 | 1.6100204973 | $275,540 | $275,540 | $443.63 | | |
| CWWRFD | CITY OF WALLA WALLA REFUND 631 | 0.0000000000 | $275,540 | $275,540 | $0.00 | | |
| | Total Tax Rate: | 8.7973694689 | | | | | |
| | | | | Taxes w/Current Exemptions: | $2,424.03 | | |
| | | | | Taxes w/o Exemptions: | $2,424.03 | | |
Improvement / Building
| Improvement #1: | RESIDENTIAL | State Code: | 11 | 846.0 sqft | Value: | $238,980 |
| Exterior Wall: | SIDING | Heating/Cooling: | HEAT PUMP | | Number of Bathrooms: | 2 | Number of Bedrooms: | 2 | | Plumbing: | 10 | Roof Covering: | COMP SHINGLE |
|
| | Type | Description | Class CD | Sub Class CD | Year Built | Area |
| | MA | Main Area | 1 | 30 | 1946 | 846.0 |
| | SI1 | SITE IMPROVEMENT | 1 | 30 | 0 | 1.0 |
| | BASE | BASEMENT | 1 | 30 | 1946 | 806.0 |
| | BPF | BASEMENT -PARTITIONED FINISH | 1 | 30 | 1946 | 614.0 |
| | DTG | Detached Garage | 1 | 30 | 1946 | 480.0 |
| | RPO | OPEN PORCH W/ROOF | 1 | 30 | 1946 | 18.0 |
Sketch
Property Image
Land
| 1 | RES 1 | Converted: Residential | 0.1343 | 5850.00 | 0.00 | 0.00 | 1.00 | $36,560 | $0 |
Roll Value History
| 2026 | N/A | N/A | N/A | N/A | N/A |
| 2025 | $213,010 | $58,500 | $0 | $271,510 | $271,510 |
| 2024 | $202,870 | $58,500 | $0 | $261,370 | $261,370 |
| 2023 | $238,980 | $36,560 | $0 | $275,540 | $275,540 |
| 2022 | $227,600 | $36,560 | $0 | $264,160 | $264,160 |
| 2021 | $162,570 | $36,560 | $0 | $199,130 | $199,130 |
| 2020 | $125,060 | $36,560 | $0 | $161,620 | $161,620 |
| 2019 | $125,060 | $36,560 | $0 | $161,620 | $161,620 |
| 2018 | $119,100 | $36,560 | $0 | $155,660 | $155,660 |
| 2017 | $126,720 | $23,400 | $0 | $150,120 | $150,120 |
| 2016 | $115,200 | $23,400 | $0 | $138,600 | $138,600 |
| 2015 | $109,710 | $23,400 | $0 | $133,110 | $133,110 |
| 2014 | $95,400 | $23,400 | $0 | $118,800 | $118,800 |
| 2013 | $95,400 | $23,400 | $0 | $118,800 | $118,800 |
| 2012 | $98,200 | $23,400 | $0 | $0 | $0 |
| 2011 | $77,900 | $23,400 | $0 | $0 | $0 |
| 2010 | $73,100 | $23,400 | $0 | $0 | $0 |
| 2009 | $83,800 | $23,400 | $0 | $0 | $0 |
| 2008 | $83,800 | $23,400 | $0 | $0 | $0 |
| 2007 | $83,800 | $23,400 | $0 | $0 | $0 |
Deed and Sales History
| 1 | 03/27/2023 | SWD | STATUTORY WARRANTY DEED | CASE MARC A | CONWAY SARAH MICHELLE & ROBERT KING JR | | | $275,000.00 | 145567 | 2023-01535 |
| 2 | 02/15/2019 | SWD | STATUTORY WARRANTY DEED | HOUSE MARINA R | CASE MARC A | | | $169,000.00 | 136392 | 2019-00990 |
| 3 | 12/14/2004 | WARRANTY D | WARRANTY DEED | ROEDER, MITCHELL A | HOUSE, MARINA R | | | $107,000.00 | 106400 | 2004-14358 |
| 4 | 09/22/1987 | WARRANTY D | WARRANTY DEED | | | | | $33,000.00 | 0 | 1668-707211 |
Payout Agreement
| No payout information available.. |