Property
Account |
| Property ID: | 8638 | Abbreviated Legal Description: | GREENS ANNEX TAX 3 LOT 3 BLK 4 |
| Parcel Number: | 360721750425 | Agent Code: | |
| Type: | Real | | |
| Tax Area: | 1 - OL-140-F | Land Use Code | 11 |
| Open Space: | N | DFL | N |
| Historic Property: | N | Remodel Property: | N |
| Multi-Family Redevelopment: | N | | |
| Township: | 7 | Section: | 21 |
| Range: | 36 |
Location |
| Address: | 1411 WALLA WALLA AVE WA 99362 | Mapsco: | |
| Neighborhood: | A-SFR | Map ID: | |
| Neighborhood CD: | 513011 |
Owner |
| Name: | FLIPPO CALEB & WHITNEY | Owner ID: | 65258 |
| Mailing Address: | 1411 WALLA WALLA AVE WALLA WALLA, WA 99362 | % Ownership: | 100.0000000000% |
| | | Exemptions: | |
Taxes and Assessment Details
Property Tax Information as of
02/21/2026
Click on "Statement Details" to expand or collapse a tax statement.
* Please enter a valid date ** Please enter a valid date *
Statement Details |
| | TOTAL: | $0.00 | $0.00 | $0.00 | $0.00 | $0.00 | $0.00 |
|
| | $0.00 | $0.00 | $0.00 | $0.00 | $0.00 | $0.00 |
Values
| (+) Improvement Homesite Value: | + | $0 | |
| (+) Improvement Non-Homesite Value: | + | $215,780 | |
| (+) Land Homesite Value: | + | $0 | |
| (+) Land Non-Homesite Value: | + | $48,100 | |
| (+) Curr Use (HS): | + | $0 | $0 |
| (+) Curr Use (NHS): | + | $0 | $0 |
| | | -------------------------- | |
| (=) Market Value: | = | $263,880 | |
| (–) Productivity Loss: | – | $0 | |
| | | -------------------------- | |
| (=) Subtotal: | = | $263,880 | |
| (+) Senior Appraised Value: | + | $0 | |
| (+) Non-Senior Appraised Value: | + | $263,880 | |
| | | -------------------------- | |
| (=) Total Appraised Value: | = | $263,880 | |
| (–) Senior Exemption Loss: | – | $0 | |
| (–) Exemption Loss: | – | $0 | |
| | | -------------------------- | |
| (=) Taxable Value: | = | $263,880 | |
Taxing Jurisdiction
| Owner: | FLIPPO CALEB & WHITNEY | | |
| % Ownership: | 100.0000000000% | | |
| Total Value: | $263,880 | | |
| Tax Area: | 1 - OL-140-F |
| CERFD | CURRENT EXPENSE REFUND 010 | 0.0000000000 | $263,880 | $263,880 | $0.00 | | |
| CURREXP | CURRENT EXPENSE 010 | 1.0175366760 | $263,880 | $263,880 | $268.51 | | |
| HUMNSERV | HUMAN SERVICES 119 | 0.0250000000 | $263,880 | $263,880 | $6.60 | | |
| SLDREL | SOLDIERS RELIEF 121 | 0.0155990005 | $263,880 | $263,880 | $4.12 | | |
| EMERGSER | EMS 147 | 0.3792580840 | $263,880 | $263,880 | $100.08 | | |
| EMSRFD | EMS REFUND 147 | 0.0000000000 | $263,880 | $263,880 | $0.00 | | |
| PORTRFD | PORT REFUND 640 | 0.0000000000 | $263,880 | $263,880 | $0.00 | | |
| PORTWWGEN | PORT OF WW 640 | 0.2460186015 | $263,880 | $263,880 | $64.92 | | |
| SD140BOND | SD #140 BOND 764 | 0.8342371393 | $263,880 | $263,880 | $220.14 | | |
| SD140GEN | SD #140 GENERAL 760 | 2.0646500647 | $263,880 | $263,880 | $544.82 | | |
| ST2 | STATE SCHOOL PART 2 600 | 0.8131451643 | $263,880 | $263,880 | $214.57 | | |
| STATESCHL | STATE SCHOOL 600 | 1.5158548041 | $263,880 | $263,880 | $400.00 | | |
| STREFUND | STATE REFUND LEVY 603 | 0.0000000000 | $263,880 | $263,880 | $0.00 | | |
| CWWBOND | C OF WW BOND 643 | 0.2760494372 | $263,880 | $263,880 | $72.84 | | |
| CWWGEN | CITY OF WW 631 | 1.6100204973 | $263,880 | $263,880 | $424.85 | | |
| CWWRFD | CITY OF WALLA WALLA REFUND 631 | 0.0000000000 | $263,880 | $263,880 | $0.00 | | |
| | Total Tax Rate: | 8.7973694689 | | | | | |
| | | | | Taxes w/Current Exemptions: | $2,321.45 | | |
| | | | | Taxes w/o Exemptions: | $2,321.45 | | |
Improvement / Building
| Improvement #1: | RESIDENTIAL | State Code: | 11 | 1092.0 sqft | Value: | $215,780 |
| Exterior Wall: | METAL/STEEL | Heating/Cooling: | WARM & COOLED AIR | | Number of Bathrooms: | 1 | Number of Bedrooms: | 2 | | Plumbing: | 6 | Roof Covering: | COMP SHINGLE |
|
| | Type | Description | Class CD | Sub Class CD | Year Built | Area |
| | MA | Main Area | 1 | 30 | 1910 | 1092.0 |
| | SI1 | SITE IMPROVEMENT | 1 | 30 | 1910 | 1.0 |
| | BASE | BASEMENT | 1 | 30 | 1910 | 1092.0 |
| | BPF | BASEMENT -PARTITIONED FINISH | 1 | 30 | 2022 | 1092.0 |
| | DTG | Detached Garage | 1 | 30 | 1910 | 352.0 |
| | WOD | Wood Deck | 1 | 30 | 1910 | 104.0 |
| | CPC | COVERED CARPORT/PATIO | 1 | 30 | 1910 | 198.0 |
Sketch
Property Image
Land
| 1 | RES 1 | Converted: Residential | 0.1767 | 7696.00 | 0.00 | 0.00 | 1.00 | $48,100 | $0 |
Roll Value History
| 2026 | N/A | N/A | N/A | N/A | N/A |
| 2025 | $236,170 | $76,960 | $0 | $313,130 | $313,130 |
| 2024 | $236,170 | $76,960 | $0 | $313,130 | $313,130 |
| 2023 | $215,780 | $48,100 | $0 | $263,880 | $263,880 |
| 2022 | $215,780 | $48,100 | $0 | $263,880 | $263,880 |
| 2021 | $172,620 | $48,100 | $0 | $220,720 | $220,720 |
| 2020 | $115,080 | $48,100 | $0 | $163,180 | $163,180 |
| 2019 | $115,080 | $48,100 | $0 | $163,180 | $163,180 |
| 2018 | $109,600 | $48,100 | $0 | $157,700 | $157,700 |
| 2017 | $103,920 | $30,800 | $0 | $134,720 | $134,720 |
| 2016 | $98,980 | $30,800 | $0 | $129,780 | $129,780 |
| 2015 | $98,980 | $30,800 | $0 | $129,780 | $129,780 |
| 2014 | $92,500 | $30,800 | $0 | $123,300 | $123,300 |
| 2013 | $92,500 | $30,800 | $0 | $123,300 | $123,300 |
| 2012 | $92,500 | $30,800 | $0 | $0 | $0 |
| 2011 | $92,500 | $30,800 | $0 | $0 | $0 |
| 2010 | $86,600 | $30,800 | $0 | $0 | $0 |
| 2009 | $99,600 | $30,800 | $0 | $0 | $0 |
| 2008 | $99,600 | $30,800 | $0 | $0 | $0 |
| 2007 | $99,600 | $30,800 | $0 | $0 | $0 |
Deed and Sales History
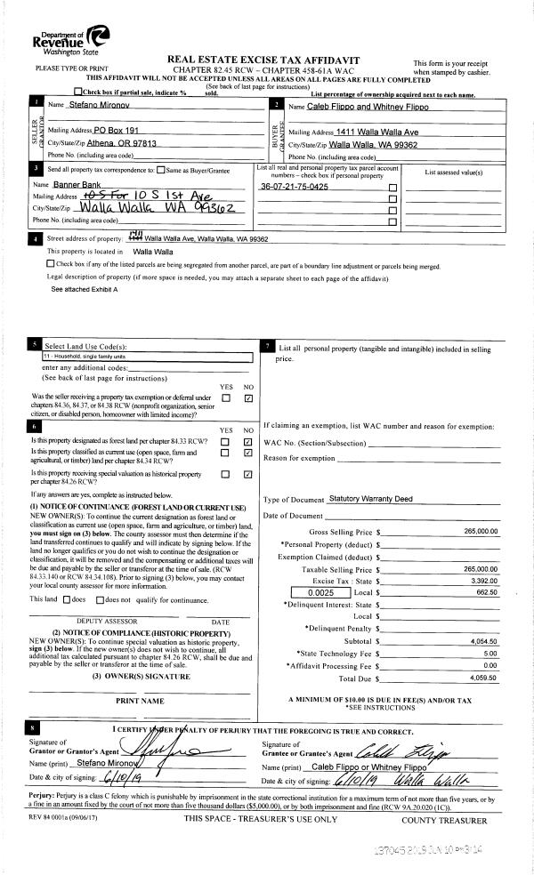
| 1 | 06/10/2019 | SWD | STATUTORY WARRANTY DEED | MIRONOV STEFANO | FLIPPO CALEB & WHITNEY | | | $265,000.00 | 137045 | 2019-04005 |
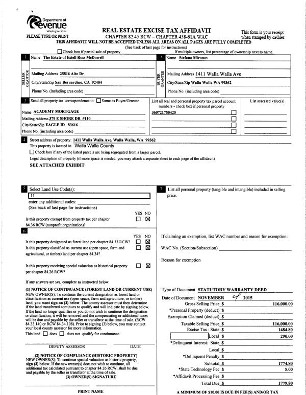
| 2 | 11/05/2015 | SWD | STATUTORY WARRANTY DEED | MC DOWELL ESTELL ESTATE OF | MIRONOV STEFANO | | | $116,000.00 | 129144 | 2015-09680 |
| 3 | 01/11/2012 | QCD | QUIT CLAIM DEED | MC DOWELL, LOUISE B ESTATE | MC DOWELL, ESTELL | | | | 121266 | 2012-00338 |
| 4 | 04/11/1990 | QCD | QUIT CLAIM DEED | | | | | $0.00 | 0 | 1829-002387 |
Payout Agreement
| No payout information available.. |