Property
Account |
| Property ID: | 8636 | Abbreviated Legal Description: | GREENS ANNEX TAX 20 LOT 1 BLK 4 LESS TAX 22 |
| Parcel Number: | 360721750422 | Agent Code: | |
| Type: | Real | | |
| Tax Area: | 1 - OL-140-F | Land Use Code | 11 |
| Open Space: | N | DFL | N |
| Historic Property: | N | Remodel Property: | N |
| Multi-Family Redevelopment: | N | | |
| Township: | 7 | Section: | 21 |
| Range: | 36 |
Location |
| Address: | 1634 MELROSE ST WA 99362 | Mapsco: | |
| Neighborhood: | A-SFR | Map ID: | |
| Neighborhood CD: | 513011 |
Owner |
| Name: | FARBER ERIC & TRACYLYNN S | Owner ID: | 72350 |
| Mailing Address: | 1634 MELROSE ST WALLA WALLA, WA 99362 | % Ownership: | 100.0000000000% |
| | | Exemptions: | |
Taxes and Assessment Details
Values
| (+) Improvement Homesite Value: | + | $0 | |
| (+) Improvement Non-Homesite Value: | + | $237,400 | |
| (+) Land Homesite Value: | + | $0 | |
| (+) Land Non-Homesite Value: | + | $48,100 | |
| (+) Curr Use (HS): | + | $0 | $0 |
| (+) Curr Use (NHS): | + | $0 | $0 |
| | | -------------------------- | |
| (=) Market Value: | = | $285,500 | |
| (–) Productivity Loss: | – | $0 | |
| | | -------------------------- | |
| (=) Subtotal: | = | $285,500 | |
| (+) Senior Appraised Value: | + | $0 | |
| (+) Non-Senior Appraised Value: | + | $285,500 | |
| | | -------------------------- | |
| (=) Total Appraised Value: | = | $285,500 | |
| (–) Senior Exemption Loss: | – | $0 | |
| (–) Exemption Loss: | – | $0 | |
| | | -------------------------- | |
| (=) Taxable Value: | = | $285,500 | |
Taxing Jurisdiction
| Owner: | FARBER ERIC & TRACYLYNN S | | |
| % Ownership: | 100.0000000000% | | |
| Total Value: | $285,500 | | |
| Tax Area: | 1 - OL-140-F |
| CERFD | CURRENT EXPENSE REFUND 010 | 0.0000000000 | $285,500 | $285,500 | $0.00 | | |
| CURREXP | CURRENT EXPENSE 010 | 1.0175366760 | $285,500 | $285,500 | $290.51 | | |
| HUMNSERV | HUMAN SERVICES 119 | 0.0250000000 | $285,500 | $285,500 | $7.14 | | |
| SLDREL | SOLDIERS RELIEF 121 | 0.0155990005 | $285,500 | $285,500 | $4.45 | | |
| EMERGSER | EMS 147 | 0.3792580840 | $285,500 | $285,500 | $108.28 | | |
| EMSRFD | EMS REFUND 147 | 0.0000000000 | $285,500 | $285,500 | $0.00 | | |
| PORTRFD | PORT REFUND 640 | 0.0000000000 | $285,500 | $285,500 | $0.00 | | |
| PORTWWGEN | PORT OF WW 640 | 0.2460186015 | $285,500 | $285,500 | $70.24 | | |
| SD140BOND | SD #140 BOND 764 | 0.8342371393 | $285,500 | $285,500 | $238.17 | | |
| SD140GEN | SD #140 GENERAL 760 | 2.0646500647 | $285,500 | $285,500 | $589.46 | | |
| ST2 | STATE SCHOOL PART 2 600 | 0.8131451643 | $285,500 | $285,500 | $232.15 | | |
| STATESCHL | STATE SCHOOL 600 | 1.5158548041 | $285,500 | $285,500 | $432.78 | | |
| STREFUND | STATE REFUND LEVY 603 | 0.0000000000 | $285,500 | $285,500 | $0.00 | | |
| CWWBOND | C OF WW BOND 643 | 0.2760494372 | $285,500 | $285,500 | $78.81 | | |
| CWWGEN | CITY OF WW 631 | 1.6100204973 | $285,500 | $285,500 | $459.66 | | |
| CWWRFD | CITY OF WALLA WALLA REFUND 631 | 0.0000000000 | $285,500 | $285,500 | $0.00 | | |
| | Total Tax Rate: | 8.7973694689 | | | | | |
| | | | | Taxes w/Current Exemptions: | $2,511.65 | | |
| | | | | Taxes w/o Exemptions: | $2,511.65 | | |
Improvement / Building
| Improvement #1: | RESIDENTIAL | State Code: | 11 | 1056.0 sqft | Value: | $237,400 |
| Exterior Wall: | PLYWOOD | Heating/Cooling: | WARM & COOLED AIR | | Number of Bathrooms: | 1 | Number of Bedrooms: | 3 | | Plumbing: | 6 | Roof Covering: | COMP SHINGLE |
|
| | Type | Description | Class CD | Sub Class CD | Year Built | Area |
| | MA | Main Area | 1 | 30 | 1978 | 1056.0 |
| | SI1 | SITE IMPROVEMENT | 1 | 30 | 1978 | 1.5 |
| | ATG | Attached Garage | 1 | 30 | 1978 | 264.0 |
| | OPS | OPEN PORCH W/STEPS | 1 | 30 | 1978 | 18.0 |
| | UTST | Utility Storage Shed | 1 | 30 | 1978 | 64.0 |
Sketch
Property Image
Land
| 1 | RES 1 | Converted: Residential | 0.1767 | 7696.00 | 0.00 | 0.00 | 1.00 | $48,100 | $0 |
Roll Value History
| 2026 | N/A | N/A | N/A | N/A | N/A |
| 2025 | $230,520 | $76,960 | $0 | $307,480 | $307,480 |
| 2024 | $219,540 | $76,960 | $0 | $296,500 | $296,500 |
| 2023 | $237,400 | $48,100 | $0 | $285,500 | $285,500 |
| 2022 | $226,090 | $48,100 | $0 | $274,190 | $274,190 |
| 2021 | $150,730 | $48,100 | $0 | $198,830 | $198,830 |
| 2020 | $111,650 | $48,100 | $0 | $159,750 | $159,750 |
| 2019 | $111,650 | $48,100 | $0 | $159,750 | $159,750 |
| 2018 | $101,500 | $48,100 | $0 | $149,600 | $149,600 |
| 2017 | $110,360 | $30,800 | $0 | $141,160 | $141,160 |
| 2016 | $105,110 | $30,800 | $0 | $135,910 | $135,910 |
| 2015 | $100,100 | $30,800 | $0 | $130,900 | $130,900 |
| 2014 | $100,100 | $30,800 | $0 | $130,900 | $130,900 |
| 2013 | $100,100 | $30,800 | $0 | $130,900 | $130,900 |
| 2012 | $112,100 | $30,800 | $0 | $0 | $0 |
| 2011 | $112,100 | $30,800 | $0 | $0 | $0 |
| 2010 | $105,300 | $30,800 | $0 | $0 | $0 |
| 2009 | $120,400 | $30,800 | $0 | $0 | $0 |
| 2008 | $85,500 | $30,800 | $0 | $0 | $0 |
| 2007 | $85,500 | $30,800 | $0 | $0 | $0 |
Deed and Sales History
| 1 | 09/02/2022 | SWD | STATUTORY WARRANTY DEED | CUMMINGS SAM & MIKAELA | FARBER ERIC & TRACYLYNN S | | | $300,000.00 | 144627 | 2022-07399 |
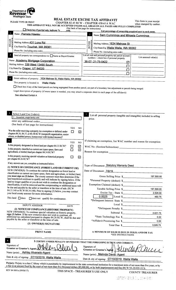
| 2 | 07/10/2019 | SWD | STATUTORY WARRANTY DEED | HAWLEY PAMELA | CUMMINGS SAM & MIKAELA | | | $197,500.00 | 137254 | 2019-04930 |
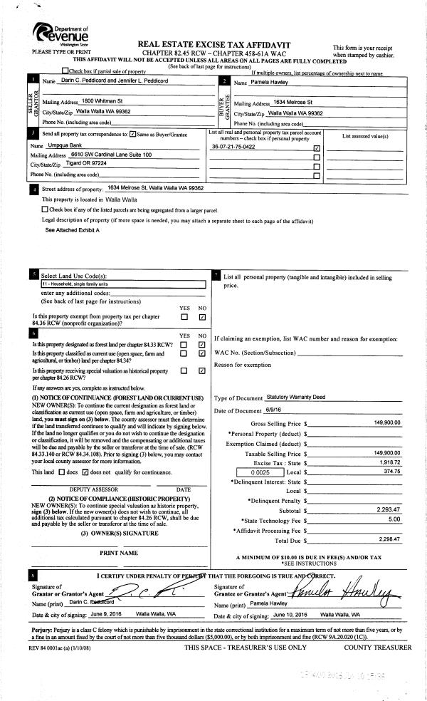
| 3 | 06/10/2016 | SWD | STATUTORY WARRANTY DEED | PEDDICORD DARIN C & JENNIFER L | HAWLEY PAMELA | | | $149,900.00 | 130400 | 2016-04406 |
| 4 | 12/30/2003 | WARRANTY D | WARRANTY DEED | COUNTRYWIDE HOME LOANS INC | PEDDICORD, DARIN C & JENNIFER | | | $68,000.00 | 103822 | 2003-19542 |
| 5 | 09/22/2003 | WARRANTY D | WARRANTY DEED | PEDROZA, JOSE & JESSICA | SECRETARY OF HOUSING & URBAN~D | | | $76,419.00 | 103054 | 2003-14365 |
| 6 | 07/23/2003 | WARRANTY D | WARRANTY DEED | SECRETARY OF HOUSING & URBAN D | COUNTRYWIDE HOME LOANS INC | | | $76,419.00 | 102623 | 2003-10916 |
| 7 | 08/24/1999 | WARRANTY D | WARRANTY DEED | | | | | $73,500.00 | 93456 | 2889-909888 |
Payout Agreement
| No payout information available.. |