Property
Account |
| Property ID: | 8627 | Abbreviated Legal Description: | GREENS ANNEX TAX 22 LOT 1 BLK 3 |
| Parcel Number: | 360721750321 | Agent Code: | |
| Type: | Real | | |
| Tax Area: | 1 - OL-140-F | Land Use Code | 11 |
| Open Space: | N | DFL | N |
| Historic Property: | N | Remodel Property: | N |
| Multi-Family Redevelopment: | N | | |
| Township: | 7 | Section: | 21 |
| Range: | 36 |
Location |
| Address: | 1726 MELROSE ST WA 99362 | Mapsco: | |
| Neighborhood: | A-SFR | Map ID: | |
| Neighborhood CD: | 513011 |
Owner |
| Name: | SEBO RYAN MICHAEL | Owner ID: | 73173 |
| Mailing Address: | MICHAEL JOHN SEBO 1726 MELROSE ST WALLA WALLA, WA 99362 | % Ownership: | 100.0000000000% |
| | | Exemptions: | |
Taxes and Assessment Details
Property Tax Information as of
02/21/2026
Click on "Statement Details" to expand or collapse a tax statement.
* Please enter a valid date ** Please enter a valid date *
Statement Details |
| | TOTAL: | $0.00 | $0.00 | $0.00 | $0.00 | $0.00 | $0.00 |
|
| | $0.00 | $0.00 | $0.00 | $0.00 | $0.00 | $0.00 |
Values
| (+) Improvement Homesite Value: | + | $0 | |
| (+) Improvement Non-Homesite Value: | + | $201,690 | |
| (+) Land Homesite Value: | + | $0 | |
| (+) Land Non-Homesite Value: | + | $57,280 | |
| (+) Curr Use (HS): | + | $0 | $0 |
| (+) Curr Use (NHS): | + | $0 | $0 |
| | | -------------------------- | |
| (=) Market Value: | = | $258,970 | |
| (–) Productivity Loss: | – | $0 | |
| | | -------------------------- | |
| (=) Subtotal: | = | $258,970 | |
| (+) Senior Appraised Value: | + | $0 | |
| (+) Non-Senior Appraised Value: | + | $258,970 | |
| | | -------------------------- | |
| (=) Total Appraised Value: | = | $258,970 | |
| (–) Senior Exemption Loss: | – | $0 | |
| (–) Exemption Loss: | – | $0 | |
| | | -------------------------- | |
| (=) Taxable Value: | = | $258,970 | |
Taxing Jurisdiction
| Owner: | SEBO RYAN MICHAEL | | |
| % Ownership: | 100.0000000000% | | |
| Total Value: | $258,970 | | |
| Tax Area: | 1 - OL-140-F |
| CERFD | CURRENT EXPENSE REFUND 010 | 0.0000000000 | $258,970 | $258,970 | $0.00 | | |
| CURREXP | CURRENT EXPENSE 010 | 1.0175366760 | $258,970 | $258,970 | $263.51 | | |
| HUMNSERV | HUMAN SERVICES 119 | 0.0250000000 | $258,970 | $258,970 | $6.47 | | |
| SLDREL | SOLDIERS RELIEF 121 | 0.0155990005 | $258,970 | $258,970 | $4.04 | | |
| EMERGSER | EMS 147 | 0.3792580840 | $258,970 | $258,970 | $98.22 | | |
| EMSRFD | EMS REFUND 147 | 0.0000000000 | $258,970 | $258,970 | $0.00 | | |
| PORTRFD | PORT REFUND 640 | 0.0000000000 | $258,970 | $258,970 | $0.00 | | |
| PORTWWGEN | PORT OF WW 640 | 0.2460186015 | $258,970 | $258,970 | $63.71 | | |
| SD140BOND | SD #140 BOND 764 | 0.8342371393 | $258,970 | $258,970 | $216.04 | | |
| SD140GEN | SD #140 GENERAL 760 | 2.0646500647 | $258,970 | $258,970 | $534.68 | | |
| ST2 | STATE SCHOOL PART 2 600 | 0.8131451643 | $258,970 | $258,970 | $210.58 | | |
| STATESCHL | STATE SCHOOL 600 | 1.5158548041 | $258,970 | $258,970 | $392.56 | | |
| STREFUND | STATE REFUND LEVY 603 | 0.0000000000 | $258,970 | $258,970 | $0.00 | | |
| CWWBOND | C OF WW BOND 643 | 0.2760494372 | $258,970 | $258,970 | $71.49 | | |
| CWWGEN | CITY OF WW 631 | 1.6100204973 | $258,970 | $258,970 | $416.95 | | |
| CWWRFD | CITY OF WALLA WALLA REFUND 631 | 0.0000000000 | $258,970 | $258,970 | $0.00 | | |
| | Total Tax Rate: | 8.7973694689 | | | | | |
| | | | | Taxes w/Current Exemptions: | $2,278.25 | | |
| | | | | Taxes w/o Exemptions: | $2,278.25 | | |
Improvement / Building
| Improvement #1: | RESIDENTIAL | State Code: | 11 | 1015.0 sqft | Value: | $201,690 |
| Exterior Wall: | CONCRETE BLOCK | Foundation: | SLAB FOUNDATION | | Heating/Cooling: | WARM & COOLED AIR | Number of Bathrooms: | 1 | | Number of Bedrooms: | 3 | Plumbing: | 6 | | Roof Covering: | COMP SHINGLE |   |   |
|
| | Type | Description | Class CD | Sub Class CD | Year Built | Area |
| | MA | Main Area | 1 | 30 | 1951 | 1015.0 |
| | SI1 | SITE IMPROVEMENT | 1 | 30 | 1951 | 1.5 |
| | DTG | Detached Garage | 1 | 30 | 1951 | 260.0 |
| | RPO | OPEN PORCH W/ROOF | 1 | 30 | 1951 | 84.0 |
| | UTST | Utility Storage Shed | 1 | 30 | 1951 | 91.0 |
Sketch
Property Image
Land
| 1 | RES 1 | Converted: Residential | 0.2104 | 9164.00 | 0.00 | 0.00 | 1.00 | $57,280 | $0 |
Roll Value History
| 2026 | N/A | N/A | N/A | N/A | N/A |
| 2025 | $171,630 | $91,640 | $0 | $263,270 | $263,270 |
| 2024 | $156,030 | $91,640 | $0 | $247,670 | $247,670 |
| 2023 | $201,690 | $57,280 | $0 | $258,970 | $258,970 |
| 2022 | $201,690 | $57,280 | $0 | $258,970 | $258,970 |
| 2021 | $134,460 | $57,280 | $0 | $191,740 | $191,740 |
| 2020 | $99,600 | $57,280 | $0 | $156,880 | $156,880 |
| 2019 | $99,600 | $57,280 | $0 | $156,880 | $156,880 |
| 2018 | $99,600 | $57,280 | $0 | $156,880 | $156,880 |
| 2017 | $103,610 | $36,700 | $0 | $140,310 | $140,310 |
| 2016 | $98,670 | $36,700 | $0 | $135,370 | $135,370 |
| 2015 | $93,980 | $36,700 | $0 | $130,680 | $130,680 |
| 2014 | $89,500 | $36,700 | $0 | $126,200 | $126,200 |
| 2013 | $89,500 | $36,700 | $0 | $126,200 | $126,200 |
| 2012 | $94,000 | $36,700 | $0 | $0 | $0 |
| 2011 | $94,000 | $36,700 | $0 | $0 | $0 |
| 2010 | $87,800 | $36,700 | $0 | $0 | $0 |
| 2009 | $101,600 | $36,700 | $0 | $0 | $0 |
| 2008 | $69,700 | $36,700 | $0 | $0 | $0 |
| 2007 | $69,700 | $36,700 | $0 | $0 | $0 |
Deed and Sales History
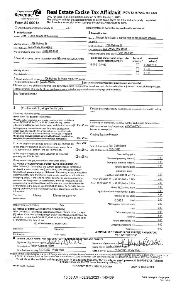
| 1 | 02/28/2023 | QCD | QUIT CLAIM DEED | SEBO LINDA R | SEBO MICHAEL JOHN | | | | 145439 | 2023-00987 |
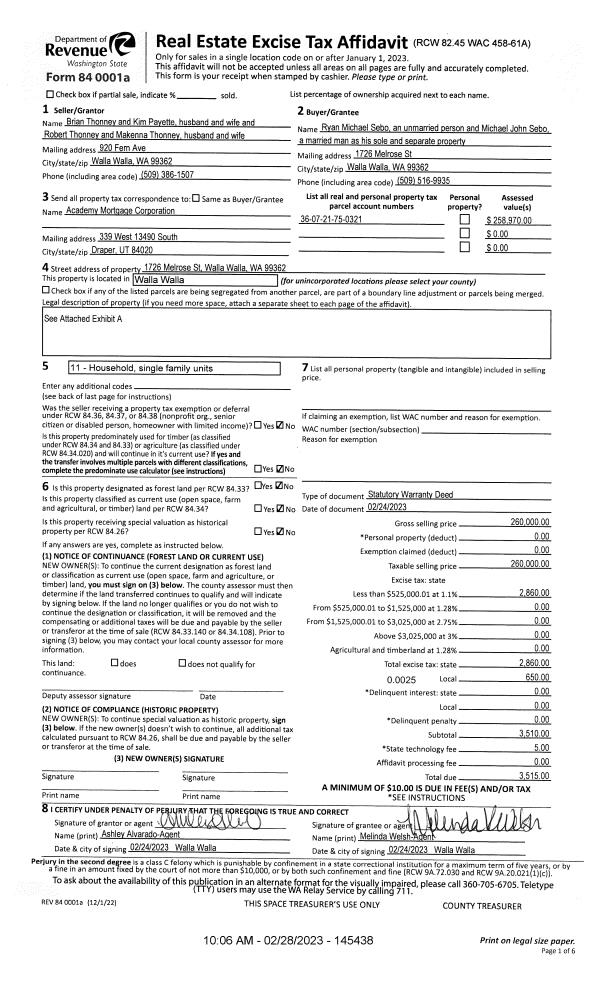
| 2 | 02/28/2023 | SWD | STATUTORY WARRANTY DEED | THONNEY BRIAN & KIM PAYETTE | SEBO RYAN MICHAEL | | | $260,000.00 | 145438 | 2023-00986 |
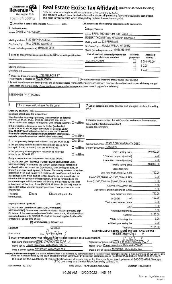
| 3 | 12/20/2022 | SWD | STATUTORY WARRANTY DEED | NICHOLSON DAWN M | THONNEY BRIAN & KIM PAYETTE | | | $160,000.00 | 145158 | 2022-09790 |
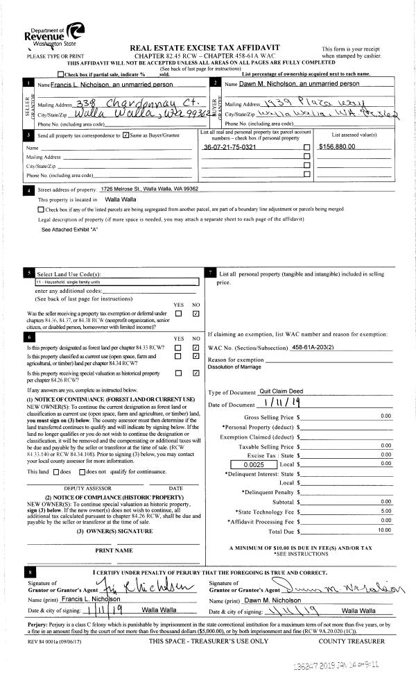
| 4 | 01/11/2019 | QCD | QUIT CLAIM DEED | NICHOLSON FRANCIS L | NICHOLSON DAWN M | | | $0.00 | 136247 | 2019-00262 |
| 5 | 05/07/2003 | QCD | QUIT CLAIM DEED | BUSS, DAWN M | NICHOLSON, FRANCIS L | | | | 102021 | 2003-06649 |
| 6 | 03/21/1997 | WARRANTY D | WARRANTY DEED | | | | | $72,000.00 | 87846 | 2509-702421 |
Payout Agreement
| No payout information available.. |