Property
Account |
| Property ID: | 8617 | Abbreviated Legal Description: | GREENS ANNEX TAX 8 LOT 2 BLK 2 |
| Parcel Number: | 360721750219 | Agent Code: | |
| Type: | Real | | |
| Tax Area: | 1 - OL-140-F | Land Use Code | 11 |
| Open Space: | N | DFL | N |
| Historic Property: | N | Remodel Property: | N |
| Multi-Family Redevelopment: | N | | |
| Township: | 7 | Section: | 21 |
| Range: | 36 |
Location |
| Address: | 1820 MELROSE ST WA 99362 | Mapsco: | |
| Neighborhood: | A-SFR | Map ID: | |
| Neighborhood CD: | 513011 |
Owner |
| Name: | SMITH BOBBY J & VENUS A | Owner ID: | 3165 |
| Mailing Address: | 1820 MELROSE ST WALLA WALLA, WA 99362 | % Ownership: | 100.0000000000% |
| | | Exemptions: | |
Taxes and Assessment Details
Property Tax Information as of
02/21/2026
Click on "Statement Details" to expand or collapse a tax statement.
* Please enter a valid date ** Please enter a valid date *
Statement Details |
| | TOTAL: | $0.00 | $0.00 | $0.00 | $0.00 | $0.00 | $0.00 |
|
| | $0.00 | $0.00 | $0.00 | $0.00 | $0.00 | $0.00 |
Values
| (+) Improvement Homesite Value: | + | $0 | |
| (+) Improvement Non-Homesite Value: | + | $179,850 | |
| (+) Land Homesite Value: | + | $0 | |
| (+) Land Non-Homesite Value: | + | $59,250 | |
| (+) Curr Use (HS): | + | $0 | $0 |
| (+) Curr Use (NHS): | + | $0 | $0 |
| | | -------------------------- | |
| (=) Market Value: | = | $239,100 | |
| (–) Productivity Loss: | – | $0 | |
| | | -------------------------- | |
| (=) Subtotal: | = | $239,100 | |
| (+) Senior Appraised Value: | + | $0 | |
| (+) Non-Senior Appraised Value: | + | $239,100 | |
| | | -------------------------- | |
| (=) Total Appraised Value: | = | $239,100 | |
| (–) Senior Exemption Loss: | – | $0 | |
| (–) Exemption Loss: | – | $0 | |
| | | -------------------------- | |
| (=) Taxable Value: | = | $239,100 | |
Taxing Jurisdiction
| Owner: | SMITH BOBBY J & VENUS A | | |
| % Ownership: | 100.0000000000% | | |
| Total Value: | $239,100 | | |
| Tax Area: | 1 - OL-140-F |
| CERFD | CURRENT EXPENSE REFUND 010 | 0.0000000000 | $239,100 | $239,100 | $0.00 | | |
| CURREXP | CURRENT EXPENSE 010 | 1.0175366760 | $239,100 | $239,100 | $243.29 | | |
| HUMNSERV | HUMAN SERVICES 119 | 0.0250000000 | $239,100 | $239,100 | $5.98 | | |
| SLDREL | SOLDIERS RELIEF 121 | 0.0155990005 | $239,100 | $239,100 | $3.73 | | |
| EMERGSER | EMS 147 | 0.3792580840 | $239,100 | $239,100 | $90.68 | | |
| EMSRFD | EMS REFUND 147 | 0.0000000000 | $239,100 | $239,100 | $0.00 | | |
| PORTRFD | PORT REFUND 640 | 0.0000000000 | $239,100 | $239,100 | $0.00 | | |
| PORTWWGEN | PORT OF WW 640 | 0.2460186015 | $239,100 | $239,100 | $58.82 | | |
| SD140BOND | SD #140 BOND 764 | 0.8342371393 | $239,100 | $239,100 | $199.47 | | |
| SD140GEN | SD #140 GENERAL 760 | 2.0646500647 | $239,100 | $239,100 | $493.66 | | |
| ST2 | STATE SCHOOL PART 2 600 | 0.8131451643 | $239,100 | $239,100 | $194.42 | | |
| STATESCHL | STATE SCHOOL 600 | 1.5158548041 | $239,100 | $239,100 | $362.44 | | |
| STREFUND | STATE REFUND LEVY 603 | 0.0000000000 | $239,100 | $239,100 | $0.00 | | |
| CWWBOND | C OF WW BOND 643 | 0.2760494372 | $239,100 | $239,100 | $66.00 | | |
| CWWGEN | CITY OF WW 631 | 1.6100204973 | $239,100 | $239,100 | $384.96 | | |
| CWWRFD | CITY OF WALLA WALLA REFUND 631 | 0.0000000000 | $239,100 | $239,100 | $0.00 | | |
| | Total Tax Rate: | 8.7973694689 | | | | | |
| | | | | Taxes w/Current Exemptions: | $2,103.45 | | |
| | | | | Taxes w/o Exemptions: | $2,103.45 | | |
Improvement / Building
| Improvement #1: | RESIDENTIAL | State Code: | 11 | 812.0 sqft | Value: | $179,850 |
| Exterior Wall: | SIDING | Heating/Cooling: | HEAT PUMP | | Number of Bathrooms: | 2 | Number of Bedrooms: | 2 | | Plumbing: | 9 | Roof Covering: | COMP SHINGLE |
|
| | Type | Description | Class CD | Sub Class CD | Year Built | Area |
| | MA | Main Area | 1 | 25 | 1947 | 812.0 |
| | SI1 | SITE IMPROVEMENT | 1 | 25 | 1947 | 1.0 |
| | BASE | BASEMENT | 1 | 25 | 1947 | 812.0 |
| | BPF | BASEMENT -PARTITIONED FINISH | 1 | 25 | 1947 | 812.0 |
| | RPS | PORCH W/STEPS,ROOF | 1 | 25 | 1947 | 20.0 |
| | RPO | OPEN PORCH W/ROOF | 1 | 25 | 1947 | 54.0 |
| | DTG | Detached Garage | 1 | 25 | 1947 | 240.0 |
Sketch
Property Image
Land
| 1 | RES 1 | Converted: Residential | 0.2176 | 9480.00 | 0.00 | 0.00 | 1.00 | $59,250 | $0 |
Roll Value History
| 2026 | N/A | N/A | N/A | N/A | N/A |
| 2025 | $197,000 | $94,800 | $0 | $291,800 | $291,800 |
| 2024 | $151,540 | $94,800 | $0 | $246,340 | $246,340 |
| 2023 | $179,850 | $59,250 | $0 | $239,100 | $239,100 |
| 2022 | $179,850 | $59,250 | $0 | $239,100 | $239,100 |
| 2021 | $138,350 | $59,250 | $0 | $197,600 | $197,600 |
| 2020 | $115,290 | $59,250 | $0 | $174,540 | $174,540 |
| 2019 | $115,290 | $59,250 | $0 | $174,540 | $174,540 |
| 2018 | $109,800 | $59,250 | $0 | $169,050 | $169,050 |
| 2017 | $125,980 | $37,900 | $0 | $163,880 | $163,880 |
| 2016 | $83,790 | $37,900 | $0 | $121,690 | $121,690 |
| 2015 | $83,790 | $37,900 | $0 | $121,690 | $121,690 |
| 2014 | $79,800 | $37,900 | $0 | $117,700 | $117,700 |
| 2013 | $79,800 | $37,900 | $0 | $117,700 | $117,700 |
| 2012 | $88,400 | $37,900 | $0 | $0 | $0 |
| 2011 | $88,400 | $37,900 | $0 | $0 | $0 |
| 2010 | $88,400 | $37,900 | $0 | $0 | $0 |
| 2009 | $102,400 | $37,900 | $0 | $0 | $0 |
| 2008 | $70,000 | $37,900 | $0 | $0 | $0 |
| 2007 | $70,000 | $37,900 | $0 | $0 | $0 |
Deed and Sales History
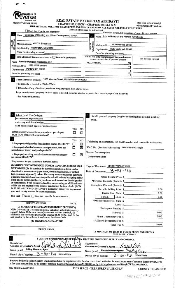
| 1 | 09/19/2016 | SWD | STATUTORY WARRANTY DEED | WHITCHURCH JOHN & NICHOLE | SMITH BOBBY J & VENUS A | | | $172,000.00 | 131052 | 2016-07603 |
| 2 | 03/16/2016 | SWP | Special Warranty Deed | SECRETARY OF HOUSING & URBAN DEV | WHITCHURCH JOHN & NICHOLE | | | $0.00 | 129842 | 2016-01991 |
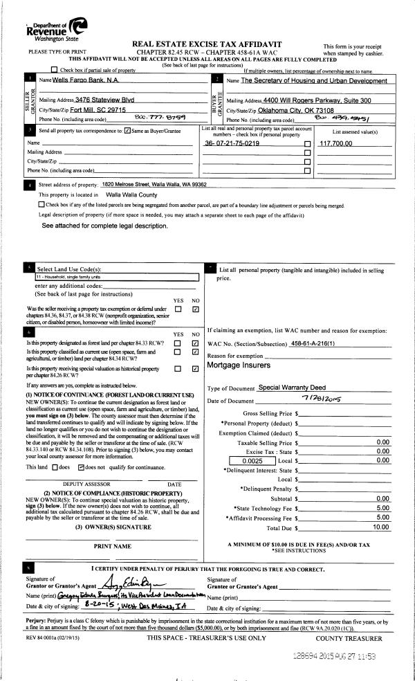
| 3 | 07/28/2015 | SWD | STATUTORY WARRANTY DEED | WELLS FARGO BANK NA CUSTOMER SERVICE | SECRETARY OF HOUSING & URBAN DEV | | | | 128694 | 2015-07510 |
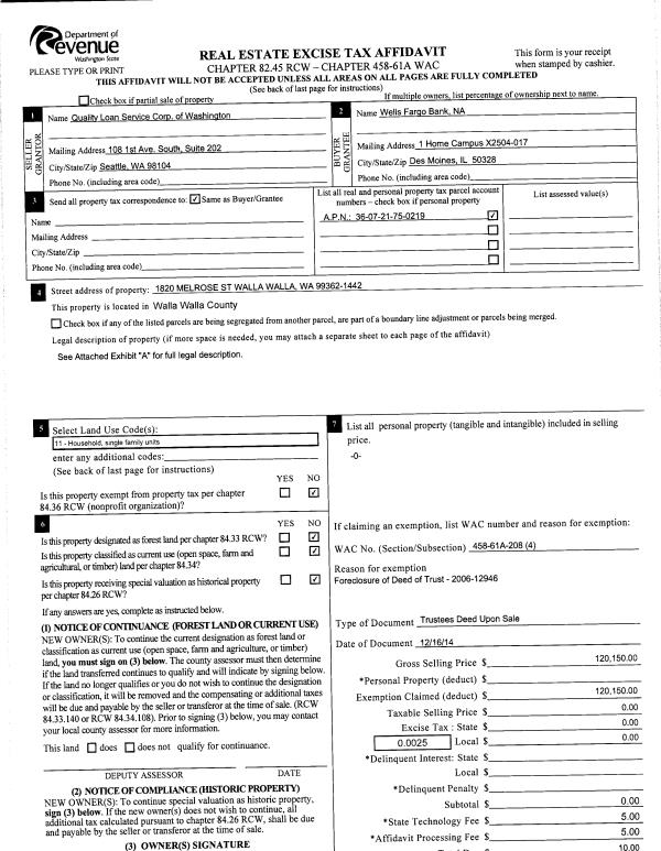
| 4 | 12/22/2014 | TRUSTEES D | TRUSTEE'S DEED | ALVARADO JUAN C DIAZ | WELLS FARGO BANK NA CUSTOMER SERVICE | | | $120,150.00 | 127160 | 2014-09285 |
| 5 | 10/24/2006 | WARRANTY D | WARRANTY DEED | MEADE, WILLIAM A & SUSAN | ALVARADO, JUAN C DIAZ | | | $140,000.00 | 111544 | 2006-12945 |
| 6 | 09/23/1994 | WARRANTY D | WARRANTY DEED | | | | | $65,000.00 | 82642 | 2239-411090 |
Payout Agreement
| No payout information available.. |