Property
Account |
| Property ID: | 8605 | Abbreviated Legal Description: | GREENS ANNEX LOT 6 BLK 1 LESS W 70' |
| Parcel Number: | 360721750106 | Agent Code: | |
| Type: | Real | | |
| Tax Area: | 1 - OL-140-F | Land Use Code | 64 |
| Open Space: | N | DFL | N |
| Historic Property: | N | Remodel Property: | N |
| Multi-Family Redevelopment: | N | | |
| Township: | 7 | Section: | 21 |
| Range: | 36 |
Location |
| Address: | 1761 WALLA WALLA AVE WA 99362 | Mapsco: | |
| Neighborhood: | WW Downtown Core area #3 | Map ID: | |
| Neighborhood CD: | 5343 |
Owner |
| Name: | KNOBEL CAROL A | Owner ID: | 67201 |
| Mailing Address: | 5442 MILL CREEK RD WALLA WALLA, WA 99362 | % Ownership: | 100.0000000000% |
| | | Exemptions: | |
Taxes and Assessment Details
Property Tax Information as of
02/21/2026
Click on "Statement Details" to expand or collapse a tax statement.
* Please enter a valid date ** Please enter a valid date *
Statement Details |
| | TOTAL: | $0.00 | $0.00 | $0.00 | $0.00 | $0.00 | $0.00 |
|
| | $0.00 | $0.00 | $0.00 | $0.00 | $0.00 | $0.00 |
Values
| (+) Improvement Homesite Value: | + | $0 | |
| (+) Improvement Non-Homesite Value: | + | $54,200 | |
| (+) Land Homesite Value: | + | $0 | |
| (+) Land Non-Homesite Value: | + | $205,500 | |
| (+) Curr Use (HS): | + | $0 | $0 |
| (+) Curr Use (NHS): | + | $0 | $0 |
| | | -------------------------- | |
| (=) Market Value: | = | $259,700 | |
| (–) Productivity Loss: | – | $0 | |
| | | -------------------------- | |
| (=) Subtotal: | = | $259,700 | |
| (+) Senior Appraised Value: | + | $0 | |
| (+) Non-Senior Appraised Value: | + | $259,700 | |
| | | -------------------------- | |
| (=) Total Appraised Value: | = | $259,700 | |
| (–) Senior Exemption Loss: | – | $0 | |
| (–) Exemption Loss: | – | $0 | |
| | | -------------------------- | |
| (=) Taxable Value: | = | $259,700 | |
Taxing Jurisdiction
| Owner: | KNOBEL CAROL A | | |
| % Ownership: | 100.0000000000% | | |
| Total Value: | $259,700 | | |
| Tax Area: | 1 - OL-140-F |
| CERFD | CURRENT EXPENSE REFUND 010 | 0.0000000000 | $259,700 | $259,700 | $0.00 | | |
| CURREXP | CURRENT EXPENSE 010 | 1.0175366760 | $259,700 | $259,700 | $264.25 | | |
| HUMNSERV | HUMAN SERVICES 119 | 0.0250000000 | $259,700 | $259,700 | $6.49 | | |
| SLDREL | SOLDIERS RELIEF 121 | 0.0155990005 | $259,700 | $259,700 | $4.05 | | |
| EMERGSER | EMS 147 | 0.3792580840 | $259,700 | $259,700 | $98.49 | | |
| EMSRFD | EMS REFUND 147 | 0.0000000000 | $259,700 | $259,700 | $0.00 | | |
| PORTRFD | PORT REFUND 640 | 0.0000000000 | $259,700 | $259,700 | $0.00 | | |
| PORTWWGEN | PORT OF WW 640 | 0.2460186015 | $259,700 | $259,700 | $63.89 | | |
| SD140BOND | SD #140 BOND 764 | 0.8342371393 | $259,700 | $259,700 | $216.65 | | |
| SD140GEN | SD #140 GENERAL 760 | 2.0646500647 | $259,700 | $259,700 | $536.19 | | |
| ST2 | STATE SCHOOL PART 2 600 | 0.8131451643 | $259,700 | $259,700 | $211.17 | | |
| STATESCHL | STATE SCHOOL 600 | 1.5158548041 | $259,700 | $259,700 | $393.67 | | |
| STREFUND | STATE REFUND LEVY 603 | 0.0000000000 | $259,700 | $259,700 | $0.00 | | |
| CWWBOND | C OF WW BOND 643 | 0.2760494372 | $259,700 | $259,700 | $71.69 | | |
| CWWGEN | CITY OF WW 631 | 1.6100204973 | $259,700 | $259,700 | $418.12 | | |
| CWWRFD | CITY OF WALLA WALLA REFUND 631 | 0.0000000000 | $259,700 | $259,700 | $0.00 | | |
| | Total Tax Rate: | 8.7973694689 | | | | | |
| | | | | Taxes w/Current Exemptions: | $2,284.66 | | |
| | | | | Taxes w/o Exemptions: | $2,284.66 | | |
Improvement / Building
| Improvement #1: | COMMERCIAL | State Code: | 64 | 7484.0 sqft | Value: | $54,200 |
| | Type | Description | Class CD | Sub Class CD | Year Built | Area |
| | MA | Main Area | D | * | 1943 | 7484.0 |
| | POL3 | POLE BUILDING-CON,ELEC,INSU | D | * | 1943 | 1440.0 |
| | CPC | COVERED CARPORT/PATIO | D | * | 1943 | 1920.0 |
| | SI1 | SITE IMPROVEMENT | D | * | 1943 | 3.0 |
Sketch
Property Image
Land
| 1 | COM 1 | Converted: Commercial | 0.8189 | 35670.00 | 0.00 | 0.00 | 1.00 | $205,500 | $0 |
Roll Value History
| 2026 | N/A | N/A | N/A | N/A | N/A |
| 2025 | $53,200 | $249,700 | $0 | $302,900 | $302,900 |
| 2024 | $53,400 | $214,000 | $0 | $267,400 | $267,400 |
| 2023 | $54,200 | $205,500 | $0 | $259,700 | $259,700 |
| 2022 | $54,200 | $205,500 | $0 | $259,700 | $259,700 |
| 2021 | $54,200 | $205,500 | $0 | $259,700 | $259,700 |
| 2020 | $54,200 | $205,500 | $0 | $259,700 | $259,700 |
| 2019 | $54,200 | $205,500 | $0 | $259,700 | $259,700 |
| 2018 | $54,200 | $205,500 | $0 | $259,700 | $259,700 |
| 2017 | $54,200 | $205,300 | $0 | $259,500 | $259,500 |
| 2016 | $54,200 | $205,300 | $0 | $259,500 | $259,500 |
| 2015 | $54,200 | $205,300 | $0 | $259,500 | $259,500 |
| 2014 | $54,200 | $205,300 | $0 | $259,500 | $259,500 |
| 2013 | $54,200 | $205,300 | $0 | $259,500 | $259,500 |
| 2012 | $59,000 | $142,700 | $0 | $0 | $0 |
| 2011 | $59,000 | $142,700 | $0 | $0 | $0 |
| 2010 | $43,300 | $142,700 | $0 | $0 | $0 |
| 2009 | $43,300 | $142,700 | $0 | $0 | $0 |
| 2008 | $43,300 | $142,700 | $0 | $0 | $0 |
| 2007 | $43,300 | $142,700 | $0 | $0 | $0 |
Deed and Sales History
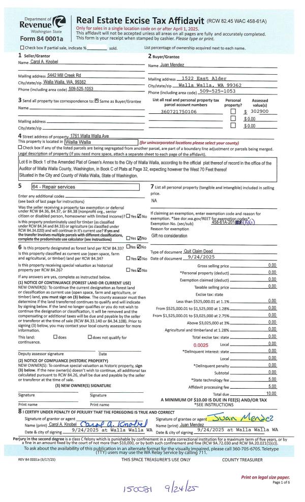
| 1 | 09/24/2025 | QCD | QUIT CLAIM DEED | KNOBEL CAROL A | MENDEZ JUAN | | | | 150081 | 2025-05812 |
| 2 | 05/22/2020 | COMMUNITY | COMMUNITY PROPERTY AGREEMENT | KNOBEL JOHN EDWARD | KNOBEL CAROL A | | | $0.00 | 139145 | 2020-04501 |
| 3 | 12/22/2014 | QCD | QUIT CLAIM DEED | KNOBEL JOHN E | KNOBEL JOHN EDWARD | | | $0.00 | 127164 | 2014-09299 |
| 4 | 12/19/2014 | SWP | Special Warranty Deed | KNOBEL JOHN E | | | | | 127145 | 2014-09273 |
| 5 | 01/01/1950 | WARRANTY D | WARRANTY DEED | | | | | $0.00 | 0 | 5900-36643 |
Payout Agreement
| No payout information available.. |