Property
Account |
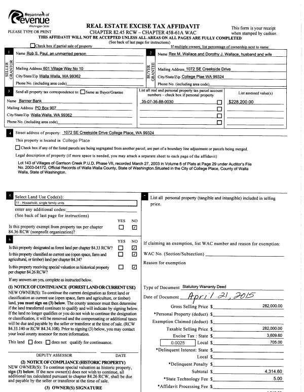
| Property ID: | 8599 | Abbreviated Legal Description: | VILLAGES OF GARRISON CREEK P.U.D. PHASE VII LOT 143 |
| Parcel Number: | 350736880030 | Agent Code: | |
| Type: | Real | | |
| Tax Area: | 77 - CP-250-F | Land Use Code | 11 |
| Open Space: | N | DFL | N |
| Historic Property: | N | Remodel Property: | N |
| Multi-Family Redevelopment: | N | | |
| Township: | 7 | Section: | 36 |
| Range: | 35 |
Location |
| Address: | 1072 SE CREEKSIDE DR WA 99324 | Mapsco: | |
| Neighborhood: | G SFR | Map ID: | |
| Neighborhood CD: | 114011 |
Owner |
| Name: | WALLACE REX M & DOROTHY J | Owner ID: | 56478 |
| Mailing Address: | 1072 SE CREEKSIDE DR COLLEGE PLACE, WA 99324 | % Ownership: | 100.0000000000% |
| | | Exemptions: | |
Taxes and Assessment Details
Property Tax Information as of
02/21/2026
Click on "Statement Details" to expand or collapse a tax statement.
* Please enter a valid date ** Please enter a valid date *
Statement Details |
| | TOTAL: | $0.00 | $0.00 | $0.00 | $0.00 | $0.00 | $0.00 |
|
| | $0.00 | $0.00 | $0.00 | $0.00 | $0.00 | $0.00 |
Values
| (+) Improvement Homesite Value: | + | $0 | |
| (+) Improvement Non-Homesite Value: | + | $377,760 | |
| (+) Land Homesite Value: | + | $0 | |
| (+) Land Non-Homesite Value: | + | $75,000 | |
| (+) Curr Use (HS): | + | $0 | $0 |
| (+) Curr Use (NHS): | + | $0 | $0 |
| | | -------------------------- | |
| (=) Market Value: | = | $452,760 | |
| (–) Productivity Loss: | – | $0 | |
| | | -------------------------- | |
| (=) Subtotal: | = | $452,760 | |
| (+) Senior Appraised Value: | + | $0 | |
| (+) Non-Senior Appraised Value: | + | $452,760 | |
| | | -------------------------- | |
| (=) Total Appraised Value: | = | $452,760 | |
| (–) Senior Exemption Loss: | – | $0 | |
| (–) Exemption Loss: | – | $0 | |
| | | -------------------------- | |
| (=) Taxable Value: | = | $452,760 | |
Taxing Jurisdiction
| Owner: | WALLACE REX M & DOROTHY J | | |
| % Ownership: | 100.0000000000% | | |
| Total Value: | $452,760 | | |
| Tax Area: | 77 - CP-250-F |
| CERFD | CURRENT EXPENSE REFUND 010 | 0.0000000000 | $452,760 | $452,760 | $0.00 | | |
| CURREXP | CURRENT EXPENSE 010 | 1.0175366760 | $452,760 | $452,760 | $460.70 | | |
| HUMNSERV | HUMAN SERVICES 119 | 0.0250000000 | $452,760 | $452,760 | $11.32 | | |
| SLDREL | SOLDIERS RELIEF 121 | 0.0155990005 | $452,760 | $452,760 | $7.06 | | |
| COLLPLBOND | C OF CP BOND 644 | 0.4374241808 | $452,760 | $452,760 | $198.05 | | |
| COLLPLGEN | CITY OF CP 632 | 1.4453819216 | $452,760 | $452,760 | $654.41 | | |
| EMERGSER | EMS 147 | 0.3792580840 | $452,760 | $452,760 | $171.71 | | |
| EMSRFD | EMS REFUND 147 | 0.0000000000 | $452,760 | $452,760 | $0.00 | | |
| RURALLIB | RURAL LIBRARY 623 | 0.3710609029 | $452,760 | $452,760 | $168.00 | | |
| PORTRFD | PORT REFUND 640 | 0.0000000000 | $452,760 | $452,760 | $0.00 | | |
| PORTWWGEN | PORT OF WW 640 | 0.2460186015 | $452,760 | $452,760 | $111.39 | | |
| SD250BOND | SD #250 BOND 773 | 1.4560608159 | $452,760 | $452,760 | $659.25 | | |
| SD250GEN | SD #250 GENERAL 770 | 2.3880724087 | $452,760 | $452,760 | $1,081.22 | | |
| ST2 | STATE SCHOOL PART 2 600 | 0.8131451643 | $452,760 | $452,760 | $368.16 | | |
| STATESCHL | STATE SCHOOL 600 | 1.5158548041 | $452,760 | $452,760 | $686.32 | | |
| STREFUND | STATE REFUND LEVY 603 | 0.0000000000 | $452,760 | $452,760 | $0.00 | | |
| | Total Tax Rate: | 10.1104125603 | | | | | |
| | | | | Taxes w/Current Exemptions: | $4,577.59 | | |
| | | | | Taxes w/o Exemptions: | $4,577.59 | | |
Improvement / Building
| Improvement #1: | RESIDENTIAL | State Code: | 11 | 1757.0 sqft | Value: | $377,760 |
| Exterior Wall: | PLYWOOD | Heating/Cooling: | WARM & COOLED AIR | | Number of Bathrooms: | 2 | Number of Bedrooms: | 3 | | Plumbing: | 11 | Roof Covering: | COMP SHINGLE |
|
| | Type | Description | Class CD | Sub Class CD | Year Built | Area |
| | MA | Main Area | 1 | 45 | 2004 | 1757.0 |
| | SI1 | SITE IMPROVEMENT | 1 | 45 | 2004 | 3.0 |
| | ATG | Attached Garage | 1 | 45 | 2004 | 556.0 |
| | RPC | OPEN PORCH W/ROOF , CEILED | 1 | 45 | 2004 | 128.0 |
| | RPC | OPEN PORCH W/ROOF , CEILED | 1 | 45 | 2004 | 68.0 |
| | GFP | GAS FIREPLACE | 1 | 45 | 2004 | 1.0 |
Sketch
Property Image
Land
| 1 | RES 1 | Converted: Residential | 0.1584 | 6899.00 | 0.00 | 0.00 | 1.00 | $75,000 | $0 |
Roll Value History
| 2026 | N/A | N/A | N/A | N/A | N/A |
| 2025 | $369,270 | $135,000 | $0 | $504,270 | $504,270 |
| 2024 | $434,430 | $75,000 | $0 | $509,430 | $509,430 |
| 2023 | $377,760 | $75,000 | $0 | $452,760 | $452,760 |
| 2022 | $359,780 | $75,000 | $0 | $434,780 | $434,780 |
| 2021 | $287,820 | $75,000 | $0 | $362,820 | $362,820 |
| 2020 | $239,850 | $75,000 | $0 | $314,850 | $314,850 |
| 2019 | $249,850 | $65,000 | $0 | $314,850 | $314,850 |
| 2018 | $217,260 | $65,000 | $0 | $282,260 | $282,260 |
| 2017 | $206,920 | $65,000 | $0 | $271,920 | $271,920 |
| 2016 | $197,060 | $65,000 | $0 | $262,060 | $262,060 |
| 2015 | $187,680 | $65,000 | $0 | $252,680 | $252,680 |
| 2014 | $163,200 | $65,000 | $0 | $228,200 | $228,200 |
| 2013 | $163,200 | $65,000 | $0 | $228,200 | $228,200 |
| 2012 | $200,300 | $65,000 | $0 | $0 | $0 |
| 2011 | $195,100 | $65,000 | $0 | $0 | $0 |
| 2010 | $195,100 | $65,000 | $0 | $0 | $0 |
| 2009 | $208,800 | $65,000 | $0 | $0 | $0 |
| 2008 | $199,800 | $35,000 | $0 | $0 | $0 |
| 2007 | $199,800 | $35,000 | $0 | $0 | $0 |
Deed and Sales History
| 1 | 07/11/2024 | DEATH CERT | DEATH CERTIFICATE | WALLACE REX M & DOROTHY J | WALLACE DOROTHY J | | | | 147843 | 2024-03738 |
| 2 | 04/21/2015 | SWD | STATUTORY WARRANTY DEED | PAUL ROB S | WALLACE REX M & DOROTHY J | | | $282,000.00 | 127811 | 2015-03194 |
| 3 | 03/12/2015 | QCD | QUIT CLAIM DEED | PAUL ROB S | PAUL ROB S | | | $0.00 | 127582 | 2015-02127 |
| 4 | 10/03/2007 | QCD | QUIT CLAIM DEED | PAUL, ROB S | PAUL, ROB S | | | | 113814 | 2007-11538 |
| 5 | 10/27/2006 | QCD | QUIT CLAIM DEED | HOLM, RICHARD KEITH | PAUL, ROB S | | | | 111540 | 2006-12928 |
| 6 | 01/10/2006 | QCD | QUIT CLAIM DEED | PAUL, ROB S | PAUL, ROB S | | | | 109446 | 2006-00353 |
| 7 | 10/19/2004 | WARRANTY D | WARRANTY DEED | PHASE FIVE DEVELOPMENT LLC | PAUL, ROB S | | | $239,900.00 | 106011 | 2004-12120 |
Payout Agreement
| No payout information available.. |