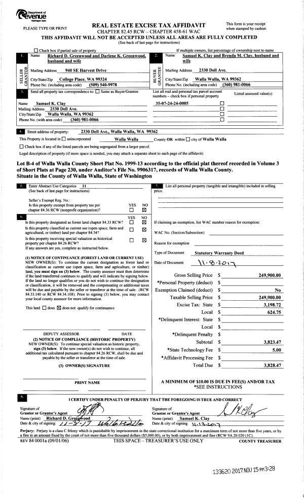
Property
Account |
| Property ID: | 8571 | Abbreviated Legal Description: | 35 07 24 PARCEL B-4 OF SHORT PLAT (PTN WITHIN SE4NW4) |
| Parcel Number: | 350724240005 | Agent Code: | |
| Type: | Real | | |
| Tax Area: | 101 - 140-4 | Land Use Code | 11 |
| Open Space: | N | DFL | N |
| Historic Property: | N | Remodel Property: | N |
| Multi-Family Redevelopment: | N | | |
| Township: | 7 | Section: | 24 |
| Range: | 35 |
Location |
| Address: | 2330 DELL AVE WA 99362 | Mapsco: | |
| Neighborhood: | MH A Rural/City Infl | Map ID: | |
| Neighborhood CD: | 313062 |
Owner |
| Name: | CLAY SAMUEL K & BRENDA M | Owner ID: | 62114 |
| Mailing Address: | 2330 DELL AVE WALLA WALLA, WA 99362 | % Ownership: | 100.0000000000% |
| | | Exemptions: | |
Taxes and Assessment Details
Property Tax Information as of
02/21/2026
Click on "Statement Details" to expand or collapse a tax statement.
* Please enter a valid date ** Please enter a valid date *
Statement Details |
| | TOTAL: | $0.00 | $0.00 | $0.00 | $0.00 | $0.00 | $0.00 |
|
| | $0.00 | $0.00 | $0.00 | $0.00 | $0.00 | $0.00 |
Values
| (+) Improvement Homesite Value: | + | $0 | |
| (+) Improvement Non-Homesite Value: | + | $160,280 | |
| (+) Land Homesite Value: | + | $0 | |
| (+) Land Non-Homesite Value: | + | $135,100 | |
| (+) Curr Use (HS): | + | $0 | $0 |
| (+) Curr Use (NHS): | + | $0 | $0 |
| | | -------------------------- | |
| (=) Market Value: | = | $295,380 | |
| (–) Productivity Loss: | – | $0 | |
| | | -------------------------- | |
| (=) Subtotal: | = | $295,380 | |
| (+) Senior Appraised Value: | + | $0 | |
| (+) Non-Senior Appraised Value: | + | $295,380 | |
| | | -------------------------- | |
| (=) Total Appraised Value: | = | $295,380 | |
| (–) Senior Exemption Loss: | – | $0 | |
| (–) Exemption Loss: | – | $0 | |
| | | -------------------------- | |
| (=) Taxable Value: | = | $295,380 | |
Taxing Jurisdiction
| Owner: | CLAY SAMUEL K & BRENDA M | | |
| % Ownership: | 100.0000000000% | | |
| Total Value: | $295,380 | | |
| Tax Area: | 101 - 140-4 |
| CERFD | CURRENT EXPENSE REFUND 010 | 0.0000000000 | $295,380 | $295,380 | $0.00 | | |
| CURREXP | CURRENT EXPENSE 010 | 1.0175366760 | $295,380 | $295,380 | $300.56 | | |
| HUMNSERV | HUMAN SERVICES 119 | 0.0250000000 | $295,380 | $295,380 | $7.38 | | |
| SLDREL | SOLDIERS RELIEF 121 | 0.0155990005 | $295,380 | $295,380 | $4.61 | | |
| EMERGSER | EMS 147 | 0.3792580840 | $295,380 | $295,380 | $112.03 | | |
| EMSRFD | EMS REFUND 147 | 0.0000000000 | $295,380 | $295,380 | $0.00 | | |
| FD4EXP | FD #4 EXPENSE 686 | 0.8836993059 | $295,380 | $295,380 | $261.03 | | |
| RLBRFD | RURAL LIBRARY REFUND 623 | 0.0000000000 | $295,380 | $295,380 | $0.00 | | |
| RURALLIB | RURAL LIBRARY 623 | 0.3710609029 | $295,380 | $295,380 | $109.60 | | |
| PORTRFD | PORT REFUND 640 | 0.0000000000 | $295,380 | $295,380 | $0.00 | | |
| PORTWWGEN | PORT OF WW 640 | 0.2460186015 | $295,380 | $295,380 | $72.67 | | |
| SD140BOND | SD #140 BOND 764 | 0.8342371393 | $295,380 | $295,380 | $246.42 | | |
| SD140GEN | SD #140 GENERAL 760 | 2.0646500647 | $295,380 | $295,380 | $609.86 | | |
| ST2 | STATE SCHOOL PART 2 600 | 0.8131451643 | $295,380 | $295,380 | $240.19 | | |
| STATESCHL | STATE SCHOOL 600 | 1.5158548041 | $295,380 | $295,380 | $447.75 | | |
| STREFUND | STATE REFUND LEVY 603 | 0.0000000000 | $295,380 | $295,380 | $0.00 | | |
| COROAD | COUNTY ROAD 115 | 1.6549953990 | $295,380 | $295,380 | $488.85 | | |
| CRPRD | COUNTY ROAD REFUND 115 | 0.0000000000 | $295,380 | $295,380 | $0.00 | | |
| | Total Tax Rate: | 9.8210551422 | | | | | |
| | | | | Taxes w/Current Exemptions: | $2,900.95 | | |
| | | | | Taxes w/o Exemptions: | $2,900.95 | | |
Improvement / Building
| Improvement #1: | MANUFACTURED HOME | State Code: | 11 | 938.0 sqft | Value: | $160,280 |
| Exterior Wall: | PLYWOOD | Heating/Cooling: | HEAT PUMP | | Number of Bathrooms: | 2 | Number of Bedrooms: | 2 | | Plumbing: | 10 | Roof Covering: | COMP SHINGLE |
|
| | Type | Description | Class CD | Sub Class CD | Year Built | Area |
| | MOBHOME | MANUFACTURD HOMES | 1 | 30 | 1993 | 938.0 |
| | MI1 | MH SET-UP COSTS | 1 | 30 | 0 | 1.0 |
| | POL2 | POLE BUILDING-CONCRETE | 1 | 30 | 2005 | 1152.0 |
| | SMP | SWIMMING POOL | 1 | 30 | 2005 | 1.0 |
| | CPC | COVERED CARPORT/PATIO | 1 | 30 | 1993 | 216.0 |
| | POL3 | POLE BUILDING-CON,ELEC,INSU | 1 | 30 | 1993 | 768.0 |
| | GIF | GARAGE INTERIOR FINISH | 1 | 30 | 1993 | 768.0 |
| | FBAT | FULL BATH | 1 | 30 | 1993 | 1.0 |
| | FIXT | AVERAGE FIXTURE | 1 | 30 | 1993 | 1.0 |
| | POLE | POLE UTILITY BUILDING | 1 | 30 | 1993 | 288.0 |
Sketch
Property Image
Land
| 1 | RES 1 | Converted: Residential | 1.9300 | 0.00 | 0.00 | 0.00 | 1.00 | $135,100 | $0 |
Roll Value History
| 2026 | N/A | N/A | N/A | N/A | N/A |
| 2025 | $224,400 | $135,100 | $0 | $359,500 | $359,500 |
| 2024 | $224,400 | $135,100 | $0 | $359,500 | $359,500 |
| 2023 | $160,280 | $135,100 | $0 | $295,380 | $295,380 |
| 2022 | $133,570 | $135,100 | $0 | $268,670 | $268,670 |
| 2021 | $147,040 | $82,400 | $0 | $229,440 | $229,440 |
| 2020 | $133,670 | $82,400 | $0 | $216,070 | $216,070 |
| 2019 | $133,670 | $82,400 | $0 | $216,070 | $216,070 |
| 2018 | $111,390 | $82,400 | $0 | $193,790 | $193,790 |
| 2017 | $69,620 | $82,400 | $0 | $152,020 | $152,020 |
| 2016 | $69,620 | $82,400 | $0 | $152,020 | $152,020 |
| 2015 | $42,800 | $82,400 | $0 | $125,200 | $125,200 |
| 2014 | $42,800 | $82,400 | $0 | $125,200 | $125,200 |
| 2013 | $42,800 | $82,400 | $0 | $125,200 | $125,200 |
| 2012 | $71,500 | $53,700 | $0 | $0 | $0 |
| 2011 | $71,500 | $53,700 | $0 | $0 | $0 |
| 2010 | $77,400 | $53,700 | $0 | $0 | $0 |
| 2009 | $126,100 | $48,700 | $0 | $0 | $0 |
| 2008 | $80,800 | $48,700 | $0 | $0 | $0 |
| 2007 | $80,800 | $48,700 | $0 | $0 | $0 |
Deed and Sales History
| 1 | 11/15/2017 | SWD | STATUTORY WARRANTY DEED | GREENWOOD RICHARD & DARLENE | CLAY SAMUEL K & BRENDA M | | | $249,900.00 | 133620 | 2017-09213 |
| 2 | 04/01/2004 | WARRANTY D | WARRANTY DEED | GILMORE, STEVEN J SR | GREENWOOD, RICHARD & DARLENE | | | $99,500.00 | 104402 | 2004-03413 |
| 3 | 10/10/2002 | WARRANTY D | WARRANTY DEED | GIBSON, MICKEY & DARLENE | GILMORE, STEVEN J SR | | | $47,000.00 | 100560 | 2002-11448 |
| 4 | 08/02/1999 | WARRANTY D | WARRANTY DEED | | | | | $32,000.00 | 93302 | 2879-909036 |
Payout Agreement
| No payout information available.. |