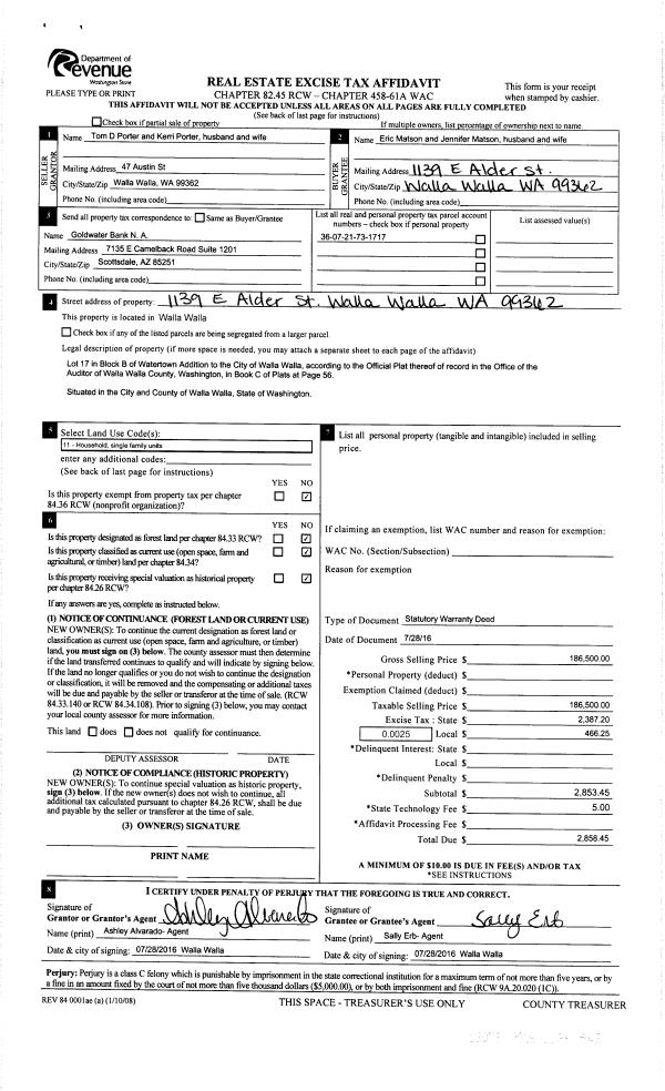
Property
Account |
| Property ID: | 8529 | Abbreviated Legal Description: | WATERTOWN LOT 17 BLK 17 (B) |
| Parcel Number: | 360721731717 | Agent Code: | |
| Type: | Real | | |
| Tax Area: | 1 - OL-140-F | Land Use Code | 11 |
| Open Space: | N | DFL | N |
| Historic Property: | N | Remodel Property: | N |
| Multi-Family Redevelopment: | N | | |
| Township: | 7 | Section: | 21 |
| Range: | 36 |
Location |
| Address: | 1139 E ALDER ST WA 99362 | Mapsco: | |
| Neighborhood: | A-SFR | Map ID: | |
| Neighborhood CD: | 513011 |
Owner |
| Name: | MATSON ERIC & JENNIFER | Owner ID: | 59289 |
| Mailing Address: | 1139 E ALDER ST WALLA WALLA, WA 99362 | % Ownership: | 100.0000000000% |
| | | Exemptions: | |
Taxes and Assessment Details
Property Tax Information as of
02/21/2026
Click on "Statement Details" to expand or collapse a tax statement.
* Please enter a valid date ** Please enter a valid date *
Statement Details |
| | TOTAL: | $0.00 | $0.00 | $0.00 | $0.00 | $0.00 | $0.00 |
|
| | $0.00 | $0.00 | $0.00 | $0.00 | $0.00 | $0.00 |
Values
| (+) Improvement Homesite Value: | + | $0 | |
| (+) Improvement Non-Homesite Value: | + | $310,440 | |
| (+) Land Homesite Value: | + | $0 | |
| (+) Land Non-Homesite Value: | + | $45,750 | |
| (+) Curr Use (HS): | + | $0 | $0 |
| (+) Curr Use (NHS): | + | $0 | $0 |
| | | -------------------------- | |
| (=) Market Value: | = | $356,190 | |
| (–) Productivity Loss: | – | $0 | |
| | | -------------------------- | |
| (=) Subtotal: | = | $356,190 | |
| (+) Senior Appraised Value: | + | $0 | |
| (+) Non-Senior Appraised Value: | + | $356,190 | |
| | | -------------------------- | |
| (=) Total Appraised Value: | = | $356,190 | |
| (–) Senior Exemption Loss: | – | $0 | |
| (–) Exemption Loss: | – | $0 | |
| | | -------------------------- | |
| (=) Taxable Value: | = | $356,190 | |
Taxing Jurisdiction
| Owner: | MATSON ERIC & JENNIFER | | |
| % Ownership: | 100.0000000000% | | |
| Total Value: | $356,190 | | |
| Tax Area: | 1 - OL-140-F |
| CERFD | CURRENT EXPENSE REFUND 010 | 0.0000000000 | $356,190 | $356,190 | $0.00 | | |
| CURREXP | CURRENT EXPENSE 010 | 1.0175366760 | $356,190 | $356,190 | $362.44 | | |
| HUMNSERV | HUMAN SERVICES 119 | 0.0250000000 | $356,190 | $356,190 | $8.90 | | |
| SLDREL | SOLDIERS RELIEF 121 | 0.0155990005 | $356,190 | $356,190 | $5.56 | | |
| EMERGSER | EMS 147 | 0.3792580840 | $356,190 | $356,190 | $135.09 | | |
| EMSRFD | EMS REFUND 147 | 0.0000000000 | $356,190 | $356,190 | $0.00 | | |
| PORTRFD | PORT REFUND 640 | 0.0000000000 | $356,190 | $356,190 | $0.00 | | |
| PORTWWGEN | PORT OF WW 640 | 0.2460186015 | $356,190 | $356,190 | $87.63 | | |
| SD140BOND | SD #140 BOND 764 | 0.8342371393 | $356,190 | $356,190 | $297.15 | | |
| SD140GEN | SD #140 GENERAL 760 | 2.0646500647 | $356,190 | $356,190 | $735.41 | | |
| ST2 | STATE SCHOOL PART 2 600 | 0.8131451643 | $356,190 | $356,190 | $289.63 | | |
| STATESCHL | STATE SCHOOL 600 | 1.5158548041 | $356,190 | $356,190 | $539.93 | | |
| STREFUND | STATE REFUND LEVY 603 | 0.0000000000 | $356,190 | $356,190 | $0.00 | | |
| CWWBOND | C OF WW BOND 643 | 0.2760494372 | $356,190 | $356,190 | $98.33 | | |
| CWWGEN | CITY OF WW 631 | 1.6100204973 | $356,190 | $356,190 | $573.47 | | |
| CWWRFD | CITY OF WALLA WALLA REFUND 631 | 0.0000000000 | $356,190 | $356,190 | $0.00 | | |
| | Total Tax Rate: | 8.7973694689 | | | | | |
| | | | | Taxes w/Current Exemptions: | $3,133.54 | | |
| | | | | Taxes w/o Exemptions: | $3,133.54 | | |
Improvement / Building
| Improvement #1: | RESIDENTIAL | State Code: | 11 | 1254.0 sqft | Value: | $310,440 |
| Exterior Wall: | PLYWOOD | Heating/Cooling: | WARM & COOLED AIR | | Number of Bathrooms: | 2 | Number of Bedrooms: | 2 | | Plumbing: | 9 | Roof Covering: | COMP SHINGLE |
|
| | Type | Description | Class CD | Sub Class CD | Year Built | Area |
| | MA | Main Area | 1 | 30 | 1949 | 1254.0 |
| | SI1 | SITE IMPROVEMENT | 1 | 30 | 1949 | 1.5 |
| | BASE | BASEMENT | 1 | 30 | 1949 | 832.0 |
| | BPF | BASEMENT -PARTITIONED FINISH | 1 | 30 | 1949 | 832.0 |
| | GFP | GAS FIREPLACE | 1 | 30 | 1949 | 1.0 |
| | SMP | SWIMMING POOL | 1 | 30 | 1949 | 1.0 |
| | RPO | OPEN PORCH W/ROOF | 1 | 30 | 1949 | 70.0 |
| | DTG | Detached Garage | 1 | 30 | 1949 | 558.0 |
Sketch
Property Image
Land
| 1 | RES 1 | Converted: Residential | 0.1680 | 7320.00 | 0.00 | 0.00 | 1.00 | $45,750 | $0 |
Roll Value History
| 2026 | N/A | N/A | N/A | N/A | N/A |
| 2025 | $334,160 | $73,200 | $0 | $407,360 | $407,360 |
| 2024 | $303,780 | $73,200 | $0 | $376,980 | $376,980 |
| 2023 | $310,440 | $45,750 | $0 | $356,190 | $356,190 |
| 2022 | $310,440 | $45,750 | $0 | $356,190 | $356,190 |
| 2021 | $238,800 | $45,750 | $0 | $284,550 | $284,550 |
| 2020 | $159,200 | $45,750 | $0 | $204,950 | $204,950 |
| 2019 | $159,200 | $45,750 | $0 | $204,950 | $204,950 |
| 2018 | $159,200 | $45,750 | $0 | $204,950 | $204,950 |
| 2017 | $159,390 | $29,300 | $0 | $188,690 | $188,690 |
| 2016 | $159,390 | $29,300 | $0 | $188,690 | $188,690 |
| 2015 | $151,800 | $29,300 | $0 | $181,100 | $181,100 |
| 2014 | $138,000 | $29,300 | $0 | $167,300 | $167,300 |
| 2013 | $138,000 | $29,300 | $0 | $167,300 | $167,300 |
| 2012 | $123,200 | $29,300 | $0 | $0 | $0 |
| 2011 | $123,200 | $29,300 | $0 | $0 | $0 |
| 2010 | $115,900 | $29,300 | $0 | $0 | $0 |
| 2009 | $132,000 | $29,300 | $0 | $0 | $0 |
| 2008 | $99,700 | $29,300 | $0 | $0 | $0 |
| 2007 | $99,700 | $29,300 | $0 | $0 | $0 |
Deed and Sales History
| 1 | 07/29/2016 | SWD | STATUTORY WARRANTY DEED | PORTER TOM D & KERRI | MATSON ERIC & JENNIFER | | | $186,500.00 | 130736 | 2016-05992 |
| 2 | 08/15/2003 | WARRANTY D | WARRANTY DEED | PORTER, TOM D | PORTER, TOM D & KERRI | | | | 102799 | 2003-12256 |
| 3 | 07/18/2001 | WARRANTY D | WARRANTY DEED | | | | | $113,995.00 | 97620 | 3160-107630 |
Payout Agreement
| No payout information available.. |