Property
Account |
| Property ID: | 8528 | Abbreviated Legal Description: | WATERTOWN LOT 16 BLK 17 (B) |
| Parcel Number: | 360721731716 | Agent Code: | |
| Type: | Real | | |
| Tax Area: | 1 - OL-140-F | Land Use Code | 11 |
| Open Space: | N | DFL | N |
| Historic Property: | N | Remodel Property: | N |
| Multi-Family Redevelopment: | N | | |
| Township: | 7 | Section: | 21 |
| Range: | 36 |
Location |
| Address: | 1133 E ALDER ST WA 99362 | Mapsco: | |
| Neighborhood: | A-SFR | Map ID: | |
| Neighborhood CD: | 513011 |
Owner |
| Name: | WRIGHT STEPHEN L & PAMELA R | Owner ID: | 49386 |
| Mailing Address: | 1133 E ALDER ST WALLA WALLA, WA 99362 | % Ownership: | 100.0000000000% |
| | | Exemptions: | SNR/DSBL |
Taxes and Assessment Details
Property Tax Information as of
02/21/2026
Click on "Statement Details" to expand or collapse a tax statement.
* Please enter a valid date ** Please enter a valid date *
Statement Details |
| | TOTAL: | $0.00 | $0.00 | $0.00 | $0.00 | $0.00 | $0.00 |
|
| | $0.00 | $0.00 | $0.00 | $0.00 | $0.00 | $0.00 |
Values
| (+) Improvement Homesite Value: | + | $257,080 | |
| (+) Improvement Non-Homesite Value: | + | $0 | |
| (+) Land Homesite Value: | + | $45,750 | |
| (+) Land Non-Homesite Value: | + | $0 | |
| (+) Curr Use (HS): | + | $0 | $0 |
| (+) Curr Use (NHS): | + | $0 | $0 |
| | | -------------------------- | |
| (=) Market Value: | = | $302,830 | |
| (–) Productivity Loss: | – | $0 | |
| | | -------------------------- | |
| (=) Subtotal: | = | $302,830 | |
| (+) Senior Appraised Value: | + | $302,830 | |
| (+) Non-Senior Appraised Value: | + | $0 | |
| | | -------------------------- | |
| (=) Total Appraised Value: | = | $302,830 | |
| (–) Senior Exemption Loss: | – | $70,000 | |
| (–) Exemption Loss: | – | $0 | |
| | | -------------------------- | |
| (=) Taxable Value: | = | $232,830 | |
Taxing Jurisdiction
| Owner: | WRIGHT STEPHEN L & PAMELA R | | |
| % Ownership: | 100.0000000000% | | |
| Total Value: | $302,830 | | |
| Tax Area: | 1 - OL-140-F |
| CERFD | CURRENT EXPENSE REFUND 010 | 0.0000000000 | $302,830 | $232,830 | $0.00 | | |
| CURREXP | CURRENT EXPENSE 010 | 1.0175366760 | $302,830 | $232,830 | $236.91 | | |
| HUMNSERV | HUMAN SERVICES 119 | 0.0250000000 | $302,830 | $232,830 | $5.82 | | |
| SLDREL | SOLDIERS RELIEF 121 | 0.0155990005 | $302,830 | $232,830 | $3.63 | | |
| EMERGSER | EMS 147 | 0.3792580840 | $302,830 | $232,830 | $88.30 | | |
| EMSRFD | EMS REFUND 147 | 0.0000000000 | $302,830 | $232,830 | $0.00 | | |
| PORTRFD | PORT REFUND 640 | 0.0000000000 | $302,830 | $232,830 | $0.00 | | |
| PORTWWGEN | PORT OF WW 640 | 0.2460186015 | $302,830 | $232,830 | $57.28 | | |
| SD140BOND | SD #140 BOND 764 | 0.0000000000 | $302,830 | $0 | $0.00 | | |
| SD140GEN | SD #140 GENERAL 760 | 0.0000000000 | $302,830 | $0 | $0.00 | | |
| ST2 | STATE SCHOOL PART 2 600 | 0.0000000000 | $302,830 | $0 | $0.00 | | |
| STATESCHL | STATE SCHOOL 600 | 1.5158548041 | $302,830 | $232,830 | $352.94 | | |
| STREFUND | STATE REFUND LEVY 603 | 0.0000000000 | $302,830 | $232,830 | $0.00 | | |
| CWWBOND | C OF WW BOND 643 | 0.0000000000 | $302,830 | $0 | $0.00 | | |
| CWWGEN | CITY OF WW 631 | 1.6100204973 | $302,830 | $232,830 | $374.86 | | |
| CWWRFD | CITY OF WALLA WALLA REFUND 631 | 0.0000000000 | $302,830 | $232,830 | $0.00 | | |
| | Total Tax Rate: | 4.8092876634 | | | | | |
| | | | | Taxes w/Current Exemptions: | $1,119.74 | | |
| | | | | Taxes w/o Exemptions: | $2,664.10 | | |
Improvement / Building
| Improvement #1: | RESIDENTIAL | State Code: | 11 | 900.0 sqft | Value: | $257,080 |
| Exterior Wall: | SIDING | Heating/Cooling: | WARM & COOLED AIR | | Number of Bathrooms: | 1 | Number of Bedrooms: | 2 | | Plumbing: | 6 | Roof Covering: | COMP SHINGLE |
|
| | Type | Description | Class CD | Sub Class CD | Year Built | Area |
| | MA | Main Area | 1 | 30 | 1937 | 900.0 |
| | SI1 | SITE IMPROVEMENT | 1 | 30 | 1937 | 1.0 |
| | BASE | BASEMENT | 1 | 30 | 1937 | 140.0 |
| | OSP | Open | 1 | 30 | 1937 | 30.0 |
Sketch
Property Image
Land
| 1 | RES 1 | Converted: Residential | 0.1680 | 7320.00 | 0.00 | 0.00 | 1.00 | $45,750 | $0 |
Roll Value History
| 2026 | N/A | N/A | N/A | N/A | N/A |
| 2025 | $229,630 | $73,200 | $0 | $302,830 | $302,830 |
| 2024 | $229,630 | $73,200 | $0 | $302,830 | $302,830 |
| 2023 | $257,080 | $45,750 | $0 | $302,830 | $232,830 |
| 2022 | $233,710 | $45,750 | $0 | $279,460 | $279,460 |
| 2021 | $166,940 | $45,750 | $0 | $212,690 | $212,690 |
| 2020 | $128,410 | $45,750 | $0 | $174,160 | $174,160 |
| 2019 | $128,410 | $45,750 | $0 | $174,160 | $174,160 |
| 2018 | $107,010 | $45,750 | $0 | $152,760 | $152,760 |
| 2017 | $107,980 | $29,300 | $0 | $137,280 | $137,280 |
| 2016 | $102,840 | $29,300 | $0 | $132,140 | $132,140 |
| 2015 | $102,840 | $29,300 | $0 | $132,140 | $132,140 |
| 2014 | $85,700 | $29,300 | $0 | $115,000 | $115,000 |
| 2013 | $85,700 | $29,300 | $0 | $115,000 | $115,000 |
| 2012 | $85,700 | $29,300 | $0 | $0 | $0 |
| 2011 | $85,700 | $29,300 | $0 | $0 | $0 |
| 2010 | $80,200 | $29,300 | $0 | $0 | $0 |
| 2009 | $92,400 | $29,300 | $0 | $0 | $0 |
| 2008 | $86,600 | $29,300 | $0 | $0 | $0 |
| 2007 | $86,600 | $29,300 | $0 | $0 | $0 |
Deed and Sales History
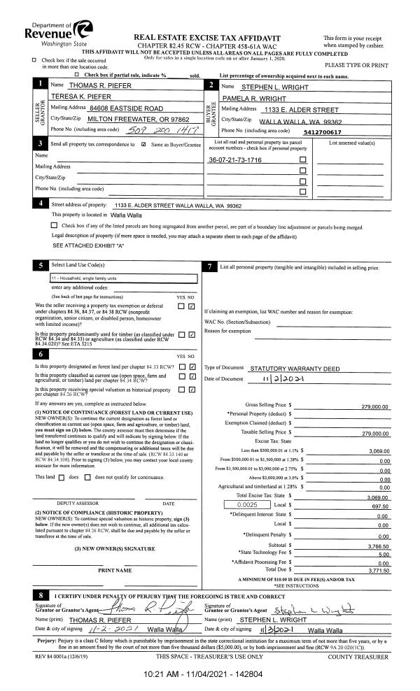
| 1 | 11/04/2021 | SWD | STATUTORY WARRANTY DEED | PIEFER THOMAS R & TERESA K | WRIGHT STEPHEN L & PAMELA R | | | $279,000.00 | 142804 | 2021-13243 |
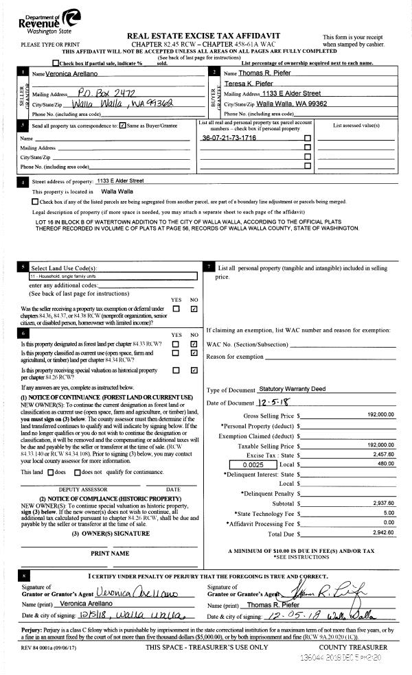
| 2 | 12/05/2018 | SWD | STATUTORY WARRANTY DEED | ARELLANO VERONICA | PIEFER THOMAS R & TERESA K | | | $192,000.00 | 136044 | 2018-10048 |
| 3 | 11/29/2016 | QCD | QUIT CLAIM DEED | ARELLANO OSCAR & VERONICA | ARELLANO VERONICA | | | $0.00 | 131513 | 2016-09839 |
| 4 | 12/06/2016 | FUL | FULFILLMENT DEED | SAUL JOHN T | ARELLANO OSCAR & VERONICA | | | | 0 | 2016-09987 |
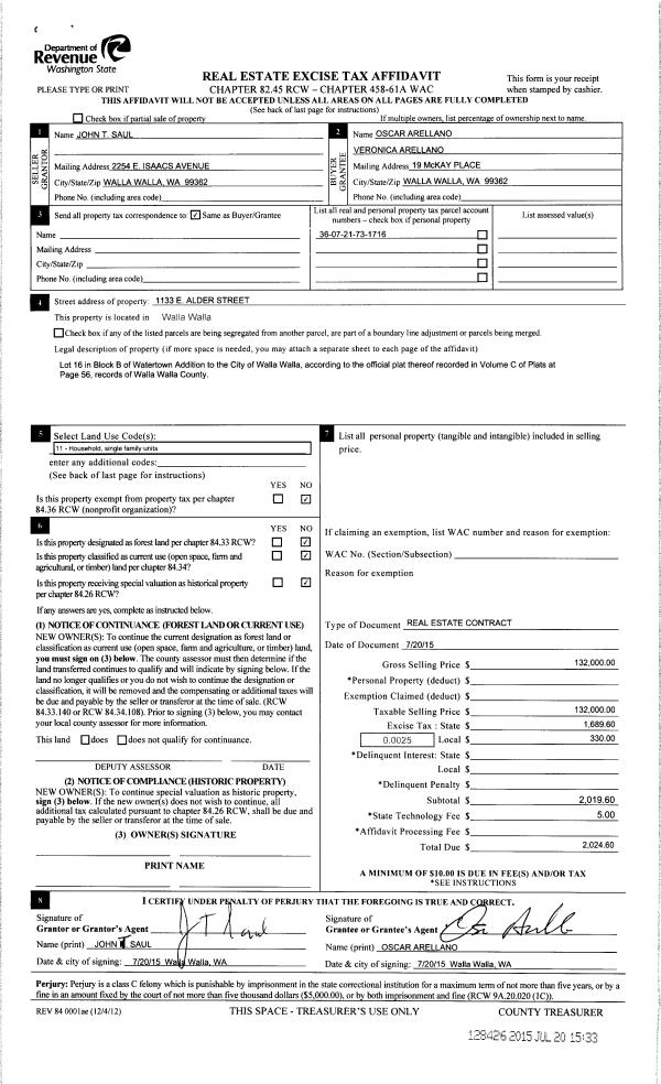
| 5 | 07/20/2015 | REAL ESTAT | REAL ESTATE CONTRACT | SAUL JOHN T | ARELLANO OSCAR & VERONICA | | | $132,000.00 | 128426 | 2015-06169 |
| 6 | 07/17/2015 | SWD | STATUTORY WARRANTY DEED | KENNEDY KELLY M | SAUL JOHN T | | | $118,000.00 | 128418 | 2015-06126 |
| 7 | 08/27/2002 | WARRANTY D | WARRANTY DEED | RUCHERT, DONALD & DARLENE | KENNEDY, KELLY M | | | $85,000.00 | 100275 | -100275 |
| 8 | 09/20/1983 | WARRANTY D | WARRANTY DEED | | | | | $0.00 | 0 | 1398-306845 |
Payout Agreement
| No payout information available.. |