Property
Account |
| Property ID: | 8527 | Abbreviated Legal Description: | WATERTOWN LOT 11 BLK 17 (B) |
| Parcel Number: | 360721731711 | Agent Code: | |
| Type: | Real | | |
| Tax Area: | 1 - OL-140-F | Land Use Code | 11 |
| Open Space: | N | DFL | N |
| Historic Property: | N | Remodel Property: | N |
| Multi-Family Redevelopment: | N | | |
| Township: | 7 | Section: | 21 |
| Range: | 36 |
Location |
| Address: | 1103 E ALDER ST WA 99362 | Mapsco: | |
| Neighborhood: | A-SFR | Map ID: | |
| Neighborhood CD: | 513011 |
Owner |
| Name: | FRITZKE GRACE & NICHOLAS DRUMHELLER | Owner ID: | 72964 |
| Mailing Address: | 1103 E ALDER ST WALLA WALLA, WA 99362 | % Ownership: | 100.0000000000% |
| | | Exemptions: | |
Taxes and Assessment Details
Property Tax Information as of
04/19/2026
Click on "Statement Details" to expand or collapse a tax statement.
* Please enter a valid date ** Please enter a valid date *
Statement Details |
| | TOTAL: | $0.00 | $0.00 | $0.00 | $0.00 | $0.00 | $0.00 |
|
| | $0.00 | $0.00 | $0.00 | $0.00 | $0.00 | $0.00 |
Values
| (+) Improvement Homesite Value: | + | $0 | |
| (+) Improvement Non-Homesite Value: | + | $393,130 | |
| (+) Land Homesite Value: | + | $0 | |
| (+) Land Non-Homesite Value: | + | $45,750 | |
| (+) Curr Use (HS): | + | $0 | $0 |
| (+) Curr Use (NHS): | + | $0 | $0 |
| | | -------------------------- | |
| (=) Market Value: | = | $438,880 | |
| (–) Productivity Loss: | – | $0 | |
| | | -------------------------- | |
| (=) Subtotal: | = | $438,880 | |
| (+) Senior Appraised Value: | + | $0 | |
| (+) Non-Senior Appraised Value: | + | $438,880 | |
| | | -------------------------- | |
| (=) Total Appraised Value: | = | $438,880 | |
| (–) Senior Exemption Loss: | – | $0 | |
| (–) Exemption Loss: | – | $0 | |
| | | -------------------------- | |
| (=) Taxable Value: | = | $438,880 | |
Taxing Jurisdiction
| Owner: | FRITZKE GRACE & NICHOLAS DRUMHELLER | | |
| % Ownership: | 100.0000000000% | | |
| Total Value: | $438,880 | | |
| Tax Area: | 1 - OL-140-F |
| CERFD | CURRENT EXPENSE REFUND 010 | 0.0000000000 | $438,880 | $438,880 | $0.00 | | |
| CURREXP | CURRENT EXPENSE 010 | 1.0175366760 | $438,880 | $438,880 | $446.58 | | |
| HUMNSERV | HUMAN SERVICES 119 | 0.0250000000 | $438,880 | $438,880 | $10.97 | | |
| SLDREL | SOLDIERS RELIEF 121 | 0.0155990005 | $438,880 | $438,880 | $6.85 | | |
| EMERGSER | EMS 147 | 0.3792580840 | $438,880 | $438,880 | $166.45 | | |
| EMSRFD | EMS REFUND 147 | 0.0000000000 | $438,880 | $438,880 | $0.00 | | |
| PORTRFD | PORT REFUND 640 | 0.0000000000 | $438,880 | $438,880 | $0.00 | | |
| PORTWWGEN | PORT OF WW 640 | 0.2460186015 | $438,880 | $438,880 | $107.97 | | |
| SD140BOND | SD #140 BOND 764 | 0.8342371393 | $438,880 | $438,880 | $366.13 | | |
| SD140GEN | SD #140 GENERAL 760 | 2.0646500647 | $438,880 | $438,880 | $906.13 | | |
| ST2 | STATE SCHOOL PART 2 600 | 0.8131451643 | $438,880 | $438,880 | $356.87 | | |
| STATESCHL | STATE SCHOOL 600 | 1.5158548041 | $438,880 | $438,880 | $665.28 | | |
| STREFUND | STATE REFUND LEVY 603 | 0.0000000000 | $438,880 | $438,880 | $0.00 | | |
| CWWBOND | C OF WW BOND 643 | 0.2760494372 | $438,880 | $438,880 | $121.15 | | |
| CWWGEN | CITY OF WW 631 | 1.6100204973 | $438,880 | $438,880 | $706.61 | | |
| CWWRFD | CITY OF WALLA WALLA REFUND 631 | 0.0000000000 | $438,880 | $438,880 | $0.00 | | |
| | Total Tax Rate: | 8.7973694689 | | | | | |
| | | | | Taxes w/Current Exemptions: | $3,860.99 | | |
| | | | | Taxes w/o Exemptions: | $3,860.99 | | |
Improvement / Building
| Improvement #1: | RESIDENTIAL | State Code: | 11 | 1925.0 sqft | Value: | $393,130 |
| Exterior Wall: | SIDING | Heating/Cooling: | WARM & COOLED AIR | | Number of Bathrooms: | 2 | Number of Bedrooms: | 4 | | Plumbing: | 10 | Roof Covering: | COMP SHINGLE |
|
| | Type | Description | Class CD | Sub Class CD | Year Built | Area |
| | MA | Main Area | 4 | 40 | 1906 | 1925.0 |
| | UPFL | Upper Floor (included in main area) | 4 | 40 | 1906 | 600.0 |
| | SI1 | SITE IMPROVEMENT | 4 | 40 | 1906 | 2.5 |
| | BASE | BASEMENT | 4 | 40 | 1906 | 1325.0 |
| | S1F | Single One Story Fireplace | 4 | 40 | 1906 | 1.0 |
| | SWP | Solid Wall Porch | 4 | 40 | 1906 | 55.0 |
| | WDR | WOOD DECK W/ROOF | 4 | 40 | 1906 | 66.0 |
| | RCD | WOOD DECK W/ROOF, CEILED | 4 | 40 | 1906 | 210.0 |
| | CPC | COVERED CARPORT/PATIO | 4 | 40 | 1906 | 330.0 |
| | DTG | Detached Garage | 4 | 40 | 1906 | 192.0 |
Sketch
Property Image
Land
| 1 | RES 1 | Converted: Residential | 0.1680 | 7320.00 | 0.00 | 0.00 | 1.00 | $45,750 | $0 |
Roll Value History
| 2026 | N/A | N/A | N/A | N/A | N/A |
| 2025 | $406,360 | $73,200 | $0 | $479,560 | $479,560 |
| 2024 | $369,420 | $73,200 | $0 | $442,620 | $442,620 |
| 2023 | $393,130 | $45,750 | $0 | $438,880 | $438,880 |
| 2022 | $357,390 | $45,750 | $0 | $403,140 | $403,140 |
| 2021 | $297,830 | $45,750 | $0 | $343,580 | $343,580 |
| 2020 | $248,190 | $45,750 | $0 | $293,940 | $293,940 |
| 2019 | $248,190 | $45,750 | $0 | $293,940 | $293,940 |
| 2018 | $248,190 | $45,750 | $0 | $293,940 | $293,940 |
| 2017 | $257,070 | $29,300 | $0 | $286,370 | $286,370 |
| 2016 | $233,700 | $29,300 | $0 | $263,000 | $263,000 |
| 2015 | $233,700 | $29,300 | $0 | $263,000 | $263,000 |
| 2014 | $233,700 | $29,300 | $0 | $263,000 | $263,000 |
| 2013 | $233,700 | $29,300 | $0 | $263,000 | $263,000 |
| 2012 | $233,700 | $29,300 | $0 | $0 | $0 |
| 2011 | $209,800 | $29,300 | $0 | $0 | $0 |
| 2010 | $188,100 | $29,300 | $0 | $0 | $0 |
| 2009 | $212,300 | $29,300 | $0 | $0 | $0 |
| 2008 | $190,300 | $29,300 | $0 | $0 | $0 |
| 2007 | $190,300 | $29,300 | $0 | $0 | $0 |
Deed and Sales History
| 1 | 12/30/2022 | SWD | STATUTORY WARRANTY DEED | DRIVER RYAN & MARIA FERRARO-DRIVER | FRITZKE GRACE & NICHOLAS DRUMHELLER | | | $495,000.00 | 145212 | 2022-09984 |
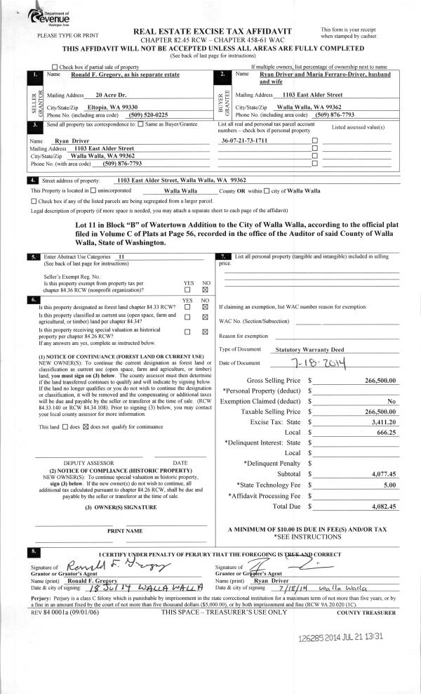
| 2 | 07/21/2014 | SWD | STATUTORY WARRANTY DEED | GREGORY RONALD F | DRIVER RYAN & MARIA FERRARO-DRIVER | | | $266,500.00 | 126285 | 2014-05076 |
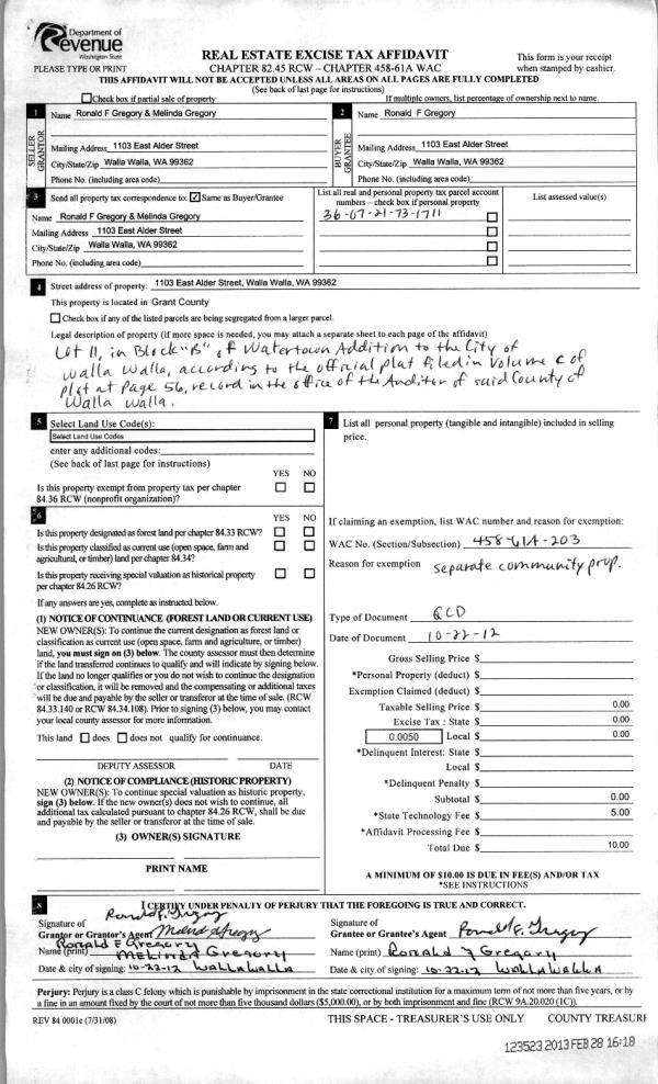
| 3 | 02/28/2013 | QCD | QUIT CLAIM DEED | GREGORY, RONALD F & MELINDA | GREGORY, RONALD F | | | $0.00 | 123523 | 2013-01842 |
| 4 | 03/01/2002 | WARRANTY D | WARRANTY DEED | | | | | $165,000.00 | 99021 | 3290-202598 |
Payout Agreement
| No payout information available.. |