Property
Account |
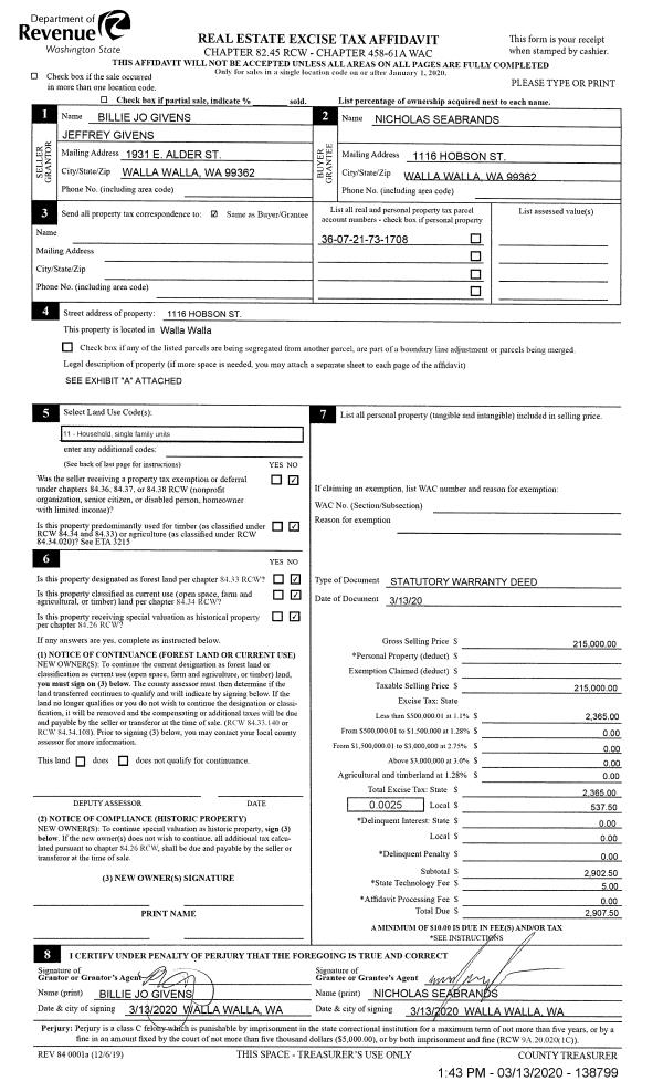
| Property ID: | 8525 | Abbreviated Legal Description: | WATERTOWN LOT 8 BLK 17 (B) |
| Parcel Number: | 360721731708 | Agent Code: | |
| Type: | Real | | |
| Tax Area: | 1 - OL-140-F | Land Use Code | 11 |
| Open Space: | N | DFL | N |
| Historic Property: | N | Remodel Property: | N |
| Multi-Family Redevelopment: | N | | |
| Township: | 7 | Section: | 21 |
| Range: | 36 |
Location |
| Address: | 1116 HOBSON ST WA 99362 | Mapsco: | |
| Neighborhood: | A-SFR | Map ID: | |
| Neighborhood CD: | 513011 |
Owner |
| Name: | SEABRANDS NICHOLAS | Owner ID: | 66871 |
| Mailing Address: | 1116 HOBSON ST WALLA WALLA, WA 99362 | % Ownership: | 100.0000000000% |
| | | Exemptions: | |
Taxes and Assessment Details
Property Tax Information as of
02/21/2026
Click on "Statement Details" to expand or collapse a tax statement.
* Please enter a valid date ** Please enter a valid date *
Statement Details |
| | TOTAL: | $0.00 | $0.00 | $0.00 | $0.00 | $0.00 | $0.00 |
|
| | $0.00 | $0.00 | $0.00 | $0.00 | $0.00 | $0.00 |
Values
| (+) Improvement Homesite Value: | + | $0 | |
| (+) Improvement Non-Homesite Value: | + | $227,640 | |
| (+) Land Homesite Value: | + | $0 | |
| (+) Land Non-Homesite Value: | + | $45,750 | |
| (+) Curr Use (HS): | + | $0 | $0 |
| (+) Curr Use (NHS): | + | $0 | $0 |
| | | -------------------------- | |
| (=) Market Value: | = | $273,390 | |
| (–) Productivity Loss: | – | $0 | |
| | | -------------------------- | |
| (=) Subtotal: | = | $273,390 | |
| (+) Senior Appraised Value: | + | $0 | |
| (+) Non-Senior Appraised Value: | + | $273,390 | |
| | | -------------------------- | |
| (=) Total Appraised Value: | = | $273,390 | |
| (–) Senior Exemption Loss: | – | $0 | |
| (–) Exemption Loss: | – | $0 | |
| | | -------------------------- | |
| (=) Taxable Value: | = | $273,390 | |
Taxing Jurisdiction
| Owner: | SEABRANDS NICHOLAS | | |
| % Ownership: | 100.0000000000% | | |
| Total Value: | $273,390 | | |
| Tax Area: | 1 - OL-140-F |
| CERFD | CURRENT EXPENSE REFUND 010 | 0.0000000000 | $273,390 | $273,390 | $0.00 | | |
| CURREXP | CURRENT EXPENSE 010 | 1.0175366760 | $273,390 | $273,390 | $278.18 | | |
| HUMNSERV | HUMAN SERVICES 119 | 0.0250000000 | $273,390 | $273,390 | $6.83 | | |
| SLDREL | SOLDIERS RELIEF 121 | 0.0155990005 | $273,390 | $273,390 | $4.26 | | |
| EMERGSER | EMS 147 | 0.3792580840 | $273,390 | $273,390 | $103.69 | | |
| EMSRFD | EMS REFUND 147 | 0.0000000000 | $273,390 | $273,390 | $0.00 | | |
| PORTRFD | PORT REFUND 640 | 0.0000000000 | $273,390 | $273,390 | $0.00 | | |
| PORTWWGEN | PORT OF WW 640 | 0.2460186015 | $273,390 | $273,390 | $67.26 | | |
| SD140BOND | SD #140 BOND 764 | 0.8342371393 | $273,390 | $273,390 | $228.07 | | |
| SD140GEN | SD #140 GENERAL 760 | 2.0646500647 | $273,390 | $273,390 | $564.45 | | |
| ST2 | STATE SCHOOL PART 2 600 | 0.8131451643 | $273,390 | $273,390 | $222.31 | | |
| STATESCHL | STATE SCHOOL 600 | 1.5158548041 | $273,390 | $273,390 | $414.42 | | |
| STREFUND | STATE REFUND LEVY 603 | 0.0000000000 | $273,390 | $273,390 | $0.00 | | |
| CWWBOND | C OF WW BOND 643 | 0.2760494372 | $273,390 | $273,390 | $75.47 | | |
| CWWGEN | CITY OF WW 631 | 1.6100204973 | $273,390 | $273,390 | $440.16 | | |
| CWWRFD | CITY OF WALLA WALLA REFUND 631 | 0.0000000000 | $273,390 | $273,390 | $0.00 | | |
| | Total Tax Rate: | 8.7973694689 | | | | | |
| | | | | Taxes w/Current Exemptions: | $2,405.10 | | |
| | | | | Taxes w/o Exemptions: | $2,405.10 | | |
Improvement / Building
| Improvement #1: | RESIDENTIAL | State Code: | 11 | 860.0 sqft | Value: | $227,640 |
| Exterior Wall: | VINYL | Heating/Cooling: | WARM & COOLED AIR | | Number of Bathrooms: | 1 | Number of Bedrooms: | 1 | | Plumbing: | 6 | Roof Covering: | COMP SHINGLE |
|
| | Type | Description | Class CD | Sub Class CD | Year Built | Area |
| | MA | Main Area | 1 | 25 | 1947 | 860.0 |
| | SI1 | SITE IMPROVEMENT | 1 | 25 | 1947 | 1.0 |
| | BASE | BASEMENT | 1 | 25 | 1947 | 430.0 |
| | BRF | BASEMENT - REC FINISH | 1 | 25 | 1947 | 430.0 |
| | SWP | Solid Wall Porch | 1 | 25 | 1947 | 90.0 |
| | RPC | OPEN PORCH W/ROOF , CEILED | 1 | 25 | 1947 | 102.0 |
| | DTG | Detached Garage | 1 | 25 | 1947 | 280.0 |
Sketch
Property Image
Land
| 1 | RES 1 | Converted: Residential | 0.1680 | 7320.00 | 0.00 | 0.00 | 1.00 | $45,750 | $0 |
Roll Value History
| 2026 | N/A | N/A | N/A | N/A | N/A |
| 2025 | $196,600 | $73,200 | $0 | $269,800 | $269,800 |
| 2024 | $196,600 | $73,200 | $0 | $269,800 | $269,800 |
| 2023 | $227,640 | $45,750 | $0 | $273,390 | $273,390 |
| 2022 | $189,700 | $45,750 | $0 | $235,450 | $235,450 |
| 2021 | $158,080 | $45,750 | $0 | $203,830 | $203,830 |
| 2020 | $112,920 | $45,750 | $0 | $158,670 | $158,670 |
| 2019 | $112,920 | $45,750 | $0 | $158,670 | $158,670 |
| 2018 | $107,540 | $45,750 | $0 | $153,290 | $153,290 |
| 2017 | $124,510 | $29,300 | $0 | $153,810 | $153,810 |
| 2016 | $118,580 | $29,300 | $0 | $147,880 | $147,880 |
| 2015 | $112,930 | $29,300 | $0 | $142,230 | $142,230 |
| 2014 | $98,200 | $29,300 | $0 | $127,500 | $127,500 |
| 2013 | $98,200 | $29,300 | $0 | $127,500 | $127,500 |
| 2012 | $109,200 | $29,300 | $0 | $0 | $0 |
| 2011 | $116,500 | $29,300 | $0 | $0 | $0 |
| 2010 | $109,600 | $29,300 | $0 | $0 | $0 |
| 2009 | $125,000 | $29,300 | $0 | $0 | $0 |
| 2008 | $80,900 | $29,300 | $0 | $0 | $0 |
| 2007 | $80,900 | $29,300 | $0 | $0 | $0 |
Deed and Sales History
| 1 | 03/13/2020 | SWD | STATUTORY WARRANTY DEED | GIVENS JEFFREY & BILLIE JO | SEABRANDS NICHOLAS | | | $215,000.00 | 138799 | 2020-02336 |
| 2 | 08/08/2005 | WARRANTY D | WARRANTY DEED | SHELLEY, ESTHER LIFE EST ETAL | GIVENS, JEFFREY & BILLIE JO | | | $110,000.00 | 108169 | 2005-09711 |
| 3 | 07/10/1981 | WARRANTY D | WARRANTY DEED | | | | | $250.00 | 0 | 1288-105165 |
Payout Agreement
| No payout information available.. |