Property
Account |
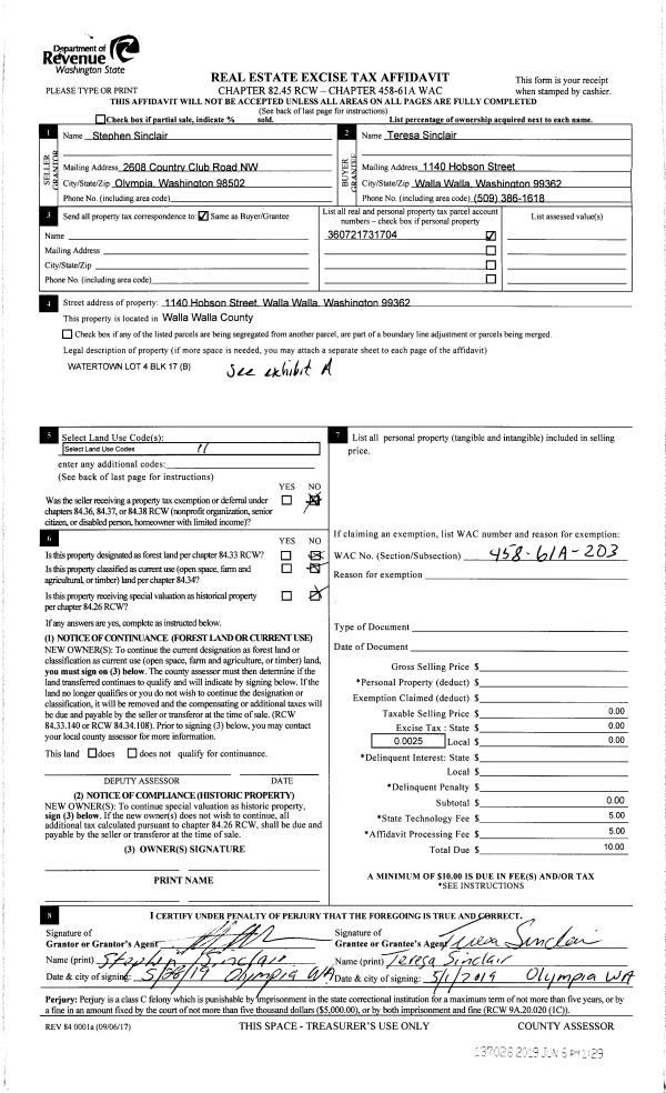
| Property ID: | 8522 | Abbreviated Legal Description: | WATERTOWN LOT 4 BLK 17 (B) |
| Parcel Number: | 360721731704 | Agent Code: | |
| Type: | Real | | |
| Tax Area: | 1 - OL-140-F | Land Use Code | 11 |
| Open Space: | N | DFL | N |
| Historic Property: | N | Remodel Property: | N |
| Multi-Family Redevelopment: | N | | |
| Township: | 7 | Section: | 21 |
| Range: | 36 |
Location |
| Address: | 1140 HOBSON ST WA 99362 | Mapsco: | |
| Neighborhood: | A-SFR | Map ID: | |
| Neighborhood CD: | 513011 |
Owner |
| Name: | SINCLAIR TERESA A | Owner ID: | 68443 |
| Mailing Address: | 1140 HOBSON ST WALLA WALLA 99362 | % Ownership: | 100.0000000000% |
| | | Exemptions: | |
Taxes and Assessment Details
Property Tax Information as of
02/21/2026
Click on "Statement Details" to expand or collapse a tax statement.
* Please enter a valid date ** Please enter a valid date *
Statement Details |
| | TOTAL: | $0.00 | $0.00 | $0.00 | $0.00 | $0.00 | $0.00 |
|
| | $0.00 | $0.00 | $0.00 | $0.00 | $0.00 | $0.00 |
Values
| (+) Improvement Homesite Value: | + | $0 | |
| (+) Improvement Non-Homesite Value: | + | $246,080 | |
| (+) Land Homesite Value: | + | $0 | |
| (+) Land Non-Homesite Value: | + | $45,750 | |
| (+) Curr Use (HS): | + | $0 | $0 |
| (+) Curr Use (NHS): | + | $0 | $0 |
| | | -------------------------- | |
| (=) Market Value: | = | $291,830 | |
| (–) Productivity Loss: | – | $0 | |
| | | -------------------------- | |
| (=) Subtotal: | = | $291,830 | |
| (+) Senior Appraised Value: | + | $0 | |
| (+) Non-Senior Appraised Value: | + | $291,830 | |
| | | -------------------------- | |
| (=) Total Appraised Value: | = | $291,830 | |
| (–) Senior Exemption Loss: | – | $0 | |
| (–) Exemption Loss: | – | $0 | |
| | | -------------------------- | |
| (=) Taxable Value: | = | $291,830 | |
Taxing Jurisdiction
| Owner: | SINCLAIR TERESA A | | |
| % Ownership: | 100.0000000000% | | |
| Total Value: | $291,830 | | |
| Tax Area: | 1 - OL-140-F |
| CERFD | CURRENT EXPENSE REFUND 010 | 0.0000000000 | $291,830 | $291,830 | $0.00 | | |
| CURREXP | CURRENT EXPENSE 010 | 1.0175366760 | $291,830 | $291,830 | $296.95 | | |
| HUMNSERV | HUMAN SERVICES 119 | 0.0250000000 | $291,830 | $291,830 | $7.30 | | |
| SLDREL | SOLDIERS RELIEF 121 | 0.0155990005 | $291,830 | $291,830 | $4.55 | | |
| EMERGSER | EMS 147 | 0.3792580840 | $291,830 | $291,830 | $110.68 | | |
| EMSRFD | EMS REFUND 147 | 0.0000000000 | $291,830 | $291,830 | $0.00 | | |
| PORTRFD | PORT REFUND 640 | 0.0000000000 | $291,830 | $291,830 | $0.00 | | |
| PORTWWGEN | PORT OF WW 640 | 0.2460186015 | $291,830 | $291,830 | $71.80 | | |
| SD140BOND | SD #140 BOND 764 | 0.8342371393 | $291,830 | $291,830 | $243.46 | | |
| SD140GEN | SD #140 GENERAL 760 | 2.0646500647 | $291,830 | $291,830 | $602.53 | | |
| ST2 | STATE SCHOOL PART 2 600 | 0.8131451643 | $291,830 | $291,830 | $237.30 | | |
| STATESCHL | STATE SCHOOL 600 | 1.5158548041 | $291,830 | $291,830 | $442.37 | | |
| STREFUND | STATE REFUND LEVY 603 | 0.0000000000 | $291,830 | $291,830 | $0.00 | | |
| CWWBOND | C OF WW BOND 643 | 0.2760494372 | $291,830 | $291,830 | $80.56 | | |
| CWWGEN | CITY OF WW 631 | 1.6100204973 | $291,830 | $291,830 | $469.85 | | |
| CWWRFD | CITY OF WALLA WALLA REFUND 631 | 0.0000000000 | $291,830 | $291,830 | $0.00 | | |
| | Total Tax Rate: | 8.7973694689 | | | | | |
| | | | | Taxes w/Current Exemptions: | $2,567.35 | | |
| | | | | Taxes w/o Exemptions: | $2,567.35 | | |
Improvement / Building
| Improvement #1: | RESIDENTIAL | State Code: | 11 | 1180.0 sqft | Value: | $246,080 |
| Exterior Wall: | METAL/STEEL | Heating/Cooling: | WARM & COOLED AIR | | Number of Bathrooms: | 1 | Number of Bedrooms: | 2 | | Plumbing: | 6 | Roof Covering: | COMP SHINGLE |
|
| | Type | Description | Class CD | Sub Class CD | Year Built | Area |
| | MA | Main Area | 1 | 30 | 1948 | 1180.0 |
| | SI1 | SITE IMPROVEMENT | 1 | 30 | 1948 | 1.0 |
| | BASE | BASEMENT | 1 | 30 | 1948 | 988.0 |
| | BRF | BASEMENT - REC FINISH | 1 | 30 | 1948 | 988.0 |
| | SWP | Solid Wall Porch | 1 | 30 | 1948 | 56.0 |
| | PRC | PORCH W STEPS, ROOF,CEILED | 1 | 30 | 1948 | 120.0 |
| | GSTO | GARAGE STORAGE-NO VALUE | 1 | 30 | 1948 | 216.0 |
Sketch
Property Image
Land
| 1 | RES 1 | Converted: Residential | 0.1680 | 7320.00 | 0.00 | 0.00 | 1.00 | $45,750 | $0 |
Roll Value History
| 2026 | N/A | N/A | N/A | N/A | N/A |
| 2025 | $217,140 | $73,200 | $0 | $290,340 | $290,340 |
| 2024 | $217,140 | $73,200 | $0 | $290,340 | $290,340 |
| 2023 | $246,080 | $45,750 | $0 | $291,830 | $291,830 |
| 2022 | $246,080 | $45,750 | $0 | $291,830 | $291,830 |
| 2021 | $205,070 | $45,750 | $0 | $250,820 | $250,820 |
| 2020 | $146,480 | $45,750 | $0 | $192,230 | $192,230 |
| 2019 | $146,480 | $45,750 | $0 | $192,230 | $192,230 |
| 2018 | $127,370 | $45,750 | $0 | $173,120 | $173,120 |
| 2017 | $136,050 | $29,300 | $0 | $165,350 | $165,350 |
| 2016 | $129,570 | $29,300 | $0 | $158,870 | $158,870 |
| 2015 | $129,570 | $29,300 | $0 | $158,870 | $158,870 |
| 2014 | $123,400 | $29,300 | $0 | $152,700 | $152,700 |
| 2013 | $123,400 | $29,300 | $0 | $152,700 | $152,700 |
| 2012 | $123,400 | $29,300 | $0 | $0 | $0 |
| 2011 | $123,400 | $29,300 | $0 | $0 | $0 |
| 2010 | $103,500 | $29,300 | $0 | $0 | $0 |
| 2009 | $118,200 | $29,300 | $0 | $0 | $0 |
| 2008 | $88,700 | $29,300 | $0 | $0 | $0 |
| 2007 | $88,700 | $29,300 | $0 | $0 | $0 |
Deed and Sales History
| 1 | 12/18/2020 | QCD | QUIT CLAIM DEED | SINCLAIR TERESA | SINCLAIR TERESA A | | | | 140570 | 2020-13404 |
| 2 | 06/06/2019 | QCD | QUIT CLAIM DEED | SINCLAIR STEPHEN D & TERESA A | SINCLAIR TERESA | | | $0.00 | 137028 | 2019-03894 |
| 3 | 09/11/1992 | WARRANTY D | WARRANTY DEED | | | | | $53,000.00 | 77583 | 2009-208088 |
Payout Agreement
| No payout information available.. |