Property
Account |
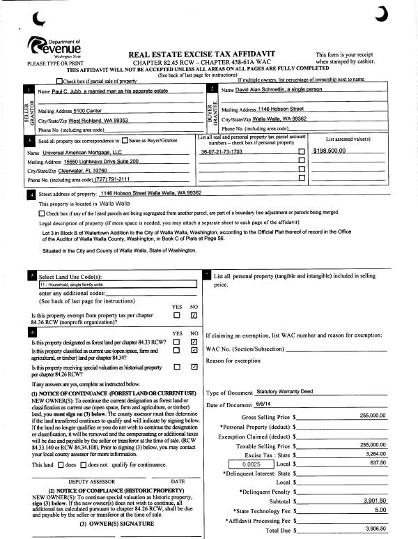
| Property ID: | 8521 | Abbreviated Legal Description: | WATERTOWN LOT 3 BLK 17 (B) |
| Parcel Number: | 360721731703 | Agent Code: | |
| Type: | Real | | |
| Tax Area: | 1 - OL-140-F | Land Use Code | 11 |
| Open Space: | N | DFL | N |
| Historic Property: | N | Remodel Property: | N |
| Multi-Family Redevelopment: | N | | |
| Township: | 7 | Section: | 21 |
| Range: | 36 |
Location |
| Address: | 1146 HOBSON ST WA 99362 | Mapsco: | |
| Neighborhood: | A-SFR | Map ID: | |
| Neighborhood CD: | 513011 |
Owner |
| Name: | DELAUTER BARBARA A | Owner ID: | 61341 |
| Mailing Address: | BONNIE JEAN ABBOTT 1146 HOBSON ST WALLA WALLA, WA 99362 | % Ownership: | 100.0000000000% |
| | | Exemptions: | |
Taxes and Assessment Details
Property Tax Information as of
02/21/2026
Click on "Statement Details" to expand or collapse a tax statement.
* Please enter a valid date ** Please enter a valid date *
Statement Details |
| | TOTAL: | $0.00 | $0.00 | $0.00 | $0.00 | $0.00 | $0.00 |
|
| | $0.00 | $0.00 | $0.00 | $0.00 | $0.00 | $0.00 |
Values
| (+) Improvement Homesite Value: | + | $0 | |
| (+) Improvement Non-Homesite Value: | + | $405,060 | |
| (+) Land Homesite Value: | + | $0 | |
| (+) Land Non-Homesite Value: | + | $45,750 | |
| (+) Curr Use (HS): | + | $0 | $0 |
| (+) Curr Use (NHS): | + | $0 | $0 |
| | | -------------------------- | |
| (=) Market Value: | = | $450,810 | |
| (–) Productivity Loss: | – | $0 | |
| | | -------------------------- | |
| (=) Subtotal: | = | $450,810 | |
| (+) Senior Appraised Value: | + | $0 | |
| (+) Non-Senior Appraised Value: | + | $450,810 | |
| | | -------------------------- | |
| (=) Total Appraised Value: | = | $450,810 | |
| (–) Senior Exemption Loss: | – | $0 | |
| (–) Exemption Loss: | – | $0 | |
| | | -------------------------- | |
| (=) Taxable Value: | = | $450,810 | |
Taxing Jurisdiction
| Owner: | DELAUTER BARBARA A | | |
| % Ownership: | 100.0000000000% | | |
| Total Value: | $450,810 | | |
| Tax Area: | 1 - OL-140-F |
| CERFD | CURRENT EXPENSE REFUND 010 | 0.0000000000 | $450,810 | $450,810 | $0.00 | | |
| CURREXP | CURRENT EXPENSE 010 | 1.0175366760 | $450,810 | $450,810 | $458.72 | | |
| HUMNSERV | HUMAN SERVICES 119 | 0.0250000000 | $450,810 | $450,810 | $11.27 | | |
| SLDREL | SOLDIERS RELIEF 121 | 0.0155990005 | $450,810 | $450,810 | $7.03 | | |
| EMERGSER | EMS 147 | 0.3792580840 | $450,810 | $450,810 | $170.97 | | |
| EMSRFD | EMS REFUND 147 | 0.0000000000 | $450,810 | $450,810 | $0.00 | | |
| PORTRFD | PORT REFUND 640 | 0.0000000000 | $450,810 | $450,810 | $0.00 | | |
| PORTWWGEN | PORT OF WW 640 | 0.2460186015 | $450,810 | $450,810 | $110.91 | | |
| SD140BOND | SD #140 BOND 764 | 0.8342371393 | $450,810 | $450,810 | $376.08 | | |
| SD140GEN | SD #140 GENERAL 760 | 2.0646500647 | $450,810 | $450,810 | $930.76 | | |
| ST2 | STATE SCHOOL PART 2 600 | 0.8131451643 | $450,810 | $450,810 | $366.57 | | |
| STATESCHL | STATE SCHOOL 600 | 1.5158548041 | $450,810 | $450,810 | $683.36 | | |
| STREFUND | STATE REFUND LEVY 603 | 0.0000000000 | $450,810 | $450,810 | $0.00 | | |
| CWWBOND | C OF WW BOND 643 | 0.2760494372 | $450,810 | $450,810 | $124.45 | | |
| CWWGEN | CITY OF WW 631 | 1.6100204973 | $450,810 | $450,810 | $725.81 | | |
| CWWRFD | CITY OF WALLA WALLA REFUND 631 | 0.0000000000 | $450,810 | $450,810 | $0.00 | | |
| | Total Tax Rate: | 8.7973694689 | | | | | |
| | | | | Taxes w/Current Exemptions: | $3,965.93 | | |
| | | | | Taxes w/o Exemptions: | $3,965.93 | | |
Improvement / Building
| Improvement #1: | RESIDENTIAL | State Code: | 11 | 1563.0 sqft | Value: | $405,060 |
| Exterior Wall: | METAL/STEEL | Heating/Cooling: | WARM & COOLED AIR | | Number of Bathrooms: | 2 | Number of Bedrooms: | 3 | | Plumbing: | 9 | Roof Covering: | COMP SHINGLE |
|
| | Type | Description | Class CD | Sub Class CD | Year Built | Area |
| | MA | Main Area | 4 | 35 | 1911 | 1563.0 |
| | UPFL | Upper Floor (included in main area) | 4 | 35 | 1911 | 363.0 |
| | SI1 | SITE IMPROVEMENT | 4 | 35 | 1911 | 4.0 |
| | BASE | BASEMENT | 4 | 35 | 1911 | 1026.0 |
| | BPF | BASEMENT -PARTITIONED FINISH | 4 | 35 | 1911 | 710.0 |
| | SMP | SWIMMING POOL | 4 | 35 | 0 | 1.0 |
| | RCD | WOOD DECK W/ROOF, CEILED | 4 | 35 | 1911 | 112.0 |
| | CPC | COVERED CARPORT/PATIO | 4 | 35 | 1911 | 276.0 |
| | DTG | Detached Garage | 4 | 35 | 1911 | 216.0 |
Sketch
Property Image
Land
| 1 | RES 1 | Converted: Residential | 0.1680 | 7320.00 | 0.00 | 0.00 | 1.00 | $45,750 | $0 |
Roll Value History
| 2026 | N/A | N/A | N/A | N/A | N/A |
| 2025 | $400,720 | $73,200 | $0 | $473,920 | $473,920 |
| 2024 | $375,810 | $73,200 | $0 | $449,010 | $449,010 |
| 2023 | $405,060 | $45,750 | $0 | $450,810 | $450,810 |
| 2022 | $385,770 | $45,750 | $0 | $431,520 | $431,520 |
| 2021 | $350,700 | $45,750 | $0 | $396,450 | $396,450 |
| 2020 | $280,560 | $45,750 | $0 | $326,310 | $326,310 |
| 2019 | $280,560 | $45,750 | $0 | $326,310 | $326,310 |
| 2018 | $267,200 | $45,750 | $0 | $312,950 | $312,950 |
| 2017 | $203,040 | $29,300 | $0 | $232,340 | $232,340 |
| 2016 | $203,040 | $29,300 | $0 | $232,340 | $232,340 |
| 2015 | $203,040 | $29,300 | $0 | $232,340 | $232,340 |
| 2014 | $169,200 | $29,300 | $0 | $198,500 | $198,500 |
| 2013 | $169,200 | $29,300 | $0 | $198,500 | $198,500 |
| 2012 | $169,200 | $29,300 | $0 | $0 | $0 |
| 2011 | $159,700 | $29,300 | $0 | $0 | $0 |
| 2010 | $142,500 | $29,300 | $0 | $0 | $0 |
| 2009 | $161,600 | $29,300 | $0 | $0 | $0 |
| 2008 | $144,200 | $29,300 | $0 | $0 | $0 |
| 2007 | $144,200 | $29,300 | $0 | $0 | $0 |
Deed and Sales History
| 1 | 07/13/2017 | SWD | STATUTORY WARRANTY DEED | SCHROETLIN DAVID ALAN | DELAUTER BARBARA A | | | $325,000.00 | 132777 | 2017-05375 |
| 2 | 06/09/2014 | SWD | STATUTORY WARRANTY DEED | JUBB PAUL C | SCHROETLIN DAVID ALAN | | | $255,000.00 | 126039 | 2014-03945 |
| 3 | 10/17/2012 | QCD | QUIT CLAIM DEED | JUBB, ALLISON | JUBB, PAUL C | | | $0.00 | 122813 | 2012-09145 |
| 4 | 07/29/2005 | WARRANTY D | WARRANTY DEED | RIOMONDO, MARK & KAREN | JUBB, PAUL C | | | $175,000.00 | 108077 | 2005-09281 |
| 5 | 06/15/2001 | WARRANTY D | WARRANTY DEED | | | | | $138,000.00 | 97387 | 3150-106322 |
Payout Agreement
| No payout information available.. |