Property
Account |
| Property ID: | 8518 | Abbreviated Legal Description: | WATERTOWN LOT 2 BLK 16 LESS N 2.35'; N 7' OF LOT 3 BLK 16 |
| Parcel Number: | 360721731602 | Agent Code: | |
| Type: | Real | | |
| Tax Area: | 1 - OL-140-F | Land Use Code | 11 |
| Open Space: | N | DFL | N |
| Historic Property: | N | Remodel Property: | N |
| Multi-Family Redevelopment: | N | | |
| Township: | 7 | Section: | 21 |
| Range: | 36 |
Location |
| Address: | 223 S ROOSEVELT ST WA 99362 | Mapsco: | |
| Neighborhood: | A-SFR | Map ID: | |
| Neighborhood CD: | 513011 |
Owner |
| Name: | ANDERSON EMILY J | Owner ID: | 56695 |
| Mailing Address: | 223 S ROOSEVELT ST WALLA WALLA, WA 99362 | % Ownership: | 100.0000000000% |
| | | Exemptions: | |
Taxes and Assessment Details
Values
| (+) Improvement Homesite Value: | + | N/A | |
| (+) Improvement Non-Homesite Value: | + | N/A | |
| (+) Land Homesite Value: | + | N/A | |
| (+) Land Non-Homesite Value: | + | N/A | Ag / Timber Use Value |
| (+) Curr Use (HS): | + | N/A | N/A |
| (+) Curr Use (NHS): | + | N/A | N/A |
| | | -------------------------- | |
| (=) Market Value: | = | N/A | |
| (–) Productivity Loss: | – | N/A | |
| | | -------------------------- | |
| (=) Subtotal: | = | N/A | |
| (+) Senior Appraised Value: | + | N/A | |
| (+) Non-Senior Appraised Value: | + | N/A | |
| | | -------------------------- | |
| (=) Total Appraised Value: | = | N/A | |
| (–) Senior Exemption Loss: | – | N/A | |
| (–) Exemption Loss: | – | N/A | |
| | | -------------------------- | |
| (=) Taxable Value: | = | N/A | |
Taxing Jurisdiction
| Owner: | ANDERSON EMILY J | | |
| % Ownership: | 100.0000000000% | | |
| Total Value: | N/A | | |
| Tax Area: | 1 - OL-140-F |
| CERFD | CURRENT EXPENSE REFUND 010 | N/A | N/A | N/A | N/A | | |
| CURREXP | CURRENT EXPENSE 010 | N/A | N/A | N/A | N/A | | |
| HUMNSERV | HUMAN SERVICES 119 | N/A | N/A | N/A | N/A | | |
| SLDREL | SOLDIERS RELIEF 121 | N/A | N/A | N/A | N/A | | |
| EMERGSER | EMS 147 | N/A | N/A | N/A | N/A | | |
| EMSRFD | EMS REFUND 147 | N/A | N/A | N/A | N/A | | |
| PORTRFD | PORT REFUND 640 | N/A | N/A | N/A | N/A | | |
| PORTWWGEN | PORT OF WW 640 | N/A | N/A | N/A | N/A | | |
| SD140BOND | SD #140 BOND 764 | N/A | N/A | N/A | N/A | | |
| SD140GEN | SD #140 GENERAL 760 | N/A | N/A | N/A | N/A | | |
| ST2 | STATE SCHOOL PART 2 600 | N/A | N/A | N/A | N/A | | |
| STATESCHL | STATE SCHOOL 600 | N/A | N/A | N/A | N/A | | |
| STREFUND | STATE REFUND LEVY 603 | N/A | N/A | N/A | N/A | | |
| CWWBOND | C OF WW BOND 643 | N/A | N/A | N/A | N/A | | |
| CWWGEN | CITY OF WW 631 | N/A | N/A | N/A | N/A | | |
| CWWRFD | CITY OF WALLA WALLA REFUND 631 | N/A | N/A | N/A | N/A | | |
| | Total Tax Rate: | N/A | | | | | |
| | | | | Taxes w/Current Exemptions: | N/A | | |
| | | | | Taxes w/o Exemptions: | N/A | | |
Improvement / Building
| Improvement #1: | RESIDENTIAL | State Code: | 11 | 1258.0 sqft | Value: | N/A |
| Exterior Wall: | SIDING | Heating/Cooling: | FORCED AIR | | Number of Bathrooms: | 2 | Number of Bedrooms: | 2 | | Plumbing: | 9 | Roof Covering: | COMP SHINGLE |
|
| | Type | Description | Class CD | Sub Class CD | Year Built | Area |
| | MA | Main Area | 4 | 35 | 1947 | 1258.0 |
| | UPFL | Upper Floor (included in main area) | 4 | 35 | 1947 | 216.0 |
| | SI1 | SITE IMPROVEMENT | 4 | 35 | 1947 | 1.0 |
| | BASE | BASEMENT | 4 | 35 | 1947 | 120.0 |
| | S1F | Single One Story Fireplace | 4 | 35 | 1947 | 1.0 |
| | DTG | Detached Garage | 4 | 35 | 1947 | 216.0 |
Sketch
Property Image
Land
| 1 | RES 1 | Converted: Residential | 0.1256 | 5472.00 | 0.00 | 0.00 | 1.00 | N/A | N/A |
Roll Value History
| 2026 | N/A | N/A | N/A | N/A | N/A |
| 2025 | $290,350 | $54,720 | $0 | $345,070 | $345,070 |
| 2024 | $241,960 | $54,720 | $0 | $296,680 | $296,680 |
| 2023 | $263,030 | $34,200 | $0 | $297,230 | $297,230 |
| 2022 | $250,500 | $34,200 | $0 | $284,700 | $284,700 |
| 2021 | $208,750 | $34,200 | $0 | $242,950 | $242,950 |
| 2020 | $160,580 | $34,200 | $0 | $194,780 | $194,780 |
| 2019 | $160,580 | $34,200 | $0 | $194,780 | $194,780 |
| 2018 | $152,930 | $34,200 | $0 | $187,130 | $187,130 |
| 2017 | $157,340 | $21,900 | $0 | $179,240 | $179,240 |
| 2016 | $143,030 | $21,900 | $0 | $164,930 | $164,930 |
| 2015 | $130,030 | $21,900 | $0 | $151,930 | $151,930 |
| 2014 | $74,300 | $21,900 | $0 | $96,200 | $96,200 |
| 2013 | $74,300 | $21,900 | $0 | $96,200 | $96,200 |
| 2012 | $69,200 | $21,900 | $0 | $0 | $0 |
| 2011 | $69,200 | $21,900 | $0 | $0 | $0 |
| 2010 | $60,900 | $21,900 | $0 | $0 | $0 |
| 2009 | $70,100 | $21,900 | $0 | $0 | $0 |
| 2008 | $70,100 | $21,900 | $0 | $0 | $0 |
| 2007 | $70,100 | $21,900 | $0 | $0 | $0 |
Deed and Sales History
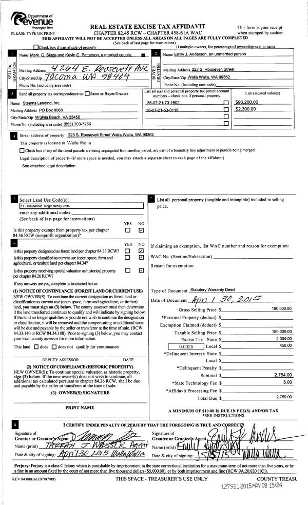
| 1 | 05/08/2015 | SWD | STATUTORY WARRANTY DEED | SLUGA MARK G | ANDERSON EMILY J | | 2-PARCELS | $180,000.00 | 127931 | 2015-03906 |
|   | |
| 2 | 04/16/2007 | WARRANTY D | WARRANTY DEED | SLUGA MARK G | SLUGA MARK G | | | | 112631 | 2007-04221 |
| 3 | 12/05/2006 | WARRANTY D | WARRANTY DEED | MASONER JOHN W | SLUGA MARK G | | | | 111811 | 2006-14476 |
| 4 | 12/24/1996 | WARRANTY D | WARRANTY DEED | | | | | $68,750.00 | 87436 | 2479-612732 |
|   | |
Payout Agreement
| No payout information available.. |