Property
Account |
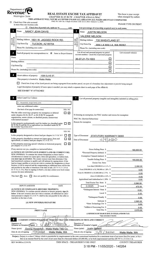
| Property ID: | 8487 | Abbreviated Legal Description: | WATERTOWN LOT 3 BLK 10 |
| Parcel Number: | 360721731003 | Agent Code: | |
| Type: | Real | | |
| Tax Area: | 1 - OL-140-F | Land Use Code | 11 |
| Open Space: | N | DFL | N |
| Historic Property: | N | Remodel Property: | N |
| Multi-Family Redevelopment: | N | | |
| Township: | 7 | Section: | 21 |
| Range: | 36 |
Location |
| Address: | 1538 OLIVE ST WA 99362 | Mapsco: | |
| Neighborhood: | A-SFR | Map ID: | |
| Neighborhood CD: | 513011 |
Owner |
| Name: | NELSON JUSTIN & VALERIE | Owner ID: | 63227 |
| Mailing Address: | 720 WHEATLAND ST WALLA WALLA, WA 99362 | % Ownership: | 100.0000000000% |
| | | Exemptions: | |
Taxes and Assessment Details
Property Tax Information as of
02/21/2026
Click on "Statement Details" to expand or collapse a tax statement.
* Please enter a valid date ** Please enter a valid date *
Statement Details |
| | TOTAL: | $0.00 | $0.00 | $0.00 | $0.00 | $0.00 | $0.00 |
|
| | $0.00 | $0.00 | $0.00 | $0.00 | $0.00 | $0.00 |
Values
| (+) Improvement Homesite Value: | + | $0 | |
| (+) Improvement Non-Homesite Value: | + | $188,810 | |
| (+) Land Homesite Value: | + | $0 | |
| (+) Land Non-Homesite Value: | + | $46,880 | |
| (+) Curr Use (HS): | + | $0 | $0 |
| (+) Curr Use (NHS): | + | $0 | $0 |
| | | -------------------------- | |
| (=) Market Value: | = | $235,690 | |
| (–) Productivity Loss: | – | $0 | |
| | | -------------------------- | |
| (=) Subtotal: | = | $235,690 | |
| (+) Senior Appraised Value: | + | $0 | |
| (+) Non-Senior Appraised Value: | + | $235,690 | |
| | | -------------------------- | |
| (=) Total Appraised Value: | = | $235,690 | |
| (–) Senior Exemption Loss: | – | $0 | |
| (–) Exemption Loss: | – | $0 | |
| | | -------------------------- | |
| (=) Taxable Value: | = | $235,690 | |
Taxing Jurisdiction
| Owner: | NELSON JUSTIN & VALERIE | | |
| % Ownership: | 100.0000000000% | | |
| Total Value: | $235,690 | | |
| Tax Area: | 1 - OL-140-F |
| CERFD | CURRENT EXPENSE REFUND 010 | 0.0000000000 | $235,690 | $235,690 | $0.00 | | |
| CURREXP | CURRENT EXPENSE 010 | 1.0175366760 | $235,690 | $235,690 | $239.82 | | |
| HUMNSERV | HUMAN SERVICES 119 | 0.0250000000 | $235,690 | $235,690 | $5.89 | | |
| SLDREL | SOLDIERS RELIEF 121 | 0.0155990005 | $235,690 | $235,690 | $3.68 | | |
| EMERGSER | EMS 147 | 0.3792580840 | $235,690 | $235,690 | $89.39 | | |
| EMSRFD | EMS REFUND 147 | 0.0000000000 | $235,690 | $235,690 | $0.00 | | |
| PORTRFD | PORT REFUND 640 | 0.0000000000 | $235,690 | $235,690 | $0.00 | | |
| PORTWWGEN | PORT OF WW 640 | 0.2460186015 | $235,690 | $235,690 | $57.98 | | |
| SD140BOND | SD #140 BOND 764 | 0.8342371393 | $235,690 | $235,690 | $196.62 | | |
| SD140GEN | SD #140 GENERAL 760 | 2.0646500647 | $235,690 | $235,690 | $486.62 | | |
| ST2 | STATE SCHOOL PART 2 600 | 0.8131451643 | $235,690 | $235,690 | $191.65 | | |
| STATESCHL | STATE SCHOOL 600 | 1.5158548041 | $235,690 | $235,690 | $357.27 | | |
| STREFUND | STATE REFUND LEVY 603 | 0.0000000000 | $235,690 | $235,690 | $0.00 | | |
| CWWBOND | C OF WW BOND 643 | 0.2760494372 | $235,690 | $235,690 | $65.06 | | |
| CWWGEN | CITY OF WW 631 | 1.6100204973 | $235,690 | $235,690 | $379.47 | | |
| CWWRFD | CITY OF WALLA WALLA REFUND 631 | 0.0000000000 | $235,690 | $235,690 | $0.00 | | |
| | Total Tax Rate: | 8.7973694689 | | | | | |
| | | | | Taxes w/Current Exemptions: | $2,073.45 | | |
| | | | | Taxes w/o Exemptions: | $2,073.45 | | |
Improvement / Building
| Improvement #1: | RESIDENTIAL | State Code: | 11 | 950.0 sqft | Value: | $188,810 |
| Exterior Wall: | SIDING | Heating/Cooling: | WARM & COOLED AIR | | Number of Bathrooms: | 1 | Number of Bedrooms: | 2 | | Plumbing: | 6 | Roof Covering: | COMP SHINGLE |
|
| | Type | Description | Class CD | Sub Class CD | Year Built | Area |
| | MA | Main Area | 1 | 25 | 1921 | 950.0 |
| | SI1 | SITE IMPROVEMENT | 1 | 25 | 1921 | 1.0 |
| | BASE | BASEMENT | 1 | 25 | 1921 | 192.0 |
| | RPC | OPEN PORCH W/ROOF , CEILED | 1 | 25 | 1921 | 70.0 |
| | DTG | Detached Garage | 1 | 25 | 1921 | 180.0 |
Sketch
Property Image
Land
| 1 | RES 1 | Converted: Residential | 0.1722 | 7500.00 | 0.00 | 0.00 | 1.00 | $46,880 | $0 |
Roll Value History
| 2026 | N/A | N/A | N/A | N/A | N/A |
| 2025 | $181,960 | $75,000 | $0 | $256,960 | $256,960 |
| 2024 | $165,420 | $75,000 | $0 | $240,420 | $240,420 |
| 2023 | $188,810 | $46,880 | $0 | $235,690 | $235,690 |
| 2022 | $171,650 | $46,880 | $0 | $218,530 | $218,530 |
| 2021 | $143,040 | $46,880 | $0 | $189,920 | $189,920 |
| 2020 | $105,960 | $46,880 | $0 | $152,840 | $152,840 |
| 2019 | $105,960 | $46,880 | $0 | $152,840 | $152,840 |
| 2018 | $100,910 | $46,880 | $0 | $147,790 | $147,790 |
| 2017 | $99,440 | $30,000 | $0 | $129,440 | $129,440 |
| 2016 | $94,700 | $30,000 | $0 | $124,700 | $124,700 |
| 2015 | $94,700 | $30,000 | $0 | $124,700 | $124,700 |
| 2014 | $94,700 | $30,000 | $0 | $124,700 | $124,700 |
| 2013 | $94,700 | $30,000 | $0 | $124,700 | $124,700 |
| 2012 | $102,800 | $30,000 | $0 | $0 | $0 |
| 2011 | $102,800 | $30,000 | $0 | $0 | $0 |
| 2010 | $96,500 | $30,000 | $0 | $0 | $0 |
| 2009 | $110,500 | $30,000 | $0 | $0 | $0 |
| 2008 | $82,400 | $30,000 | $0 | $0 | $0 |
| 2007 | $82,400 | $30,000 | $0 | $0 | $0 |
Deed and Sales History
| 1 | 11/05/2020 | SWD | STATUTORY WARRANTY DEED | DAVIS NANCY JEAN | NELSON JUSTIN & VALERIE | | | $190,000.00 | 140264 | 2020-11613 |
| 2 | 09/10/2018 | SWD | STATUTORY WARRANTY DEED | DAHLIN DAVID L & NORITA E | DAVIS NANCY JEAN | | | $169,000.00 | 135509 | 2018-07513 |
| 3 | 01/22/1986 | WARRANTY D | WARRANTY DEED | | | | | $39,900.00 | 0 | 1179-09062 |
Payout Agreement
| No payout information available.. |