Property
Account |
| Property ID: | 8482 | Abbreviated Legal Description: | WATERTOWN LOT 5 BLK 9 |
| Parcel Number: | 360721730905 | Agent Code: | |
| Type: | Real | | |
| Tax Area: | 1 - OL-140-F | Land Use Code | 11 |
| Open Space: | N | DFL | N |
| Historic Property: | N | Remodel Property: | N |
| Multi-Family Redevelopment: | N | | |
| Township: | 7 | Section: | 21 |
| Range: | 36 |
Location |
| Address: | 1404 OLIVE ST WA 99362 | Mapsco: | |
| Neighborhood: | A-SFR | Map ID: | |
| Neighborhood CD: | 513011 |
Owner |
| Name: | FAZZARI RODNEY & KIMBERLY | Owner ID: | 68434 |
| Mailing Address: | PETER FAZZARI 1404 OLIVE ST WALLA WALLA, WA 99362 | % Ownership: | 100.0000000000% |
| | | Exemptions: | |
Taxes and Assessment Details
Property Tax Information as of
02/21/2026
Click on "Statement Details" to expand or collapse a tax statement.
* Please enter a valid date ** Please enter a valid date *
Statement Details |
| | TOTAL: | $0.00 | $0.00 | $0.00 | $0.00 | $0.00 | $0.00 |
|
| | $0.00 | $0.00 | $0.00 | $0.00 | $0.00 | $0.00 |
Values
| (+) Improvement Homesite Value: | + | $0 | |
| (+) Improvement Non-Homesite Value: | + | $244,310 | |
| (+) Land Homesite Value: | + | $0 | |
| (+) Land Non-Homesite Value: | + | $46,880 | |
| (+) Curr Use (HS): | + | $0 | $0 |
| (+) Curr Use (NHS): | + | $0 | $0 |
| | | -------------------------- | |
| (=) Market Value: | = | $291,190 | |
| (–) Productivity Loss: | – | $0 | |
| | | -------------------------- | |
| (=) Subtotal: | = | $291,190 | |
| (+) Senior Appraised Value: | + | $0 | |
| (+) Non-Senior Appraised Value: | + | $291,190 | |
| | | -------------------------- | |
| (=) Total Appraised Value: | = | $291,190 | |
| (–) Senior Exemption Loss: | – | $0 | |
| (–) Exemption Loss: | – | $0 | |
| | | -------------------------- | |
| (=) Taxable Value: | = | $291,190 | |
Taxing Jurisdiction
| Owner: | FAZZARI RODNEY & KIMBERLY | | |
| % Ownership: | 100.0000000000% | | |
| Total Value: | $291,190 | | |
| Tax Area: | 1 - OL-140-F |
| CERFD | CURRENT EXPENSE REFUND 010 | 0.0000000000 | $291,190 | $291,190 | $0.00 | | |
| CURREXP | CURRENT EXPENSE 010 | 1.0175366760 | $291,190 | $291,190 | $296.30 | | |
| HUMNSERV | HUMAN SERVICES 119 | 0.0250000000 | $291,190 | $291,190 | $7.28 | | |
| SLDREL | SOLDIERS RELIEF 121 | 0.0155990005 | $291,190 | $291,190 | $4.54 | | |
| EMERGSER | EMS 147 | 0.3792580840 | $291,190 | $291,190 | $110.44 | | |
| EMSRFD | EMS REFUND 147 | 0.0000000000 | $291,190 | $291,190 | $0.00 | | |
| PORTRFD | PORT REFUND 640 | 0.0000000000 | $291,190 | $291,190 | $0.00 | | |
| PORTWWGEN | PORT OF WW 640 | 0.2460186015 | $291,190 | $291,190 | $71.64 | | |
| SD140BOND | SD #140 BOND 764 | 0.8342371393 | $291,190 | $291,190 | $242.92 | | |
| SD140GEN | SD #140 GENERAL 760 | 2.0646500647 | $291,190 | $291,190 | $601.21 | | |
| ST2 | STATE SCHOOL PART 2 600 | 0.8131451643 | $291,190 | $291,190 | $236.78 | | |
| STATESCHL | STATE SCHOOL 600 | 1.5158548041 | $291,190 | $291,190 | $441.40 | | |
| STREFUND | STATE REFUND LEVY 603 | 0.0000000000 | $291,190 | $291,190 | $0.00 | | |
| CWWBOND | C OF WW BOND 643 | 0.2760494372 | $291,190 | $291,190 | $80.38 | | |
| CWWGEN | CITY OF WW 631 | 1.6100204973 | $291,190 | $291,190 | $468.82 | | |
| CWWRFD | CITY OF WALLA WALLA REFUND 631 | 0.0000000000 | $291,190 | $291,190 | $0.00 | | |
| | Total Tax Rate: | 8.7973694689 | | | | | |
| | | | | Taxes w/Current Exemptions: | $2,561.71 | | |
| | | | | Taxes w/o Exemptions: | $2,561.71 | | |
Improvement / Building
| Improvement #1: | RESIDENTIAL | State Code: | 11 | 1008.0 sqft | Value: | $244,310 |
| Exterior Wall: | PLYWOOD | Heating/Cooling: | WARM & COOLED AIR | | Number of Bathrooms: | 2 | Number of Bedrooms: | 2 | | Plumbing: | 9 | Roof Covering: | COMP SHINGLE |
|
| | Type | Description | Class CD | Sub Class CD | Year Built | Area |
| | MA | Main Area | 1 | 30 | 1916 | 1008.0 |
| | SI1 | SITE IMPROVEMENT | 1 | 30 | 1916 | 1.0 |
| | DTG | Detached Garage | 1 | 30 | 1916 | 720.0 |
Sketch
Property Image
Land
| 1 | RES 1 | Converted: Residential | 0.1722 | 7500.00 | 0.00 | 0.00 | 1.00 | $46,880 | $0 |
Roll Value History
| 2026 | N/A | N/A | N/A | N/A | N/A |
| 2025 | $222,880 | $75,000 | $0 | $297,880 | $297,880 |
| 2024 | $222,880 | $75,000 | $0 | $297,880 | $297,880 |
| 2023 | $244,310 | $46,880 | $0 | $291,190 | $291,190 |
| 2022 | $244,310 | $46,880 | $0 | $291,190 | $291,190 |
| 2021 | $180,970 | $46,880 | $0 | $227,850 | $227,850 |
| 2020 | $129,270 | $46,880 | $0 | $176,150 | $176,150 |
| 2019 | $129,270 | $46,880 | $0 | $176,150 | $176,150 |
| 2018 | $123,110 | $46,880 | $0 | $169,990 | $169,990 |
| 2017 | $138,920 | $30,000 | $0 | $168,920 | $168,920 |
| 2016 | $132,300 | $30,000 | $0 | $162,300 | $162,300 |
| 2015 | $132,300 | $30,000 | $0 | $162,300 | $162,300 |
| 2014 | $88,200 | $30,000 | $0 | $118,200 | $118,200 |
| 2013 | $88,200 | $30,000 | $0 | $118,200 | $118,200 |
| 2012 | $98,700 | $30,000 | $0 | $0 | $0 |
| 2011 | $98,700 | $30,000 | $0 | $0 | $0 |
| 2010 | $98,700 | $30,000 | $0 | $0 | $0 |
| 2009 | $113,000 | $30,000 | $0 | $0 | $0 |
| 2008 | $84,400 | $30,000 | $0 | $0 | $0 |
| 2007 | $84,400 | $30,000 | $0 | $0 | $0 |
Deed and Sales History
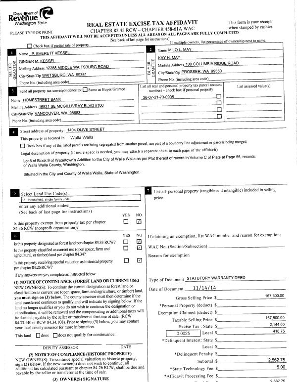
| 1 | 11/24/2020 | SWD | STATUTORY WARRANTY DEED | MAY MILO L & KAY H | FAZZARI RODNEY & KIMBERLY | | | $235,000.00 | 140417 | 2020-12451 |
| 2 | 11/20/2014 | SWD | STATUTORY WARRANTY DEED | KESSEL P EVERETT & GINGER | MAY MILO L & KAY H | | | $167,500.00 | 126971 | 2014-08417 |
| 3 | 11/02/1999 | WARRANTY D | WARRANTY DEED | | | | | $30,000.00 | 93947 | 2919-912581 |
Payout Agreement
| No payout information available.. |