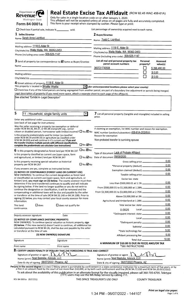
Property
Account |
| Property ID: | 8452 | Abbreviated Legal Description: | WATERTOWN LOT 8 BLK 5 |
| Parcel Number: | 360721730508 | Agent Code: | |
| Type: | Real | | |
| Tax Area: | 1 - OL-140-F | Land Use Code | 11 |
| Open Space: | N | DFL | N |
| Historic Property: | N | Remodel Property: | N |
| Multi-Family Redevelopment: | N | | |
| Township: | 7 | Section: | 21 |
| Range: | 36 |
Location |
| Address: | 1118 E ALDER ST WA 99362 | Mapsco: | |
| Neighborhood: | A-SFR | Map ID: | |
| Neighborhood CD: | 513011 |
Owner |
| Name: | LIGHTFOOT TODD C | Owner ID: | 58176 |
| Mailing Address: | 1118 E ALDER ST WALLA WALLA, WA 99362 | % Ownership: | 100.0000000000% |
| | | Exemptions: | |
Taxes and Assessment Details
Property Tax Information as of
02/21/2026
Click on "Statement Details" to expand or collapse a tax statement.
* Please enter a valid date ** Please enter a valid date *
Statement Details |
| | TOTAL: | $0.00 | $0.00 | $0.00 | $0.00 | $0.00 | $0.00 |
|
| | $0.00 | $0.00 | $0.00 | $0.00 | $0.00 | $0.00 |
Values
| (+) Improvement Homesite Value: | + | $0 | |
| (+) Improvement Non-Homesite Value: | + | $374,690 | |
| (+) Land Homesite Value: | + | $0 | |
| (+) Land Non-Homesite Value: | + | $46,880 | |
| (+) Curr Use (HS): | + | $0 | $0 |
| (+) Curr Use (NHS): | + | $0 | $0 |
| | | -------------------------- | |
| (=) Market Value: | = | $421,570 | |
| (–) Productivity Loss: | – | $0 | |
| | | -------------------------- | |
| (=) Subtotal: | = | $421,570 | |
| (+) Senior Appraised Value: | + | $0 | |
| (+) Non-Senior Appraised Value: | + | $421,570 | |
| | | -------------------------- | |
| (=) Total Appraised Value: | = | $421,570 | |
| (–) Senior Exemption Loss: | – | $0 | |
| (–) Exemption Loss: | – | $0 | |
| | | -------------------------- | |
| (=) Taxable Value: | = | $421,570 | |
Taxing Jurisdiction
| Owner: | LIGHTFOOT TODD C | | |
| % Ownership: | 100.0000000000% | | |
| Total Value: | $421,570 | | |
| Tax Area: | 1 - OL-140-F |
| CERFD | CURRENT EXPENSE REFUND 010 | 0.0000000000 | $421,570 | $421,570 | $0.00 | | |
| CURREXP | CURRENT EXPENSE 010 | 1.0175366760 | $421,570 | $421,570 | $428.96 | | |
| HUMNSERV | HUMAN SERVICES 119 | 0.0250000000 | $421,570 | $421,570 | $10.54 | | |
| SLDREL | SOLDIERS RELIEF 121 | 0.0155990005 | $421,570 | $421,570 | $6.58 | | |
| EMERGSER | EMS 147 | 0.3792580840 | $421,570 | $421,570 | $159.88 | | |
| EMSRFD | EMS REFUND 147 | 0.0000000000 | $421,570 | $421,570 | $0.00 | | |
| PORTRFD | PORT REFUND 640 | 0.0000000000 | $421,570 | $421,570 | $0.00 | | |
| PORTWWGEN | PORT OF WW 640 | 0.2460186015 | $421,570 | $421,570 | $103.71 | | |
| SD140BOND | SD #140 BOND 764 | 0.8342371393 | $421,570 | $421,570 | $351.69 | | |
| SD140GEN | SD #140 GENERAL 760 | 2.0646500647 | $421,570 | $421,570 | $870.39 | | |
| ST2 | STATE SCHOOL PART 2 600 | 0.8131451643 | $421,570 | $421,570 | $342.80 | | |
| STATESCHL | STATE SCHOOL 600 | 1.5158548041 | $421,570 | $421,570 | $639.04 | | |
| STREFUND | STATE REFUND LEVY 603 | 0.0000000000 | $421,570 | $421,570 | $0.00 | | |
| CWWBOND | C OF WW BOND 643 | 0.2760494372 | $421,570 | $421,570 | $116.37 | | |
| CWWGEN | CITY OF WW 631 | 1.6100204973 | $421,570 | $421,570 | $678.74 | | |
| CWWRFD | CITY OF WALLA WALLA REFUND 631 | 0.0000000000 | $421,570 | $421,570 | $0.00 | | |
| | Total Tax Rate: | 8.7973694689 | | | | | |
| | | | | Taxes w/Current Exemptions: | $3,708.70 | | |
| | | | | Taxes w/o Exemptions: | $3,708.70 | | |
Improvement / Building
| Improvement #1: | RESIDENTIAL | State Code: | 11 | 1624.0 sqft | Value: | $374,690 |
| Exterior Wall: | STUCCO | Heating/Cooling: | HEAT PUMP | | Number of Bathrooms: | 3 | Number of Bedrooms: | 4 | | Plumbing: | 12 | Roof Covering: | COMP SHINGLE |
|
| | Type | Description | Class CD | Sub Class CD | Year Built | Area |
| | MA | Main Area | 4 | 35 | 1937 | 1624.0 |
| | UPFL | Upper Floor (included in main area) | 4 | 35 | 1937 | 312.0 |
| | SI1 | SITE IMPROVEMENT | 4 | 35 | 1937 | 2.0 |
| | BASE | BASEMENT | 4 | 35 | 1937 | 832.0 |
| | BPF | BASEMENT -PARTITIONED FINISH | 4 | 35 | 1937 | 832.0 |
| | S1F | Single One Story Fireplace | 4 | 35 | 1937 | 1.0 |
| | UTST | Utility Storage Shed | 4 | 35 | 1937 | 240.0 |
| | CPC | COVERED CARPORT/PATIO | 4 | 35 | 1937 | 250.0 |
| | DTG | Detached Garage | 4 | 35 | 1937 | 400.0 |
Sketch
Property Image
Land
| 1 | RES 1 | Converted: Residential | 0.1722 | 7500.00 | 0.00 | 0.00 | 1.00 | $46,880 | $0 |
Roll Value History
| 2026 | N/A | N/A | N/A | N/A | N/A |
| 2025 | $344,570 | $75,000 | $0 | $419,570 | $419,570 |
| 2024 | $344,570 | $75,000 | $0 | $419,570 | $419,570 |
| 2023 | $374,690 | $46,880 | $0 | $421,570 | $421,570 |
| 2022 | $356,850 | $46,880 | $0 | $403,730 | $403,730 |
| 2021 | $274,500 | $46,880 | $0 | $321,380 | $321,380 |
| 2020 | $219,600 | $46,880 | $0 | $266,480 | $266,480 |
| 2019 | $219,600 | $46,880 | $0 | $266,480 | $266,480 |
| 2018 | $209,140 | $46,880 | $0 | $256,020 | $256,020 |
| 2017 | $223,330 | $30,000 | $0 | $253,330 | $253,330 |
| 2016 | $194,200 | $30,000 | $0 | $224,200 | $224,200 |
| 2015 | $194,200 | $30,000 | $0 | $224,200 | $224,200 |
| 2014 | $194,200 | $30,000 | $0 | $224,200 | $224,200 |
| 2013 | $194,200 | $30,000 | $0 | $224,200 | $224,200 |
| 2012 | $194,200 | $30,000 | $0 | $0 | $0 |
| 2011 | $136,100 | $30,000 | $0 | $0 | $0 |
| 2010 | $128,200 | $30,000 | $0 | $0 | $0 |
| 2009 | $145,800 | $30,000 | $0 | $0 | $0 |
| 2008 | $122,900 | $30,000 | $0 | $0 | $0 |
| 2007 | $122,900 | $30,000 | $0 | $0 | $0 |
Deed and Sales History
| 1 | 06/07/2022 | LOPA | LACK OF PROBATE AFFIDAVIT | LIGHTFOOT SARAH ANNE | LIGHTFOOT TODD C | | | | 144107 | 2022-04881 |
| 2 | 02/10/2016 | DEATH CERT | DEATH CERTIFICATE | LIGHTFOOT SARA A | LIGHTFOOT TODD C | | | | 0 | 2016-01041 |
| 3 | 02/10/2016 | COMMUNITY | COMMUNITY PROPERTY AGREEMENT | LIGHTFOOT TODD C & SARA | LIGHTFOOT TODD C & SARA | | | | 0 | 2016-01040 |
| 4 | 11/09/1998 | WARRANTY D | WARRANTY DEED | | | | | $85,000.00 | 91597 | 2759-812939 |
Payout Agreement
| No payout information available.. |