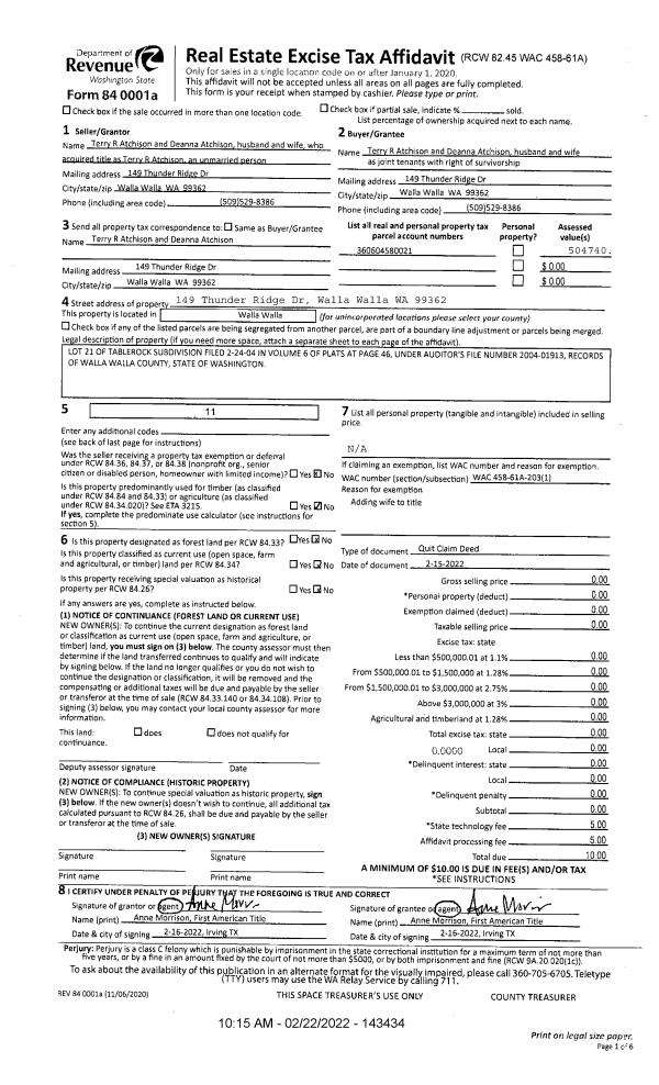
Property
Account |
| Property ID: | 8447 | Abbreviated Legal Description: | TABLEROCK SUBD LOT 21 |
| Parcel Number: | 360604580021 | Agent Code: | |
| Type: | Real | | |
| Tax Area: | 5 - OL-140 | Land Use Code | 11 |
| Open Space: | N | DFL | N |
| Historic Property: | N | Remodel Property: | N |
| Multi-Family Redevelopment: | N | | |
| Township: | 6 | Section: | 4 |
| Range: | 36 |
Location |
| Address: | 149 THUNDER RIDGE RD WA 99362 | Mapsco: | |
| Neighborhood: | VG Res Rural/City Inf | Map ID: | |
| Neighborhood CD: | 615012 |
Owner |
| Name: | ATCHISON TERRY R & DEANNA | Owner ID: | 71146 |
| Mailing Address: | 149 THUNDER RIDGE DR WALLA WALLA, WA 99362 | % Ownership: | 100.0000000000% |
| | | Exemptions: | |
Taxes and Assessment Details
Property Tax Information as of
02/21/2026
Click on "Statement Details" to expand or collapse a tax statement.
* Please enter a valid date ** Please enter a valid date *
Statement Details |
| | TOTAL: | $0.00 | $0.00 | $0.00 | $0.00 | $0.00 | $0.00 |
|
| | $0.00 | $0.00 | $0.00 | $0.00 | $0.00 | $0.00 |
Values
| (+) Improvement Homesite Value: | + | $0 | |
| (+) Improvement Non-Homesite Value: | + | $495,780 | |
| (+) Land Homesite Value: | + | $0 | |
| (+) Land Non-Homesite Value: | + | $120,000 | |
| (+) Curr Use (HS): | + | $0 | $0 |
| (+) Curr Use (NHS): | + | $0 | $0 |
| | | -------------------------- | |
| (=) Market Value: | = | $615,780 | |
| (–) Productivity Loss: | – | $0 | |
| | | -------------------------- | |
| (=) Subtotal: | = | $615,780 | |
| (+) Senior Appraised Value: | + | $0 | |
| (+) Non-Senior Appraised Value: | + | $615,780 | |
| | | -------------------------- | |
| (=) Total Appraised Value: | = | $615,780 | |
| (–) Senior Exemption Loss: | – | $0 | |
| (–) Exemption Loss: | – | $0 | |
| | | -------------------------- | |
| (=) Taxable Value: | = | $615,780 | |
Taxing Jurisdiction
| Owner: | ATCHISON TERRY R & DEANNA | | |
| % Ownership: | 100.0000000000% | | |
| Total Value: | $615,780 | | |
| Tax Area: | 5 - OL-140 |
| CERFD | CURRENT EXPENSE REFUND 010 | 0.0000000000 | $615,780 | $615,780 | $0.00 | | |
| CURREXP | CURRENT EXPENSE 010 | 1.0175366760 | $615,780 | $615,780 | $626.58 | | |
| HUMNSERV | HUMAN SERVICES 119 | 0.0250000000 | $615,780 | $615,780 | $15.39 | | |
| SLDREL | SOLDIERS RELIEF 121 | 0.0155990005 | $615,780 | $615,780 | $9.61 | | |
| EMERGSER | EMS 147 | 0.3792580840 | $615,780 | $615,780 | $233.54 | | |
| EMSRFD | EMS REFUND 147 | 0.0000000000 | $615,780 | $615,780 | $0.00 | | |
| PORTRFD | PORT REFUND 640 | 0.0000000000 | $615,780 | $615,780 | $0.00 | | |
| PORTWWGEN | PORT OF WW 640 | 0.2460186015 | $615,780 | $615,780 | $151.49 | | |
| SD140BOND | SD #140 BOND 764 | 0.8342371393 | $615,780 | $615,780 | $513.71 | | |
| SD140GEN | SD #140 GENERAL 760 | 2.0646500647 | $615,780 | $615,780 | $1,271.37 | | |
| ST2 | STATE SCHOOL PART 2 600 | 0.8131451643 | $615,780 | $615,780 | $500.72 | | |
| STATESCHL | STATE SCHOOL 600 | 1.5158548041 | $615,780 | $615,780 | $933.43 | | |
| STREFUND | STATE REFUND LEVY 603 | 0.0000000000 | $615,780 | $615,780 | $0.00 | | |
| CWWBOND | C OF WW BOND 643 | 0.2760494372 | $615,780 | $615,780 | $169.99 | | |
| CWWGEN | CITY OF WW 631 | 1.6100204973 | $615,780 | $615,780 | $991.42 | | |
| CWWRFD | CITY OF WALLA WALLA REFUND 631 | 0.0000000000 | $615,780 | $615,780 | $0.00 | | |
| | Total Tax Rate: | 8.7973694689 | | | | | |
| | | | | Taxes w/Current Exemptions: | $5,417.25 | | |
| | | | | Taxes w/o Exemptions: | $5,417.25 | | |
Improvement / Building
| Improvement #1: | RESIDENTIAL | State Code: | 11 | 2304.0 sqft | Value: | $495,780 |
| Exterior Wall: | STUCCO | Heating/Cooling: | WARM & COOLED AIR | | Number of Bathrooms: | 2.5 | Number of Bedrooms: | 3 | | Plumbing: | 13 | Roof Covering: | COMP SHINGLE |
|
| | Type | Description | Class CD | Sub Class CD | Year Built | Area |
| | MA | Main Area | 1 | 45 | 2004 | 2304.0 |
| | SI1 | SITE IMPROVEMENT | 1 | 45 | 2004 | 4.5 |
| | ATG | Attached Garage | 1 | 45 | 2004 | 625.0 |
| | RPO | OPEN PORCH W/ROOF | 1 | 45 | 2004 | 260.0 |
| | RPO | OPEN PORCH W/ROOF | 1 | 45 | 2004 | 52.0 |
| | GFP | GAS FIREPLACE | 1 | 45 | 2004 | 1.0 |
Sketch
Property Image
Land
| 1 | RES 1 | Converted: Residential | 0.2637 | 11486.00 | 0.00 | 0.00 | 1.00 | $120,000 | $0 |
Roll Value History
| 2026 | N/A | N/A | N/A | N/A | N/A |
| 2025 | $517,430 | $180,000 | $0 | $697,430 | $697,430 |
| 2024 | $520,570 | $120,000 | $0 | $640,570 | $640,570 |
| 2023 | $495,780 | $120,000 | $0 | $615,780 | $615,780 |
| 2022 | $450,710 | $95,000 | $0 | $545,710 | $545,710 |
| 2021 | $409,740 | $95,000 | $0 | $504,740 | $504,740 |
| 2020 | $303,510 | $95,000 | $0 | $398,510 | $398,510 |
| 2019 | $303,510 | $95,000 | $0 | $398,510 | $398,510 |
| 2018 | $342,080 | $50,000 | $0 | $392,080 | $392,080 |
| 2017 | $325,790 | $50,000 | $0 | $375,790 | $375,790 |
| 2016 | $310,280 | $50,000 | $0 | $360,280 | $360,280 |
| 2015 | $310,280 | $50,000 | $0 | $360,280 | $360,280 |
| 2014 | $295,500 | $50,000 | $0 | $345,500 | $345,500 |
| 2013 | $295,500 | $50,000 | $0 | $345,500 | $345,500 |
| 2012 | $268,000 | $55,000 | $0 | $0 | $0 |
| 2011 | $223,600 | $70,000 | $0 | $0 | $0 |
| 2010 | $223,600 | $70,000 | $0 | $0 | $0 |
| 2009 | $256,200 | $70,000 | $0 | $0 | $0 |
| 2008 | $256,200 | $70,000 | $0 | $0 | $0 |
| 2007 | $248,200 | $50,000 | $0 | $0 | $0 |
Deed and Sales History
| 1 | 02/15/2022 | QCD | QUIT CLAIM DEED | ATCHISON TERRY R | ATCHISON TERRY R & DEANNA | | | $0.00 | 143434 | 2022-01530 |
| 2 | 02/15/2022 | QCD | QUIT CLAIM DEED | ATCHISON TERRY R & DEANNA | ATCHISON TERRY R & DEANNA | | | $0.00 | 143406 | NO DEED |
| 3 | 09/19/2012 | WARRANTY D | WARRANTY DEED | GISH, BENJAMIN K & CONNIE | ATCHISON, TERRY R | | | $349,400.00 | 122664 | 2012-08172 |
| 4 | 07/15/2005 | WARRANTY D | WARRANTY DEED | BROWN, TERRY M & LORI A | GISH, BENJAMIN K & CONNIE | | | $313,500.00 | 107975 | 2005-08608 |
| 5 | 04/07/2004 | WARRANTY D | WARRANTY DEED | GATEWOOD, W PAUL | BROWN, TERRY M & LORI A | | | $56,000.00 | 104444 | 2004-03658 |
Payout Agreement
| No payout information available.. |