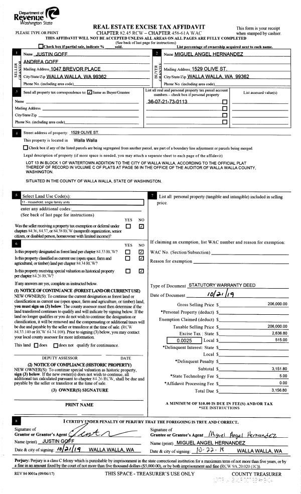
Property
Account |
| Property ID: | 8430 | Abbreviated Legal Description: | WATERTOWN LOT 13 BLK 1 |
| Parcel Number: | 360721730113 | Agent Code: | |
| Type: | Real | | |
| Tax Area: | 1 - OL-140-F | Land Use Code | 11 |
| Open Space: | N | DFL | N |
| Historic Property: | N | Remodel Property: | N |
| Multi-Family Redevelopment: | N | | |
| Township: | 7 | Section: | 21 |
| Range: | 36 |
Location |
| Address: | 1529 OLIVE ST WA 99362 | Mapsco: | |
| Neighborhood: | A-SFR | Map ID: | |
| Neighborhood CD: | 513011 |
Owner |
| Name: | HERNANDEZ MIGUEL ANGEL | Owner ID: | 66129 |
| Mailing Address: | 1529 OLIVE ST WALLA WALLA, WA 99362 | % Ownership: | 100.0000000000% |
| | | Exemptions: | |
Taxes and Assessment Details
Property Tax Information as of
02/21/2026
Click on "Statement Details" to expand or collapse a tax statement.
* Please enter a valid date ** Please enter a valid date *
Statement Details |
| | TOTAL: | $0.00 | $0.00 | $0.00 | $0.00 | $0.00 | $0.00 |
|
| | $0.00 | $0.00 | $0.00 | $0.00 | $0.00 | $0.00 |
Values
| (+) Improvement Homesite Value: | + | $0 | |
| (+) Improvement Non-Homesite Value: | + | $222,280 | |
| (+) Land Homesite Value: | + | $0 | |
| (+) Land Non-Homesite Value: | + | $46,880 | |
| (+) Curr Use (HS): | + | $0 | $0 |
| (+) Curr Use (NHS): | + | $0 | $0 |
| | | -------------------------- | |
| (=) Market Value: | = | $269,160 | |
| (–) Productivity Loss: | – | $0 | |
| | | -------------------------- | |
| (=) Subtotal: | = | $269,160 | |
| (+) Senior Appraised Value: | + | $0 | |
| (+) Non-Senior Appraised Value: | + | $269,160 | |
| | | -------------------------- | |
| (=) Total Appraised Value: | = | $269,160 | |
| (–) Senior Exemption Loss: | – | $0 | |
| (–) Exemption Loss: | – | $0 | |
| | | -------------------------- | |
| (=) Taxable Value: | = | $269,160 | |
Taxing Jurisdiction
| Owner: | HERNANDEZ MIGUEL ANGEL | | |
| % Ownership: | 100.0000000000% | | |
| Total Value: | $269,160 | | |
| Tax Area: | 1 - OL-140-F |
| CERFD | CURRENT EXPENSE REFUND 010 | 0.0000000000 | $269,160 | $269,160 | $0.00 | | |
| CURREXP | CURRENT EXPENSE 010 | 1.0175366760 | $269,160 | $269,160 | $273.88 | | |
| HUMNSERV | HUMAN SERVICES 119 | 0.0250000000 | $269,160 | $269,160 | $6.73 | | |
| SLDREL | SOLDIERS RELIEF 121 | 0.0155990005 | $269,160 | $269,160 | $4.20 | | |
| EMERGSER | EMS 147 | 0.3792580840 | $269,160 | $269,160 | $102.08 | | |
| EMSRFD | EMS REFUND 147 | 0.0000000000 | $269,160 | $269,160 | $0.00 | | |
| PORTRFD | PORT REFUND 640 | 0.0000000000 | $269,160 | $269,160 | $0.00 | | |
| PORTWWGEN | PORT OF WW 640 | 0.2460186015 | $269,160 | $269,160 | $66.22 | | |
| SD140BOND | SD #140 BOND 764 | 0.8342371393 | $269,160 | $269,160 | $224.54 | | |
| SD140GEN | SD #140 GENERAL 760 | 2.0646500647 | $269,160 | $269,160 | $555.72 | | |
| ST2 | STATE SCHOOL PART 2 600 | 0.8131451643 | $269,160 | $269,160 | $218.87 | | |
| STATESCHL | STATE SCHOOL 600 | 1.5158548041 | $269,160 | $269,160 | $408.01 | | |
| STREFUND | STATE REFUND LEVY 603 | 0.0000000000 | $269,160 | $269,160 | $0.00 | | |
| CWWBOND | C OF WW BOND 643 | 0.2760494372 | $269,160 | $269,160 | $74.30 | | |
| CWWGEN | CITY OF WW 631 | 1.6100204973 | $269,160 | $269,160 | $433.35 | | |
| CWWRFD | CITY OF WALLA WALLA REFUND 631 | 0.0000000000 | $269,160 | $269,160 | $0.00 | | |
| | Total Tax Rate: | 8.7973694689 | | | | | |
| | | | | Taxes w/Current Exemptions: | $2,367.90 | | |
| | | | | Taxes w/o Exemptions: | $2,367.90 | | |
Improvement / Building
| Improvement #1: | RESIDENTIAL | State Code: | 11 | 1404.0 sqft | Value: | $222,280 |
| Exterior Wall: | VINYL | Heating/Cooling: | WARM & COOLED AIR | | Number of Bathrooms: | 1 | Number of Bedrooms: | 4 | | Plumbing: | 6 | Roof Covering: | COMP SHINGLE |
|
| | Type | Description | Class CD | Sub Class CD | Year Built | Area |
| | MA | Main Area | 4 | 30 | 1946 | 1404.0 |
| | UPFL | Upper Floor (included in main area) | 4 | 30 | 1946 | 468.0 |
| | SI1 | SITE IMPROVEMENT | 4 | 30 | 1946 | 1.0 |
| | BASE | BASEMENT | 4 | 30 | 1946 | 780.0 |
| | OPS | OPEN PORCH W/STEPS | 4 | 30 | 1946 | 45.0 |
Sketch
Property Image
Land
| 1 | RES 1 | Converted: Residential | 0.1722 | 7500.00 | 0.00 | 0.00 | 1.00 | $46,880 | $0 |
Roll Value History
| 2026 | N/A | N/A | N/A | N/A | N/A |
| 2025 | $200,400 | $75,000 | $0 | $275,400 | $275,400 |
| 2024 | $200,400 | $75,000 | $0 | $275,400 | $275,400 |
| 2023 | $222,280 | $46,880 | $0 | $269,160 | $269,160 |
| 2022 | $202,080 | $46,880 | $0 | $248,960 | $248,960 |
| 2021 | $161,660 | $46,880 | $0 | $208,540 | $208,540 |
| 2020 | $134,720 | $46,880 | $0 | $181,600 | $181,600 |
| 2019 | $134,720 | $46,880 | $0 | $181,600 | $181,600 |
| 2018 | $122,470 | $46,880 | $0 | $169,350 | $169,350 |
| 2017 | $131,950 | $30,000 | $0 | $161,950 | $161,950 |
| 2016 | $119,950 | $30,000 | $0 | $149,950 | $149,950 |
| 2015 | $114,240 | $30,000 | $0 | $144,240 | $144,240 |
| 2014 | $108,800 | $30,000 | $0 | $138,800 | $138,800 |
| 2013 | $108,800 | $30,000 | $0 | $138,800 | $138,800 |
| 2012 | $108,800 | $30,000 | $0 | $0 | $0 |
| 2011 | $108,800 | $30,000 | $0 | $0 | $0 |
| 2010 | $96,200 | $30,000 | $0 | $0 | $0 |
| 2009 | $110,200 | $30,000 | $0 | $0 | $0 |
| 2008 | $86,800 | $30,000 | $0 | $0 | $0 |
| 2007 | $86,800 | $30,000 | $0 | $0 | $0 |
Deed and Sales History
| 1 | 10/22/2019 | SWD | STATUTORY WARRANTY DEED | GOFF JUSTIN | HERNANDEZ MIGUEL ANGEL | | | $206,000.00 | 137914 | 2019-08469 |
| 2 | 06/30/2004 | WARRANTY D | WARRANTY DEED | DE LA ROSA, ANTONIO & NATALIE | GOFF, JUSTIN | | | $115,000.00 | 105126 | 2004-07301 |
| 3 | 06/21/1999 | WARRANTY D | WARRANTY DEED | | | | | $81,500.00 | 93009 | 2859-907334 |
Payout Agreement
| No payout information available.. |