Property
Account |
| Property ID: | 8412 | Abbreviated Legal Description: | REEDS LOT 5 BLK 12 LESS W 60' LOT 6 BLK 12 LESS W 60' |
| Parcel Number: | 360721711213 | Agent Code: | |
| Type: | Real | | |
| Tax Area: | 1 - OL-140-F | Land Use Code | 11 |
| Open Space: | N | DFL | N |
| Historic Property: | N | Remodel Property: | N |
| Multi-Family Redevelopment: | N | | |
| Township: | 7 | Section: | 21 |
| Range: | 36 |
Location |
| Address: | 610 NEWELL ST WA 99362 | Mapsco: | |
| Neighborhood: | G-SFR | Map ID: | |
| Neighborhood CD: | 514011 |
Owner |
| Name: | ROBERTSON DAVID S | Owner ID: | 69868 |
| Mailing Address: | SHELLY JEAN PHIPPS 610 NEWELL ST WALLA WALLA, WA 99362 | % Ownership: | 100.0000000000% |
| | | Exemptions: | |
Taxes and Assessment Details
Property Tax Information as of
02/21/2026
Click on "Statement Details" to expand or collapse a tax statement.
* Please enter a valid date ** Please enter a valid date *
Statement Details |
| | TOTAL: | $0.00 | $0.00 | $0.00 | $0.00 | $0.00 | $0.00 |
|
| | $0.00 | $0.00 | $0.00 | $0.00 | $0.00 | $0.00 |
Values
| (+) Improvement Homesite Value: | + | $0 | |
| (+) Improvement Non-Homesite Value: | + | $268,800 | |
| (+) Land Homesite Value: | + | $0 | |
| (+) Land Non-Homesite Value: | + | $50,030 | |
| (+) Curr Use (HS): | + | $0 | $0 |
| (+) Curr Use (NHS): | + | $0 | $0 |
| | | -------------------------- | |
| (=) Market Value: | = | $318,830 | |
| (–) Productivity Loss: | – | $0 | |
| | | -------------------------- | |
| (=) Subtotal: | = | $318,830 | |
| (+) Senior Appraised Value: | + | $0 | |
| (+) Non-Senior Appraised Value: | + | $318,830 | |
| | | -------------------------- | |
| (=) Total Appraised Value: | = | $318,830 | |
| (–) Senior Exemption Loss: | – | $0 | |
| (–) Exemption Loss: | – | $0 | |
| | | -------------------------- | |
| (=) Taxable Value: | = | $318,830 | |
Taxing Jurisdiction
| Owner: | ROBERTSON DAVID S | | |
| % Ownership: | 100.0000000000% | | |
| Total Value: | $318,830 | | |
| Tax Area: | 1 - OL-140-F |
| CERFD | CURRENT EXPENSE REFUND 010 | 0.0000000000 | $318,830 | $318,830 | $0.00 | | |
| CURREXP | CURRENT EXPENSE 010 | 1.0175366760 | $318,830 | $318,830 | $324.42 | | |
| HUMNSERV | HUMAN SERVICES 119 | 0.0250000000 | $318,830 | $318,830 | $7.97 | | |
| SLDREL | SOLDIERS RELIEF 121 | 0.0155990005 | $318,830 | $318,830 | $4.97 | | |
| EMERGSER | EMS 147 | 0.3792580840 | $318,830 | $318,830 | $120.92 | | |
| EMSRFD | EMS REFUND 147 | 0.0000000000 | $318,830 | $318,830 | $0.00 | | |
| PORTRFD | PORT REFUND 640 | 0.0000000000 | $318,830 | $318,830 | $0.00 | | |
| PORTWWGEN | PORT OF WW 640 | 0.2460186015 | $318,830 | $318,830 | $78.44 | | |
| SD140BOND | SD #140 BOND 764 | 0.8342371393 | $318,830 | $318,830 | $265.98 | | |
| SD140GEN | SD #140 GENERAL 760 | 2.0646500647 | $318,830 | $318,830 | $658.27 | | |
| ST2 | STATE SCHOOL PART 2 600 | 0.8131451643 | $318,830 | $318,830 | $259.26 | | |
| STATESCHL | STATE SCHOOL 600 | 1.5158548041 | $318,830 | $318,830 | $483.30 | | |
| STREFUND | STATE REFUND LEVY 603 | 0.0000000000 | $318,830 | $318,830 | $0.00 | | |
| CWWBOND | C OF WW BOND 643 | 0.2760494372 | $318,830 | $318,830 | $88.01 | | |
| CWWGEN | CITY OF WW 631 | 1.6100204973 | $318,830 | $318,830 | $513.32 | | |
| CWWRFD | CITY OF WALLA WALLA REFUND 631 | 0.0000000000 | $318,830 | $318,830 | $0.00 | | |
| | Total Tax Rate: | 8.7973694689 | | | | | |
| | | | | Taxes w/Current Exemptions: | $2,804.86 | | |
| | | | | Taxes w/o Exemptions: | $2,804.86 | | |
Improvement / Building
| Improvement #1: | RESIDENTIAL | State Code: | 11 | 1305.0 sqft | Value: | $268,800 |
| Exterior Wall: | SIDING | Heating/Cooling: | FORCED AIR | | Number of Bathrooms: | 2 | Number of Bedrooms: | 2 | | Plumbing: | 10 | Roof Covering: | COMP SHINGLE |
|
| | Type | Description | Class CD | Sub Class CD | Year Built | Area |
| | MA | Main Area | 1 | 30 | 1957 | 1305.0 |
| | SI1 | SITE IMPROVEMENT | 1 | 30 | 1957 | 1.0 |
| | BASE | BASEMENT | 1 | 30 | 1957 | 1305.0 |
| | BPF | BASEMENT -PARTITIONED FINISH | 1 | 30 | 1957 | 1089.0 |
| | WDR | WOOD DECK W/ROOF | 1 | 30 | 1957 | 48.0 |
| | WOD | Wood Deck | 1 | 30 | 1957 | 435.0 |
| | UTST | Utility Storage Shed | 1 | 30 | 1957 | 120.0 |
| | ATG | Attached Garage | 1 | 30 | 1957 | 230.0 |
Sketch
Property Image
Land
| 1 | RES 1 | Converted: Residential | 0.1584 | 6900.00 | 0.00 | 0.00 | 1.00 | $50,030 | $0 |
Roll Value History
| 2026 | N/A | N/A | N/A | N/A | N/A |
| 2025 | $246,770 | $75,900 | $0 | $322,670 | $322,670 |
| 2024 | $246,770 | $75,900 | $0 | $322,670 | $322,670 |
| 2023 | $268,800 | $50,030 | $0 | $318,830 | $318,830 |
| 2022 | $244,360 | $50,030 | $0 | $294,390 | $294,390 |
| 2021 | $244,360 | $50,030 | $0 | $294,390 | $294,390 |
| 2020 | $187,970 | $50,030 | $0 | $238,000 | $238,000 |
| 2019 | $187,970 | $50,030 | $0 | $238,000 | $238,000 |
| 2018 | $179,020 | $50,030 | $0 | $229,050 | $229,050 |
| 2017 | $196,150 | $31,100 | $0 | $227,250 | $108,095 |
| 2016 | $178,320 | $31,100 | $0 | $209,420 | $66,520 |
| 2015 | $162,110 | $31,100 | $0 | $193,210 | $66,520 |
| 2014 | $135,200 | $31,100 | $0 | $166,300 | $66,520 |
| 2013 | $135,200 | $31,100 | $0 | $166,300 | $166,300 |
| 2012 | $135,200 | $31,100 | $0 | $0 | $0 |
| 2011 | $135,200 | $31,100 | $0 | $0 | $0 |
| 2010 | $127,300 | $31,100 | $0 | $0 | $0 |
| 2009 | $144,900 | $31,100 | $0 | $0 | $0 |
| 2008 | $107,800 | $27,600 | $0 | $0 | $0 |
| 2007 | $107,800 | $27,600 | $0 | $0 | $0 |
Deed and Sales History
| 1 | 07/12/2021 | DEATH CERT | DEATH CERTIFICATE | ROBERTSON DAVID S | | | | | 0 | 2021-08407 |
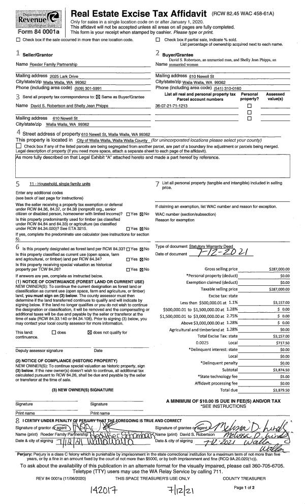
| 2 | 07/12/2021 | SWD | STATUTORY WARRANTY DEED | ROEDER FAMILY PARTNERSHIP | ROBERTSON DAVID S | | | $287,000.00 | 142017 | 2021-08429 |
| 3 | 10/02/2019 | DPR | DEED OF PERSONAL REPRESENTATIVE | ROEDER LUCILLE ESTATE OF | ROEDER FAMILY PARTNERSHIP | | | $0.00 | 137803 | 2019-07838 |
| 4 | 11/09/2018 | DEATH CERT | DEATH CERTIFICATE | ROEDER ORVILLE M | | | | | 0 | 2018-09336 |
| 5 | 11/09/2018 | COMMUNITY | COMMUNITY PROPERTY AGREEMENT | ROEDER ORVILLE MELVIN & LUCILLE A | | | | | 0 | 2018-09337 |
| 6 | 03/01/1963 | WARRANTY D | WARRANTY DEED | | | | | $17,500.00 | 0 | 3050-446380 |
Payout Agreement
| No payout information available.. |