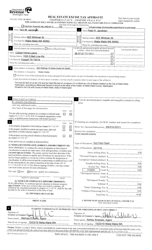
Property
Account |
| Property ID: | 8392 | Abbreviated Legal Description: | REEDS E 10' OF LOT 10 BLK 10; W 50' OF LOT 11 BLK 10 |
| Parcel Number: | 360721711011 | Agent Code: | |
| Type: | Real | | |
| Tax Area: | 1 - OL-140-F | Land Use Code | 11 |
| Open Space: | N | DFL | N |
| Historic Property: | N | Remodel Property: | N |
| Multi-Family Redevelopment: | N | | |
| Township: | 7 | Section: | 21 |
| Range: | 36 |
Location |
| Address: | 825 WHITMAN ST WA 99362 | Mapsco: | |
| Neighborhood: | G-SFR | Map ID: | |
| Neighborhood CD: | 514011 |
Owner |
| Name: | JACOBSEN PETER K | Owner ID: | 66222 |
| Mailing Address: | 825 WHITMAN ST WALLA WALLA, WA 99362 | % Ownership: | 100.0000000000% |
| | | Exemptions: | |
Taxes and Assessment Details
Property Tax Information as of
02/21/2026
Click on "Statement Details" to expand or collapse a tax statement.
* Please enter a valid date ** Please enter a valid date *
Statement Details |
| | TOTAL: | $0.00 | $0.00 | $0.00 | $0.00 | $0.00 | $0.00 |
|
| | $0.00 | $0.00 | $0.00 | $0.00 | $0.00 | $0.00 |
Values
| (+) Improvement Homesite Value: | + | $0 | |
| (+) Improvement Non-Homesite Value: | + | $417,730 | |
| (+) Land Homesite Value: | + | $0 | |
| (+) Land Non-Homesite Value: | + | $50,030 | |
| (+) Curr Use (HS): | + | $0 | $0 |
| (+) Curr Use (NHS): | + | $0 | $0 |
| | | -------------------------- | |
| (=) Market Value: | = | $467,760 | |
| (–) Productivity Loss: | – | $0 | |
| | | -------------------------- | |
| (=) Subtotal: | = | $467,760 | |
| (+) Senior Appraised Value: | + | $0 | |
| (+) Non-Senior Appraised Value: | + | $467,760 | |
| | | -------------------------- | |
| (=) Total Appraised Value: | = | $467,760 | |
| (–) Senior Exemption Loss: | – | $0 | |
| (–) Exemption Loss: | – | $0 | |
| | | -------------------------- | |
| (=) Taxable Value: | = | $467,760 | |
Taxing Jurisdiction
| Owner: | JACOBSEN PETER K | | |
| % Ownership: | 100.0000000000% | | |
| Total Value: | $467,760 | | |
| Tax Area: | 1 - OL-140-F |
| CERFD | CURRENT EXPENSE REFUND 010 | 0.0000000000 | $467,760 | $467,760 | $0.00 | | |
| CURREXP | CURRENT EXPENSE 010 | 1.0175366760 | $467,760 | $467,760 | $475.96 | | |
| HUMNSERV | HUMAN SERVICES 119 | 0.0250000000 | $467,760 | $467,760 | $11.69 | | |
| SLDREL | SOLDIERS RELIEF 121 | 0.0155990005 | $467,760 | $467,760 | $7.30 | | |
| EMERGSER | EMS 147 | 0.3792580840 | $467,760 | $467,760 | $177.40 | | |
| EMSRFD | EMS REFUND 147 | 0.0000000000 | $467,760 | $467,760 | $0.00 | | |
| PORTRFD | PORT REFUND 640 | 0.0000000000 | $467,760 | $467,760 | $0.00 | | |
| PORTWWGEN | PORT OF WW 640 | 0.2460186015 | $467,760 | $467,760 | $115.08 | | |
| SD140BOND | SD #140 BOND 764 | 0.8342371393 | $467,760 | $467,760 | $390.22 | | |
| SD140GEN | SD #140 GENERAL 760 | 2.0646500647 | $467,760 | $467,760 | $965.76 | | |
| ST2 | STATE SCHOOL PART 2 600 | 0.8131451643 | $467,760 | $467,760 | $380.36 | | |
| STATESCHL | STATE SCHOOL 600 | 1.5158548041 | $467,760 | $467,760 | $709.06 | | |
| STREFUND | STATE REFUND LEVY 603 | 0.0000000000 | $467,760 | $467,760 | $0.00 | | |
| CWWBOND | C OF WW BOND 643 | 0.2760494372 | $467,760 | $467,760 | $129.12 | | |
| CWWGEN | CITY OF WW 631 | 1.6100204973 | $467,760 | $467,760 | $753.10 | | |
| CWWRFD | CITY OF WALLA WALLA REFUND 631 | 0.0000000000 | $467,760 | $467,760 | $0.00 | | |
| | Total Tax Rate: | 8.7973694689 | | | | | |
| | | | | Taxes w/Current Exemptions: | $4,115.05 | | |
| | | | | Taxes w/o Exemptions: | $4,115.05 | | |
Improvement / Building
| Improvement #1: | RESIDENTIAL | State Code: | 11 | 1625.0 sqft | Value: | $417,730 |
| Exterior Wall: | SIDING | Heating/Cooling: | WARM & COOLED AIR | | Number of Bathrooms: | 2 | Number of Bedrooms: | 4 | | Plumbing: | 10 | Roof Covering: | COMP SHINGLE |
|
| | Type | Description | Class CD | Sub Class CD | Year Built | Area |
| | MA | Main Area | 4 | 35 | 1939 | 1625.0 |
| | UPFL | Upper Floor (included in main area) | 4 | 35 | 1939 | 400.0 |
| | SI1 | SITE IMPROVEMENT | 4 | 35 | 1939 | 1.5 |
| | BASE | BASEMENT | 4 | 35 | 1939 | 1225.0 |
| | BPF | BASEMENT -PARTITIONED FINISH | 4 | 35 | 1939 | 1225.0 |
| | S1F | Single One Story Fireplace | 4 | 35 | 1939 | 1.0 |
| | OPS | OPEN PORCH W/STEPS | 4 | 35 | 1939 | 67.0 |
| | DTG | Detached Garage | 4 | 35 | 1939 | 452.0 |
Sketch
Property Image
Land
| 1 | RES 1 | Converted: Residential | 0.1584 | 6900.00 | 0.00 | 0.00 | 1.00 | $50,030 | $0 |
Roll Value History
| 2026 | N/A | N/A | N/A | N/A | N/A |
| 2025 | $392,600 | $75,900 | $0 | $468,500 | $468,500 |
| 2024 | $392,600 | $75,900 | $0 | $468,500 | $468,500 |
| 2023 | $417,730 | $50,030 | $0 | $467,760 | $467,760 |
| 2022 | $379,750 | $50,030 | $0 | $429,780 | $429,780 |
| 2021 | $303,800 | $50,030 | $0 | $353,830 | $353,830 |
| 2020 | $202,540 | $50,030 | $0 | $252,570 | $252,570 |
| 2019 | $202,540 | $50,030 | $0 | $252,570 | $252,570 |
| 2018 | $192,890 | $50,030 | $0 | $242,920 | $242,920 |
| 2017 | $164,860 | $31,100 | $0 | $195,960 | $195,960 |
| 2016 | $149,880 | $31,100 | $0 | $180,980 | $180,980 |
| 2015 | $149,880 | $31,100 | $0 | $180,980 | $180,980 |
| 2014 | $119,900 | $31,100 | $0 | $151,000 | $151,000 |
| 2013 | $119,900 | $31,100 | $0 | $151,000 | $151,000 |
| 2012 | $119,900 | $31,100 | $0 | $0 | $0 |
| 2011 | $119,900 | $31,100 | $0 | $0 | $0 |
| 2010 | $112,700 | $31,100 | $0 | $0 | $0 |
| 2009 | $128,700 | $31,100 | $0 | $0 | $0 |
| 2008 | $124,600 | $27,600 | $0 | $0 | $0 |
| 2007 | $124,600 | $27,600 | $0 | $0 | $0 |
Deed and Sales History
| 1 | 10/23/2019 | QCD | QUIT CLAIM DEED | JACOBSEN TERRI M | JACOBSEN PETER K | | | | 137931 | 2019-08539 |
| 2 | 10/23/2019 | SWD | STATUTORY WARRANTY DEED | STURGILL DENNIS L & ELIZABETH | JACOBSEN PETER K | | | $312,500.00 | 137930 | 2019-08538 |
| 3 | 01/31/2002 | WARRANTY D | WARRANTY DEED | | | | | $110,000.00 | 98825 | 3280-201123 |
Payout Agreement
| No payout information available.. |