Property
Account |
| Property ID: | 8339 | Abbreviated Legal Description: | NORMANS SUB LOTS 17 AND 18 BLK 14; LESS PUBLIC RIGHT-OF-WAY |
| Parcel Number: | 360721701417 | Agent Code: | |
| Type: | Real | | |
| Tax Area: | 1 - OL-140-F | Land Use Code | 54 |
| Open Space: | N | DFL | N |
| Historic Property: | N | Remodel Property: | N |
| Multi-Family Redevelopment: | N | | |
| Township: | 7 | Section: | 21 |
| Range: | 36 |
Location |
| Address: | 1439 ISAACS AVE WA 99362 | Mapsco: | |
| Neighborhood: | WW Downtown Core area #3 | Map ID: | |
| Neighborhood CD: | 5343 |
Owner |
| Name: | DE LONG GABRIEL & LAUREL | Owner ID: | 57707 |
| Mailing Address: | 1272 SE CONSTITUTION DR COLLEGE PLACE, WA 99324 | % Ownership: | 100.0000000000% |
| | | Exemptions: | |
Taxes and Assessment Details
Values
| (+) Improvement Homesite Value: | + | $0 | |
| (+) Improvement Non-Homesite Value: | + | $139,300 | |
| (+) Land Homesite Value: | + | $0 | |
| (+) Land Non-Homesite Value: | + | $108,000 | |
| (+) Curr Use (HS): | + | $0 | $0 |
| (+) Curr Use (NHS): | + | $0 | $0 |
| | | -------------------------- | |
| (=) Market Value: | = | $247,300 | |
| (–) Productivity Loss: | – | $0 | |
| | | -------------------------- | |
| (=) Subtotal: | = | $247,300 | |
| (+) Senior Appraised Value: | + | $0 | |
| (+) Non-Senior Appraised Value: | + | $247,300 | |
| | | -------------------------- | |
| (=) Total Appraised Value: | = | $247,300 | |
| (–) Senior Exemption Loss: | – | $0 | |
| (–) Exemption Loss: | – | $0 | |
| | | -------------------------- | |
| (=) Taxable Value: | = | $247,300 | |
Taxing Jurisdiction
| Owner: | DE LONG GABRIEL & LAUREL | | |
| % Ownership: | 100.0000000000% | | |
| Total Value: | $247,300 | | |
| Tax Area: | 1 - OL-140-F |
| CERFD | CURRENT EXPENSE REFUND 010 | 0.0000000000 | $247,300 | $247,300 | $0.00 | | |
| CURREXP | CURRENT EXPENSE 010 | 1.0175366760 | $247,300 | $247,300 | $251.64 | | |
| HUMNSERV | HUMAN SERVICES 119 | 0.0250000000 | $247,300 | $247,300 | $6.18 | | |
| SLDREL | SOLDIERS RELIEF 121 | 0.0155990005 | $247,300 | $247,300 | $3.86 | | |
| EMERGSER | EMS 147 | 0.3792580840 | $247,300 | $247,300 | $93.79 | | |
| EMSRFD | EMS REFUND 147 | 0.0000000000 | $247,300 | $247,300 | $0.00 | | |
| PORTRFD | PORT REFUND 640 | 0.0000000000 | $247,300 | $247,300 | $0.00 | | |
| PORTWWGEN | PORT OF WW 640 | 0.2460186015 | $247,300 | $247,300 | $60.84 | | |
| SD140BOND | SD #140 BOND 764 | 0.8342371393 | $247,300 | $247,300 | $206.31 | | |
| SD140GEN | SD #140 GENERAL 760 | 2.0646500647 | $247,300 | $247,300 | $510.59 | | |
| ST2 | STATE SCHOOL PART 2 600 | 0.8131451643 | $247,300 | $247,300 | $201.09 | | |
| STATESCHL | STATE SCHOOL 600 | 1.5158548041 | $247,300 | $247,300 | $374.87 | | |
| STREFUND | STATE REFUND LEVY 603 | 0.0000000000 | $247,300 | $247,300 | $0.00 | | |
| CWWBOND | C OF WW BOND 643 | 0.2760494372 | $247,300 | $247,300 | $68.27 | | |
| CWWGEN | CITY OF WW 631 | 1.6100204973 | $247,300 | $247,300 | $398.16 | | |
| CWWRFD | CITY OF WALLA WALLA REFUND 631 | 0.0000000000 | $247,300 | $247,300 | $0.00 | | |
| | Total Tax Rate: | 8.7973694689 | | | | | |
| | | | | Taxes w/Current Exemptions: | $2,175.60 | | |
| | | | | Taxes w/o Exemptions: | $2,175.60 | | |
Improvement / Building
| Improvement #1: | COMMERCIAL | State Code: | 54 | 3920.0 sqft | Value: | $139,300 |
| | Type | Description | Class CD | Sub Class CD | Year Built | Area |
| | MA | Main Area | D | * | 1931 | 3920.0 |
| | SI1 | SITE IMPROVEMENT | D | * | 1931 | 2.0 |
| | CPC | COVERED CARPORT/PATIO | D | * | 1931 | 168.0 |
| | UTST | Utility Storage Shed | D | * | 1931 | 325.0 |
| | UPFL | Upper Floor (included in main area) | D | * | 1931 | 1260.0 |
| | PRKSTLA | PARK STALL AVERAGE | D | * | 1931 | 12.0 |
| | DTG | Detached Garage | D | * | 1931 | 483.0 |
| | CPC | COVERED CARPORT/PATIO | D | * | 1931 | 378.0 |
Sketch
Property Image
Land
| 1 | COM 1 | Converted: Commercial | 0.2707 | 11791.00 | 0.00 | 0.00 | 1.00 | $108,000 | $0 |
Roll Value History
| 2026 | N/A | N/A | N/A | N/A | N/A |
| 2025 | $139,300 | $117,900 | $0 | $257,200 | $257,200 |
| 2024 | $139,300 | $117,900 | $0 | $257,200 | $257,200 |
| 2023 | $139,300 | $108,000 | $0 | $247,300 | $247,300 |
| 2022 | $106,000 | $108,000 | $0 | $214,000 | $214,000 |
| 2021 | $106,000 | $108,000 | $0 | $214,000 | $214,000 |
| 2020 | $106,000 | $108,000 | $0 | $214,000 | $214,000 |
| 2019 | $106,000 | $108,000 | $0 | $214,000 | $214,000 |
| 2018 | $106,000 | $108,000 | $0 | $214,000 | $214,000 |
| 2017 | $92,500 | $108,000 | $0 | $200,500 | $200,500 |
| 2016 | $92,500 | $108,000 | $0 | $200,500 | $200,500 |
| 2015 | $52,900 | $108,000 | $0 | $160,900 | $160,900 |
| 2014 | $52,900 | $108,000 | $0 | $160,900 | $160,900 |
| 2013 | $52,900 | $108,000 | $0 | $160,900 | $160,900 |
| 2012 | $66,400 | $54,000 | $0 | $0 | $0 |
| 2011 | $66,400 | $54,000 | $0 | $0 | $0 |
| 2010 | $66,400 | $54,000 | $0 | $0 | $0 |
| 2009 | $66,400 | $54,000 | $0 | $0 | $0 |
| 2008 | $66,400 | $54,000 | $0 | $0 | $0 |
| 2007 | $66,400 | $54,000 | $0 | $0 | $0 |
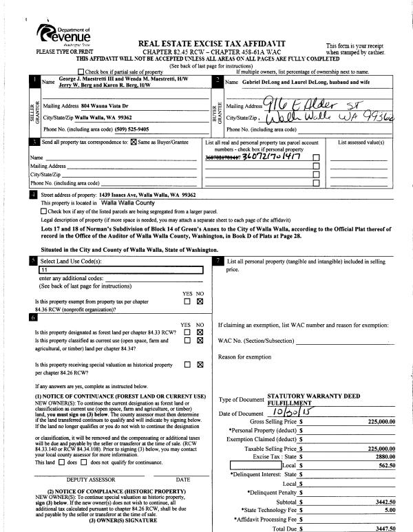
Deed and Sales History
| 1 | 01/13/2021 | FUL | FULFILLMENT DEED | BERG JERRY W & KAREN R | DE LONG GABRIEL & LAUREL | | | | 0 | 2021-00512 |
| 2 | 12/28/2018 | EASE | EASEMENT | DE LONG GABRIEL & LAUREL | WALLA WALLA CITY OF | | | $3,145.00 | 136165 | 2018-10656 |
| 3 | 11/02/2015 | REAL ESTAT | REAL ESTATE CONTRACT | BERG JERRY W & KAREN R | DE LONG GABRIEL & LAUREL | | | $225,000.00 | 129118 | 2015-09569 |
| 4 | 03/14/2001 | WARRANTY D | WARRANTY DEED | | | | | $85,000.00 | 96760 | 3090-102427 |
Payout Agreement
| No payout information available.. |