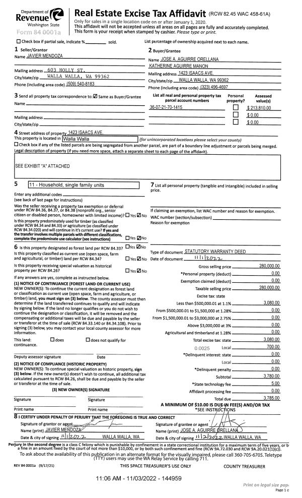
Property
Account |
| Property ID: | 8338 | Abbreviated Legal Description: | NORMANS SUB LOT 15 BLK 14 |
| Parcel Number: | 360721701415 | Agent Code: | |
| Type: | Real | | |
| Tax Area: | 1 - OL-140-F | Land Use Code | 11 |
| Open Space: | N | DFL | N |
| Historic Property: | N | Remodel Property: | N |
| Multi-Family Redevelopment: | N | | |
| Township: | 7 | Section: | 21 |
| Range: | 36 |
Location |
| Address: | 1423 ISAACS AVE WA 99362 | Mapsco: | |
| Neighborhood: | A-SFR | Map ID: | |
| Neighborhood CD: | 513011 |
Owner |
| Name: | AGUIRRE ORELLANA JOSE A & KATHERINE AGUIRRE MANON | Owner ID: | 72718 |
| Mailing Address: | 1423 ISAACS AVE WALLA WALLA, WA 99362 | % Ownership: | 100.0000000000% |
| | | Exemptions: | |
Taxes and Assessment Details
Property Tax Information as of
02/21/2026
Click on "Statement Details" to expand or collapse a tax statement.
* Please enter a valid date ** Please enter a valid date *
Statement Details |
| | TOTAL: | $0.00 | $0.00 | $0.00 | $0.00 | $0.00 | $0.00 |
|
| | $0.00 | $0.00 | $0.00 | $0.00 | $0.00 | $0.00 |
Values
| (+) Improvement Homesite Value: | + | $0 | |
| (+) Improvement Non-Homesite Value: | + | $211,570 | |
| (+) Land Homesite Value: | + | $0 | |
| (+) Land Non-Homesite Value: | + | $37,500 | |
| (+) Curr Use (HS): | + | $0 | $0 |
| (+) Curr Use (NHS): | + | $0 | $0 |
| | | -------------------------- | |
| (=) Market Value: | = | $249,070 | |
| (–) Productivity Loss: | – | $0 | |
| | | -------------------------- | |
| (=) Subtotal: | = | $249,070 | |
| (+) Senior Appraised Value: | + | $0 | |
| (+) Non-Senior Appraised Value: | + | $249,070 | |
| | | -------------------------- | |
| (=) Total Appraised Value: | = | $249,070 | |
| (–) Senior Exemption Loss: | – | $0 | |
| (–) Exemption Loss: | – | $0 | |
| | | -------------------------- | |
| (=) Taxable Value: | = | $249,070 | |
Taxing Jurisdiction
| Owner: | AGUIRRE ORELLANA JOSE A & KATHERINE AGUIRRE MANON | | |
| % Ownership: | 100.0000000000% | | |
| Total Value: | $249,070 | | |
| Tax Area: | 1 - OL-140-F |
| CERFD | CURRENT EXPENSE REFUND 010 | 0.0000000000 | $249,070 | $249,070 | $0.00 | | |
| CURREXP | CURRENT EXPENSE 010 | 1.0175366760 | $249,070 | $249,070 | $253.44 | | |
| HUMNSERV | HUMAN SERVICES 119 | 0.0250000000 | $249,070 | $249,070 | $6.23 | | |
| SLDREL | SOLDIERS RELIEF 121 | 0.0155990005 | $249,070 | $249,070 | $3.89 | | |
| EMERGSER | EMS 147 | 0.3792580840 | $249,070 | $249,070 | $94.46 | | |
| EMSRFD | EMS REFUND 147 | 0.0000000000 | $249,070 | $249,070 | $0.00 | | |
| PORTRFD | PORT REFUND 640 | 0.0000000000 | $249,070 | $249,070 | $0.00 | | |
| PORTWWGEN | PORT OF WW 640 | 0.2460186015 | $249,070 | $249,070 | $61.28 | | |
| SD140BOND | SD #140 BOND 764 | 0.8342371393 | $249,070 | $249,070 | $207.78 | | |
| SD140GEN | SD #140 GENERAL 760 | 2.0646500647 | $249,070 | $249,070 | $514.24 | | |
| ST2 | STATE SCHOOL PART 2 600 | 0.8131451643 | $249,070 | $249,070 | $202.53 | | |
| STATESCHL | STATE SCHOOL 600 | 1.5158548041 | $249,070 | $249,070 | $377.55 | | |
| STREFUND | STATE REFUND LEVY 603 | 0.0000000000 | $249,070 | $249,070 | $0.00 | | |
| CWWBOND | C OF WW BOND 643 | 0.2760494372 | $249,070 | $249,070 | $68.76 | | |
| CWWGEN | CITY OF WW 631 | 1.6100204973 | $249,070 | $249,070 | $401.01 | | |
| CWWRFD | CITY OF WALLA WALLA REFUND 631 | 0.0000000000 | $249,070 | $249,070 | $0.00 | | |
| | Total Tax Rate: | 8.7973694689 | | | | | |
| | | | | Taxes w/Current Exemptions: | $2,191.17 | | |
| | | | | Taxes w/o Exemptions: | $2,191.17 | | |
Improvement / Building
| Improvement #1: | RESIDENTIAL | State Code: | 11 | 1128.0 sqft | Value: | $211,570 |
| Exterior Wall: | SIDING | Heating/Cooling: | FORCED AIR | | Number of Bathrooms: | 1 | Number of Bedrooms: | 2 | | Plumbing: | 6 | Roof Covering: | COMP SHINGLE |
|
| | Type | Description | Class CD | Sub Class CD | Year Built | Area |
| | MA | Main Area | 1 | 30 | 1910 | 1128.0 |
| | SI1 | SITE IMPROVEMENT | 1 | 30 | 1910 | 1.5 |
| | BASE | BASEMENT | 1 | 30 | 1910 | 564.0 |
| | BPF | BASEMENT -PARTITIONED FINISH | 1 | 30 | 1910 | 232.0 |
| | DTG | Detached Garage | 1 | 30 | 1910 | 400.0 |
| | S1F | Single One Story Fireplace | 1 | 30 | 1910 | 1.0 |
| | PRC | PORCH W STEPS, ROOF,CEILED | 1 | 30 | 1910 | 120.0 |
Sketch
Property Image
Land
| 1 | RES 1 | Converted: Residential | 0.1377 | 6000.00 | 0.00 | 0.00 | 1.00 | $37,500 | $0 |
Roll Value History
| 2026 | N/A | N/A | N/A | N/A | N/A |
| 2025 | $237,830 | $60,000 | $0 | $297,830 | $297,830 |
| 2024 | $226,500 | $60,000 | $0 | $286,500 | $286,500 |
| 2023 | $211,570 | $37,500 | $0 | $249,070 | $249,070 |
| 2022 | $211,570 | $37,500 | $0 | $249,070 | $249,070 |
| 2021 | $176,310 | $37,500 | $0 | $213,810 | $213,810 |
| 2020 | $121,590 | $37,500 | $0 | $159,090 | $159,090 |
| 2019 | $121,590 | $37,500 | $0 | $159,090 | $159,090 |
| 2018 | $115,800 | $37,500 | $0 | $153,300 | $153,300 |
| 2017 | $125,280 | $24,000 | $0 | $149,280 | $149,280 |
| 2016 | $119,320 | $24,000 | $0 | $143,320 | $143,320 |
| 2015 | $113,630 | $24,000 | $0 | $137,630 | $137,630 |
| 2014 | $106,200 | $24,000 | $0 | $130,200 | $130,200 |
| 2013 | $106,200 | $24,000 | $0 | $130,200 | $130,200 |
| 2012 | $106,200 | $24,000 | $0 | $0 | $0 |
| 2011 | $106,200 | $24,000 | $0 | $0 | $0 |
| 2010 | $100,000 | $24,000 | $0 | $0 | $0 |
| 2009 | $113,800 | $24,000 | $0 | $0 | $0 |
| 2008 | $107,200 | $24,000 | $0 | $0 | $0 |
| 2007 | $107,200 | $24,000 | $0 | $0 | $0 |
Deed and Sales History
| 1 | 11/03/2022 | SWD | STATUTORY WARRANTY DEED | MENDOZA JAVIER | AGUIRRE ORELLANA JOSE A & KATHERINE AGUIRRE MANON | | | $280,000.00 | 144959 | 2022-08908 |
| 2 | 11/19/2015 | SWD | STATUTORY WARRANTY DEED | MOBLEY LINDA L | MENDOZA JAVIER | | | $148,500.00 | 129223 | 2015-10038 |
| 3 | 05/20/1983 | WARRANTY D | WARRANTY DEED | | | | | $43,000.00 | 0 | 1378-303540 |
Payout Agreement
| No payout information available.. |