Property
Account |
| Property ID: | 8329 | Abbreviated Legal Description: | WATERTOWN LT 6 BLK 5 |
| Parcel Number: | 360721730506 | Agent Code: | |
| Type: | Real | | |
| Tax Area: | 1 - OL-140-F | Land Use Code | 11 |
| Open Space: | N | DFL | N |
| Historic Property: | N | Remodel Property: | N |
| Multi-Family Redevelopment: | N | | |
| Township: | 7 | Section: | 21 |
| Range: | 36 |
Location |
| Address: | 1126 E ALDER ST WA 99362 | Mapsco: | |
| Neighborhood: | A-SFR | Map ID: | |
| Neighborhood CD: | 513011 |
Owner |
| Name: | PEDDICORD BLYTHE | Owner ID: | 68382 |
| Mailing Address: | 1126 E ALDER ST WALLA WALLA, WA 99362 | % Ownership: | 100.0000000000% |
| | | Exemptions: | |
Taxes and Assessment Details
Property Tax Information as of
02/21/2026
Click on "Statement Details" to expand or collapse a tax statement.
* Please enter a valid date ** Please enter a valid date *
Statement Details |
| | TOTAL: | $0.00 | $0.00 | $0.00 | $0.00 | $0.00 | $0.00 |
|
| | $0.00 | $0.00 | $0.00 | $0.00 | $0.00 | $0.00 |
Values
| (+) Improvement Homesite Value: | + | $0 | |
| (+) Improvement Non-Homesite Value: | + | $524,040 | |
| (+) Land Homesite Value: | + | $0 | |
| (+) Land Non-Homesite Value: | + | $46,880 | |
| (+) Curr Use (HS): | + | $0 | $0 |
| (+) Curr Use (NHS): | + | $0 | $0 |
| | | -------------------------- | |
| (=) Market Value: | = | $570,920 | |
| (–) Productivity Loss: | – | $0 | |
| | | -------------------------- | |
| (=) Subtotal: | = | $570,920 | |
| (+) Senior Appraised Value: | + | $0 | |
| (+) Non-Senior Appraised Value: | + | $570,920 | |
| | | -------------------------- | |
| (=) Total Appraised Value: | = | $570,920 | |
| (–) Senior Exemption Loss: | – | $0 | |
| (–) Exemption Loss: | – | $0 | |
| | | -------------------------- | |
| (=) Taxable Value: | = | $570,920 | |
Taxing Jurisdiction
| Owner: | PEDDICORD BLYTHE | | |
| % Ownership: | 100.0000000000% | | |
| Total Value: | $570,920 | | |
| Tax Area: | 1 - OL-140-F |
| CERFD | CURRENT EXPENSE REFUND 010 | 0.0000000000 | $570,920 | $570,920 | $0.00 | | |
| CURREXP | CURRENT EXPENSE 010 | 1.0175366760 | $570,920 | $570,920 | $580.93 | | |
| HUMNSERV | HUMAN SERVICES 119 | 0.0250000000 | $570,920 | $570,920 | $14.27 | | |
| SLDREL | SOLDIERS RELIEF 121 | 0.0155990005 | $570,920 | $570,920 | $8.91 | | |
| EMERGSER | EMS 147 | 0.3792580840 | $570,920 | $570,920 | $216.53 | | |
| EMSRFD | EMS REFUND 147 | 0.0000000000 | $570,920 | $570,920 | $0.00 | | |
| PORTRFD | PORT REFUND 640 | 0.0000000000 | $570,920 | $570,920 | $0.00 | | |
| PORTWWGEN | PORT OF WW 640 | 0.2460186015 | $570,920 | $570,920 | $140.46 | | |
| SD140BOND | SD #140 BOND 764 | 0.8342371393 | $570,920 | $570,920 | $476.28 | | |
| SD140GEN | SD #140 GENERAL 760 | 2.0646500647 | $570,920 | $570,920 | $1,178.75 | | |
| ST2 | STATE SCHOOL PART 2 600 | 0.8131451643 | $570,920 | $570,920 | $464.24 | | |
| STATESCHL | STATE SCHOOL 600 | 1.5158548041 | $570,920 | $570,920 | $865.43 | | |
| STREFUND | STATE REFUND LEVY 603 | 0.0000000000 | $570,920 | $570,920 | $0.00 | | |
| CWWBOND | C OF WW BOND 643 | 0.2760494372 | $570,920 | $570,920 | $157.60 | | |
| CWWGEN | CITY OF WW 631 | 1.6100204973 | $570,920 | $570,920 | $919.19 | | |
| CWWRFD | CITY OF WALLA WALLA REFUND 631 | 0.0000000000 | $570,920 | $570,920 | $0.00 | | |
| | Total Tax Rate: | 8.7973694689 | | | | | |
| | | | | Taxes w/Current Exemptions: | $5,022.59 | | |
| | | | | Taxes w/o Exemptions: | $5,022.59 | | |
Improvement / Building
| Improvement #1: | RESIDENTIAL | State Code: | 11 | 1791.0 sqft | Value: | $524,040 |
| Exterior Wall: | STUCCO | Heating/Cooling: | WARM & COOLED AIR | | Number of Bathrooms: | 3 | Number of Bedrooms: | 2 | | Plumbing: | 16 | Roof Covering: | SLATE |
|
| | Type | Description | Class CD | Sub Class CD | Year Built | Area |
| | MA | Main Area | 4 | 45 | 1927 | 1791.0 |
| | UPFL | Upper Floor (included in main area) | 4 | 45 | 1927 | 709.0 |
| | SI1 | SITE IMPROVEMENT | 4 | 45 | 1927 | 4.0 |
| | BASE | BASEMENT | 4 | 45 | 1927 | 999.0 |
| | BPF | BASEMENT -PARTITIONED FINISH | 4 | 45 | 1927 | 999.0 |
| | S1F | Single One Story Fireplace | 4 | 45 | 1927 | 1.0 |
| | OPS | OPEN PORCH W/STEPS | 4 | 45 | 1927 | 20.0 |
| | OPS | OPEN PORCH W/STEPS | 4 | 45 | 1927 | 20.0 |
| | OPS | OPEN PORCH W/STEPS | 4 | 45 | 1927 | 100.0 |
| | BLW | WOOD BALCONIES | 4 | 45 | 1927 | 110.0 |
| | CPC | COVERED CARPORT/PATIO | 4 | 45 | 1927 | 274.0 |
| | DTG | Detached Garage | 4 | 45 | 1927 | 400.0 |
Sketch
Property Image
Land
| 1 | RES 1 | Converted: Residential | 0.1722 | 7500.00 | 0.00 | 0.00 | 1.00 | $46,880 | $0 |
Roll Value History
| 2026 | N/A | N/A | N/A | N/A | N/A |
| 2025 | $492,330 | $75,000 | $0 | $567,330 | $567,330 |
| 2024 | $492,330 | $75,000 | $0 | $567,330 | $567,330 |
| 2023 | $524,040 | $46,880 | $0 | $570,920 | $570,920 |
| 2022 | $524,040 | $46,880 | $0 | $570,920 | $570,920 |
| 2021 | $436,700 | $46,880 | $0 | $483,580 | $483,580 |
| 2020 | $349,360 | $46,880 | $0 | $396,240 | $396,240 |
| 2019 | $349,360 | $46,880 | $0 | $396,240 | $396,240 |
| 2018 | $349,360 | $46,880 | $0 | $396,240 | $396,240 |
| 2017 | $362,120 | $30,000 | $0 | $392,120 | $392,120 |
| 2016 | $329,200 | $30,000 | $0 | $359,200 | $359,200 |
| 2015 | $329,200 | $30,000 | $0 | $359,200 | $359,200 |
| 2014 | $329,200 | $30,000 | $0 | $359,200 | $359,200 |
| 2013 | $329,200 | $30,000 | $0 | $359,200 | $359,200 |
| 2012 | $383,800 | $30,000 | $0 | $0 | $0 |
| 2011 | $383,800 | $30,000 | $0 | $0 | $0 |
| 2010 | $364,100 | $30,000 | $0 | $0 | $0 |
| 2009 | $387,000 | $30,000 | $0 | $0 | $0 |
| 2008 | $387,000 | $30,000 | $0 | $0 | $0 |
| 2007 | $387,000 | $30,000 | $0 | $0 | $0 |
Deed and Sales History
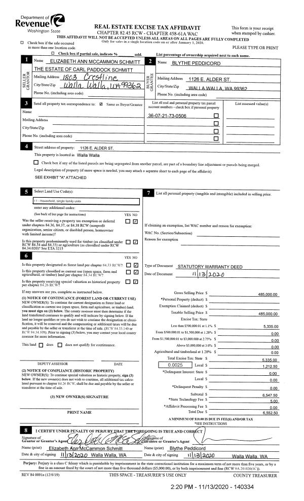
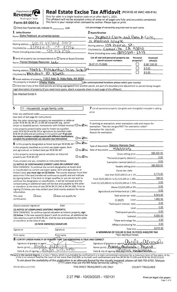
| 1 | 10/03/2025 | SWD | STATUTORY WARRANTY DEED | PEDDICORD BLYTHE | CLARK STEPHEN J & ELMA A CANO | | | $585,000.00 | 150131 | 2025-06079 |
| 2 | 11/13/2020 | SWD | STATUTORY WARRANTY DEED | SCHMITT CARL PADDOCK ESTATE OF | PEDDICORD BLYTHE | | | $485,000.00 | 140334 | 2020-11991 |
| 3 | 08/29/2005 | WARRANTY D | WARRANTY DEED | DAVIS, KEVIN S | SCHMITT, CARL PADDOCK | | | $449,000.00 | 108354 | 2005-10701 |
| 4 | 05/18/2004 | WARRANTY D | WARRANTY DEED | BROCK, WAYNE A | DAVIS, KEVIN S | | | $90,000.00 | 104778 | 2004-05334 |
| 5 | 01/03/2003 | WARRANTY D | WARRANTY DEED | BURNAP, FLOSSIE W | BROCK, WAYNE A | | | | 0 | CC#02-4--0011603 |
| 6 | 03/31/1975 | WARRANTY D | WARRANTY DEED | | | | | $0.00 | 0 | 2505-43439 |
Payout Agreement
| No payout information available.. |