Property
Account |
| Property ID: | 8313 | Abbreviated Legal Description: | SOUTH MILBROOKE PARK LOT 39 |
| Parcel Number: | 360721670039 | Agent Code: | |
| Type: | Real | | |
| Tax Area: | 1 - OL-140-F | Land Use Code | 11 |
| Open Space: | N | DFL | N |
| Historic Property: | N | Remodel Property: | N |
| Multi-Family Redevelopment: | N | | |
| Township: | 7 | Section: | 21 |
| Range: | 36 |
Location |
| Address: | 1246 FRANCIS AVE WA 99362 | Mapsco: | |
| Neighborhood: | A-SFR | Map ID: | |
| Neighborhood CD: | 513011 |
Owner |
| Name: | COFFEEN CELINA MARIA KATRINA | Owner ID: | 77013 |
| Mailing Address: | 1246 FRANCIS AVE WALLA WALLA, WA 99362 | % Ownership: | 100.0000000000% |
| | | Exemptions: | |
Taxes and Assessment Details
Property Tax Information as of
02/21/2026
Click on "Statement Details" to expand or collapse a tax statement.
* Please enter a valid date ** Please enter a valid date *
Statement Details |
| | TOTAL: | $0.00 | $0.00 | $0.00 | $0.00 | $0.00 | $0.00 |
|
| | $0.00 | $0.00 | $0.00 | $0.00 | $0.00 | $0.00 |
Values
| (+) Improvement Homesite Value: | + | $0 | |
| (+) Improvement Non-Homesite Value: | + | $219,980 | |
| (+) Land Homesite Value: | + | $0 | |
| (+) Land Non-Homesite Value: | + | $67,200 | |
| (+) Curr Use (HS): | + | $0 | $0 |
| (+) Curr Use (NHS): | + | $0 | $0 |
| | | -------------------------- | |
| (=) Market Value: | = | $287,180 | |
| (–) Productivity Loss: | – | $0 | |
| | | -------------------------- | |
| (=) Subtotal: | = | $287,180 | |
| (+) Senior Appraised Value: | + | $0 | |
| (+) Non-Senior Appraised Value: | + | $287,180 | |
| | | -------------------------- | |
| (=) Total Appraised Value: | = | $287,180 | |
| (–) Senior Exemption Loss: | – | $0 | |
| (–) Exemption Loss: | – | $0 | |
| | | -------------------------- | |
| (=) Taxable Value: | = | $287,180 | |
Taxing Jurisdiction
| Owner: | COFFEEN CELINA MARIA KATRINA | | |
| % Ownership: | 100.0000000000% | | |
| Total Value: | $287,180 | | |
| Tax Area: | 1 - OL-140-F |
| CERFD | CURRENT EXPENSE REFUND 010 | 0.0000000000 | $287,180 | $287,180 | $0.00 | | |
| CURREXP | CURRENT EXPENSE 010 | 0.9851088983 | $287,180 | $287,180 | $282.90 | | |
| HUMNSERV | HUMAN SERVICES 119 | 0.0250000000 | $287,180 | $287,180 | $7.18 | | |
| SLDREL | SOLDIERS RELIEF 121 | 0.0155990000 | $287,180 | $287,180 | $4.48 | | |
| EMERGSER | EMS 147 | 0.3676811629 | $287,180 | $287,180 | $105.59 | | |
| EMSRFD | EMS REFUND 147 | 0.0000000000 | $287,180 | $287,180 | $0.00 | | |
| PORTRFD | PORT REFUND 640 | 0.0000000000 | $287,180 | $287,180 | $0.00 | | |
| PORTWWGEN | PORT OF WW 640 | 0.2344301070 | $287,180 | $287,180 | $67.32 | | |
| SD140BOND | SD #140 BOND 764 | 0.8032434458 | $287,180 | $287,180 | $230.68 | | |
| SD140CAP | SD #140 CAP 762 | 0.3840034221 | $287,180 | $287,180 | $110.28 | | |
| SD140GEN | SD #140 GENERAL 760 | 2.4999999996 | $287,180 | $287,180 | $717.95 | | |
| ST2 | STATE SCHOOL PART 2 600 | 0.8853714103 | $287,180 | $287,180 | $254.26 | | |
| STATESCHL | STATE SCHOOL 600 | 1.6424571473 | $287,180 | $287,180 | $471.68 | | |
| STREFUND | STATE REFUND LEVY 603 | 0.0000000000 | $287,180 | $287,180 | $0.00 | | |
| CWWBOND | C OF WW BOND 643 | 0.2642134255 | $287,180 | $287,180 | $75.88 | | |
| CWWGEN | CITY OF WW 631 | 1.6110494978 | $287,180 | $287,180 | $462.66 | | |
| CWWRFD | CITY OF WALLA WALLA REFUND 631 | 0.0000000000 | $287,180 | $287,180 | $0.00 | | |
| | Total Tax Rate: | 9.7181575166 | | | | | |
| | | | | Taxes w/Current Exemptions: | $2,790.86 | | |
| | | | | Taxes w/o Exemptions: | $2,790.86 | | |
Improvement / Building
| Improvement #1: | RESIDENTIAL | State Code: | 11 | 1044.0 sqft | Value: | $219,980 |
| Exterior Wall: | SIDING | Heating/Cooling: | FORCED AIR | | Number of Bathrooms: | 1 | Number of Bedrooms: | 2 | | Plumbing: | 6 | Roof Covering: | COMP SHINGLE |
|
| | Type | Description | Class CD | Sub Class CD | Year Built | Area |
| | MA | Main Area | 1 | 30 | 1951 | 1044.0 |
| | SI1 | SITE IMPROVEMENT | 1 | 30 | 1951 | 1.5 |
| | OSP | Open | 1 | 30 | 1951 | 55.0 |
Sketch
Property Image
Land
| 1 | RES 1 | Converted: Residential | 0.1543 | 6720.00 | 0.00 | 0.00 | 1.00 | $67,200 | $0 |
Roll Value History
| 2026 | N/A | N/A | N/A | N/A | N/A |
| 2025 | $219,980 | $67,200 | $0 | $287,180 | $287,180 |
| 2024 | $191,290 | $67,200 | $0 | $258,490 | $258,490 |
| 2023 | $234,760 | $42,000 | $0 | $276,760 | $276,760 |
| 2022 | $223,580 | $42,000 | $0 | $265,580 | $265,580 |
| 2021 | $149,050 | $42,000 | $0 | $191,050 | $191,050 |
| 2020 | $114,660 | $42,000 | $0 | $156,660 | $156,660 |
| 2019 | $114,660 | $42,000 | $0 | $156,660 | $156,660 |
| 2018 | $99,700 | $42,000 | $0 | $141,700 | $141,700 |
| 2017 | $110,900 | $26,900 | $0 | $137,800 | $137,800 |
| 2016 | $105,620 | $26,900 | $0 | $132,520 | $132,520 |
| 2015 | $100,590 | $26,900 | $0 | $127,490 | $127,490 |
| 2014 | $95,800 | $26,900 | $0 | $122,700 | $122,700 |
| 2013 | $95,800 | $26,900 | $0 | $122,700 | $122,700 |
| 2012 | $101,600 | $26,900 | $0 | $0 | $0 |
| 2011 | $101,600 | $26,900 | $0 | $0 | $0 |
| 2010 | $95,500 | $26,900 | $0 | $0 | $0 |
| 2009 | $109,100 | $26,900 | $0 | $0 | $0 |
| 2008 | $83,700 | $26,900 | $0 | $0 | $0 |
| 2007 | $83,700 | $26,900 | $0 | $0 | $0 |
Deed and Sales History
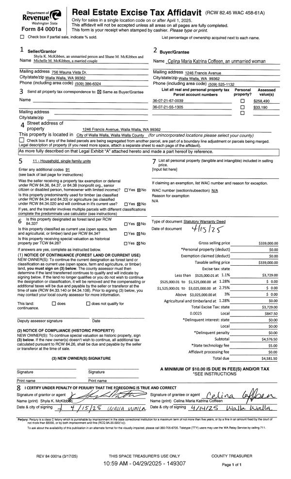
| 1 | 04/29/2025 | SWD | STATUTORY WARRANTY DEED | MCKIBBEN SHYLA K | COFFEEN CELINA MARIA KATRINA | | 2-PARCELS | $339,000.00 | 149307 | 2025-02295 |
|   | |
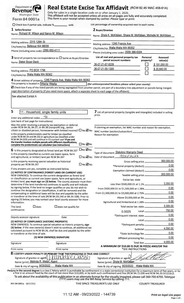
| 2 | 09/23/2022 | SWD | STATUTORY WARRANTY DEED | WILSON RICHARD & NANCY | MCKIBBEN SHYLA K | | 2-PARCELS | $300,000.00 | 144739 | 2022-07931 |
|   | |
| 3 | 04/30/2001 | WARRANTY D | WARRANTY DEED | | | | | $69,750.00 | 97058 | 3120-104258 |
|   | |
Payout Agreement
| No payout information available.. |