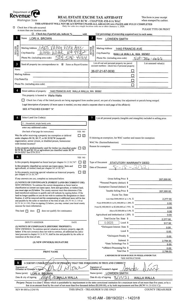
Property
Account |
| Property ID: | 8306 | Abbreviated Legal Description: | SOUTH MILBROOKE PARK LOT 30 |
| Parcel Number: | 360721670030 | Agent Code: | |
| Type: | Real | | |
| Tax Area: | 1 - OL-140-F | Land Use Code | 11 |
| Open Space: | N | DFL | N |
| Historic Property: | N | Remodel Property: | N |
| Multi-Family Redevelopment: | N | | |
| Township: | 7 | Section: | 21 |
| Range: | 36 |
Location |
| Address: | 1440 FRANCIS AVE WA 99362 | Mapsco: | |
| Neighborhood: | A-SFR | Map ID: | |
| Neighborhood CD: | 513011 |
Owner |
| Name: | SMITH LOWDEN | Owner ID: | 70111 |
| Mailing Address: | 1440 FRANCIS AVE WALLA WALLA, WA 99362 | % Ownership: | 100.0000000000% |
| | | Exemptions: | |
Taxes and Assessment Details
Property Tax Information as of
04/19/2026
Click on "Statement Details" to expand or collapse a tax statement.
* Please enter a valid date ** Please enter a valid date *
Statement Details |
| | TOTAL: | $0.00 | $0.00 | $0.00 | $0.00 | $0.00 | $0.00 |
|
| | $0.00 | $0.00 | $0.00 | $0.00 | $0.00 | $0.00 |
Values
| (+) Improvement Homesite Value: | + | $0 | |
| (+) Improvement Non-Homesite Value: | + | $198,840 | |
| (+) Land Homesite Value: | + | $0 | |
| (+) Land Non-Homesite Value: | + | $43,130 | |
| (+) Curr Use (HS): | + | $0 | $0 |
| (+) Curr Use (NHS): | + | $0 | $0 |
| | | -------------------------- | |
| (=) Market Value: | = | $241,970 | |
| (–) Productivity Loss: | – | $0 | |
| | | -------------------------- | |
| (=) Subtotal: | = | $241,970 | |
| (+) Senior Appraised Value: | + | $0 | |
| (+) Non-Senior Appraised Value: | + | $241,970 | |
| | | -------------------------- | |
| (=) Total Appraised Value: | = | $241,970 | |
| (–) Senior Exemption Loss: | – | $0 | |
| (–) Exemption Loss: | – | $0 | |
| | | -------------------------- | |
| (=) Taxable Value: | = | $241,970 | |
Taxing Jurisdiction
| Owner: | SMITH LOWDEN | | |
| % Ownership: | 100.0000000000% | | |
| Total Value: | $241,970 | | |
| Tax Area: | 1 - OL-140-F |
| CERFD | CURRENT EXPENSE REFUND 010 | 0.0000000000 | $241,970 | $241,970 | $0.00 | | |
| CURREXP | CURRENT EXPENSE 010 | 1.0175366760 | $241,970 | $241,970 | $246.21 | | |
| HUMNSERV | HUMAN SERVICES 119 | 0.0250000000 | $241,970 | $241,970 | $6.05 | | |
| SLDREL | SOLDIERS RELIEF 121 | 0.0155990005 | $241,970 | $241,970 | $3.77 | | |
| EMERGSER | EMS 147 | 0.3792580840 | $241,970 | $241,970 | $91.77 | | |
| EMSRFD | EMS REFUND 147 | 0.0000000000 | $241,970 | $241,970 | $0.00 | | |
| PORTRFD | PORT REFUND 640 | 0.0000000000 | $241,970 | $241,970 | $0.00 | | |
| PORTWWGEN | PORT OF WW 640 | 0.2460186015 | $241,970 | $241,970 | $59.53 | | |
| SD140BOND | SD #140 BOND 764 | 0.8342371393 | $241,970 | $241,970 | $201.86 | | |
| SD140GEN | SD #140 GENERAL 760 | 2.0646500647 | $241,970 | $241,970 | $499.58 | | |
| ST2 | STATE SCHOOL PART 2 600 | 0.8131451643 | $241,970 | $241,970 | $196.76 | | |
| STATESCHL | STATE SCHOOL 600 | 1.5158548041 | $241,970 | $241,970 | $366.79 | | |
| STREFUND | STATE REFUND LEVY 603 | 0.0000000000 | $241,970 | $241,970 | $0.00 | | |
| CWWBOND | C OF WW BOND 643 | 0.2760494372 | $241,970 | $241,970 | $66.80 | | |
| CWWGEN | CITY OF WW 631 | 1.6100204973 | $241,970 | $241,970 | $389.58 | | |
| CWWRFD | CITY OF WALLA WALLA REFUND 631 | 0.0000000000 | $241,970 | $241,970 | $0.00 | | |
| | Total Tax Rate: | 8.7973694689 | | | | | |
| | | | | Taxes w/Current Exemptions: | $2,128.70 | | |
| | | | | Taxes w/o Exemptions: | $2,128.70 | | |
Improvement / Building
| Improvement #1: | RESIDENTIAL | State Code: | 11 | 921.0 sqft | Value: | $198,840 |
| Exterior Wall: | VINYL | Heating/Cooling: | WARM & COOLED AIR | | Number of Bathrooms: | 1 | Number of Bedrooms: | 2 | | Plumbing: | 6 | Roof Covering: | COMP SHINGLE |
|
| | Type | Description | Class CD | Sub Class CD | Year Built | Area |
| | MA | Main Area | 1 | 30 | 1951 | 921.0 |
| | SI1 | SITE IMPROVEMENT | 1 | 30 | 0 | 1.5 |
| | DTG | Detached Garage | 1 | 30 | 1951 | 540.0 |
| | OSP | Open | 1 | 30 | 1951 | 25.0 |
| | CPC | COVERED CARPORT/PATIO | 1 | 30 | 1951 | 260.0 |
Sketch
Property Image
Land
| 1 | RES 1 | Converted: Residential | 0.1584 | 6900.00 | 0.00 | 0.00 | 1.00 | $43,130 | $0 |
Roll Value History
| 2026 | N/A | N/A | N/A | N/A | N/A |
| 2025 | $190,770 | $69,000 | $0 | $259,770 | $259,770 |
| 2024 | $173,430 | $69,000 | $0 | $242,430 | $242,430 |
| 2023 | $198,840 | $43,130 | $0 | $241,970 | $241,970 |
| 2022 | $172,910 | $43,130 | $0 | $216,040 | $216,040 |
| 2021 | $138,330 | $43,130 | $0 | $181,460 | $181,460 |
| 2020 | $110,660 | $43,130 | $0 | $153,790 | $153,790 |
| 2019 | $110,660 | $43,130 | $0 | $153,790 | $153,790 |
| 2018 | $100,600 | $43,130 | $0 | $143,730 | $143,730 |
| 2017 | $116,800 | $27,600 | $0 | $144,400 | $144,400 |
| 2016 | $111,240 | $27,600 | $0 | $138,840 | $138,840 |
| 2015 | $105,950 | $27,600 | $0 | $133,550 | $133,550 |
| 2014 | $100,900 | $27,600 | $0 | $128,500 | $128,500 |
| 2013 | $100,900 | $27,600 | $0 | $128,500 | $128,500 |
| 2012 | $119,000 | $27,600 | $0 | $0 | $0 |
| 2011 | $119,000 | $27,600 | $0 | $0 | $0 |
| 2010 | $112,000 | $27,600 | $0 | $0 | $0 |
| 2009 | $127,500 | $27,600 | $0 | $0 | $0 |
| 2008 | $83,200 | $27,600 | $0 | $0 | $0 |
| 2007 | $83,200 | $27,600 | $0 | $0 | $0 |
Deed and Sales History
| 1 | 08/19/2021 | SWD | STATUTORY WARRANTY DEED | BROWN LORI A | SMITH LOWDEN | | | $207,000.00 | 142318 | 2021-10115 |
| 2 | 07/12/2016 | DPR | DEED OF PERSONAL REPRESENTATIVE | DRAYTON MARILYN J | BROWN LORI A | | | $0.00 | 130610 | 2016-05446 |
| 3 | 12/21/1976 | WARRANTY D | WARRANTY DEED | | | | | $0.00 | 65083 | 2740-421048 |
Payout Agreement
| No payout information available.. |