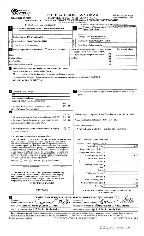
Property
Account |
| Property ID: | 8300 | Abbreviated Legal Description: | SOUTH MILBROOKE PARK LOT 23 |
| Parcel Number: | 360721670023 | Agent Code: | |
| Type: | Real | | |
| Tax Area: | 1 - OL-140-F | Land Use Code | 11 |
| Open Space: | N | DFL | N |
| Historic Property: | N | Remodel Property: | N |
| Multi-Family Redevelopment: | N | | |
| Township: | 7 | Section: | 21 |
| Range: | 36 |
Location |
| Address: | 1482 FRANCIS AVE WA 99362 | Mapsco: | |
| Neighborhood: | A-SFR | Map ID: | |
| Neighborhood CD: | 513011 |
Owner |
| Name: | WATTS TYRONE & TISH FAMILY TRUST | Owner ID: | 62942 |
| Mailing Address: | 826 WHEATLAND ST WALLA WALLA, WA 99362 | % Ownership: | 100.0000000000% |
| | | Exemptions: | |
Taxes and Assessment Details
Property Tax Information as of
02/21/2026
Click on "Statement Details" to expand or collapse a tax statement.
* Please enter a valid date ** Please enter a valid date *
Statement Details |
| | TOTAL: | $0.00 | $0.00 | $0.00 | $0.00 | $0.00 | $0.00 |
|
| | $0.00 | $0.00 | $0.00 | $0.00 | $0.00 | $0.00 |
Values
| (+) Improvement Homesite Value: | + | $0 | |
| (+) Improvement Non-Homesite Value: | + | $209,200 | |
| (+) Land Homesite Value: | + | $0 | |
| (+) Land Non-Homesite Value: | + | $58,690 | |
| (+) Curr Use (HS): | + | $0 | $0 |
| (+) Curr Use (NHS): | + | $0 | $0 |
| | | -------------------------- | |
| (=) Market Value: | = | $267,890 | |
| (–) Productivity Loss: | – | $0 | |
| | | -------------------------- | |
| (=) Subtotal: | = | $267,890 | |
| (+) Senior Appraised Value: | + | $0 | |
| (+) Non-Senior Appraised Value: | + | $267,890 | |
| | | -------------------------- | |
| (=) Total Appraised Value: | = | $267,890 | |
| (–) Senior Exemption Loss: | – | $0 | |
| (–) Exemption Loss: | – | $0 | |
| | | -------------------------- | |
| (=) Taxable Value: | = | $267,890 | |
Taxing Jurisdiction
| Owner: | WATTS TYRONE & TISH FAMILY TRUST | | |
| % Ownership: | 100.0000000000% | | |
| Total Value: | $267,890 | | |
| Tax Area: | 1 - OL-140-F |
| CERFD | CURRENT EXPENSE REFUND 010 | 0.0000000000 | $267,890 | $267,890 | $0.00 | | |
| CURREXP | CURRENT EXPENSE 010 | 1.0175366760 | $267,890 | $267,890 | $272.59 | | |
| HUMNSERV | HUMAN SERVICES 119 | 0.0250000000 | $267,890 | $267,890 | $6.70 | | |
| SLDREL | SOLDIERS RELIEF 121 | 0.0155990005 | $267,890 | $267,890 | $4.18 | | |
| EMERGSER | EMS 147 | 0.3792580840 | $267,890 | $267,890 | $101.60 | | |
| EMSRFD | EMS REFUND 147 | 0.0000000000 | $267,890 | $267,890 | $0.00 | | |
| PORTRFD | PORT REFUND 640 | 0.0000000000 | $267,890 | $267,890 | $0.00 | | |
| PORTWWGEN | PORT OF WW 640 | 0.2460186015 | $267,890 | $267,890 | $65.91 | | |
| SD140BOND | SD #140 BOND 764 | 0.8342371393 | $267,890 | $267,890 | $223.48 | | |
| SD140GEN | SD #140 GENERAL 760 | 2.0646500647 | $267,890 | $267,890 | $553.10 | | |
| ST2 | STATE SCHOOL PART 2 600 | 0.8131451643 | $267,890 | $267,890 | $217.83 | | |
| STATESCHL | STATE SCHOOL 600 | 1.5158548041 | $267,890 | $267,890 | $406.08 | | |
| STREFUND | STATE REFUND LEVY 603 | 0.0000000000 | $267,890 | $267,890 | $0.00 | | |
| CWWBOND | C OF WW BOND 643 | 0.2760494372 | $267,890 | $267,890 | $73.95 | | |
| CWWGEN | CITY OF WW 631 | 1.6100204973 | $267,890 | $267,890 | $431.31 | | |
| CWWRFD | CITY OF WALLA WALLA REFUND 631 | 0.0000000000 | $267,890 | $267,890 | $0.00 | | |
| | Total Tax Rate: | 8.7973694689 | | | | | |
| | | | | Taxes w/Current Exemptions: | $2,356.73 | | |
| | | | | Taxes w/o Exemptions: | $2,356.73 | | |
Improvement / Building
| Improvement #1: | RESIDENTIAL | State Code: | 11 | 1067.0 sqft | Value: | $209,200 |
| Exterior Wall: | SIDING | Heating/Cooling: | WARM & COOLED AIR | | Number of Bathrooms: | 1 | Number of Bedrooms: | 3 | | Plumbing: | 6 | Roof Covering: | COMP SHINGLE |
|
| | Type | Description | Class CD | Sub Class CD | Year Built | Area |
| | MA | Main Area | 1 | 30 | 1951 | 1067.0 |
| | SI1 | SITE IMPROVEMENT | 1 | 30 | 0 | 1.5 |
| | WOD | Wood Deck | 1 | 30 | 1951 | 800.0 |
| | OSP | Open | 1 | 30 | 1951 | 50.0 |
Sketch
Property Image
Land
| 1 | RES 1 | Converted: Residential | 0.2156 | 9390.00 | 0.00 | 0.00 | 1.00 | $58,690 | $0 |
Roll Value History
| 2026 | N/A | N/A | N/A | N/A | N/A |
| 2025 | $203,630 | $93,900 | $0 | $297,530 | $297,530 |
| 2024 | $177,070 | $93,900 | $0 | $270,970 | $270,970 |
| 2023 | $209,200 | $58,690 | $0 | $267,890 | $267,890 |
| 2022 | $199,240 | $58,690 | $0 | $257,930 | $257,930 |
| 2021 | $132,830 | $58,690 | $0 | $191,520 | $191,520 |
| 2020 | $115,500 | $58,690 | $0 | $174,190 | $174,190 |
| 2019 | $115,500 | $58,690 | $0 | $174,190 | $174,190 |
| 2018 | $110,000 | $58,690 | $0 | $168,690 | $168,690 |
| 2017 | $111,820 | $37,600 | $0 | $149,420 | $149,420 |
| 2016 | $106,490 | $37,600 | $0 | $144,090 | $144,090 |
| 2015 | $101,420 | $37,600 | $0 | $139,020 | $139,020 |
| 2014 | $92,200 | $37,600 | $0 | $129,800 | $129,800 |
| 2013 | $92,200 | $37,600 | $0 | $129,800 | $129,800 |
| 2012 | $109,000 | $37,600 | $0 | $0 | $0 |
| 2011 | $109,000 | $37,600 | $0 | $0 | $0 |
| 2010 | $102,000 | $37,600 | $0 | $0 | $0 |
| 2009 | $117,500 | $37,600 | $0 | $0 | $0 |
| 2008 | $81,700 | $37,600 | $0 | $0 | $0 |
| 2007 | $81,700 | $37,600 | $0 | $0 | $0 |
Deed and Sales History
| 1 | 04/23/2018 | QCD | QUIT CLAIM DEED | WATTS TYRONE L | WATTS TYRONE & TISH FAMILY TRUST | | | $0.00 | 134551 | 2018-03166 |
| 2 | 10/15/1979 | WARRANTY D | WARRANTY DEED | | | | | $39,000.00 | 0 | 1889-101684 |
Payout Agreement
| No payout information available.. |