Property
Account |
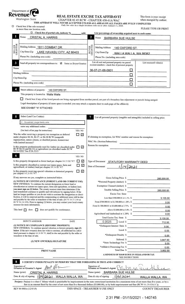
| Property ID: | 8285 | Abbreviated Legal Description: | EAST MILBROOKE PARK LOT 1 BLK 6 |
| Parcel Number: | 360721660601 | Agent Code: | |
| Type: | Real | | |
| Tax Area: | 1 - OL-140-F | Land Use Code | 11 |
| Open Space: | N | DFL | N |
| Historic Property: | N | Remodel Property: | N |
| Multi-Family Redevelopment: | N | | |
| Township: | 7 | Section: | 21 |
| Range: | 36 |
Location |
| Address: | 140 OXFORD ST WA 99362 | Mapsco: | |
| Neighborhood: | A-Superior SFR | Map ID: | |
| Neighborhood CD: | 413211 |
Owner |
| Name: | HULSE BARBARA | Owner ID: | 71582 |
| Mailing Address: | CODY ROSS HULSE 140 OXFORD ST WALLA WALLA, WA 99362 | % Ownership: | 100.0000000000% |
| | | Exemptions: | SNR/DSBL |
Taxes and Assessment Details
Property Tax Information as of
02/21/2026
Click on "Statement Details" to expand or collapse a tax statement.
* Please enter a valid date ** Please enter a valid date *
Statement Details |
| | TOTAL: | $0.00 | $0.00 | $0.00 | $0.00 | $0.00 | $0.00 |
|
| | $0.00 | $0.00 | $0.00 | $0.00 | $0.00 | $0.00 |
Values
| (+) Improvement Homesite Value: | + | $272,600 | |
| (+) Improvement Non-Homesite Value: | + | $0 | |
| (+) Land Homesite Value: | + | $48,640 | |
| (+) Land Non-Homesite Value: | + | $0 | |
| (+) Curr Use (HS): | + | $0 | $0 |
| (+) Curr Use (NHS): | + | $0 | $0 |
| | | -------------------------- | |
| (=) Market Value: | = | $321,240 | |
| (–) Productivity Loss: | – | $0 | |
| | | -------------------------- | |
| (=) Subtotal: | = | $321,240 | |
| (+) Senior Appraised Value: | + | $209,200 | |
| (+) Non-Senior Appraised Value: | + | $0 | |
| | | -------------------------- | |
| (=) Total Appraised Value: | = | $209,200 | |
| (–) Senior Exemption Loss: | – | $125,520 | |
| (–) Exemption Loss: | – | $0 | |
| | | -------------------------- | |
| (=) Taxable Value: | = | $83,680 | |
Taxing Jurisdiction
| Owner: | HULSE BARBARA | | |
| % Ownership: | 100.0000000000% | | |
| Total Value: | $321,240 | | |
| Tax Area: | 1 - OL-140-F |
| CERFD | CURRENT EXPENSE REFUND 010 | 0.0000000000 | $321,240 | $83,680 | $0.00 | | |
| CURREXP | CURRENT EXPENSE 010 | 1.0175366760 | $321,240 | $83,680 | $85.15 | | |
| HUMNSERV | HUMAN SERVICES 119 | 0.0250000000 | $321,240 | $83,680 | $2.09 | | |
| SLDREL | SOLDIERS RELIEF 121 | 0.0155990005 | $321,240 | $83,680 | $1.31 | | |
| EMERGSER | EMS 147 | 0.3792580840 | $321,240 | $83,680 | $31.74 | | |
| EMSRFD | EMS REFUND 147 | 0.0000000000 | $321,240 | $83,680 | $0.00 | | |
| PORTRFD | PORT REFUND 640 | 0.0000000000 | $321,240 | $83,680 | $0.00 | | |
| PORTWWGEN | PORT OF WW 640 | 0.2460186015 | $321,240 | $83,680 | $20.59 | | |
| SD140BOND | SD #140 BOND 764 | 0.0000000000 | $321,240 | $0 | $0.00 | | |
| SD140GEN | SD #140 GENERAL 760 | 0.0000000000 | $321,240 | $0 | $0.00 | | |
| ST2 | STATE SCHOOL PART 2 600 | 0.0000000000 | $321,240 | $0 | $0.00 | | |
| STATESCHL | STATE SCHOOL 600 | 1.5158548041 | $321,240 | $83,680 | $126.85 | | |
| STREFUND | STATE REFUND LEVY 603 | 0.0000000000 | $321,240 | $83,680 | $0.00 | | |
| CWWBOND | C OF WW BOND 643 | 0.0000000000 | $321,240 | $0 | $0.00 | | |
| CWWGEN | CITY OF WW 631 | 1.6100204973 | $321,240 | $83,680 | $134.73 | | |
| CWWRFD | CITY OF WALLA WALLA REFUND 631 | 0.0000000000 | $321,240 | $83,680 | $0.00 | | |
| | Total Tax Rate: | 4.8092876634 | | | | | |
| | | | | Taxes w/Current Exemptions: | $402.46 | | |
| | | | | Taxes w/o Exemptions: | $2,826.05 | | |
Improvement / Building
| Improvement #1: | RESIDENTIAL | State Code: | 11 | 1120.0 sqft | Value: | $272,600 |
| Exterior Wall: | SIDING | Heating/Cooling: | FORCED AIR | | Number of Bathrooms: | 2 | Number of Bedrooms: | 5 | | Plumbing: | 9 | Roof Covering: | COMP SHINGLE |
|
| | Type | Description | Class CD | Sub Class CD | Year Built | Area |
| | MA | Main Area | 1 | 30 | 1956 | 1120.0 |
| | SI1 | SITE IMPROVEMENT | 1 | 30 | 0 | 2.5 |
| | BASE | BASEMENT | 1 | 30 | 1956 | 1120.0 |
| | OPS | OPEN PORCH W/STEPS | 1 | 30 | 1956 | 30.0 |
| | BPF | BASEMENT -PARTITIONED FINISH | 1 | 30 | 1956 | 820.0 |
| | S1F | Single One Story Fireplace | 1 | 30 | 1956 | 1.0 |
Sketch
Property Image
Land
| 1 | RES 1 | Converted: Residential | 0.1396 | 6080.00 | 0.00 | 0.00 | 1.00 | $48,640 | $0 |
Roll Value History
| 2026 | N/A | N/A | N/A | N/A | N/A |
| 2025 | $286,230 | $48,640 | $0 | $334,870 | $83,680 |
| 2024 | $272,600 | $48,640 | $0 | $321,240 | $83,680 |
| 2023 | $272,600 | $48,640 | $0 | $321,240 | $83,680 |
| 2022 | $275,230 | $31,920 | $0 | $307,150 | $83,680 |
| 2021 | $203,870 | $31,920 | $0 | $235,790 | $83,680 |
| 2020 | $177,280 | $31,920 | $0 | $209,200 | $83,680 |
| 2019 | $177,280 | $31,920 | $0 | $209,200 | $209,200 |
| 2018 | $147,740 | $31,920 | $0 | $179,660 | $179,660 |
| 2017 | $140,700 | $31,920 | $0 | $172,620 | $172,620 |
| 2016 | $140,700 | $24,300 | $0 | $165,000 | $165,000 |
| 2015 | $140,700 | $24,300 | $0 | $165,000 | $165,000 |
| 2014 | $140,700 | $24,300 | $0 | $165,000 | $165,000 |
| 2013 | $140,700 | $24,300 | $0 | $165,000 | $165,000 |
| 2012 | $125,700 | $24,300 | $0 | $0 | $0 |
| 2011 | $163,300 | $24,300 | $0 | $0 | $0 |
| 2010 | $146,200 | $24,300 | $0 | $0 | $0 |
| 2009 | $165,100 | $24,300 | $0 | $0 | $0 |
| 2008 | $127,200 | $24,300 | $0 | $0 | $0 |
| 2007 | $127,200 | $24,300 | $0 | $0 | $0 |
Deed and Sales History
| 1 | 04/14/2022 | WARRANTY D | WARRANTY DEED | HULSE BARBARA SUE | HULSE BARBARA | | | $0.00 | 143871 | 2022-03719 |
| 2 | 01/15/2021 | SWD | STATUTORY WARRANTY DEED | HARRIS CRISTAL A | HULSE BARBARA SUE | | | $285,000.00 | 140745 | 2021-00621 |
| 3 | 01/26/1995 | WARRANTY D | WARRANTY DEED | | | | | $66,000.00 | 83420 | 2279-500814 |
Payout Agreement
| No payout information available.. |