Property
Account |
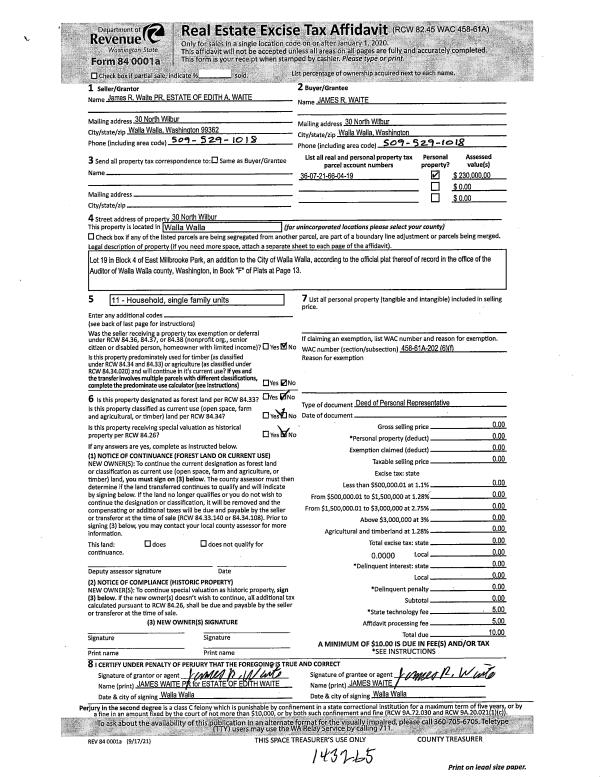
| Property ID: | 8269 | Abbreviated Legal Description: | EAST MILBROOKE PARK LOT 19 BLK 4 |
| Parcel Number: | 360721660419 | Agent Code: | |
| Type: | Real | | |
| Tax Area: | 1 - OL-140-F | Land Use Code | 11 |
| Open Space: | N | DFL | N |
| Historic Property: | N | Remodel Property: | N |
| Multi-Family Redevelopment: | N | | |
| Township: | 7 | Section: | 21 |
| Range: | 36 |
Location |
| Address: | 30 N WILBUR AVE WA 99362 | Mapsco: | |
| Neighborhood: | A-Superior SFR | Map ID: | |
| Neighborhood CD: | 413211 |
Owner |
| Name: | WAITE JAMES RANDOLPH | Owner ID: | 71713 |
| Mailing Address: | 30 N WILBUR AVE WALLA WALLA, WA 99362 | % Ownership: | 100.0000000000% |
| | | Exemptions: | |
Taxes and Assessment Details
Property Tax Information as of
02/21/2026
Click on "Statement Details" to expand or collapse a tax statement.
* Please enter a valid date ** Please enter a valid date *
Statement Details |
| | TOTAL: | $0.00 | $0.00 | $0.00 | $0.00 | $0.00 | $0.00 |
|
| | $0.00 | $0.00 | $0.00 | $0.00 | $0.00 | $0.00 |
Values
| (+) Improvement Homesite Value: | + | $0 | |
| (+) Improvement Non-Homesite Value: | + | $276,200 | |
| (+) Land Homesite Value: | + | $0 | |
| (+) Land Non-Homesite Value: | + | $40,000 | |
| (+) Curr Use (HS): | + | $0 | $0 |
| (+) Curr Use (NHS): | + | $0 | $0 |
| | | -------------------------- | |
| (=) Market Value: | = | $316,200 | |
| (–) Productivity Loss: | – | $0 | |
| | | -------------------------- | |
| (=) Subtotal: | = | $316,200 | |
| (+) Senior Appraised Value: | + | $0 | |
| (+) Non-Senior Appraised Value: | + | $316,200 | |
| | | -------------------------- | |
| (=) Total Appraised Value: | = | $316,200 | |
| (–) Senior Exemption Loss: | – | $0 | |
| (–) Exemption Loss: | – | $0 | |
| | | -------------------------- | |
| (=) Taxable Value: | = | $316,200 | |
Taxing Jurisdiction
| Owner: | WAITE JAMES RANDOLPH | | |
| % Ownership: | 100.0000000000% | | |
| Total Value: | $316,200 | | |
| Tax Area: | 1 - OL-140-F |
| CERFD | CURRENT EXPENSE REFUND 010 | 0.0000000000 | $316,200 | $316,200 | $0.00 | | |
| CURREXP | CURRENT EXPENSE 010 | 1.0175366760 | $316,200 | $316,200 | $321.75 | | |
| HUMNSERV | HUMAN SERVICES 119 | 0.0250000000 | $316,200 | $316,200 | $7.91 | | |
| SLDREL | SOLDIERS RELIEF 121 | 0.0155990005 | $316,200 | $316,200 | $4.93 | | |
| EMERGSER | EMS 147 | 0.3792580840 | $316,200 | $316,200 | $119.92 | | |
| EMSRFD | EMS REFUND 147 | 0.0000000000 | $316,200 | $316,200 | $0.00 | | |
| PORTRFD | PORT REFUND 640 | 0.0000000000 | $316,200 | $316,200 | $0.00 | | |
| PORTWWGEN | PORT OF WW 640 | 0.2460186015 | $316,200 | $316,200 | $77.79 | | |
| SD140BOND | SD #140 BOND 764 | 0.8342371393 | $316,200 | $316,200 | $263.79 | | |
| SD140GEN | SD #140 GENERAL 760 | 2.0646500647 | $316,200 | $316,200 | $652.84 | | |
| ST2 | STATE SCHOOL PART 2 600 | 0.8131451643 | $316,200 | $316,200 | $257.12 | | |
| STATESCHL | STATE SCHOOL 600 | 1.5158548041 | $316,200 | $316,200 | $479.31 | | |
| STREFUND | STATE REFUND LEVY 603 | 0.0000000000 | $316,200 | $316,200 | $0.00 | | |
| CWWBOND | C OF WW BOND 643 | 0.2760494372 | $316,200 | $316,200 | $87.29 | | |
| CWWGEN | CITY OF WW 631 | 1.6100204973 | $316,200 | $316,200 | $509.09 | | |
| CWWRFD | CITY OF WALLA WALLA REFUND 631 | 0.0000000000 | $316,200 | $316,200 | $0.00 | | |
| | Total Tax Rate: | 8.7973694689 | | | | | |
| | | | | Taxes w/Current Exemptions: | $2,781.74 | | |
| | | | | Taxes w/o Exemptions: | $2,781.74 | | |
Improvement / Building
| Improvement #1: | RESIDENTIAL | State Code: | 11 | 1120.0 sqft | Value: | $276,200 |
| Exterior Wall: | SIDING | Heating/Cooling: | WARM & COOLED AIR | | Number of Bathrooms: | 2 | Number of Bedrooms: | 3 | | Plumbing: | 8 | Roof Covering: | COMP SHINGLE |
|
| | Type | Description | Class CD | Sub Class CD | Year Built | Area |
| | MA | Main Area | 1 | 30 | 1958 | 1120.0 |
| | CPC | COVERED CARPORT/PATIO | 1 | 30 | 0 | 300.0 |
| | SI1 | SITE IMPROVEMENT | 1 | 30 | 0 | 2.5 |
| | BASE | BASEMENT | 1 | 30 | 1958 | 1120.0 |
| | OPS | OPEN PORCH W/STEPS | 1 | 30 | 1958 | 30.0 |
| | BPF | BASEMENT -PARTITIONED FINISH | 1 | 30 | 1958 | 750.0 |
| | S1F | Single One Story Fireplace | 1 | 30 | 1958 | 1.0 |
Sketch
Property Image
Land
| 1 | RES 1 | Converted: Residential | 0.1148 | 5000.00 | 0.00 | 0.00 | 1.00 | $40,000 | $0 |
Roll Value History
| 2026 | N/A | N/A | N/A | N/A | N/A |
| 2025 | $290,010 | $40,000 | $0 | $330,010 | $330,010 |
| 2024 | $276,200 | $40,000 | $0 | $316,200 | $316,200 |
| 2023 | $276,200 | $40,000 | $0 | $316,200 | $316,200 |
| 2022 | $285,680 | $26,250 | $0 | $311,930 | $311,930 |
| 2021 | $204,050 | $26,250 | $0 | $230,300 | $230,300 |
| 2020 | $177,440 | $26,250 | $0 | $203,690 | $203,690 |
| 2019 | $177,440 | $26,250 | $0 | $203,690 | $203,690 |
| 2018 | $141,950 | $26,250 | $0 | $168,200 | $168,200 |
| 2017 | $135,190 | $26,250 | $0 | $161,440 | $161,440 |
| 2016 | $135,190 | $20,000 | $0 | $155,190 | $155,190 |
| 2015 | $122,900 | $20,000 | $0 | $142,900 | $142,900 |
| 2014 | $122,900 | $20,000 | $0 | $142,900 | $142,900 |
| 2013 | $122,900 | $20,000 | $0 | $142,900 | $142,900 |
| 2012 | $109,900 | $20,000 | $0 | $0 | $0 |
| 2011 | $165,900 | $20,000 | $0 | $0 | $0 |
| 2010 | $149,000 | $20,000 | $0 | $0 | $0 |
| 2009 | $167,800 | $20,000 | $0 | $0 | $0 |
| 2008 | $130,200 | $20,000 | $0 | $0 | $0 |
| 2007 | $130,200 | $20,000 | $0 | $0 | $0 |
Deed and Sales History
| 1 | 05/24/2022 | DPR | DEED OF PERSONAL REPRESENTATIVE | WAITE EDITH A ESTATE | WAITE JAMES RANDOLPH | | | $0.00 | 144009 | 2022-04479 |
| 2 | 01/22/2022 | LOPA | LACK OF PROBATE AFFIDAVIT | WAITE JAMES V & EDITH A | WAITE EDITH A ESTATE | | | $0.00 | 143687 | 2022-02743 |
| 3 | | DPR | DEED OF PERSONAL REPRESENTATIVE | WAITE EDITH A ESTATE | | | | | 143265 | NO DEED |
| 4 | 10/05/1992 | WARRANTY D | WARRANTY DEED | | | | | $85,000.00 | 77733 | 2009-208900 |
Payout Agreement
| No payout information available.. |