Property
Account |
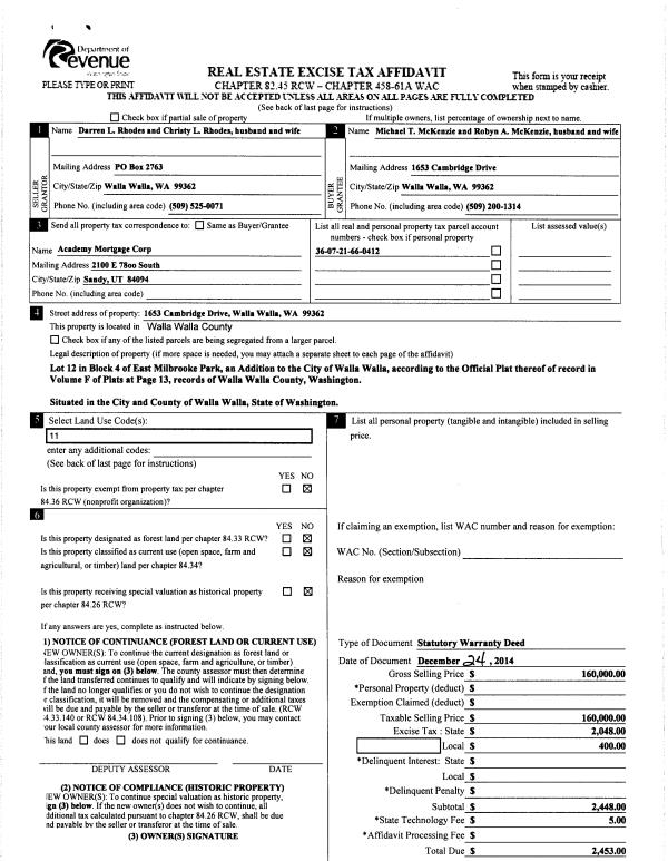
| Property ID: | 8264 | Abbreviated Legal Description: | EAST MILBROOKE PARK LOT 12 BLK 4 |
| Parcel Number: | 360721660412 | Agent Code: | |
| Type: | Real | | |
| Tax Area: | 1 - OL-140-F | Land Use Code | 11 |
| Open Space: | N | DFL | N |
| Historic Property: | N | Remodel Property: | N |
| Multi-Family Redevelopment: | N | | |
| Township: | 7 | Section: | 21 |
| Range: | 36 |
Location |
| Address: | 1653 CAMBRIDGE DR WA 99362 | Mapsco: | |
| Neighborhood: | A-Superior SFR | Map ID: | |
| Neighborhood CD: | 413211 |
Owner |
| Name: | MC KENZIE MICHAEL T & ROBYN A | Owner ID: | 55904 |
| Mailing Address: | 1653 CAMBRIDGE DR WALLA WALLA, WA 99362 | % Ownership: | 100.0000000000% |
| | | Exemptions: | |
Taxes and Assessment Details
Values
| (+) Improvement Homesite Value: | + | $0 | |
| (+) Improvement Non-Homesite Value: | + | $297,000 | |
| (+) Land Homesite Value: | + | $0 | |
| (+) Land Non-Homesite Value: | + | $52,800 | |
| (+) Curr Use (HS): | + | $0 | $0 |
| (+) Curr Use (NHS): | + | $0 | $0 |
| | | -------------------------- | |
| (=) Market Value: | = | $349,800 | |
| (–) Productivity Loss: | – | $0 | |
| | | -------------------------- | |
| (=) Subtotal: | = | $349,800 | |
| (+) Senior Appraised Value: | + | $0 | |
| (+) Non-Senior Appraised Value: | + | $349,800 | |
| | | -------------------------- | |
| (=) Total Appraised Value: | = | $349,800 | |
| (–) Senior Exemption Loss: | – | $0 | |
| (–) Exemption Loss: | – | $0 | |
| | | -------------------------- | |
| (=) Taxable Value: | = | $349,800 | |
Taxing Jurisdiction
| Owner: | MC KENZIE MICHAEL T & ROBYN A | | |
| % Ownership: | 100.0000000000% | | |
| Total Value: | $349,800 | | |
| Tax Area: | 1 - OL-140-F |
| CERFD | CURRENT EXPENSE REFUND 010 | 0.0000000000 | $349,800 | $349,800 | $0.00 | | |
| CURREXP | CURRENT EXPENSE 010 | 1.0175366760 | $349,800 | $349,800 | $355.93 | | |
| HUMNSERV | HUMAN SERVICES 119 | 0.0250000000 | $349,800 | $349,800 | $8.75 | | |
| SLDREL | SOLDIERS RELIEF 121 | 0.0155990005 | $349,800 | $349,800 | $5.46 | | |
| EMERGSER | EMS 147 | 0.3792580840 | $349,800 | $349,800 | $132.66 | | |
| EMSRFD | EMS REFUND 147 | 0.0000000000 | $349,800 | $349,800 | $0.00 | | |
| PORTRFD | PORT REFUND 640 | 0.0000000000 | $349,800 | $349,800 | $0.00 | | |
| PORTWWGEN | PORT OF WW 640 | 0.2460186015 | $349,800 | $349,800 | $86.06 | | |
| SD140BOND | SD #140 BOND 764 | 0.8342371393 | $349,800 | $349,800 | $291.82 | | |
| SD140GEN | SD #140 GENERAL 760 | 2.0646500647 | $349,800 | $349,800 | $722.21 | | |
| ST2 | STATE SCHOOL PART 2 600 | 0.8131451643 | $349,800 | $349,800 | $284.44 | | |
| STATESCHL | STATE SCHOOL 600 | 1.5158548041 | $349,800 | $349,800 | $530.25 | | |
| STREFUND | STATE REFUND LEVY 603 | 0.0000000000 | $349,800 | $349,800 | $0.00 | | |
| CWWBOND | C OF WW BOND 643 | 0.2760494372 | $349,800 | $349,800 | $96.56 | | |
| CWWGEN | CITY OF WW 631 | 1.6100204973 | $349,800 | $349,800 | $563.19 | | |
| CWWRFD | CITY OF WALLA WALLA REFUND 631 | 0.0000000000 | $349,800 | $349,800 | $0.00 | | |
| | Total Tax Rate: | 8.7973694689 | | | | | |
| | | | | Taxes w/Current Exemptions: | $3,077.33 | | |
| | | | | Taxes w/o Exemptions: | $3,077.33 | | |
Improvement / Building
| Improvement #1: | RESIDENTIAL | State Code: | 11 | 1120.0 sqft | Value: | $297,000 |
| Exterior Wall: | SIDING | Heating/Cooling: | WARM & COOLED AIR | | Number of Bathrooms: | 2 | Number of Bedrooms: | 4 | | Plumbing: | 9 | Roof Covering: | COMP SHINGLE |
|
| | Type | Description | Class CD | Sub Class CD | Year Built | Area |
| | MA | Main Area | 1 | 30 | 1957 | 1120.0 |
| | CPC | COVERED CARPORT/PATIO | 1 | 30 | 0 | 228.0 |
| | CPC | COVERED CARPORT/PATIO | 1 | 30 | 0 | 320.0 |
| | SI1 | SITE IMPROVEMENT | 1 | 30 | 0 | 3.0 |
| | BASE | BASEMENT | 1 | 30 | 1957 | 1120.0 |
| | OPS | OPEN PORCH W/STEPS | 1 | 30 | 1957 | 30.0 |
| | BPF | BASEMENT -PARTITIONED FINISH | 1 | 30 | 1957 | 1120.0 |
| | S1F | Single One Story Fireplace | 1 | 30 | 1957 | 1.0 |
| | SOLR | SOLAR POWER PANELS | 1 | 30 | 1957 | 25.0 |
Sketch
Property Image
Land
| 1 | RES 1 | Converted: Residential | 0.1515 | 6600.00 | 0.00 | 0.00 | 1.00 | $52,800 | $0 |
Roll Value History
| 2026 | N/A | N/A | N/A | N/A | N/A |
| 2025 | $280,670 | $52,800 | $0 | $333,470 | $333,470 |
| 2024 | $267,300 | $52,800 | $0 | $320,100 | $320,100 |
| 2023 | $297,000 | $52,800 | $0 | $349,800 | $349,800 |
| 2022 | $266,600 | $34,650 | $0 | $301,250 | $301,250 |
| 2021 | $205,080 | $34,650 | $0 | $239,730 | $239,730 |
| 2020 | $178,330 | $34,650 | $0 | $212,980 | $212,980 |
| 2019 | $178,330 | $34,650 | $0 | $212,980 | $212,980 |
| 2018 | $142,660 | $34,650 | $0 | $177,310 | $177,310 |
| 2017 | $135,870 | $34,650 | $0 | $170,520 | $170,520 |
| 2016 | $135,870 | $26,400 | $0 | $162,270 | $162,270 |
| 2015 | $129,400 | $26,400 | $0 | $155,800 | $155,800 |
| 2014 | $129,400 | $26,400 | $0 | $155,800 | $155,800 |
| 2013 | $129,400 | $26,400 | $0 | $155,800 | $155,800 |
| 2012 | $137,600 | $26,400 | $0 | $0 | $0 |
| 2011 | $136,000 | $26,400 | $0 | $0 | $0 |
| 2010 | $121,200 | $26,400 | $0 | $0 | $0 |
| 2009 | $137,600 | $26,400 | $0 | $0 | $0 |
| 2008 | $122,700 | $26,400 | $0 | $0 | $0 |
| 2007 | $122,700 | $26,400 | $0 | $0 | $0 |
Deed and Sales History
| 1 | 06/10/2025 | SWD | STATUTORY WARRANTY DEED | MCKENZIE MICHAEL T | MINK TANNER J | | | $291,000.00 | 149510 | 2025-03267 |
| 2 | 06/10/2025 | LOPA | LACK OF PROBATE AFFIDAVIT | MC KENZIE MICHAEL T & ROBYN A | MCKENZIE MICHAEL T | | | | 149508 | 2025-03266 |
| 3 | 12/29/2014 | SWD | STATUTORY WARRANTY DEED | RHODES DARREN L & CHRISTY L | MC KENZIE MICHAEL T & ROBYN A | | | $160,000.00 | 127191 | 2014-09453 |
| 4 | 09/29/2000 | WARRANTY D | WARRANTY DEED | | | | | $87,500.00 | 95896 | 3030-009333 |
Payout Agreement
| No payout information available.. |