Property
Account |
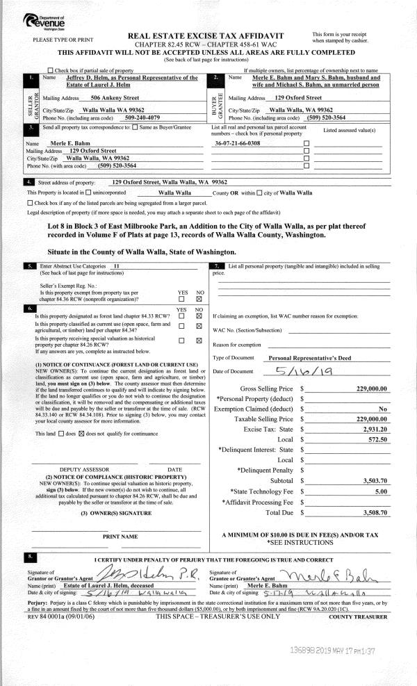
| Property ID: | 8256 | Abbreviated Legal Description: | EAST MILBROOKE PARK LOT 8 BLK 3 |
| Parcel Number: | 360721660308 | Agent Code: | |
| Type: | Real | | |
| Tax Area: | 1 - OL-140-F | Land Use Code | 11 |
| Open Space: | N | DFL | N |
| Historic Property: | N | Remodel Property: | N |
| Multi-Family Redevelopment: | N | | |
| Township: | 7 | Section: | 21 |
| Range: | 36 |
Location |
| Address: | 129 OXFORD ST WA 99362 | Mapsco: | |
| Neighborhood: | A-Superior SFR | Map ID: | |
| Neighborhood CD: | 413211 |
Owner |
| Name: | BAHM MERLE E & MARY S | Owner ID: | 65119 |
| Mailing Address: | MICHAEL S BAHM 129 OXFORD ST WALLA WALLA, WA 99362 | % Ownership: | 100.0000000000% |
| | | Exemptions: | |
Taxes and Assessment Details
Property Tax Information as of
02/21/2026
Click on "Statement Details" to expand or collapse a tax statement.
* Please enter a valid date ** Please enter a valid date *
Statement Details |
| | TOTAL: | $0.00 | $0.00 | $0.00 | $0.00 | $0.00 | $0.00 |
|
| | $0.00 | $0.00 | $0.00 | $0.00 | $0.00 | $0.00 |
Values
| (+) Improvement Homesite Value: | + | $0 | |
| (+) Improvement Non-Homesite Value: | + | $283,550 | |
| (+) Land Homesite Value: | + | $0 | |
| (+) Land Non-Homesite Value: | + | $52,800 | |
| (+) Curr Use (HS): | + | $0 | $0 |
| (+) Curr Use (NHS): | + | $0 | $0 |
| | | -------------------------- | |
| (=) Market Value: | = | $336,350 | |
| (–) Productivity Loss: | – | $0 | |
| | | -------------------------- | |
| (=) Subtotal: | = | $336,350 | |
| (+) Senior Appraised Value: | + | $0 | |
| (+) Non-Senior Appraised Value: | + | $336,350 | |
| | | -------------------------- | |
| (=) Total Appraised Value: | = | $336,350 | |
| (–) Senior Exemption Loss: | – | $0 | |
| (–) Exemption Loss: | – | $0 | |
| | | -------------------------- | |
| (=) Taxable Value: | = | $336,350 | |
Taxing Jurisdiction
| Owner: | BAHM MERLE E & MARY S | | |
| % Ownership: | 100.0000000000% | | |
| Total Value: | $336,350 | | |
| Tax Area: | 1 - OL-140-F |
| CERFD | CURRENT EXPENSE REFUND 010 | 0.0000000000 | $336,350 | $336,350 | $0.00 | | |
| CURREXP | CURRENT EXPENSE 010 | 1.0175366760 | $336,350 | $336,350 | $342.25 | | |
| HUMNSERV | HUMAN SERVICES 119 | 0.0250000000 | $336,350 | $336,350 | $8.41 | | |
| SLDREL | SOLDIERS RELIEF 121 | 0.0155990005 | $336,350 | $336,350 | $5.25 | | |
| EMERGSER | EMS 147 | 0.3792580840 | $336,350 | $336,350 | $127.56 | | |
| EMSRFD | EMS REFUND 147 | 0.0000000000 | $336,350 | $336,350 | $0.00 | | |
| PORTRFD | PORT REFUND 640 | 0.0000000000 | $336,350 | $336,350 | $0.00 | | |
| PORTWWGEN | PORT OF WW 640 | 0.2460186015 | $336,350 | $336,350 | $82.75 | | |
| SD140BOND | SD #140 BOND 764 | 0.8342371393 | $336,350 | $336,350 | $280.60 | | |
| SD140GEN | SD #140 GENERAL 760 | 2.0646500647 | $336,350 | $336,350 | $694.45 | | |
| ST2 | STATE SCHOOL PART 2 600 | 0.8131451643 | $336,350 | $336,350 | $273.50 | | |
| STATESCHL | STATE SCHOOL 600 | 1.5158548041 | $336,350 | $336,350 | $509.86 | | |
| STREFUND | STATE REFUND LEVY 603 | 0.0000000000 | $336,350 | $336,350 | $0.00 | | |
| CWWBOND | C OF WW BOND 643 | 0.2760494372 | $336,350 | $336,350 | $92.85 | | |
| CWWGEN | CITY OF WW 631 | 1.6100204973 | $336,350 | $336,350 | $541.53 | | |
| CWWRFD | CITY OF WALLA WALLA REFUND 631 | 0.0000000000 | $336,350 | $336,350 | $0.00 | | |
| | Total Tax Rate: | 8.7973694689 | | | | | |
| | | | | Taxes w/Current Exemptions: | $2,959.01 | | |
| | | | | Taxes w/o Exemptions: | $2,959.01 | | |
Improvement / Building
| Improvement #1: | RESIDENTIAL | State Code: | 11 | 1120.0 sqft | Value: | $283,550 |
| Exterior Wall: | VINYL | Heating/Cooling: | WARM & COOLED AIR | | Number of Bathrooms: | 2 | Number of Bedrooms: | 4 | | Plumbing: | 9 | Roof Covering: | COMP SHINGLE |
|
| | Type | Description | Class CD | Sub Class CD | Year Built | Area |
| | MA | Main Area | 1 | 30 | 1955 | 1120.0 |
| | CPC | COVERED CARPORT/PATIO | 1 | 30 | 0 | 220.0 |
| | SI1 | SITE IMPROVEMENT | 1 | 30 | 0 | 2.5 |
| | BASE | BASEMENT | 1 | 30 | 1955 | 1120.0 |
| | OPS | OPEN PORCH W/STEPS | 1 | 30 | 1955 | 30.0 |
| | BPF | BASEMENT -PARTITIONED FINISH | 1 | 30 | 1955 | 590.0 |
| | DTG | Detached Garage | 1 | 30 | 1955 | 336.0 |
| | S1F | Single One Story Fireplace | 1 | 30 | 1955 | 1.0 |
Sketch
Property Image
Land
| 1 | RES 1 | Converted: Residential | 0.1515 | 6600.00 | 0.00 | 0.00 | 1.00 | $52,800 | $0 |
Roll Value History
| 2026 | N/A | N/A | N/A | N/A | N/A |
| 2025 | $267,960 | $52,800 | $0 | $320,760 | $320,760 |
| 2024 | $255,200 | $52,800 | $0 | $308,000 | $308,000 |
| 2023 | $283,550 | $52,800 | $0 | $336,350 | $336,350 |
| 2022 | $268,500 | $34,650 | $0 | $303,150 | $303,150 |
| 2021 | $198,890 | $34,650 | $0 | $233,540 | $233,540 |
| 2020 | $172,950 | $34,650 | $0 | $207,600 | $207,600 |
| 2019 | $172,950 | $34,650 | $0 | $207,600 | $207,600 |
| 2018 | $138,360 | $34,650 | $0 | $173,010 | $63,268 |
| 2017 | $131,770 | $34,650 | $0 | $166,420 | $63,268 |
| 2016 | $131,770 | $26,400 | $0 | $158,170 | $158,170 |
| 2015 | $125,500 | $26,400 | $0 | $151,900 | $151,900 |
| 2014 | $132,100 | $26,400 | $0 | $158,500 | $158,500 |
| 2013 | $132,100 | $26,400 | $0 | $158,500 | $158,500 |
| 2012 | $132,100 | $26,400 | $0 | $0 | $0 |
| 2011 | $160,800 | $26,400 | $0 | $0 | $0 |
| 2010 | $143,800 | $26,400 | $0 | $0 | $0 |
| 2009 | $162,700 | $26,400 | $0 | $0 | $0 |
| 2008 | $124,900 | $26,400 | $0 | $0 | $0 |
| 2007 | $124,900 | $26,400 | $0 | $0 | $0 |
Deed and Sales History
| 1 | 05/21/2025 | LOPA | LACK OF PROBATE AFFIDAVIT | BAHM MERLE E & MARY S | BAHM MARY S & MICHAEL S BAHM | | | | 149417 | 2025-02808 |
| 2 | 05/17/2019 | DPR | DEED OF PERSONAL REPRESENTATIVE | HELM LAUREL J ESTATE OF | BAHM MERLE E & MARY S | | | $229,000.00 | 136898 | 2019-03310 |
| 3 | 01/28/1988 | WARRANTY D | WARRANTY DEED | | | | | $56,600.00 | 0 | 1688-800614 |
Payout Agreement
| No payout information available.. |