Property
Account |
| Property ID: | 8242 | Abbreviated Legal Description: | MILBROOKE PARK LOT 5 BLK 7 |
| Parcel Number: | 360721650705 | Agent Code: | |
| Type: | Real | | |
| Tax Area: | 1 - OL-140-F | Land Use Code | 11 |
| Open Space: | N | DFL | N |
| Historic Property: | N | Remodel Property: | N |
| Multi-Family Redevelopment: | N | | |
| Township: | 7 | Section: | 21 |
| Range: | 36 |
Location |
| Address: | 19 CASCADE DR WA 99362 | Mapsco: | |
| Neighborhood: | A-Superior SFR | Map ID: | |
| Neighborhood CD: | 513211 |
Owner |
| Name: | DAVIS DONALD J & TERA L | Owner ID: | 69176 |
| Mailing Address: | 837 WALLOWA DR WALLA WALLA, WA 99362 | % Ownership: | 100.0000000000% |
| | | Exemptions: | |
Taxes and Assessment Details
Property Tax Information as of
02/21/2026
Click on "Statement Details" to expand or collapse a tax statement.
* Please enter a valid date ** Please enter a valid date *
Statement Details |
| | TOTAL: | $0.00 | $0.00 | $0.00 | $0.00 | $0.00 | $0.00 |
|
| | $0.00 | $0.00 | $0.00 | $0.00 | $0.00 | $0.00 |
Values
| (+) Improvement Homesite Value: | + | $0 | |
| (+) Improvement Non-Homesite Value: | + | $180,900 | |
| (+) Land Homesite Value: | + | $0 | |
| (+) Land Non-Homesite Value: | + | $44,550 | |
| (+) Curr Use (HS): | + | $0 | $0 |
| (+) Curr Use (NHS): | + | $0 | $0 |
| | | -------------------------- | |
| (=) Market Value: | = | $225,450 | |
| (–) Productivity Loss: | – | $0 | |
| | | -------------------------- | |
| (=) Subtotal: | = | $225,450 | |
| (+) Senior Appraised Value: | + | $0 | |
| (+) Non-Senior Appraised Value: | + | $225,450 | |
| | | -------------------------- | |
| (=) Total Appraised Value: | = | $225,450 | |
| (–) Senior Exemption Loss: | – | $0 | |
| (–) Exemption Loss: | – | $0 | |
| | | -------------------------- | |
| (=) Taxable Value: | = | $225,450 | |
Taxing Jurisdiction
| Owner: | DAVIS DONALD J & TERA L | | |
| % Ownership: | 100.0000000000% | | |
| Total Value: | $225,450 | | |
| Tax Area: | 1 - OL-140-F |
| CERFD | CURRENT EXPENSE REFUND 010 | 0.0000000000 | $225,450 | $225,450 | $0.00 | | |
| CURREXP | CURRENT EXPENSE 010 | 1.0175366760 | $225,450 | $225,450 | $229.40 | | |
| HUMNSERV | HUMAN SERVICES 119 | 0.0250000000 | $225,450 | $225,450 | $5.64 | | |
| SLDREL | SOLDIERS RELIEF 121 | 0.0155990005 | $225,450 | $225,450 | $3.52 | | |
| EMERGSER | EMS 147 | 0.3792580840 | $225,450 | $225,450 | $85.50 | | |
| EMSRFD | EMS REFUND 147 | 0.0000000000 | $225,450 | $225,450 | $0.00 | | |
| PORTRFD | PORT REFUND 640 | 0.0000000000 | $225,450 | $225,450 | $0.00 | | |
| PORTWWGEN | PORT OF WW 640 | 0.2460186015 | $225,450 | $225,450 | $55.46 | | |
| SD140BOND | SD #140 BOND 764 | 0.8342371393 | $225,450 | $225,450 | $188.08 | | |
| SD140GEN | SD #140 GENERAL 760 | 2.0646500647 | $225,450 | $225,450 | $465.48 | | |
| ST2 | STATE SCHOOL PART 2 600 | 0.8131451643 | $225,450 | $225,450 | $183.32 | | |
| STATESCHL | STATE SCHOOL 600 | 1.5158548041 | $225,450 | $225,450 | $341.75 | | |
| STREFUND | STATE REFUND LEVY 603 | 0.0000000000 | $225,450 | $225,450 | $0.00 | | |
| CWWBOND | C OF WW BOND 643 | 0.2760494372 | $225,450 | $225,450 | $62.24 | | |
| CWWGEN | CITY OF WW 631 | 1.6100204973 | $225,450 | $225,450 | $362.98 | | |
| CWWRFD | CITY OF WALLA WALLA REFUND 631 | 0.0000000000 | $225,450 | $225,450 | $0.00 | | |
| | Total Tax Rate: | 8.7973694689 | | | | | |
| | | | | Taxes w/Current Exemptions: | $1,983.37 | | |
| | | | | Taxes w/o Exemptions: | $1,983.37 | | |
Improvement / Building
| Improvement #1: | RESIDENTIAL | State Code: | 11 | 1092.0 sqft | Value: | $180,900 |
| Exterior Wall: | SIDING | Heating/Cooling: | FORCED AIR | | Number of Bathrooms: | 1 | Number of Bedrooms: | 3 | | Plumbing: | 6 | Roof Covering: | COMP SHINGLE |
|
| | Type | Description | Class CD | Sub Class CD | Year Built | Area |
| | MA | Main Area | 1 | 30 | 1949 | 1092.0 |
| | SI1 | SITE IMPROVEMENT | 1 | 30 | 1949 | 1.5 |
| | RPO | OPEN PORCH W/ROOF | 1 | 30 | 1949 | 30.0 |
| | UTST | Utility Storage Shed | 1 | 30 | 1949 | 192.0 |
| | CPC | COVERED CARPORT/PATIO | 1 | 30 | 1949 | 144.0 |
Sketch
Property Image
Land
| 1 | RES 1 | Converted: Residential | 0.1636 | 7128.00 | 0.00 | 0.00 | 1.00 | $44,550 | $0 |
Roll Value History
| 2026 | N/A | N/A | N/A | N/A | N/A |
| 2025 | $188,270 | $71,280 | $0 | $259,550 | $259,550 |
| 2024 | $156,890 | $71,280 | $0 | $228,170 | $228,170 |
| 2023 | $180,900 | $44,550 | $0 | $225,450 | $225,450 |
| 2022 | $180,900 | $44,550 | $0 | $225,450 | $225,450 |
| 2021 | $157,300 | $44,550 | $0 | $201,850 | $201,850 |
| 2020 | $143,000 | $44,550 | $0 | $187,550 | $187,550 |
| 2019 | $143,000 | $44,550 | $0 | $187,550 | $187,550 |
| 2018 | $110,000 | $44,550 | $0 | $154,550 | $154,550 |
| 2017 | $117,680 | $28,500 | $0 | $146,180 | $146,180 |
| 2016 | $98,070 | $28,500 | $0 | $126,570 | $126,570 |
| 2015 | $98,070 | $28,500 | $0 | $126,570 | $126,570 |
| 2014 | $93,400 | $28,500 | $0 | $121,900 | $121,900 |
| 2013 | $93,400 | $28,500 | $0 | $121,900 | $121,900 |
| 2012 | $97,300 | $28,500 | $0 | $0 | $0 |
| 2011 | $76,300 | $28,500 | $0 | $0 | $0 |
| 2010 | $71,300 | $28,500 | $0 | $0 | $0 |
| 2009 | $82,400 | $28,500 | $0 | $0 | $0 |
| 2008 | $82,400 | $28,500 | $0 | $0 | $0 |
| 2007 | $82,400 | $28,500 | $0 | $0 | $0 |
Deed and Sales History
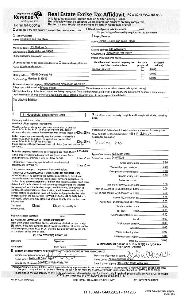
| 1 | 04/07/2021 | QCD | QUIT CLAIM DEED | DAVIS DON & TERA | DAVIS DONALD J & TERA L | | | $0.00 | 141285 | 2021-04093 |
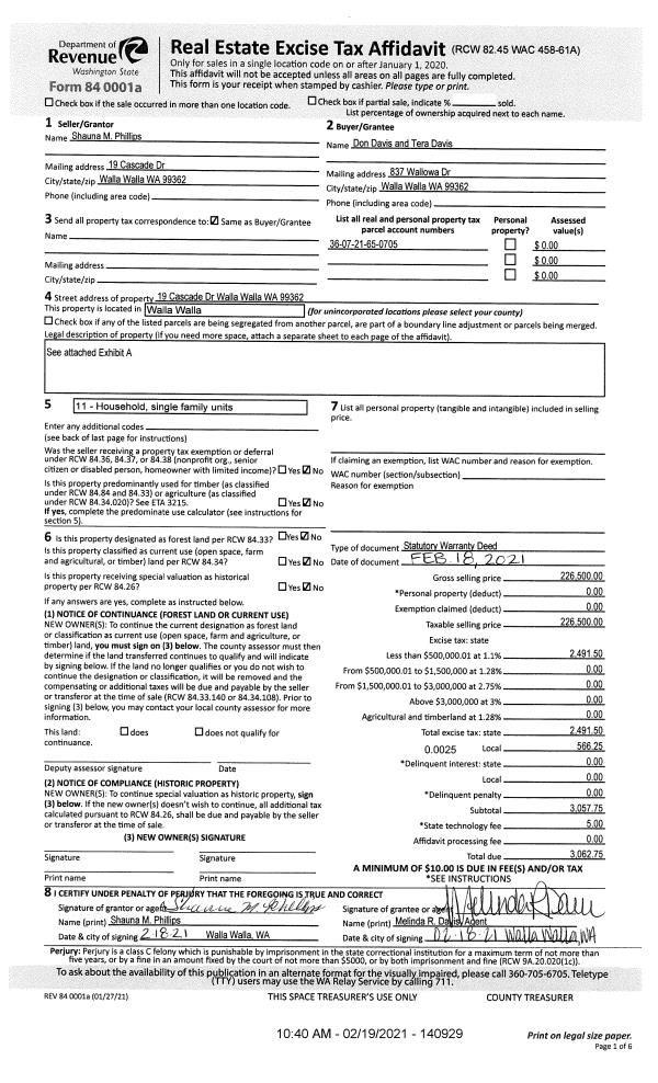
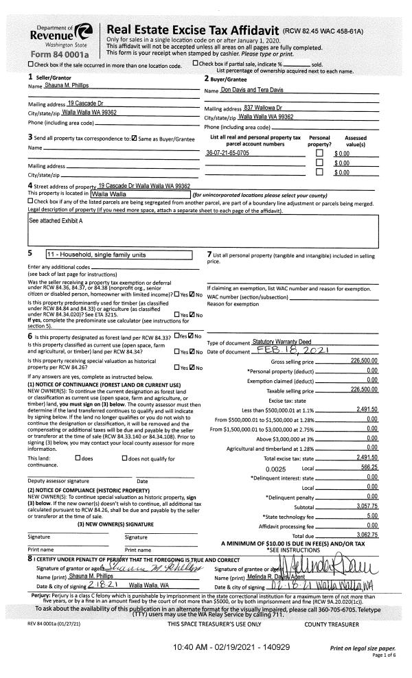
| 2 | 02/19/2021 | SWD | STATUTORY WARRANTY DEED | PHILLIPS SHAUNA M | DAVIS DON & TERA | | | $226,500.00 | 140929 | 2021-01932 |
| 3 | 10/27/2000 | WARRANTY D | WARRANTY DEED | | | | | $80,600.00 | 96082 | 3040-010307 |
Payout Agreement
| No payout information available.. |