Property
Account |
| Property ID: | 8233 | Abbreviated Legal Description: | MILBROOKE PARK LOT 1 BLK 6 |
| Parcel Number: | 360721650601 | Agent Code: | |
| Type: | Real | | |
| Tax Area: | 1 - OL-140-F | Land Use Code | 11 |
| Open Space: | N | DFL | N |
| Historic Property: | N | Remodel Property: | N |
| Multi-Family Redevelopment: | N | | |
| Township: | 7 | Section: | 21 |
| Range: | 36 |
Location |
| Address: | 1495 FRANCIS AVE WA 99362 | Mapsco: | |
| Neighborhood: | A-Superior SFR | Map ID: | |
| Neighborhood CD: | 513211 |
Owner |
| Name: | HALLOWELL DANIEL C & CONNIE A | Owner ID: | 66050 |
| Mailing Address: | 225 WOODLAND AVE WALLA WALLA, WA 99362 | % Ownership: | 100.0000000000% |
| | | Exemptions: | |
Taxes and Assessment Details
Property Tax Information as of
02/21/2026
Click on "Statement Details" to expand or collapse a tax statement.
* Please enter a valid date ** Please enter a valid date *
Statement Details |
| | TOTAL: | $0.00 | $0.00 | $0.00 | $0.00 | $0.00 | $0.00 |
|
| | $0.00 | $0.00 | $0.00 | $0.00 | $0.00 | $0.00 |
Values
| (+) Improvement Homesite Value: | + | $0 | |
| (+) Improvement Non-Homesite Value: | + | $193,250 | |
| (+) Land Homesite Value: | + | $0 | |
| (+) Land Non-Homesite Value: | + | $96,800 | |
| (+) Curr Use (HS): | + | $0 | $0 |
| (+) Curr Use (NHS): | + | $0 | $0 |
| | | -------------------------- | |
| (=) Market Value: | = | $290,050 | |
| (–) Productivity Loss: | – | $0 | |
| | | -------------------------- | |
| (=) Subtotal: | = | $290,050 | |
| (+) Senior Appraised Value: | + | $0 | |
| (+) Non-Senior Appraised Value: | + | $290,050 | |
| | | -------------------------- | |
| (=) Total Appraised Value: | = | $290,050 | |
| (–) Senior Exemption Loss: | – | $0 | |
| (–) Exemption Loss: | – | $0 | |
| | | -------------------------- | |
| (=) Taxable Value: | = | $290,050 | |
Taxing Jurisdiction
| Owner: | HALLOWELL DANIEL C & CONNIE A | | |
| % Ownership: | 100.0000000000% | | |
| Total Value: | $290,050 | | |
| Tax Area: | 1 - OL-140-F |
| CERFD | CURRENT EXPENSE REFUND 010 | 0.0000000000 | $290,050 | $290,050 | $0.00 | | |
| CURREXP | CURRENT EXPENSE 010 | 0.9851088983 | $290,050 | $290,050 | $285.73 | | |
| HUMNSERV | HUMAN SERVICES 119 | 0.0250000000 | $290,050 | $290,050 | $7.25 | | |
| SLDREL | SOLDIERS RELIEF 121 | 0.0155990000 | $290,050 | $290,050 | $4.52 | | |
| EMERGSER | EMS 147 | 0.3676811629 | $290,050 | $290,050 | $106.65 | | |
| EMSRFD | EMS REFUND 147 | 0.0000000000 | $290,050 | $290,050 | $0.00 | | |
| PORTRFD | PORT REFUND 640 | 0.0000000000 | $290,050 | $290,050 | $0.00 | | |
| PORTWWGEN | PORT OF WW 640 | 0.2344301070 | $290,050 | $290,050 | $68.00 | | |
| SD140BOND | SD #140 BOND 764 | 0.8032434458 | $290,050 | $290,050 | $232.98 | | |
| SD140CAP | SD #140 CAP 762 | 0.3840034221 | $290,050 | $290,050 | $111.38 | | |
| SD140GEN | SD #140 GENERAL 760 | 2.4999999996 | $290,050 | $290,050 | $725.13 | | |
| ST2 | STATE SCHOOL PART 2 600 | 0.8853714103 | $290,050 | $290,050 | $256.80 | | |
| STATESCHL | STATE SCHOOL 600 | 1.6424571473 | $290,050 | $290,050 | $476.39 | | |
| STREFUND | STATE REFUND LEVY 603 | 0.0000000000 | $290,050 | $290,050 | $0.00 | | |
| CWWBOND | C OF WW BOND 643 | 0.2642134255 | $290,050 | $290,050 | $76.64 | | |
| CWWGEN | CITY OF WW 631 | 1.6110494978 | $290,050 | $290,050 | $467.28 | | |
| CWWRFD | CITY OF WALLA WALLA REFUND 631 | 0.0000000000 | $290,050 | $290,050 | $0.00 | | |
| | Total Tax Rate: | 9.7181575166 | | | | | |
| | | | | Taxes w/Current Exemptions: | $2,818.75 | | |
| | | | | Taxes w/o Exemptions: | $2,818.75 | | |
Improvement / Building
| Improvement #1: | RESIDENTIAL | State Code: | 11 | 1074.0 sqft | Value: | $193,250 |
| Exterior Wall: | SIDING | Heating/Cooling: | FORCED AIR | | Number of Bathrooms: | 1 | Number of Bedrooms: | 3 | | Plumbing: | 6 | Roof Covering: | COMP SHINGLE |
|
| | Type | Description | Class CD | Sub Class CD | Year Built | Area |
| | MA | Main Area | 1 | 30 | 1949 | 1074.0 |
| | SI1 | SITE IMPROVEMENT | 1 | 30 | 1949 | 1.5 |
| | DTG | Detached Garage | 1 | 30 | 1949 | 336.0 |
| | RPO | OPEN PORCH W/ROOF | 1 | 30 | 1949 | 25.0 |
| | RPO | OPEN PORCH W/ROOF | 1 | 30 | 1949 | 25.0 |
Sketch
Property Image
Land
| 1 | RES 1 | Converted: Residential | 0.2222 | 9680.00 | 0.00 | 0.00 | 1.00 | $96,800 | $0 |
Roll Value History
| 2026 | N/A | N/A | N/A | N/A | N/A |
| 2025 | $193,250 | $96,800 | $0 | $290,050 | $290,050 |
| 2024 | $161,040 | $96,800 | $0 | $257,840 | $257,840 |
| 2023 | $182,390 | $60,500 | $0 | $242,890 | $242,890 |
| 2022 | $182,390 | $60,500 | $0 | $242,890 | $242,890 |
| 2021 | $130,280 | $60,500 | $0 | $190,780 | $190,780 |
| 2020 | $96,500 | $60,500 | $0 | $157,000 | $157,000 |
| 2019 | $96,500 | $60,500 | $0 | $157,000 | $157,000 |
| 2018 | $96,500 | $60,500 | $0 | $157,000 | $157,000 |
| 2017 | $113,150 | $38,700 | $0 | $151,850 | $151,850 |
| 2016 | $94,290 | $38,700 | $0 | $132,990 | $132,990 |
| 2015 | $94,290 | $38,700 | $0 | $132,990 | $132,990 |
| 2014 | $89,800 | $38,700 | $0 | $128,500 | $128,500 |
| 2013 | $89,800 | $38,700 | $0 | $128,500 | $128,500 |
| 2012 | $94,400 | $38,700 | $0 | $0 | $0 |
| 2011 | $101,400 | $38,700 | $0 | $0 | $0 |
| 2010 | $88,700 | $38,700 | $0 | $0 | $0 |
| 2009 | $102,800 | $38,700 | $0 | $0 | $0 |
| 2008 | $71,000 | $38,700 | $0 | $0 | $0 |
| 2007 | $71,000 | $38,700 | $0 | $0 | $0 |
Deed and Sales History
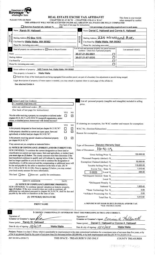
| 1 | 10/07/2019 | SWD | STATUTORY WARRANTY DEED | HALLOWELL RANDY W | HALLOWELL DANIEL C & CONNIE A | | 2-PARCELS | $118,000.00 | 137828 | 2019-07987 |
|   | |
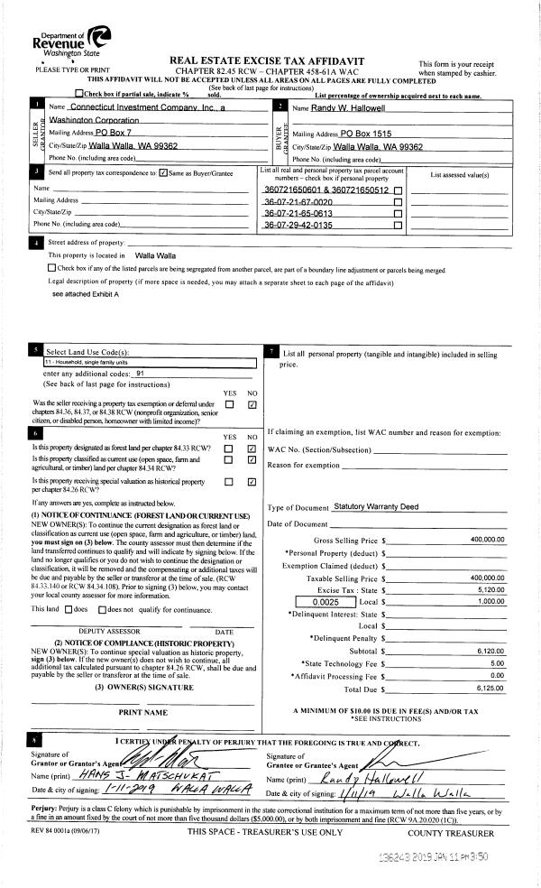
| 2 | 01/11/2019 | SWD | STATUTORY WARRANTY DEED | CONNECTICUT INVESTMENT CO | HALLOWELL RANDY W | | 5-PARCELS | $400,000.00 | 136243 | 2019-00259 |
|   | |
| 3 | 01/01/1952 | WARRANTY D | WARRANTY DEED | | | | | $0.00 | 0 | 2620-358834 |
Payout Agreement
| No payout information available.. |