Property
Account |
| Property ID: | 8232 | Abbreviated Legal Description: | MILBROOKE PARK LOT 12 BLK 5; NLY 5' OF LOT 13 BLK 5 |
| Parcel Number: | 360721650512 | Agent Code: | |
| Type: | Real | | |
| Tax Area: | 1 - OL-140-F | Land Use Code | 11 |
| Open Space: | N | DFL | N |
| Historic Property: | N | Remodel Property: | N |
| Multi-Family Redevelopment: | N | | |
| Township: | 7 | Section: | 21 |
| Range: | 36 |
Location |
| Address: | 6 BOYER DR WA 99362 | Mapsco: | |
| Neighborhood: | A-Superior SFR | Map ID: | |
| Neighborhood CD: | 513211 |
Owner |
| Name: | HALLOWELL JAMES T | Owner ID: | 57961 |
| Mailing Address: | PO BOX 2891 WALLA WALLA, WA 99362 | % Ownership: | 100.0000000000% |
| | | Exemptions: | |
Taxes and Assessment Details
Values
| (+) Improvement Homesite Value: | + | $0 | |
| (+) Improvement Non-Homesite Value: | + | $218,740 | |
| (+) Land Homesite Value: | + | $0 | |
| (+) Land Non-Homesite Value: | + | $70,000 | |
| (+) Curr Use (HS): | + | $0 | $0 |
| (+) Curr Use (NHS): | + | $0 | $0 |
| | | -------------------------- | |
| (=) Market Value: | = | $288,740 | |
| (–) Productivity Loss: | – | $0 | |
| | | -------------------------- | |
| (=) Subtotal: | = | $288,740 | |
| (+) Senior Appraised Value: | + | $0 | |
| (+) Non-Senior Appraised Value: | + | $288,740 | |
| | | -------------------------- | |
| (=) Total Appraised Value: | = | $288,740 | |
| (–) Senior Exemption Loss: | – | $0 | |
| (–) Exemption Loss: | – | $0 | |
| | | -------------------------- | |
| (=) Taxable Value: | = | $288,740 | |
Taxing Jurisdiction
| Owner: | HALLOWELL JAMES T | | |
| % Ownership: | 100.0000000000% | | |
| Total Value: | $288,740 | | |
| Tax Area: | 1 - OL-140-F |
| CERFD | CURRENT EXPENSE REFUND 010 | 0.0000000000 | $288,740 | $288,740 | $0.00 | | |
| CURREXP | CURRENT EXPENSE 010 | 0.9851088983 | $288,740 | $288,740 | $284.44 | | |
| HUMNSERV | HUMAN SERVICES 119 | 0.0250000000 | $288,740 | $288,740 | $7.22 | | |
| SLDREL | SOLDIERS RELIEF 121 | 0.0155990000 | $288,740 | $288,740 | $4.50 | | |
| EMERGSER | EMS 147 | 0.3676811629 | $288,740 | $288,740 | $106.16 | | |
| EMSRFD | EMS REFUND 147 | 0.0000000000 | $288,740 | $288,740 | $0.00 | | |
| PORTRFD | PORT REFUND 640 | 0.0000000000 | $288,740 | $288,740 | $0.00 | | |
| PORTWWGEN | PORT OF WW 640 | 0.2344301070 | $288,740 | $288,740 | $67.69 | | |
| SD140BOND | SD #140 BOND 764 | 0.8032434458 | $288,740 | $288,740 | $231.93 | | |
| SD140CAP | SD #140 CAP 762 | 0.3840034221 | $288,740 | $288,740 | $110.88 | | |
| SD140GEN | SD #140 GENERAL 760 | 2.4999999996 | $288,740 | $288,740 | $721.85 | | |
| ST2 | STATE SCHOOL PART 2 600 | 0.8853714103 | $288,740 | $288,740 | $255.64 | | |
| STATESCHL | STATE SCHOOL 600 | 1.6424571473 | $288,740 | $288,740 | $474.24 | | |
| STREFUND | STATE REFUND LEVY 603 | 0.0000000000 | $288,740 | $288,740 | $0.00 | | |
| CWWBOND | C OF WW BOND 643 | 0.2642134255 | $288,740 | $288,740 | $76.29 | | |
| CWWGEN | CITY OF WW 631 | 1.6110494978 | $288,740 | $288,740 | $465.17 | | |
| CWWRFD | CITY OF WALLA WALLA REFUND 631 | 0.0000000000 | $288,740 | $288,740 | $0.00 | | |
| | Total Tax Rate: | 9.7181575166 | | | | | |
| | | | | Taxes w/Current Exemptions: | $2,806.01 | | |
| | | | | Taxes w/o Exemptions: | $2,806.01 | | |
Improvement / Building
| Improvement #1: | RESIDENTIAL | State Code: | 11 | 1024.0 sqft | Value: | $218,740 |
| Exterior Wall: | SIDING | Heating/Cooling: | MINI-SPLIT HP SYSTEM | | Number of Bathrooms: | 1 | Number of Bedrooms: | 3 | | Plumbing: | 6 | Roof Covering: | COMP SHINGLE |
|
| | Type | Description | Class CD | Sub Class CD | Year Built | Area |
| | MA | Main Area | 1 | 30 | 1949 | 1024.0 |
| | SI1 | SITE IMPROVEMENT | 1 | 30 | 1949 | 1.5 |
| | DTG | Detached Garage | 1 | 30 | 1949 | 228.0 |
| | RPO | OPEN PORCH W/ROOF | 1 | 30 | 1949 | 30.0 |
| | UTST | Utility Storage Shed | 1 | 30 | 1949 | 32.0 |
Sketch
Property Image
Land
| 1 | RES 1 | Converted: Residential | 0.1607 | 7000.00 | 0.00 | 0.00 | 1.00 | $70,000 | $0 |
Roll Value History
| 2026 | N/A | N/A | N/A | N/A | N/A |
| 2025 | $218,740 | $70,000 | $0 | $288,740 | $288,740 |
| 2024 | $182,280 | $70,000 | $0 | $252,280 | $252,280 |
| 2023 | $202,860 | $43,750 | $0 | $246,610 | $246,610 |
| 2022 | $202,860 | $43,750 | $0 | $246,610 | $246,610 |
| 2021 | $144,900 | $43,750 | $0 | $188,650 | $188,650 |
| 2020 | $96,600 | $43,750 | $0 | $140,350 | $140,350 |
| 2019 | $96,600 | $43,750 | $0 | $140,350 | $140,350 |
| 2018 | $96,600 | $43,750 | $0 | $140,350 | $140,350 |
| 2017 | $122,090 | $28,000 | $0 | $150,090 | $150,090 |
| 2016 | $101,750 | $28,000 | $0 | $129,750 | $129,750 |
| 2015 | $101,750 | $28,000 | $0 | $129,750 | $129,750 |
| 2014 | $96,900 | $28,000 | $0 | $124,900 | $124,900 |
| 2013 | $96,900 | $28,000 | $0 | $124,900 | $124,900 |
| 2012 | $104,800 | $28,000 | $0 | $0 | $0 |
| 2011 | $111,800 | $28,000 | $0 | $0 | $0 |
| 2010 | $99,100 | $28,000 | $0 | $0 | $0 |
| 2009 | $113,200 | $28,000 | $0 | $0 | $0 |
| 2008 | $76,600 | $28,000 | $0 | $0 | $0 |
| 2007 | $76,600 | $28,000 | $0 | $0 | $0 |
Deed and Sales History
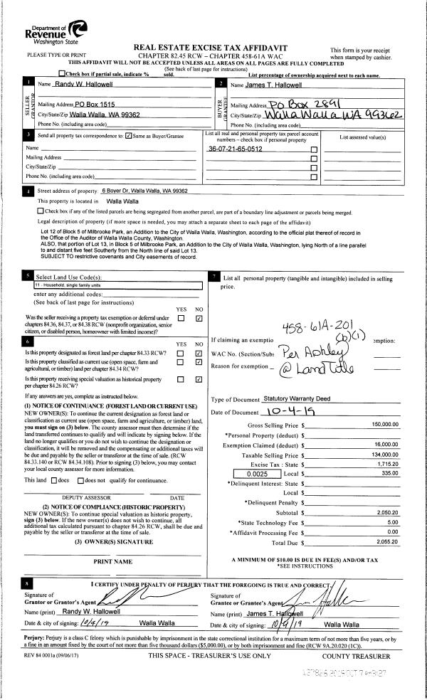
| 1 | 10/07/2019 | SWD | STATUTORY WARRANTY DEED | HALLOWELL RANDY W | HALLOWELL JAMES T | | | $134,000.00 | 137826 | 2019-07983 |
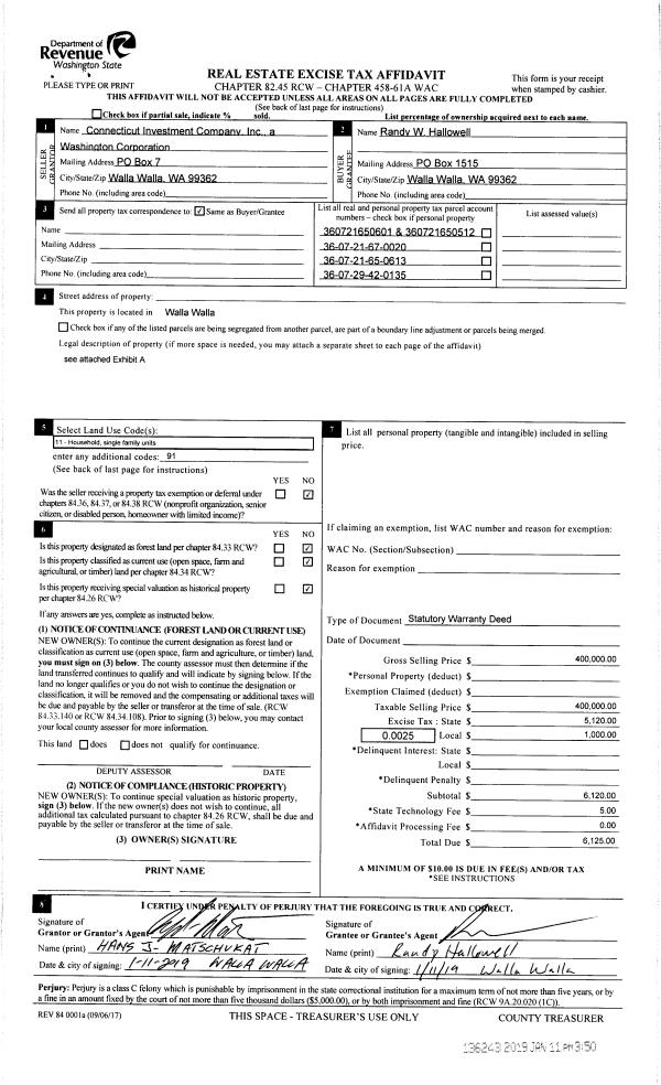
| 2 | 01/11/2019 | SWD | STATUTORY WARRANTY DEED | CONNECTICUT INVESTMENT CO | HALLOWELL RANDY W | | 5-PARCELS | $400,000.00 | 136243 | 2019-00259 |
|   | |
| 3 | 01/01/1955 | WARRANTY D | WARRANTY DEED | | | | | $0.00 | 0 | 2730-377959 |
Payout Agreement
| No payout information available.. |