Property
Account |
| Property ID: | 8220 | Abbreviated Legal Description: | MILBROOKE PARK LOT 9 BLK 4 |
| Parcel Number: | 360721650409 | Agent Code: | |
| Type: | Real | | |
| Tax Area: | 1 - OL-140-F | Land Use Code | 11 |
| Open Space: | N | DFL | N |
| Historic Property: | N | Remodel Property: | N |
| Multi-Family Redevelopment: | N | | |
| Township: | 7 | Section: | 21 |
| Range: | 36 |
Location |
| Address: | 152 BOYER DR WA 99362 | Mapsco: | |
| Neighborhood: | A-Superior SFR | Map ID: | |
| Neighborhood CD: | 513211 |
Owner |
| Name: | MATSCHUKAT WILLIAM P | Owner ID: | 59889 |
| Mailing Address: | 152 BOYER DR WALLA WALLA, WA 99362 | % Ownership: | 100.0000000000% |
| | | Exemptions: | |
Taxes and Assessment Details
Values
| (+) Improvement Homesite Value: | + | $0 | |
| (+) Improvement Non-Homesite Value: | + | $277,340 | |
| (+) Land Homesite Value: | + | $0 | |
| (+) Land Non-Homesite Value: | + | $44,950 | |
| (+) Curr Use (HS): | + | $0 | $0 |
| (+) Curr Use (NHS): | + | $0 | $0 |
| | | -------------------------- | |
| (=) Market Value: | = | $322,290 | |
| (–) Productivity Loss: | – | $0 | |
| | | -------------------------- | |
| (=) Subtotal: | = | $322,290 | |
| (+) Senior Appraised Value: | + | $0 | |
| (+) Non-Senior Appraised Value: | + | $322,290 | |
| | | -------------------------- | |
| (=) Total Appraised Value: | = | $322,290 | |
| (–) Senior Exemption Loss: | – | $0 | |
| (–) Exemption Loss: | – | $0 | |
| | | -------------------------- | |
| (=) Taxable Value: | = | $322,290 | |
Taxing Jurisdiction
| Owner: | MATSCHUKAT WILLIAM P | | |
| % Ownership: | 100.0000000000% | | |
| Total Value: | $322,290 | | |
| Tax Area: | 1 - OL-140-F |
| CERFD | CURRENT EXPENSE REFUND 010 | 0.0000000000 | $322,290 | $322,290 | $0.00 | | |
| CURREXP | CURRENT EXPENSE 010 | 1.0175366760 | $322,290 | $322,290 | $327.94 | | |
| HUMNSERV | HUMAN SERVICES 119 | 0.0250000000 | $322,290 | $322,290 | $8.06 | | |
| SLDREL | SOLDIERS RELIEF 121 | 0.0155990005 | $322,290 | $322,290 | $5.03 | | |
| EMERGSER | EMS 147 | 0.3792580840 | $322,290 | $322,290 | $122.23 | | |
| EMSRFD | EMS REFUND 147 | 0.0000000000 | $322,290 | $322,290 | $0.00 | | |
| PORTRFD | PORT REFUND 640 | 0.0000000000 | $322,290 | $322,290 | $0.00 | | |
| PORTWWGEN | PORT OF WW 640 | 0.2460186015 | $322,290 | $322,290 | $79.29 | | |
| SD140BOND | SD #140 BOND 764 | 0.8342371393 | $322,290 | $322,290 | $268.87 | | |
| SD140GEN | SD #140 GENERAL 760 | 2.0646500647 | $322,290 | $322,290 | $665.42 | | |
| ST2 | STATE SCHOOL PART 2 600 | 0.8131451643 | $322,290 | $322,290 | $262.07 | | |
| STATESCHL | STATE SCHOOL 600 | 1.5158548041 | $322,290 | $322,290 | $488.54 | | |
| STREFUND | STATE REFUND LEVY 603 | 0.0000000000 | $322,290 | $322,290 | $0.00 | | |
| CWWBOND | C OF WW BOND 643 | 0.2760494372 | $322,290 | $322,290 | $88.97 | | |
| CWWGEN | CITY OF WW 631 | 1.6100204973 | $322,290 | $322,290 | $518.89 | | |
| CWWRFD | CITY OF WALLA WALLA REFUND 631 | 0.0000000000 | $322,290 | $322,290 | $0.00 | | |
| | Total Tax Rate: | 8.7973694689 | | | | | |
| | | | | Taxes w/Current Exemptions: | $2,835.31 | | |
| | | | | Taxes w/o Exemptions: | $2,835.31 | | |
Improvement / Building
| Improvement #1: | RESIDENTIAL | State Code: | 11 | 960.0 sqft | Value: | $277,340 |
| Exterior Wall: | SIDING | Heating/Cooling: | WARM & COOLED AIR | | Number of Bathrooms: | 1 | Number of Bedrooms: | 3 | | Plumbing: | 6 | Roof Covering: | COMP SHINGLE |
|
| | Type | Description | Class CD | Sub Class CD | Year Built | Area |
| | MA | Main Area | 1 | 30 | 1950 | 960.0 |
| | SI1 | SITE IMPROVEMENT | 1 | 30 | 1950 | 1.5 |
| | BASE | BASEMENT | 1 | 30 | 1950 | 960.0 |
| | BPF | BASEMENT -PARTITIONED FINISH | 1 | 30 | 1950 | 480.0 |
| | RPO | OPEN PORCH W/ROOF | 1 | 30 | 1950 | 30.0 |
| | CPC | COVERED CARPORT/PATIO | 1 | 30 | 0 | 524.0 |
Sketch
Property Image
Land
| 1 | RES 1 | Converted: Residential | 0.1651 | 7192.00 | 0.00 | 0.00 | 1.00 | $44,950 | $0 |
Roll Value History
| 2026 | N/A | N/A | N/A | N/A | N/A |
| 2025 | $233,580 | $71,920 | $0 | $305,500 | $305,500 |
| 2024 | $233,580 | $71,920 | $0 | $305,500 | $305,500 |
| 2023 | $277,340 | $44,950 | $0 | $322,290 | $322,290 |
| 2022 | $241,160 | $44,950 | $0 | $286,110 | $286,110 |
| 2021 | $200,970 | $44,950 | $0 | $245,920 | $245,920 |
| 2020 | $138,600 | $44,950 | $0 | $183,550 | $183,550 |
| 2019 | $138,600 | $44,950 | $0 | $183,550 | $183,550 |
| 2018 | $126,000 | $44,950 | $0 | $170,950 | $170,950 |
| 2017 | $129,280 | $28,800 | $0 | $158,080 | $158,080 |
| 2016 | $107,730 | $28,800 | $0 | $136,530 | $136,530 |
| 2015 | $107,730 | $28,800 | $0 | $136,530 | $136,530 |
| 2014 | $113,400 | $28,800 | $0 | $142,200 | $142,200 |
| 2013 | $113,400 | $28,800 | $0 | $142,200 | $142,200 |
| 2012 | $125,300 | $28,800 | $0 | $0 | $0 |
| 2011 | $118,000 | $28,800 | $0 | $0 | $0 |
| 2010 | $111,000 | $28,800 | $0 | $0 | $0 |
| 2009 | $126,500 | $28,800 | $0 | $0 | $0 |
| 2008 | $100,600 | $28,800 | $0 | $0 | $0 |
| 2007 | $100,600 | $28,800 | $0 | $0 | $0 |
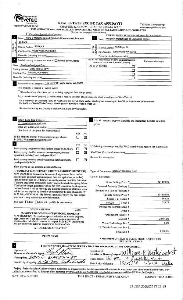
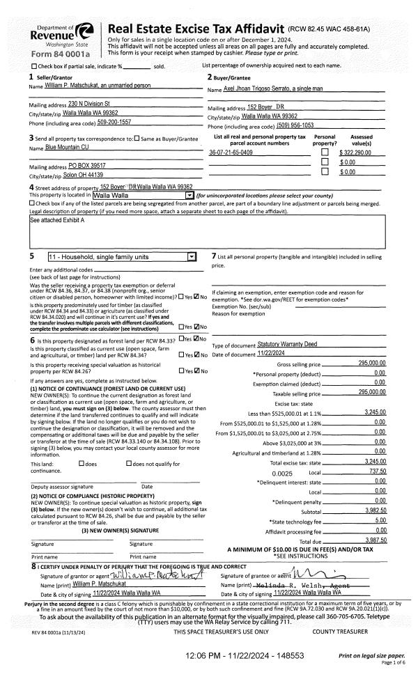
Deed and Sales History
| 1 | 11/22/2024 | SWD | STATUTORY WARRANTY DEED | MATSCHUKAT WILLIAM P | SERRATO AXEL JHOAN TRIGOSO | | | $295,000.00 | 148553 | 2024-06782 |
| 2 | 10/27/2016 | SWD | STATUTORY WARRANTY DEED | MATSCHUKAT HANS & ELIZABETH | MATSCHUKAT WILLIAM P | | | $131,500.00 | 131333 | 2016-08920 |
| 3 | 12/11/1998 | WARRANTY D | WARRANTY DEED | | | | | $80,600.00 | 91798 | 2779-814336 |
Payout Agreement
| No payout information available.. |