Property
Account |
| Property ID: | 8208 | Abbreviated Legal Description: | MILBROOKE PARK LOT 23 BLK 3 |
| Parcel Number: | 360721650323 | Agent Code: | |
| Type: | Real | | |
| Tax Area: | 1 - OL-140-F | Land Use Code | 11 |
| Open Space: | N | DFL | N |
| Historic Property: | N | Remodel Property: | N |
| Multi-Family Redevelopment: | N | | |
| Township: | 7 | Section: | 21 |
| Range: | 36 |
Location |
| Address: | 15 BOYER DR WA 99362 | Mapsco: | |
| Neighborhood: | A-Superior SFR | Map ID: | |
| Neighborhood CD: | 513211 |
Owner |
| Name: | LE SIEUR CORY C | Owner ID: | 63861 |
| Mailing Address: | 15 BOYER DR WALLA WALLA, WA 99362 | % Ownership: | 100.0000000000% |
| | | Exemptions: | |
Taxes and Assessment Details
Property Tax Information as of
04/19/2026
Click on "Statement Details" to expand or collapse a tax statement.
* Please enter a valid date ** Please enter a valid date *
Statement Details |
| | TOTAL: | $0.00 | $0.00 | $0.00 | $0.00 | $0.00 | $0.00 |
|
| | $0.00 | $0.00 | $0.00 | $0.00 | $0.00 | $0.00 |
Values
| (+) Improvement Homesite Value: | + | $0 | |
| (+) Improvement Non-Homesite Value: | + | $206,310 | |
| (+) Land Homesite Value: | + | $0 | |
| (+) Land Non-Homesite Value: | + | $37,200 | |
| (+) Curr Use (HS): | + | $0 | $0 |
| (+) Curr Use (NHS): | + | $0 | $0 |
| | | -------------------------- | |
| (=) Market Value: | = | $243,510 | |
| (–) Productivity Loss: | – | $0 | |
| | | -------------------------- | |
| (=) Subtotal: | = | $243,510 | |
| (+) Senior Appraised Value: | + | $0 | |
| (+) Non-Senior Appraised Value: | + | $243,510 | |
| | | -------------------------- | |
| (=) Total Appraised Value: | = | $243,510 | |
| (–) Senior Exemption Loss: | – | $0 | |
| (–) Exemption Loss: | – | $0 | |
| | | -------------------------- | |
| (=) Taxable Value: | = | $243,510 | |
Taxing Jurisdiction
| Owner: | LE SIEUR CORY C | | |
| % Ownership: | 100.0000000000% | | |
| Total Value: | $243,510 | | |
| Tax Area: | 1 - OL-140-F |
| CERFD | CURRENT EXPENSE REFUND 010 | 0.0000000000 | $243,510 | $243,510 | $0.00 | | |
| CURREXP | CURRENT EXPENSE 010 | 1.0175366760 | $243,510 | $243,510 | $247.78 | | |
| HUMNSERV | HUMAN SERVICES 119 | 0.0250000000 | $243,510 | $243,510 | $6.09 | | |
| SLDREL | SOLDIERS RELIEF 121 | 0.0155990005 | $243,510 | $243,510 | $3.80 | | |
| EMERGSER | EMS 147 | 0.3792580840 | $243,510 | $243,510 | $92.35 | | |
| EMSRFD | EMS REFUND 147 | 0.0000000000 | $243,510 | $243,510 | $0.00 | | |
| PORTRFD | PORT REFUND 640 | 0.0000000000 | $243,510 | $243,510 | $0.00 | | |
| PORTWWGEN | PORT OF WW 640 | 0.2460186015 | $243,510 | $243,510 | $59.91 | | |
| SD140BOND | SD #140 BOND 764 | 0.8342371393 | $243,510 | $243,510 | $203.15 | | |
| SD140GEN | SD #140 GENERAL 760 | 2.0646500647 | $243,510 | $243,510 | $502.76 | | |
| ST2 | STATE SCHOOL PART 2 600 | 0.8131451643 | $243,510 | $243,510 | $198.01 | | |
| STATESCHL | STATE SCHOOL 600 | 1.5158548041 | $243,510 | $243,510 | $369.13 | | |
| STREFUND | STATE REFUND LEVY 603 | 0.0000000000 | $243,510 | $243,510 | $0.00 | | |
| CWWBOND | C OF WW BOND 643 | 0.2760494372 | $243,510 | $243,510 | $67.22 | | |
| CWWGEN | CITY OF WW 631 | 1.6100204973 | $243,510 | $243,510 | $392.06 | | |
| CWWRFD | CITY OF WALLA WALLA REFUND 631 | 0.0000000000 | $243,510 | $243,510 | $0.00 | | |
| | Total Tax Rate: | 8.7973694689 | | | | | |
| | | | | Taxes w/Current Exemptions: | $2,142.26 | | |
| | | | | Taxes w/o Exemptions: | $2,142.26 | | |
Improvement / Building
| Improvement #1: | RESIDENTIAL | State Code: | 11 | 816.0 sqft | Value: | $206,310 |
| Exterior Wall: | SIDING | Heating/Cooling: | FLOOR FURNACE | | Number of Bathrooms: | 1 | Number of Bedrooms: | 2 | | Plumbing: | 6 | Roof Covering: | COMP SHINGLE |
|
| | Type | Description | Class CD | Sub Class CD | Year Built | Area |
| | MA | Main Area | 1 | 25 | 1950 | 816.0 |
| | SI1 | SITE IMPROVEMENT | 1 | 25 | 1950 | 2.0 |
| | RPO | OPEN PORCH W/ROOF | 1 | 25 | 1950 | 25.0 |
Sketch
Property Image
Land
| 1 | RES 1 | Converted: Residential | 0.1366 | 5952.00 | 0.00 | 0.00 | 1.00 | $37,200 | $0 |
Roll Value History
| 2026 | N/A | N/A | N/A | N/A | N/A |
| 2025 | $183,990 | $59,520 | $0 | $243,510 | $243,510 |
| 2024 | $183,990 | $59,520 | $0 | $243,510 | $243,510 |
| 2023 | $206,310 | $37,200 | $0 | $243,510 | $243,510 |
| 2022 | $206,310 | $37,200 | $0 | $243,510 | $243,510 |
| 2021 | $165,050 | $37,200 | $0 | $202,250 | $202,250 |
| 2020 | $126,960 | $37,200 | $0 | $164,160 | $164,160 |
| 2019 | $126,960 | $37,200 | $0 | $164,160 | $164,160 |
| 2018 | $92,000 | $37,200 | $0 | $129,200 | $129,200 |
| 2017 | $86,800 | $23,800 | $0 | $110,600 | $110,600 |
| 2016 | $86,800 | $23,800 | $0 | $110,600 | $110,600 |
| 2015 | $86,800 | $23,800 | $0 | $110,600 | $110,600 |
| 2014 | $86,800 | $23,800 | $0 | $110,600 | $110,600 |
| 2013 | $86,800 | $23,800 | $0 | $110,600 | $110,600 |
| 2012 | $89,200 | $23,800 | $0 | $0 | $0 |
| 2011 | $89,200 | $23,800 | $0 | $0 | $0 |
| 2010 | $78,900 | $23,800 | $0 | $0 | $0 |
| 2009 | $90,300 | $23,800 | $0 | $0 | $0 |
| 2008 | $64,000 | $23,800 | $0 | $0 | $0 |
| 2007 | $64,000 | $23,800 | $0 | $0 | $0 |
Deed and Sales History
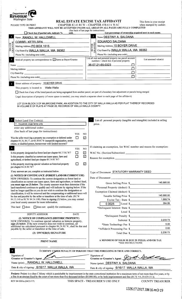
| 1 | 08/31/2018 | SWD | STATUTORY WARRANTY DEED | SALDANA DESTINY ANNA HOPE | LE SIEUR CORY C | | | $172,500.00 | 135475 | 2018-07294 |
| 2 | 12/06/2017 | QCD | QUIT CLAIM DEED | SALDANA EDUARDO & DESTINY A | SALDANA DESTINY ANNA HOPE | | | $0.00 | 133749 | 2017-09798 |
| 3 | 06/16/2017 | SWD | STATUTORY WARRANTY DEED | HALLOWELL RANDALL W | SALDANA EDUARDO & DESTINY A | | | $145,995.00 | 132617 | 2017-04623 |
| 4 | 09/02/2016 | SWD | STATUTORY WARRANTY DEED | CONNECTICUT INVESTMENT CO | HALLOWELL RANDALL W | | | $95,000.00 | 130956 | 2016-07120 |
| 5 | 01/01/1956 | WARRANTY D | WARRANTY DEED | | | | | $0.00 | 0 | 2760-384683 |
Payout Agreement
| No payout information available.. |