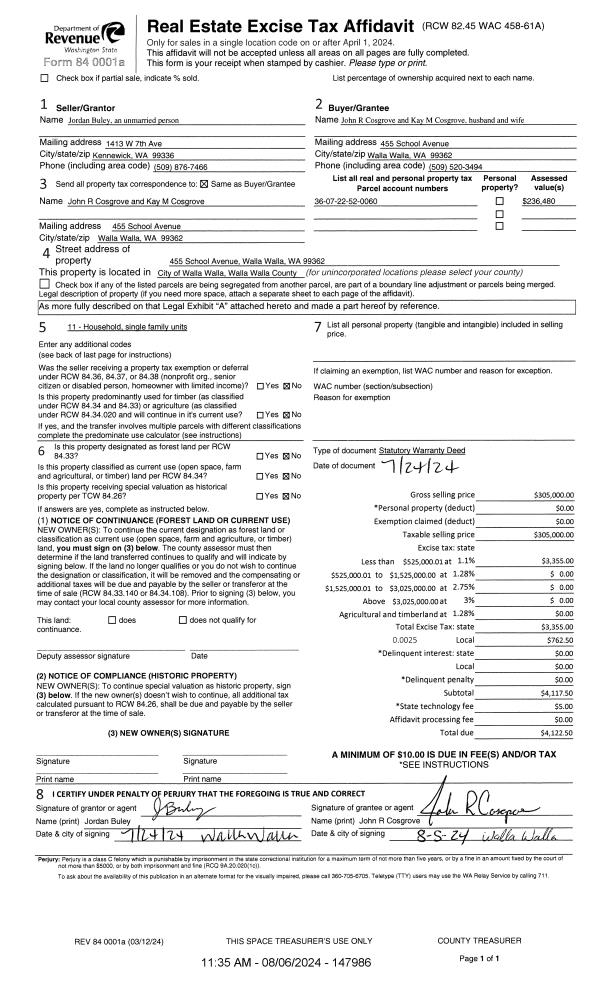
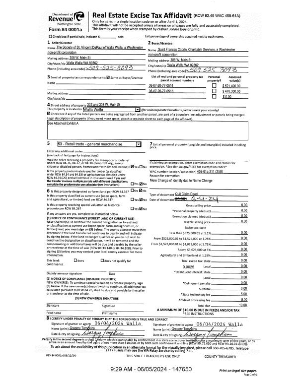
Property
Account |
| Property ID: | 8203 | Abbreviated Legal Description: | MILBROOKE PARK LOT 17 BLK 3 |
| Parcel Number: | 360721650317 | Agent Code: | |
| Type: | Real | | |
| Tax Area: | 1 - OL-140-F | Land Use Code | 11 |
| Open Space: | N | DFL | N |
| Historic Property: | N | Remodel Property: | N |
| Multi-Family Redevelopment: | N | | |
| Township: | 7 | Section: | 21 |
| Range: | 36 |
Location |
| Address: | 57 BOYER DR WA 99362 | Mapsco: | |
| Neighborhood: | A-Superior SFR | Map ID: | |
| Neighborhood CD: | 513211 |
Owner |
| Name: | CHAVEZ SERGIO | Owner ID: | 45071 |
| Mailing Address: | 57 BOYER DR WALLA WALLA, WA 99362 | % Ownership: | 100.0000000000% |
| | | Exemptions: | |
Taxes and Assessment Details
Values
| (+) Improvement Homesite Value: | + | $0 | |
| (+) Improvement Non-Homesite Value: | + | $258,720 | |
| (+) Land Homesite Value: | + | $0 | |
| (+) Land Non-Homesite Value: | + | $40,600 | |
| (+) Curr Use (HS): | + | $0 | $0 |
| (+) Curr Use (NHS): | + | $0 | $0 |
| | | -------------------------- | |
| (=) Market Value: | = | $299,320 | |
| (–) Productivity Loss: | – | $0 | |
| | | -------------------------- | |
| (=) Subtotal: | = | $299,320 | |
| (+) Senior Appraised Value: | + | $0 | |
| (+) Non-Senior Appraised Value: | + | $299,320 | |
| | | -------------------------- | |
| (=) Total Appraised Value: | = | $299,320 | |
| (–) Senior Exemption Loss: | – | $0 | |
| (–) Exemption Loss: | – | $0 | |
| | | -------------------------- | |
| (=) Taxable Value: | = | $299,320 | |
Taxing Jurisdiction
| Owner: | CHAVEZ SERGIO | | |
| % Ownership: | 100.0000000000% | | |
| Total Value: | $299,320 | | |
| Tax Area: | 1 - OL-140-F |
| CERFD | CURRENT EXPENSE REFUND 010 | 0.0000000000 | $299,320 | $299,320 | $0.00 | | |
| CURREXP | CURRENT EXPENSE 010 | 1.0175366760 | $299,320 | $299,320 | $304.57 | | |
| HUMNSERV | HUMAN SERVICES 119 | 0.0250000000 | $299,320 | $299,320 | $7.48 | | |
| SLDREL | SOLDIERS RELIEF 121 | 0.0155990005 | $299,320 | $299,320 | $4.67 | | |
| EMERGSER | EMS 147 | 0.3792580840 | $299,320 | $299,320 | $113.52 | | |
| EMSRFD | EMS REFUND 147 | 0.0000000000 | $299,320 | $299,320 | $0.00 | | |
| PORTRFD | PORT REFUND 640 | 0.0000000000 | $299,320 | $299,320 | $0.00 | | |
| PORTWWGEN | PORT OF WW 640 | 0.2460186015 | $299,320 | $299,320 | $73.64 | | |
| SD140BOND | SD #140 BOND 764 | 0.8342371393 | $299,320 | $299,320 | $249.70 | | |
| SD140GEN | SD #140 GENERAL 760 | 2.0646500647 | $299,320 | $299,320 | $617.99 | | |
| ST2 | STATE SCHOOL PART 2 600 | 0.8131451643 | $299,320 | $299,320 | $243.39 | | |
| STATESCHL | STATE SCHOOL 600 | 1.5158548041 | $299,320 | $299,320 | $453.73 | | |
| STREFUND | STATE REFUND LEVY 603 | 0.0000000000 | $299,320 | $299,320 | $0.00 | | |
| CWWBOND | C OF WW BOND 643 | 0.2760494372 | $299,320 | $299,320 | $82.63 | | |
| CWWGEN | CITY OF WW 631 | 1.6100204973 | $299,320 | $299,320 | $481.91 | | |
| CWWRFD | CITY OF WALLA WALLA REFUND 631 | 0.0000000000 | $299,320 | $299,320 | $0.00 | | |
| | Total Tax Rate: | 8.7973694689 | | | | | |
| | | | | Taxes w/Current Exemptions: | $2,633.23 | | |
| | | | | Taxes w/o Exemptions: | $2,633.23 | | |
Improvement / Building
| Improvement #1: | RESIDENTIAL | State Code: | 11 | 960.0 sqft | Value: | $258,720 |
| Exterior Wall: | SIDING | Heating/Cooling: | WARM & COOLED AIR | | Number of Bathrooms: | 2 | Number of Bedrooms: | 3 | | Plumbing: | 10 | Roof Covering: | COMP SHINGLE |
|
| | Type | Description | Class CD | Sub Class CD | Year Built | Area |
| | MA | Main Area | 1 | 30 | 1951 | 960.0 |
| | SI1 | SITE IMPROVEMENT | 1 | 30 | 1951 | 1.5 |
| | BASE | BASEMENT | 1 | 30 | 1951 | 960.0 |
| | BPF | BASEMENT -PARTITIONED FINISH | 1 | 30 | 1951 | 960.0 |
| | DTG | Detached Garage | 1 | 30 | 1951 | 280.0 |
| | RPS | PORCH W/STEPS,ROOF | 1 | 30 | 1951 | 30.0 |
| | WOD | Wood Deck | 1 | 30 | 1951 | 336.0 |
Sketch
Property Image
Land
| 1 | RES 1 | Converted: Residential | 0.1491 | 6496.00 | 0.00 | 0.00 | 1.00 | $40,600 | $0 |
Roll Value History
| 2026 | N/A | N/A | N/A | N/A | N/A |
| 2025 | $275,470 | $64,960 | $0 | $340,430 | $340,430 |
| 2024 | $229,560 | $64,960 | $0 | $294,520 | $294,520 |
| 2023 | $258,720 | $40,600 | $0 | $299,320 | $299,320 |
| 2022 | $258,720 | $40,600 | $0 | $299,320 | $299,320 |
| 2021 | $215,600 | $40,600 | $0 | $256,200 | $256,200 |
| 2020 | $154,000 | $40,600 | $0 | $194,600 | $194,600 |
| 2019 | $154,000 | $40,600 | $0 | $194,600 | $194,600 |
| 2018 | $140,000 | $40,600 | $0 | $180,600 | $180,600 |
| 2017 | $141,920 | $26,000 | $0 | $167,920 | $167,920 |
| 2016 | $123,410 | $26,000 | $0 | $149,410 | $149,410 |
| 2015 | $123,410 | $26,000 | $0 | $149,410 | $149,410 |
| 2014 | $129,900 | $26,000 | $0 | $155,900 | $155,900 |
| 2013 | $129,900 | $26,000 | $0 | $155,900 | $155,900 |
| 2012 | $129,900 | $26,000 | $0 | $0 | $0 |
| 2011 | $129,900 | $26,000 | $0 | $0 | $0 |
| 2010 | $122,500 | $26,000 | $0 | $0 | $0 |
| 2009 | $139,000 | $26,000 | $0 | $0 | $0 |
| 2008 | $118,900 | $26,000 | $0 | $0 | $0 |
| 2007 | $118,900 | $26,000 | $0 | $0 | $0 |
Deed and Sales History
| 1 | 07/12/2024 | SWD | STATUTORY WARRANTY DEED | CHAVEZ SERGIO | COLLINS MONICA | | | $375,000.00 | 147855 | 2024-03774 |
| 2 | 10/31/2007 | WARRANTY D | WARRANTY DEED | HAWKINS, KENNY R & SHERRI A | CHAVEZ, SERGIO | | | $166,000.00 | 113995 | 2007-12601 |
| 3 | 01/11/1993 | WARRANTY D | WARRANTY DEED | | | | | $69,000.00 | 78350 | 2039-300263 |
Payout Agreement
| No payout information available.. |