Property
Account |
| Property ID: | 8192 | Abbreviated Legal Description: | MILBROOKE PARK LOT 28 BLK 2 |
| Parcel Number: | 360721650228 | Agent Code: | |
| Type: | Real | | |
| Tax Area: | 1 - OL-140-F | Land Use Code | 11 |
| Open Space: | N | DFL | N |
| Historic Property: | N | Remodel Property: | N |
| Multi-Family Redevelopment: | N | | |
| Township: | 7 | Section: | 21 |
| Range: | 36 |
Location |
| Address: | 122 CASCADE DR WA 99362 | Mapsco: | |
| Neighborhood: | A-Superior SFR | Map ID: | |
| Neighborhood CD: | 513211 |
Owner |
| Name: | NARCISO GABRIELA | Owner ID: | 66179 |
| Mailing Address: | 122 CASCADE DR WALLA WALLA, WA 99362 | % Ownership: | 100.0000000000% |
| | | Exemptions: | |
Taxes and Assessment Details
Values
| (+) Improvement Homesite Value: | + | $0 | |
| (+) Improvement Non-Homesite Value: | + | $292,190 | |
| (+) Land Homesite Value: | + | $0 | |
| (+) Land Non-Homesite Value: | + | $41,250 | |
| (+) Curr Use (HS): | + | $0 | $0 |
| (+) Curr Use (NHS): | + | $0 | $0 |
| | | -------------------------- | |
| (=) Market Value: | = | $333,440 | |
| (–) Productivity Loss: | – | $0 | |
| | | -------------------------- | |
| (=) Subtotal: | = | $333,440 | |
| (+) Senior Appraised Value: | + | $0 | |
| (+) Non-Senior Appraised Value: | + | $333,440 | |
| | | -------------------------- | |
| (=) Total Appraised Value: | = | $333,440 | |
| (–) Senior Exemption Loss: | – | $0 | |
| (–) Exemption Loss: | – | $0 | |
| | | -------------------------- | |
| (=) Taxable Value: | = | $333,440 | |
Taxing Jurisdiction
| Owner: | NARCISO GABRIELA | | |
| % Ownership: | 100.0000000000% | | |
| Total Value: | $333,440 | | |
| Tax Area: | 1 - OL-140-F |
| CERFD | CURRENT EXPENSE REFUND 010 | 0.0000000000 | $333,440 | $333,440 | $0.00 | | |
| CURREXP | CURRENT EXPENSE 010 | 1.0175366760 | $333,440 | $333,440 | $339.29 | | |
| HUMNSERV | HUMAN SERVICES 119 | 0.0250000000 | $333,440 | $333,440 | $8.34 | | |
| SLDREL | SOLDIERS RELIEF 121 | 0.0155990005 | $333,440 | $333,440 | $5.20 | | |
| EMERGSER | EMS 147 | 0.3792580840 | $333,440 | $333,440 | $126.46 | | |
| EMSRFD | EMS REFUND 147 | 0.0000000000 | $333,440 | $333,440 | $0.00 | | |
| PORTRFD | PORT REFUND 640 | 0.0000000000 | $333,440 | $333,440 | $0.00 | | |
| PORTWWGEN | PORT OF WW 640 | 0.2460186015 | $333,440 | $333,440 | $82.03 | | |
| SD140BOND | SD #140 BOND 764 | 0.8342371393 | $333,440 | $333,440 | $278.17 | | |
| SD140GEN | SD #140 GENERAL 760 | 2.0646500647 | $333,440 | $333,440 | $688.44 | | |
| ST2 | STATE SCHOOL PART 2 600 | 0.8131451643 | $333,440 | $333,440 | $271.14 | | |
| STATESCHL | STATE SCHOOL 600 | 1.5158548041 | $333,440 | $333,440 | $505.45 | | |
| STREFUND | STATE REFUND LEVY 603 | 0.0000000000 | $333,440 | $333,440 | $0.00 | | |
| CWWBOND | C OF WW BOND 643 | 0.2760494372 | $333,440 | $333,440 | $92.05 | | |
| CWWGEN | CITY OF WW 631 | 1.6100204973 | $333,440 | $333,440 | $536.85 | | |
| CWWRFD | CITY OF WALLA WALLA REFUND 631 | 0.0000000000 | $333,440 | $333,440 | $0.00 | | |
| | Total Tax Rate: | 8.7973694689 | | | | | |
| | | | | Taxes w/Current Exemptions: | $2,933.42 | | |
| | | | | Taxes w/o Exemptions: | $2,933.42 | | |
Improvement / Building
| Improvement #1: | RESIDENTIAL | State Code: | 11 | 1171.0 sqft | Value: | $292,190 |
| Exterior Wall: | VINYL | Heating/Cooling: | WARM & COOLED AIR | | Number of Bathrooms: | 1.5 | Number of Bedrooms: | 4 | | Plumbing: | 7 | Roof Covering: | COMP SHINGLE |
|
| | Type | Description | Class CD | Sub Class CD | Year Built | Area |
| | MA | Main Area | 1 | 30 | 1949 | 1171.0 |
| | SI1 | SITE IMPROVEMENT | 1 | 30 | 1949 | 1.5 |
| | BASE | BASEMENT | 1 | 30 | 1949 | 960.0 |
| | BPF | BASEMENT -PARTITIONED FINISH | 1 | 30 | 1949 | 528.0 |
| | RPS | PORCH W/STEPS,ROOF | 1 | 30 | 1949 | 35.0 |
| | WOD | Wood Deck | 1 | 30 | 1949 | 200.0 |
| | CPC | COVERED CARPORT/PATIO | 1 | 30 | 1949 | 336.0 |
Sketch
Property Image
Land
| 1 | RES 1 | Converted: Residential | 0.1515 | 6600.00 | 0.00 | 0.00 | 1.00 | $41,250 | $0 |
Roll Value History
| 2026 | N/A | N/A | N/A | N/A | N/A |
| 2025 | $319,780 | $66,000 | $0 | $385,780 | $385,780 |
| 2024 | $262,110 | $66,000 | $0 | $328,110 | $328,110 |
| 2023 | $292,190 | $41,250 | $0 | $333,440 | $333,440 |
| 2022 | $278,280 | $41,250 | $0 | $319,530 | $319,530 |
| 2021 | $214,060 | $41,250 | $0 | $255,310 | $255,310 |
| 2020 | $152,900 | $41,250 | $0 | $194,150 | $194,150 |
| 2019 | $152,900 | $41,250 | $0 | $194,150 | $194,150 |
| 2018 | $139,000 | $41,250 | $0 | $180,250 | $180,250 |
| 2017 | $147,720 | $26,400 | $0 | $174,120 | $174,120 |
| 2016 | $123,100 | $26,400 | $0 | $149,500 | $149,500 |
| 2015 | $123,100 | $26,400 | $0 | $149,500 | $149,500 |
| 2014 | $123,100 | $26,400 | $0 | $149,500 | $149,500 |
| 2013 | $123,100 | $26,400 | $0 | $149,500 | $149,500 |
| 2012 | $128,600 | $26,400 | $0 | $0 | $0 |
| 2011 | $128,600 | $26,400 | $0 | $0 | $0 |
| 2010 | $121,200 | $26,400 | $0 | $0 | $0 |
| 2009 | $137,600 | $26,400 | $0 | $0 | $0 |
| 2008 | $129,800 | $26,400 | $0 | $0 | $0 |
| 2007 | $129,800 | $26,400 | $0 | $0 | $0 |
Deed and Sales History
| 1 | 08/23/2024 | SWD | STATUTORY WARRANTY DEED | NARCISO GABRIELA | SALAZAR MARI CARMEN | | | $369,900.00 | 148079 | 2024-04718 |
| 2 | 11/01/2019 | SWD | STATUTORY WARRANTY DEED | BAUMANN MARCELLE | NARCISO GABRIELA | | | $230,000.00 | 138007 | 2019-08949 |
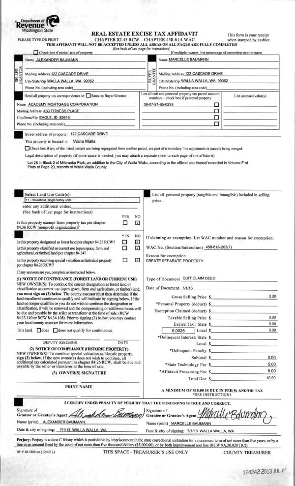
| 3 | 07/03/2013 | QCD | QUIT CLAIM DEED | BAUMANN, ALEXANDER | BAUMANN, MARCELLE | | | $0.00 | 124242 | 2013-06705 |
| 4 | 07/03/2013 | WARRANTY D | WARRANTY DEED | CUMMINS, JAMES C & ELOISE | BAUMANN, MARCELLE | | | $146,500.00 | 124241 | 2013-06704 |
| 5 | 08/03/1982 | QCD | QUIT CLAIM DEED | | | | | $32,900.00 | 0 | 1348-205602 |
Payout Agreement
| No payout information available.. |