Property
Account |
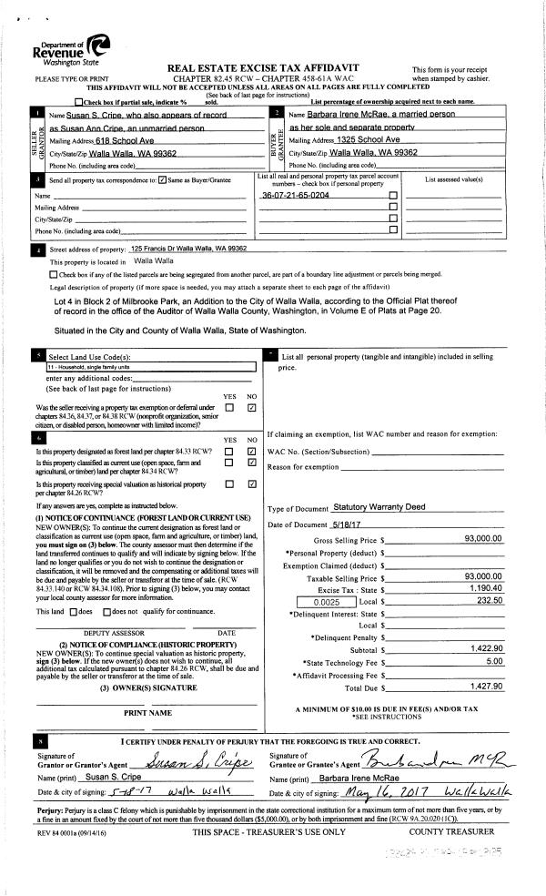
| Property ID: | 8179 | Abbreviated Legal Description: | MILBROOKE PARK LOT 4 BLK 2 |
| Parcel Number: | 360721650204 | Agent Code: | |
| Type: | Real | | |
| Tax Area: | 1 - OL-140-F | Land Use Code | 11 |
| Open Space: | N | DFL | N |
| Historic Property: | N | Remodel Property: | N |
| Multi-Family Redevelopment: | N | | |
| Township: | 7 | Section: | 21 |
| Range: | 36 |
Location |
| Address: | 125 FRANCIS DR WA 99362 | Mapsco: | |
| Neighborhood: | A-Superior SFR | Map ID: | |
| Neighborhood CD: | 513211 |
Owner |
| Name: | MCRAE BARBARA I | Owner ID: | 36152 |
| Mailing Address: | 1325 SCHOOL AVE WALLA WALLA, WA 99362 | % Ownership: | 100.0000000000% |
| | | Exemptions: | |
Taxes and Assessment Details
Values
| (+) Improvement Homesite Value: | + | $0 | |
| (+) Improvement Non-Homesite Value: | + | $262,900 | |
| (+) Land Homesite Value: | + | $0 | |
| (+) Land Non-Homesite Value: | + | $34,400 | |
| (+) Curr Use (HS): | + | $0 | $0 |
| (+) Curr Use (NHS): | + | $0 | $0 |
| | | -------------------------- | |
| (=) Market Value: | = | $297,300 | |
| (–) Productivity Loss: | – | $0 | |
| | | -------------------------- | |
| (=) Subtotal: | = | $297,300 | |
| (+) Senior Appraised Value: | + | $0 | |
| (+) Non-Senior Appraised Value: | + | $297,300 | |
| | | -------------------------- | |
| (=) Total Appraised Value: | = | $297,300 | |
| (–) Senior Exemption Loss: | – | $0 | |
| (–) Exemption Loss: | – | $0 | |
| | | -------------------------- | |
| (=) Taxable Value: | = | $297,300 | |
Taxing Jurisdiction
| Owner: | MCRAE BARBARA I | | |
| % Ownership: | 100.0000000000% | | |
| Total Value: | $297,300 | | |
| Tax Area: | 1 - OL-140-F |
| CERFD | CURRENT EXPENSE REFUND 010 | 0.0000000000 | $297,300 | $297,300 | $0.00 | | |
| CURREXP | CURRENT EXPENSE 010 | 1.0175366760 | $297,300 | $297,300 | $302.51 | | |
| HUMNSERV | HUMAN SERVICES 119 | 0.0250000000 | $297,300 | $297,300 | $7.43 | | |
| SLDREL | SOLDIERS RELIEF 121 | 0.0155990005 | $297,300 | $297,300 | $4.64 | | |
| EMERGSER | EMS 147 | 0.3792580840 | $297,300 | $297,300 | $112.75 | | |
| EMSRFD | EMS REFUND 147 | 0.0000000000 | $297,300 | $297,300 | $0.00 | | |
| PORTRFD | PORT REFUND 640 | 0.0000000000 | $297,300 | $297,300 | $0.00 | | |
| PORTWWGEN | PORT OF WW 640 | 0.2460186015 | $297,300 | $297,300 | $73.14 | | |
| SD140BOND | SD #140 BOND 764 | 0.8342371393 | $297,300 | $297,300 | $248.02 | | |
| SD140GEN | SD #140 GENERAL 760 | 2.0646500647 | $297,300 | $297,300 | $613.82 | | |
| ST2 | STATE SCHOOL PART 2 600 | 0.8131451643 | $297,300 | $297,300 | $241.75 | | |
| STATESCHL | STATE SCHOOL 600 | 1.5158548041 | $297,300 | $297,300 | $450.66 | | |
| STREFUND | STATE REFUND LEVY 603 | 0.0000000000 | $297,300 | $297,300 | $0.00 | | |
| CWWBOND | C OF WW BOND 643 | 0.2760494372 | $297,300 | $297,300 | $82.07 | | |
| CWWGEN | CITY OF WW 631 | 1.6100204973 | $297,300 | $297,300 | $478.66 | | |
| CWWRFD | CITY OF WALLA WALLA REFUND 631 | 0.0000000000 | $297,300 | $297,300 | $0.00 | | |
| | Total Tax Rate: | 8.7973694689 | | | | | |
| | | | | Taxes w/Current Exemptions: | $2,615.45 | | |
| | | | | Taxes w/o Exemptions: | $2,615.45 | | |
Improvement / Building
| Improvement #1: | RESIDENTIAL | State Code: | 11 | 1040.0 sqft | Value: | $262,900 |
| Exterior Wall: | SIDING | Heating/Cooling: | FORCED AIR | | Number of Bathrooms: | 1 | Number of Bedrooms: | 3 | | Plumbing: | 6 | Roof Covering: | COMP SHINGLE |
|
| | Type | Description | Class CD | Sub Class CD | Year Built | Area |
| | MA | Main Area | 1 | 30 | 1953 | 1040.0 |
| | CPC | COVERED CARPORT/PATIO | 1 | 30 | 0 | 312.0 |
| | SI1 | SITE IMPROVEMENT | 1 | 30 | 0 | 1.5 |
| | BASE | BASEMENT | 1 | 30 | 1953 | 1040.0 |
| | RPS | PORCH W/STEPS,ROOF | 1 | 30 | 1953 | 36.0 |
Sketch
Property Image
Land
| 1 | RES 1 | Converted: Residential | 0.1264 | 5504.00 | 0.00 | 0.00 | 1.00 | $34,400 | $0 |
Roll Value History
| 2026 | N/A | N/A | N/A | N/A | N/A |
| 2025 | $247,040 | $55,040 | $0 | $302,080 | $302,080 |
| 2024 | $235,280 | $55,040 | $0 | $290,320 | $290,320 |
| 2023 | $262,900 | $34,400 | $0 | $297,300 | $297,300 |
| 2022 | $250,380 | $34,400 | $0 | $284,780 | $284,780 |
| 2021 | $192,600 | $34,400 | $0 | $227,000 | $227,000 |
| 2020 | $128,400 | $34,400 | $0 | $162,800 | $162,800 |
| 2019 | $128,400 | $34,400 | $0 | $162,800 | $162,800 |
| 2018 | $128,400 | $34,400 | $0 | $162,800 | $162,800 |
| 2017 | $150,480 | $22,000 | $0 | $172,480 | $172,480 |
| 2016 | $125,400 | $22,000 | $0 | $147,400 | $147,400 |
| 2015 | $125,400 | $22,000 | $0 | $147,400 | $147,400 |
| 2014 | $114,000 | $22,000 | $0 | $136,000 | $136,000 |
| 2013 | $114,000 | $22,000 | $0 | $136,000 | $136,000 |
| 2012 | $114,000 | $22,000 | $0 | $0 | $0 |
| 2011 | $96,300 | $22,000 | $0 | $0 | $0 |
| 2010 | $90,700 | $22,000 | $0 | $0 | $0 |
| 2009 | $103,200 | $22,000 | $0 | $0 | $0 |
| 2008 | $97,200 | $22,000 | $0 | $0 | $0 |
| 2007 | $97,200 | $22,000 | $0 | $0 | $0 |
Deed and Sales History
| 1 | 05/19/2017 | SWD | STATUTORY WARRANTY DEED | CRIPE SUSAN | MCRAE BARBARA I | | | $93,000.00 | 132429 | 2017-03791 |
| 2 | 04/28/2016 | TODD | TRANSFER ON DEATH DEED | CRIPE SUSAN | LLOYD ANNE ELIZABETH & CRIPE JOHN THOMAS | | | | 0 | 2016-03145 |
| 3 | 04/25/2016 | DEATH CERT | DEATH CERTIFICATE | CRIPE ROBERT WAYNE ESTATE OF | CRIPE SUSAN | | | | 0 | 2016-03039 |
| 4 | 06/15/2009 | COMMUNITY | COMMUNITY PROPERTY AGREEMENT | CRIPE ROBERT W & SUSAN A | CRIPE ROBERT W & SUSAN A | | | | 0 | 2009-06027 |
| 5 | 01/01/1963 | WARRANTY D | WARRANTY DEED | | | | | $13,000.00 | 0 | 2980-432042 |
Payout Agreement
| No payout information available.. |