Property
Account |
| Property ID: | 8174 | Abbreviated Legal Description: | MILBROOKE PARK LOT 11 BLK 1 |
| Parcel Number: | 360721650111 | Agent Code: | |
| Type: | Real | | |
| Tax Area: | 1 - OL-140-F | Land Use Code | 11 |
| Open Space: | N | DFL | N |
| Historic Property: | N | Remodel Property: | N |
| Multi-Family Redevelopment: | N | | |
| Township: | 7 | Section: | 21 |
| Range: | 36 |
Location |
| Address: | 121 CASCADE DR WA 99362 | Mapsco: | |
| Neighborhood: | A-Superior SFR | Map ID: | |
| Neighborhood CD: | 513211 |
Owner |
| Name: | SOMOSKEY ANDREW & EMILY | Owner ID: | 73785 |
| Mailing Address: | 121 CASCADE DR WALLA WALLA, WA 99362 | % Ownership: | 100.0000000000% |
| | | Exemptions: | |
Taxes and Assessment Details
Property Tax Information as of
02/21/2026
Click on "Statement Details" to expand or collapse a tax statement.
* Please enter a valid date ** Please enter a valid date *
Statement Details |
| | TOTAL: | $0.00 | $0.00 | $0.00 | $0.00 | $0.00 | $0.00 |
|
| | $0.00 | $0.00 | $0.00 | $0.00 | $0.00 | $0.00 |
Values
| (+) Improvement Homesite Value: | + | $0 | |
| (+) Improvement Non-Homesite Value: | + | $282,350 | |
| (+) Land Homesite Value: | + | $0 | |
| (+) Land Non-Homesite Value: | + | $41,250 | |
| (+) Curr Use (HS): | + | $0 | $0 |
| (+) Curr Use (NHS): | + | $0 | $0 |
| | | -------------------------- | |
| (=) Market Value: | = | $323,600 | |
| (–) Productivity Loss: | – | $0 | |
| | | -------------------------- | |
| (=) Subtotal: | = | $323,600 | |
| (+) Senior Appraised Value: | + | $0 | |
| (+) Non-Senior Appraised Value: | + | $323,600 | |
| | | -------------------------- | |
| (=) Total Appraised Value: | = | $323,600 | |
| (–) Senior Exemption Loss: | – | $0 | |
| (–) Exemption Loss: | – | $0 | |
| | | -------------------------- | |
| (=) Taxable Value: | = | $323,600 | |
Taxing Jurisdiction
| Owner: | SOMOSKEY ANDREW & EMILY | | |
| % Ownership: | 100.0000000000% | | |
| Total Value: | $323,600 | | |
| Tax Area: | 1 - OL-140-F |
| CERFD | CURRENT EXPENSE REFUND 010 | 0.0000000000 | $323,600 | $323,600 | $0.00 | | |
| CURREXP | CURRENT EXPENSE 010 | 1.0175366760 | $323,600 | $323,600 | $329.27 | | |
| HUMNSERV | HUMAN SERVICES 119 | 0.0250000000 | $323,600 | $323,600 | $8.09 | | |
| SLDREL | SOLDIERS RELIEF 121 | 0.0155990005 | $323,600 | $323,600 | $5.05 | | |
| EMERGSER | EMS 147 | 0.3792580840 | $323,600 | $323,600 | $122.73 | | |
| EMSRFD | EMS REFUND 147 | 0.0000000000 | $323,600 | $323,600 | $0.00 | | |
| PORTRFD | PORT REFUND 640 | 0.0000000000 | $323,600 | $323,600 | $0.00 | | |
| PORTWWGEN | PORT OF WW 640 | 0.2460186015 | $323,600 | $323,600 | $79.61 | | |
| SD140BOND | SD #140 BOND 764 | 0.8342371393 | $323,600 | $323,600 | $269.96 | | |
| SD140GEN | SD #140 GENERAL 760 | 2.0646500647 | $323,600 | $323,600 | $668.12 | | |
| ST2 | STATE SCHOOL PART 2 600 | 0.8131451643 | $323,600 | $323,600 | $263.13 | | |
| STATESCHL | STATE SCHOOL 600 | 1.5158548041 | $323,600 | $323,600 | $490.53 | | |
| STREFUND | STATE REFUND LEVY 603 | 0.0000000000 | $323,600 | $323,600 | $0.00 | | |
| CWWBOND | C OF WW BOND 643 | 0.2760494372 | $323,600 | $323,600 | $89.33 | | |
| CWWGEN | CITY OF WW 631 | 1.6100204973 | $323,600 | $323,600 | $521.00 | | |
| CWWRFD | CITY OF WALLA WALLA REFUND 631 | 0.0000000000 | $323,600 | $323,600 | $0.00 | | |
| | Total Tax Rate: | 8.7973694689 | | | | | |
| | | | | Taxes w/Current Exemptions: | $2,846.82 | | |
| | | | | Taxes w/o Exemptions: | $2,846.82 | | |
Improvement / Building
| Improvement #1: | RESIDENTIAL | State Code: | 11 | 960.0 sqft | Value: | $282,350 |
| Exterior Wall: | SIDING | Heating/Cooling: | WARM & COOLED AIR | | Number of Bathrooms: | 2 | Number of Bedrooms: | 3 | | Plumbing: | 9 | Roof Covering: | COMP SHINGLE |
|
| | Type | Description | Class CD | Sub Class CD | Year Built | Area |
| | MA | Main Area | 1 | 30 | 1953 | 960.0 |
| | SI1 | SITE IMPROVEMENT | 1 | 30 | 1953 | 1.5 |
| | BASE | BASEMENT | 1 | 30 | 1953 | 960.0 |
| | BPF | BASEMENT -PARTITIONED FINISH | 1 | 30 | 1953 | 456.0 |
| | DTG | Detached Garage | 1 | 30 | 1953 | 308.0 |
| | RPS | PORCH W/STEPS,ROOF | 1 | 30 | 1953 | 36.0 |
| | S1F | Single One Story Fireplace | 1 | 30 | 1953 | 1.0 |
| | CPC | COVERED CARPORT/PATIO | 1 | 30 | 1953 | 170.0 |
| | CPC | COVERED CARPORT/PATIO | 1 | 30 | 1953 | 242.0 |
Sketch
Property Image
Land
| 1 | RES 1 | Converted: Residential | 0.1515 | 6600.00 | 0.00 | 0.00 | 1.00 | $41,250 | $0 |
Roll Value History
| 2026 | N/A | N/A | N/A | N/A | N/A |
| 2025 | $315,510 | $66,000 | $0 | $381,510 | $381,510 |
| 2024 | $315,510 | $66,000 | $0 | $381,510 | $381,510 |
| 2023 | $282,350 | $41,250 | $0 | $323,600 | $323,600 |
| 2022 | $245,520 | $41,250 | $0 | $286,770 | $286,770 |
| 2021 | $204,600 | $41,250 | $0 | $245,850 | $245,850 |
| 2020 | $132,000 | $41,250 | $0 | $173,250 | $173,250 |
| 2019 | $132,000 | $41,250 | $0 | $173,250 | $173,250 |
| 2018 | $132,000 | $41,250 | $0 | $173,250 | $173,250 |
| 2017 | $136,020 | $26,400 | $0 | $162,420 | $162,420 |
| 2016 | $118,280 | $26,400 | $0 | $144,680 | $144,680 |
| 2015 | $118,280 | $26,400 | $0 | $144,680 | $144,680 |
| 2014 | $124,500 | $26,400 | $0 | $150,900 | $150,900 |
| 2013 | $124,500 | $26,400 | $0 | $150,900 | $150,900 |
| 2012 | $135,200 | $26,400 | $0 | $0 | $0 |
| 2011 | $120,500 | $26,400 | $0 | $0 | $0 |
| 2010 | $113,500 | $26,400 | $0 | $0 | $0 |
| 2009 | $129,000 | $26,400 | $0 | $0 | $0 |
| 2008 | $108,700 | $26,400 | $0 | $0 | $0 |
| 2007 | $108,700 | $26,400 | $0 | $0 | $0 |
Deed and Sales History
| 1 | 06/26/2023 | SWD | STATUTORY WARRANTY DEED | ANDERSON KATHRYN L | SOMOSKEY ANDREW & EMILY | | | $411,000.00 | 146040 | 2023-03519 |
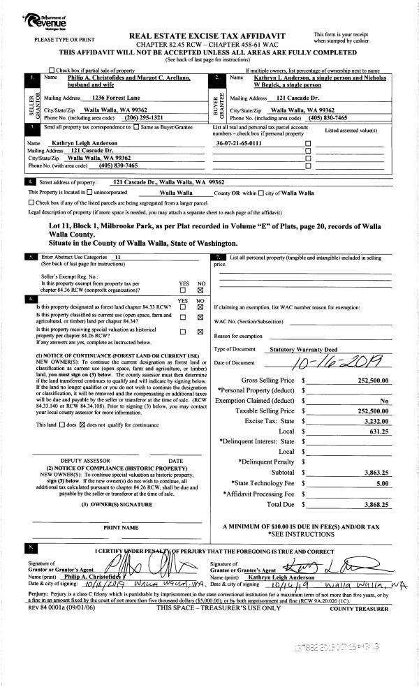
| 2 | 10/16/2019 | SWD | STATUTORY WARRANTY DEED | CHRISTOFIDES PHILIP A | ANDERSON KATHRYN L | | | $252,500.00 | 137882 | 20219-08313 |
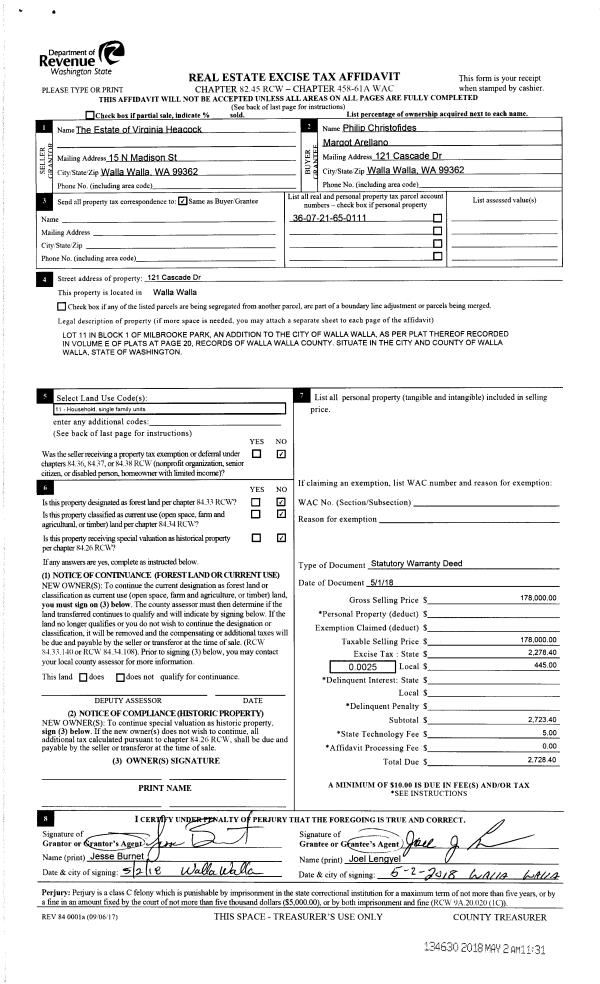
| 3 | 05/02/2018 | SWD | STATUTORY WARRANTY DEED | HEACOCK VIRGINIA M ESTATE OF | CHRISTOFIDES PHILIP A | | | $178,000.00 | 134630 | 2018-03465 |
| 4 | 01/01/1953 | WARRANTY D | WARRANTY DEED | | | | | $0.00 | 0 | 2670-367410 |
Payout Agreement
| No payout information available.. |