Property
Account |
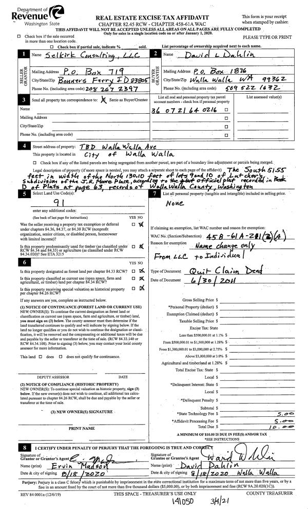
| Property ID: | 8150 | Abbreviated Legal Description: | LUTCHERS PARCEL 16 (N 24.20' OF LOT 12) BLK 2 |
| Parcel Number: | 360721640216 | Agent Code: | |
| Type: | Real | | |
| Tax Area: | 1 - OL-140-F | Land Use Code | 91 |
| Open Space: | N | DFL | N |
| Historic Property: | N | Remodel Property: | N |
| Multi-Family Redevelopment: | N | | |
| Township: | 7 | Section: | 21 |
| Range: | 36 |
Location |
| Address: | WA 99362 | Mapsco: | |
| Neighborhood: | WW Downtown Core area #3 | Map ID: | |
| Neighborhood CD: | 5343 |
Owner |
| Name: | ORA RAE OTTMAR LOVING TRUST | Owner ID: | 69232 |
| Mailing Address: | 1365 MILBURN ST WALLA WALLA, WA 99362 | % Ownership: | 100.0000000000% |
| | | Exemptions: | |
Taxes and Assessment Details
Property Tax Information as of
02/21/2026
Click on "Statement Details" to expand or collapse a tax statement.
* Please enter a valid date ** Please enter a valid date *
Statement Details |
| | TOTAL: | $0.00 | $0.00 | $0.00 | $0.00 | $0.00 | $0.00 |
|
| | $0.00 | $0.00 | $0.00 | $0.00 | $0.00 | $0.00 |
Values
| (+) Improvement Homesite Value: | + | $0 | |
| (+) Improvement Non-Homesite Value: | + | $0 | |
| (+) Land Homesite Value: | + | $0 | |
| (+) Land Non-Homesite Value: | + | $17,300 | |
| (+) Curr Use (HS): | + | $0 | $0 |
| (+) Curr Use (NHS): | + | $0 | $0 |
| | | -------------------------- | |
| (=) Market Value: | = | $17,300 | |
| (–) Productivity Loss: | – | $0 | |
| | | -------------------------- | |
| (=) Subtotal: | = | $17,300 | |
| (+) Senior Appraised Value: | + | $0 | |
| (+) Non-Senior Appraised Value: | + | $17,300 | |
| | | -------------------------- | |
| (=) Total Appraised Value: | = | $17,300 | |
| (–) Senior Exemption Loss: | – | $0 | |
| (–) Exemption Loss: | – | $0 | |
| | | -------------------------- | |
| (=) Taxable Value: | = | $17,300 | |
Taxing Jurisdiction
| Owner: | ORA RAE OTTMAR LOVING TRUST | | |
| % Ownership: | 100.0000000000% | | |
| Total Value: | $17,300 | | |
| Tax Area: | 1 - OL-140-F |
| CERFD | CURRENT EXPENSE REFUND 010 | 0.0000000000 | $17,300 | $17,300 | $0.00 | | |
| CURREXP | CURRENT EXPENSE 010 | 1.0175366760 | $17,300 | $17,300 | $17.60 | | |
| HUMNSERV | HUMAN SERVICES 119 | 0.0250000000 | $17,300 | $17,300 | $0.43 | | |
| SLDREL | SOLDIERS RELIEF 121 | 0.0155990005 | $17,300 | $17,300 | $0.27 | | |
| EMERGSER | EMS 147 | 0.3792580840 | $17,300 | $17,300 | $6.56 | | |
| EMSRFD | EMS REFUND 147 | 0.0000000000 | $17,300 | $17,300 | $0.00 | | |
| PORTRFD | PORT REFUND 640 | 0.0000000000 | $17,300 | $17,300 | $0.00 | | |
| PORTWWGEN | PORT OF WW 640 | 0.2460186015 | $17,300 | $17,300 | $4.26 | | |
| SD140BOND | SD #140 BOND 764 | 0.8342371393 | $17,300 | $17,300 | $14.43 | | |
| SD140GEN | SD #140 GENERAL 760 | 2.0646500647 | $17,300 | $17,300 | $35.72 | | |
| ST2 | STATE SCHOOL PART 2 600 | 0.8131451643 | $17,300 | $17,300 | $14.07 | | |
| STATESCHL | STATE SCHOOL 600 | 1.5158548041 | $17,300 | $17,300 | $26.22 | | |
| STREFUND | STATE REFUND LEVY 603 | 0.0000000000 | $17,300 | $17,300 | $0.00 | | |
| CWWBOND | C OF WW BOND 643 | 0.2760494372 | $17,300 | $17,300 | $4.78 | | |
| CWWGEN | CITY OF WW 631 | 1.6100204973 | $17,300 | $17,300 | $27.85 | | |
| CWWRFD | CITY OF WALLA WALLA REFUND 631 | 0.0000000000 | $17,300 | $17,300 | $0.00 | | |
| | Total Tax Rate: | 8.7973694689 | | | | | |
| | | | | Taxes w/Current Exemptions: | $152.19 | | |
| | | | | Taxes w/o Exemptions: | $152.19 | | |
Improvement / Building
Sketch
| No sketches available for this property. |
Property Image
Land
| 1 | RES 1 | Converted: Residential | 0.0755 | 3290.00 | 0.00 | 0.00 | 1.00 | $17,300 | $0 |
Roll Value History
| 2026 | N/A | N/A | N/A | N/A | N/A |
| 2025 | $0 | $19,700 | $0 | $19,700 | $19,700 |
| 2024 | $0 | $19,700 | $0 | $19,700 | $19,700 |
| 2023 | $0 | $17,300 | $0 | $17,300 | $17,300 |
| 2022 | $0 | $17,300 | $0 | $17,300 | $17,300 |
| 2021 | $0 | $17,300 | $0 | $17,300 | $17,300 |
| 2020 | $0 | $17,300 | $0 | $17,300 | $17,300 |
| 2019 | $0 | $17,300 | $0 | $17,300 | $17,300 |
| 2018 | $0 | $17,300 | $0 | $17,300 | $17,300 |
| 2017 | $0 | $11,500 | $0 | $11,500 | $11,500 |
| 2016 | $0 | $11,500 | $0 | $11,500 | $11,500 |
| 2015 | $0 | $11,500 | $0 | $11,500 | $11,500 |
| 2014 | $0 | $11,500 | $0 | $11,500 | $11,500 |
| 2013 | $0 | $11,500 | $0 | $11,500 | $11,500 |
| 2012 | $0 | $11,500 | $0 | $0 | $0 |
| 2011 | $0 | $11,500 | $0 | $0 | $0 |
| 2010 | $0 | $11,500 | $0 | $0 | $0 |
| 2009 | $0 | $11,500 | $0 | $0 | $0 |
| 2008 | $0 | $11,500 | $0 | $0 | $0 |
| 2007 | $0 | $11,500 | $0 | $0 | $0 |
Deed and Sales History
| 1 | 04/19/2021 | QCD | QUIT CLAIM DEED | OTTMAR INVESTMENT GROUP LLC | ORA RAE OTTMAR LOVING TRUST | | 3 PARCELS | $0.00 | 141359 | 2021-04514 |
| 2 | 01/12/1994 | WARRANTY D | WARRANTY DEED | | | | | $85,000.00 | 80873 | 2159-400538 |
|   | |
Payout Agreement
| No payout information available.. |