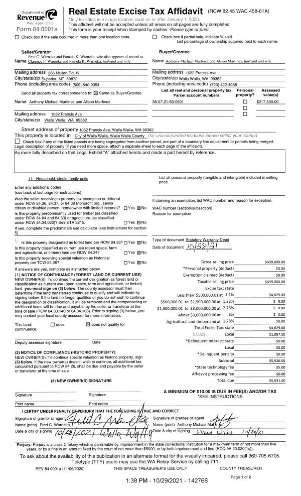
Property
Account |
| Property ID: | 8126 | Abbreviated Legal Description: | LENNONS & WILDWOOD LOT 1 BLK 5 |
| Parcel Number: | 360721630501 | Agent Code: | |
| Type: | Real | | |
| Tax Area: | 1 - OL-140-F | Land Use Code | 11 |
| Open Space: | N | DFL | N |
| Historic Property: | N | Remodel Property: | N |
| Multi-Family Redevelopment: | N | | |
| Township: | 7 | Section: | 21 |
| Range: | 36 |
Location |
| Address: | 1032 FRANCIS AVE WA 99362 | Mapsco: | |
| Neighborhood: | G-SFR | Map ID: | |
| Neighborhood CD: | 514011 |
Owner |
| Name: | MARTINEZ ANTHONY MICHAEL & ALISON | Owner ID: | 70528 |
| Mailing Address: | 1032 FRANCIS AVE WALLA WALLA, WA 99362 | % Ownership: | 100.0000000000% |
| | | Exemptions: | |
Taxes and Assessment Details
Values
| (+) Improvement Homesite Value: | + | $0 | |
| (+) Improvement Non-Homesite Value: | + | $428,740 | |
| (+) Land Homesite Value: | + | $0 | |
| (+) Land Non-Homesite Value: | + | $43,500 | |
| (+) Curr Use (HS): | + | $0 | $0 |
| (+) Curr Use (NHS): | + | $0 | $0 |
| | | -------------------------- | |
| (=) Market Value: | = | $472,240 | |
| (–) Productivity Loss: | – | $0 | |
| | | -------------------------- | |
| (=) Subtotal: | = | $472,240 | |
| (+) Senior Appraised Value: | + | $0 | |
| (+) Non-Senior Appraised Value: | + | $472,240 | |
| | | -------------------------- | |
| (=) Total Appraised Value: | = | $472,240 | |
| (–) Senior Exemption Loss: | – | $0 | |
| (–) Exemption Loss: | – | $0 | |
| | | -------------------------- | |
| (=) Taxable Value: | = | $472,240 | |
Taxing Jurisdiction
| Owner: | MARTINEZ ANTHONY MICHAEL & ALISON | | |
| % Ownership: | 100.0000000000% | | |
| Total Value: | $472,240 | | |
| Tax Area: | 1 - OL-140-F |
| CERFD | CURRENT EXPENSE REFUND 010 | 0.0000000000 | $472,240 | $472,240 | $0.00 | | |
| CURREXP | CURRENT EXPENSE 010 | 1.0175366760 | $472,240 | $472,240 | $480.52 | | |
| HUMNSERV | HUMAN SERVICES 119 | 0.0250000000 | $472,240 | $472,240 | $11.81 | | |
| SLDREL | SOLDIERS RELIEF 121 | 0.0155990005 | $472,240 | $472,240 | $7.37 | | |
| EMERGSER | EMS 147 | 0.3792580840 | $472,240 | $472,240 | $179.10 | | |
| EMSRFD | EMS REFUND 147 | 0.0000000000 | $472,240 | $472,240 | $0.00 | | |
| PORTRFD | PORT REFUND 640 | 0.0000000000 | $472,240 | $472,240 | $0.00 | | |
| PORTWWGEN | PORT OF WW 640 | 0.2460186015 | $472,240 | $472,240 | $116.18 | | |
| SD140BOND | SD #140 BOND 764 | 0.8342371393 | $472,240 | $472,240 | $393.96 | | |
| SD140GEN | SD #140 GENERAL 760 | 2.0646500647 | $472,240 | $472,240 | $975.01 | | |
| ST2 | STATE SCHOOL PART 2 600 | 0.8131451643 | $472,240 | $472,240 | $384.00 | | |
| STATESCHL | STATE SCHOOL 600 | 1.5158548041 | $472,240 | $472,240 | $715.85 | | |
| STREFUND | STATE REFUND LEVY 603 | 0.0000000000 | $472,240 | $472,240 | $0.00 | | |
| CWWBOND | C OF WW BOND 643 | 0.2760494372 | $472,240 | $472,240 | $130.36 | | |
| CWWGEN | CITY OF WW 631 | 1.6100204973 | $472,240 | $472,240 | $760.32 | | |
| CWWRFD | CITY OF WALLA WALLA REFUND 631 | 0.0000000000 | $472,240 | $472,240 | $0.00 | | |
| | Total Tax Rate: | 8.7973694689 | | | | | |
| | | | | Taxes w/Current Exemptions: | $4,154.48 | | |
| | | | | Taxes w/o Exemptions: | $4,154.48 | | |
Improvement / Building
| Improvement #1: | RESIDENTIAL | State Code: | 11 | 1514.0 sqft | Value: | $428,740 |
| Exterior Wall: | SIDING | Heating/Cooling: | MINI-SPLIT HP SYSTEM | | Number of Bathrooms: | 2 | Number of Bedrooms: | 3 | | Plumbing: | 10 | Roof Covering: | COMP SHINGLE |
|
| | Type | Description | Class CD | Sub Class CD | Year Built | Area |
| | MA | Main Area | 4 | 30 | 1936 | 1514.0 |
| | UPFL | Upper Floor (included in main area) | 4 | 30 | 1936 | 376.0 |
| | SI1 | SITE IMPROVEMENT | 4 | 30 | 1936 | 4.0 |
| | BASE | BASEMENT | 4 | 30 | 1936 | 1042.0 |
| | BPF | BASEMENT -PARTITIONED FINISH | 4 | 30 | 2021 | 1042.0 |
| | S1F | Single One Story Fireplace | 4 | 30 | 1936 | 1.0 |
| | OPS | OPEN PORCH W/STEPS | 4 | 30 | 1936 | 32.0 |
| | CPC | COVERED CARPORT/PATIO | 4 | 30 | 1936 | 110.0 |
| | DTG | Detached Garage | 4 | 30 | 1936 | 216.0 |
Sketch
Property Image
Land
| 1 | RES 1 | Converted: Residential | 0.1377 | 6000.00 | 0.00 | 0.00 | 1.00 | $43,500 | $0 |
Roll Value History
| 2026 | N/A | N/A | N/A | N/A | N/A |
| 2025 | $390,560 | $66,000 | $0 | $456,560 | $456,560 |
| 2024 | $390,560 | $66,000 | $0 | $456,560 | $456,560 |
| 2023 | $428,740 | $43,500 | $0 | $472,240 | $472,240 |
| 2022 | $389,760 | $43,500 | $0 | $433,260 | $433,260 |
| 2021 | $243,600 | $43,500 | $0 | $287,100 | $287,100 |
| 2020 | $174,000 | $43,500 | $0 | $217,500 | $217,500 |
| 2019 | $174,000 | $43,500 | $0 | $217,500 | $217,500 |
| 2018 | $174,000 | $43,500 | $0 | $217,500 | $217,500 |
| 2017 | $180,650 | $27,000 | $0 | $207,650 | $207,650 |
| 2016 | $164,230 | $27,000 | $0 | $191,230 | $191,230 |
| 2015 | $149,300 | $27,000 | $0 | $176,300 | $176,300 |
| 2014 | $149,300 | $27,000 | $0 | $176,300 | $176,300 |
| 2013 | $149,300 | $27,000 | $0 | $176,300 | $176,300 |
| 2012 | $160,500 | $27,000 | $0 | $0 | $0 |
| 2011 | $181,300 | $27,000 | $0 | $0 | $0 |
| 2010 | $171,400 | $27,000 | $0 | $0 | $0 |
| 2009 | $193,400 | $27,000 | $0 | $0 | $0 |
| 2008 | $118,200 | $24,000 | $0 | $0 | $0 |
| 2007 | $118,200 | $24,000 | $0 | $0 | $0 |
Deed and Sales History
| 1 | 10/28/2021 | SWD | STATUTORY WARRANTY DEED | WARNEKA FRED C & PAMELA K | MARTINEZ ANTHONY MICHAEL & ALISON | | | $439,000.00 | 142768 | 2021-13062 |
| 2 | 03/25/2005 | QCD | QUIT CLAIM DEED | WARNEKA, CLARENCE F & PAMELA K | WARNEKA, FRED C & PAMELA K | | | | 107067 | 2005-03372 |
| 3 | 10/06/1987 | WARRANTY D | WARRANTY DEED | | | | | $55,000.00 | 0 | 1678-707569 |
Payout Agreement
| No payout information available.. |