Property
Account |
| Property ID: | 8115 | Abbreviated Legal Description: | LENNONS & WILDWOOD LOT 23 BLK 3 |
| Parcel Number: | 360721630323 | Agent Code: | |
| Type: | Real | | |
| Tax Area: | 1 - OL-140-F | Land Use Code | 11 |
| Open Space: | N | DFL | N |
| Historic Property: | N | Remodel Property: | N |
| Multi-Family Redevelopment: | N | | |
| Township: | 7 | Section: | 21 |
| Range: | 36 |
Location |
| Address: | 1029 FRANCIS AVE WA 99362 | Mapsco: | |
| Neighborhood: | G-SFR | Map ID: | |
| Neighborhood CD: | 514011 |
Owner |
| Name: | DOYLE DOUGLAS JAY & STEPHANIE THACKER | Owner ID: | 72815 |
| Mailing Address: | 1029 FRANCIS AVE WALLA WALLA, WA 99362 | % Ownership: | 100.0000000000% |
| | | Exemptions: | |
Taxes and Assessment Details
Property Tax Information as of
04/19/2026
Click on "Statement Details" to expand or collapse a tax statement.
* Please enter a valid date ** Please enter a valid date *
Statement Details |
| | TOTAL: | $0.00 | $0.00 | $0.00 | $0.00 | $0.00 | $0.00 |
|
| | $0.00 | $0.00 | $0.00 | $0.00 | $0.00 | $0.00 |
Values
| (+) Improvement Homesite Value: | + | $0 | |
| (+) Improvement Non-Homesite Value: | + | $401,340 | |
| (+) Land Homesite Value: | + | $0 | |
| (+) Land Non-Homesite Value: | + | $50,750 | |
| (+) Curr Use (HS): | + | $0 | $0 |
| (+) Curr Use (NHS): | + | $0 | $0 |
| | | -------------------------- | |
| (=) Market Value: | = | $452,090 | |
| (–) Productivity Loss: | – | $0 | |
| | | -------------------------- | |
| (=) Subtotal: | = | $452,090 | |
| (+) Senior Appraised Value: | + | $0 | |
| (+) Non-Senior Appraised Value: | + | $452,090 | |
| | | -------------------------- | |
| (=) Total Appraised Value: | = | $452,090 | |
| (–) Senior Exemption Loss: | – | $0 | |
| (–) Exemption Loss: | – | $0 | |
| | | -------------------------- | |
| (=) Taxable Value: | = | $452,090 | |
Taxing Jurisdiction
| Owner: | DOYLE DOUGLAS JAY & STEPHANIE THACKER | | |
| % Ownership: | 100.0000000000% | | |
| Total Value: | $452,090 | | |
| Tax Area: | 1 - OL-140-F |
| CERFD | CURRENT EXPENSE REFUND 010 | 0.0000000000 | $452,090 | $452,090 | $0.00 | | |
| CURREXP | CURRENT EXPENSE 010 | 1.0175366760 | $452,090 | $452,090 | $460.02 | | |
| HUMNSERV | HUMAN SERVICES 119 | 0.0250000000 | $452,090 | $452,090 | $11.30 | | |
| SLDREL | SOLDIERS RELIEF 121 | 0.0155990005 | $452,090 | $452,090 | $7.05 | | |
| EMERGSER | EMS 147 | 0.3792580840 | $452,090 | $452,090 | $171.46 | | |
| EMSRFD | EMS REFUND 147 | 0.0000000000 | $452,090 | $452,090 | $0.00 | | |
| PORTRFD | PORT REFUND 640 | 0.0000000000 | $452,090 | $452,090 | $0.00 | | |
| PORTWWGEN | PORT OF WW 640 | 0.2460186015 | $452,090 | $452,090 | $111.22 | | |
| SD140BOND | SD #140 BOND 764 | 0.8342371393 | $452,090 | $452,090 | $377.15 | | |
| SD140GEN | SD #140 GENERAL 760 | 2.0646500647 | $452,090 | $452,090 | $933.41 | | |
| ST2 | STATE SCHOOL PART 2 600 | 0.8131451643 | $452,090 | $452,090 | $367.61 | | |
| STATESCHL | STATE SCHOOL 600 | 1.5158548041 | $452,090 | $452,090 | $685.30 | | |
| STREFUND | STATE REFUND LEVY 603 | 0.0000000000 | $452,090 | $452,090 | $0.00 | | |
| CWWBOND | C OF WW BOND 643 | 0.2760494372 | $452,090 | $452,090 | $124.80 | | |
| CWWGEN | CITY OF WW 631 | 1.6100204973 | $452,090 | $452,090 | $727.87 | | |
| CWWRFD | CITY OF WALLA WALLA REFUND 631 | 0.0000000000 | $452,090 | $452,090 | $0.00 | | |
| | Total Tax Rate: | 8.7973694689 | | | | | |
| | | | | Taxes w/Current Exemptions: | $3,977.19 | | |
| | | | | Taxes w/o Exemptions: | $3,977.19 | | |
Improvement / Building
| Improvement #1: | RESIDENTIAL | State Code: | 11 | 946.0 sqft | Value: | $401,340 |
| Exterior Wall: | SIDING | Heating/Cooling: | WARM & COOLED AIR | | Number of Bathrooms: | 2 | Number of Bedrooms: | 4 | | Plumbing: | 10 | Roof Covering: | COMP SHINGLE |
|
| | Type | Description | Class CD | Sub Class CD | Year Built | Area |
| | MA | Main Area | 1 | 35 | 1936 | 946.0 |
| | SI1 | SITE IMPROVEMENT | 1 | 35 | 1936 | 3.5 |
| | BASE | BASEMENT | 1 | 35 | 1936 | 946.0 |
| | BPF | BASEMENT -PARTITIONED FINISH | 1 | 35 | 1936 | 946.0 |
| | S1F | Single One Story Fireplace | 1 | 35 | 1936 | 1.0 |
| | RPS | PORCH W/STEPS,ROOF | 1 | 35 | 1936 | 72.0 |
| | OSP | Open | 1 | 35 | 2005 | 286.0 |
| | WOD | Wood Deck | 1 | 35 | 1936 | 36.0 |
| | DTG | Detached Garage | 1 | 35 | 1936 | 216.0 |
| | SHOP | SHOP BUILDING | 1 | 35 | 2019 | 406.0 |
| | GIF | GARAGE INTERIOR FINISH | 1 | 35 | 2019 | 406.0 |
Sketch
Property Image
Land
| 1 | RES 1 | Converted: Residential | 0.1607 | 7000.00 | 0.00 | 0.00 | 1.00 | $50,750 | $0 |
Roll Value History
| 2026 | N/A | N/A | N/A | N/A | N/A |
| 2025 | $373,270 | $77,000 | $0 | $450,270 | $450,270 |
| 2024 | $373,270 | $77,000 | $0 | $450,270 | $450,270 |
| 2023 | $401,340 | $50,750 | $0 | $452,090 | $452,090 |
| 2022 | $364,860 | $50,750 | $0 | $415,610 | $415,610 |
| 2021 | $331,690 | $50,750 | $0 | $382,440 | $382,440 |
| 2020 | $236,920 | $50,750 | $0 | $287,670 | $287,670 |
| 2019 | $208,380 | $50,750 | $0 | $259,130 | $259,130 |
| 2018 | $196,200 | $50,750 | $0 | $246,950 | $246,950 |
| 2017 | $211,780 | $31,500 | $0 | $243,280 | $243,280 |
| 2016 | $192,530 | $31,500 | $0 | $224,030 | $224,030 |
| 2015 | $192,530 | $31,500 | $0 | $224,030 | $224,030 |
| 2014 | $148,100 | $31,500 | $0 | $179,600 | $179,600 |
| 2013 | $148,100 | $31,500 | $0 | $179,600 | $179,600 |
| 2012 | $148,100 | $31,500 | $0 | $0 | $0 |
| 2011 | $157,600 | $31,500 | $0 | $0 | $0 |
| 2010 | $140,000 | $31,500 | $0 | $0 | $0 |
| 2009 | $159,100 | $31,500 | $0 | $0 | $0 |
| 2008 | $118,600 | $28,000 | $0 | $0 | $0 |
| 2007 | $118,600 | $28,000 | $0 | $0 | $0 |
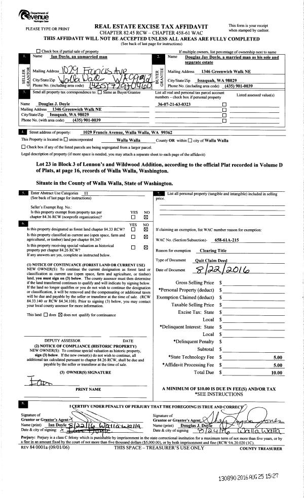
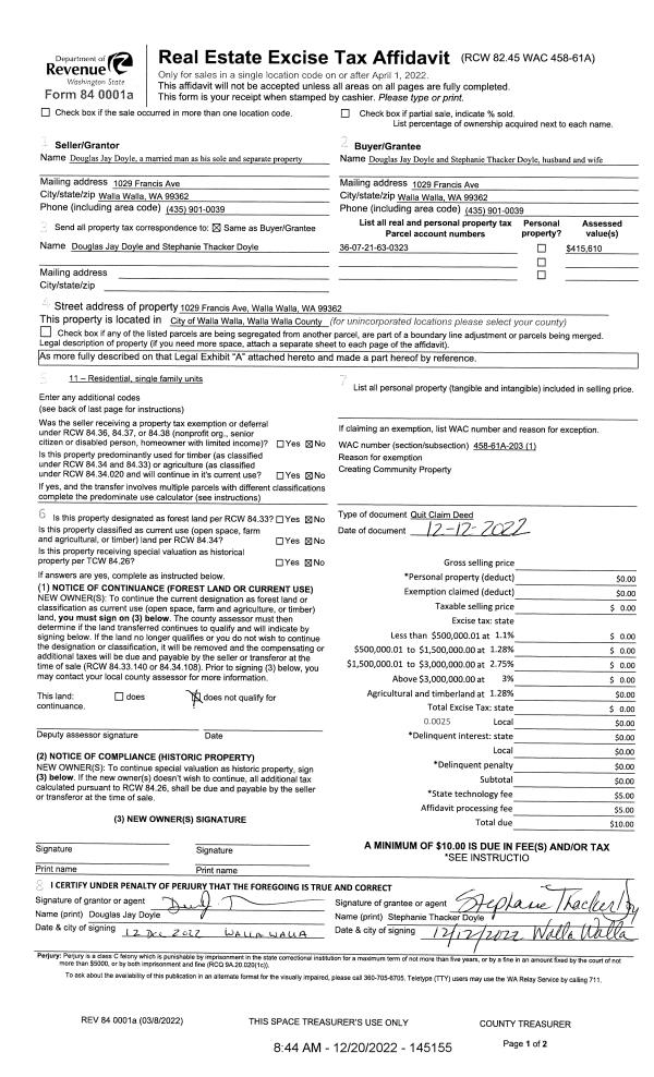
Deed and Sales History
| 1 | 12/12/2022 | QCD | QUIT CLAIM DEED | DOYLE DOUGLAS JAY | DOYLE DOUGLAS JAY & STEPHANIE THACKER | | | $0.00 | 145155 | 2022-09787 |
| 2 | 08/24/2016 | QCD | QUIT CLAIM DEED | DOYLE IAN | DOYLE DOUGLAS JAY | | | $0.00 | 130890 | 2016-06835 |
| 3 | 12/11/2014 | QCD | QUIT CLAIM DEED | DOYLE STEPHANIE | DOYLE DOUGLAS J | | | | 127090 | 2014-09015 |
| 4 | 12/11/2014 | SWD | STATUTORY WARRANTY DEED | VON BARGEN ERIC | DOYLE IAN | | | $241,000.00 | 127089 | 2014-09014 |
| 5 | 04/06/2013 | COMMUNITY | COMMUNITY PROPERTY AGREEMENT | VON BARGEN ERIC & VICTORIA | VON BARGEN ERIC | | | | 0 | |
| 6 | 05/25/2001 | WARRANTY D | WARRANTY DEED | | | | | $110,000.00 | 97234 | 3130-105439 |
Payout Agreement
| No payout information available.. |