Property
Account |
| Property ID: | 8111 | Abbreviated Legal Description: | LENNONS & WILDWOOD LOT 19 BLK 3 |
| Parcel Number: | 360721630319 | Agent Code: | |
| Type: | Real | | |
| Tax Area: | 1 - OL-140-F | Land Use Code | 11 |
| Open Space: | N | DFL | N |
| Historic Property: | N | Remodel Property: | N |
| Multi-Family Redevelopment: | N | | |
| Township: | 7 | Section: | 21 |
| Range: | 36 |
Location |
| Address: | 1049 FRANCIS AVE WA 99362 | Mapsco: | |
| Neighborhood: | G-SFR | Map ID: | |
| Neighborhood CD: | 514011 |
Owner |
| Name: | BISHOP DENNIS BLAIR | Owner ID: | 65961 |
| Mailing Address: | 1049 FRANCIS AVE WALLA WALLA, WA 99362 | % Ownership: | 100.0000000000% |
| | | Exemptions: | |
Taxes and Assessment Details
Property Tax Information as of
02/21/2026
Click on "Statement Details" to expand or collapse a tax statement.
* Please enter a valid date ** Please enter a valid date *
Statement Details |
| | TOTAL: | $0.00 | $0.00 | $0.00 | $0.00 | $0.00 | $0.00 |
|
| | $0.00 | $0.00 | $0.00 | $0.00 | $0.00 | $0.00 |
Values
| (+) Improvement Homesite Value: | + | $0 | |
| (+) Improvement Non-Homesite Value: | + | $375,590 | |
| (+) Land Homesite Value: | + | $0 | |
| (+) Land Non-Homesite Value: | + | $50,750 | |
| (+) Curr Use (HS): | + | $0 | $0 |
| (+) Curr Use (NHS): | + | $0 | $0 |
| | | -------------------------- | |
| (=) Market Value: | = | $426,340 | |
| (–) Productivity Loss: | – | $0 | |
| | | -------------------------- | |
| (=) Subtotal: | = | $426,340 | |
| (+) Senior Appraised Value: | + | $0 | |
| (+) Non-Senior Appraised Value: | + | $426,340 | |
| | | -------------------------- | |
| (=) Total Appraised Value: | = | $426,340 | |
| (–) Senior Exemption Loss: | – | $0 | |
| (–) Exemption Loss: | – | $0 | |
| | | -------------------------- | |
| (=) Taxable Value: | = | $426,340 | |
Taxing Jurisdiction
| Owner: | BISHOP DENNIS BLAIR | | |
| % Ownership: | 100.0000000000% | | |
| Total Value: | $426,340 | | |
| Tax Area: | 1 - OL-140-F |
| CERFD | CURRENT EXPENSE REFUND 010 | 0.0000000000 | $426,340 | $426,340 | $0.00 | | |
| CURREXP | CURRENT EXPENSE 010 | 1.0175366760 | $426,340 | $426,340 | $433.82 | | |
| HUMNSERV | HUMAN SERVICES 119 | 0.0250000000 | $426,340 | $426,340 | $10.66 | | |
| SLDREL | SOLDIERS RELIEF 121 | 0.0155990005 | $426,340 | $426,340 | $6.65 | | |
| EMERGSER | EMS 147 | 0.3792580840 | $426,340 | $426,340 | $161.69 | | |
| EMSRFD | EMS REFUND 147 | 0.0000000000 | $426,340 | $426,340 | $0.00 | | |
| PORTRFD | PORT REFUND 640 | 0.0000000000 | $426,340 | $426,340 | $0.00 | | |
| PORTWWGEN | PORT OF WW 640 | 0.2460186015 | $426,340 | $426,340 | $104.89 | | |
| SD140BOND | SD #140 BOND 764 | 0.8342371393 | $426,340 | $426,340 | $355.67 | | |
| SD140GEN | SD #140 GENERAL 760 | 2.0646500647 | $426,340 | $426,340 | $880.24 | | |
| ST2 | STATE SCHOOL PART 2 600 | 0.8131451643 | $426,340 | $426,340 | $346.68 | | |
| STATESCHL | STATE SCHOOL 600 | 1.5158548041 | $426,340 | $426,340 | $646.27 | | |
| STREFUND | STATE REFUND LEVY 603 | 0.0000000000 | $426,340 | $426,340 | $0.00 | | |
| CWWBOND | C OF WW BOND 643 | 0.2760494372 | $426,340 | $426,340 | $117.69 | | |
| CWWGEN | CITY OF WW 631 | 1.6100204973 | $426,340 | $426,340 | $686.42 | | |
| CWWRFD | CITY OF WALLA WALLA REFUND 631 | 0.0000000000 | $426,340 | $426,340 | $0.00 | | |
| | Total Tax Rate: | 8.7973694689 | | | | | |
| | | | | Taxes w/Current Exemptions: | $3,750.68 | | |
| | | | | Taxes w/o Exemptions: | $3,750.68 | | |
Improvement / Building
| Improvement #1: | RESIDENTIAL | State Code: | 11 | 1167.0 sqft | Value: | $375,590 |
| Exterior Wall: | SIDING | Heating/Cooling: | WARM & COOLED AIR | | Number of Bathrooms: | 2 | Number of Bedrooms: | 2 | | Plumbing: | 9 | Roof Covering: | COMP SHINGLE |
|
| | Type | Description | Class CD | Sub Class CD | Year Built | Area |
| | MA | Main Area | 1 | 35 | 1929 | 1167.0 |
| | SI1 | SITE IMPROVEMENT | 1 | 35 | 0 | 3.0 |
| | BASE | BASEMENT | 1 | 35 | 1929 | 955.0 |
| | BPF | BASEMENT -PARTITIONED FINISH | 1 | 35 | 1929 | 955.0 |
| | DTG | Detached Garage | 1 | 35 | 1929 | 216.0 |
| | RPS | PORCH W/STEPS,ROOF | 1 | 35 | 1929 | 117.0 |
| | S1F | Single One Story Fireplace | 1 | 35 | 1929 | 1.0 |
| | UTST | Utility Storage Shed | 1 | 35 | 1929 | 120.0 |
Sketch
Property Image
Land
| 1 | RES 1 | Converted: Residential | 0.1607 | 7000.00 | 0.00 | 0.00 | 1.00 | $50,750 | $0 |
Roll Value History
| 2026 | N/A | N/A | N/A | N/A | N/A |
| 2025 | $454,140 | $77,000 | $0 | $531,140 | $531,140 |
| 2024 | $349,340 | $77,000 | $0 | $426,340 | $426,340 |
| 2023 | $375,590 | $50,750 | $0 | $426,340 | $426,340 |
| 2022 | $341,440 | $50,750 | $0 | $392,190 | $392,190 |
| 2021 | $310,400 | $50,750 | $0 | $361,150 | $361,150 |
| 2020 | $238,770 | $50,750 | $0 | $289,520 | $289,520 |
| 2019 | $238,770 | $50,750 | $0 | $289,520 | $289,520 |
| 2018 | $227,400 | $50,750 | $0 | $278,150 | $278,150 |
| 2017 | $168,670 | $31,500 | $0 | $200,170 | $200,170 |
| 2016 | $153,340 | $31,500 | $0 | $184,840 | $184,840 |
| 2015 | $139,400 | $31,500 | $0 | $170,900 | $170,900 |
| 2014 | $139,400 | $31,500 | $0 | $170,900 | $170,900 |
| 2013 | $139,400 | $31,500 | $0 | $170,900 | $170,900 |
| 2012 | $157,400 | $31,500 | $0 | $0 | $0 |
| 2011 | $157,400 | $31,500 | $0 | $0 | $0 |
| 2010 | $139,800 | $31,500 | $0 | $0 | $0 |
| 2009 | $158,800 | $31,500 | $0 | $0 | $0 |
| 2008 | $118,400 | $28,000 | $0 | $0 | $0 |
| 2007 | $118,400 | $28,000 | $0 | $0 | $0 |
Deed and Sales History
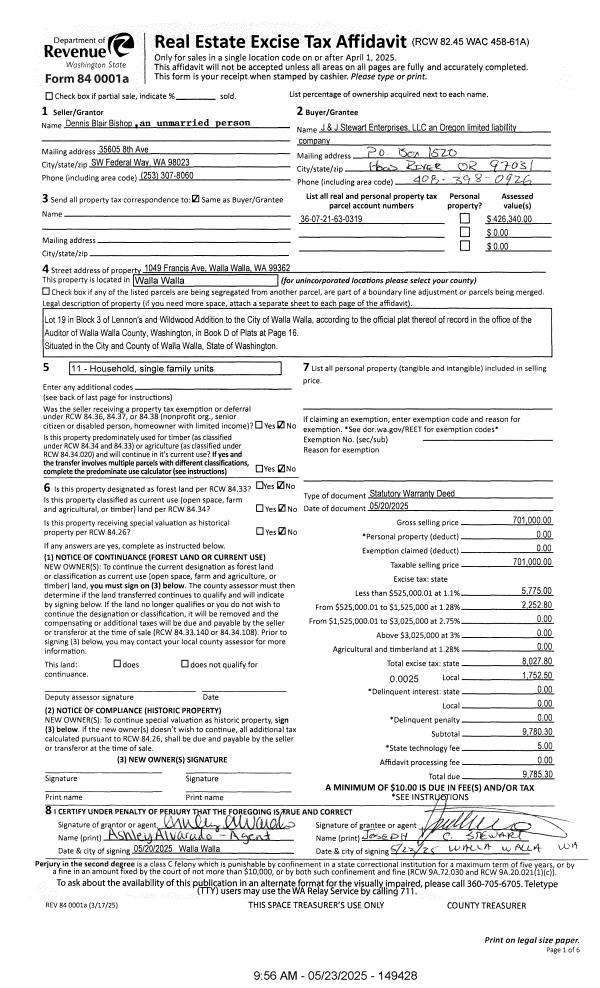
| 1 | 05/23/2025 | SWD | STATUTORY WARRANTY DEED | BISHOP DENNIS BLAIR | J & J STEWART ENTERPRISES LLC | | | $701,000.00 | 149428 | 2025-02858 |
| 2 | 09/20/2019 | SWD | STATUTORY WARRANTY DEED | WARTER RICK & JODI | BISHOP DENNIS BLAIR | | | $399,000.00 | 137733 | 2019-07426 |
| 3 | 11/08/2017 | SWD | STATUTORY WARRANTY DEED | MATTHEW C DEFREITAS & STELLA Y DEFREITAS JOINT LIVING TRUST | WARTER RICK & JODI | | | $295,000.00 | 133582 | 2017-08979 |
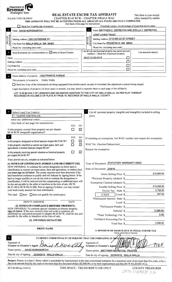
| 4 | 02/29/2016 | SWD | STATUTORY WARRANTY DEED | NORSWORTHY DAVID R | MATTHEW C DEFREITAS & STELLA Y DEFREITAS JOINT LIVING TRUST | | | $215,000.00 | 129754 | 2016-01505 |
| 5 | 12/20/2012 | WARRANTY D | WARRANTY DEED | NORSWORTHY, DAVID R & CLAIRE | NORSWORTHY, DAVID R | | | $0.00 | 123205 | 2012-11383 |
| 6 | 05/05/1986 | WARRANTY D | WARRANTY DEED | | | | | $54,100.00 | 0 | 3390-512278 |
Payout Agreement
| No payout information available.. |