Property
Account |
| Property ID: | 8104 | Abbreviated Legal Description: | 6-7-37 PARCEL B OF S/P (ELY PTN TAX 6 WITHIN NE1/4NW1/4 6-7-37 & SMPTN 31-8-37) |
| Parcel Number: | 370706210014 | Agent Code: | |
| Type: | Real | | |
| Tax Area: | 310 - 101-8 | Land Use Code | 83 |
| Open Space: | Y | DFL | N |
| Historic Property: | N | Remodel Property: | N |
| Multi-Family Redevelopment: | N | | |
| Township: | 7 | Section: | 6 |
| Range: | 37 |
Location |
| Address: | 992 SAPOLIL RD WA 99329 | Mapsco: | |
| Neighborhood: | 0 Farm | Map ID: | |
| Neighborhood CD: | 4240 |
Owner |
| Name: | JONES DOUGLAS & RENEE MARTONICK-JONES | Owner ID: | 58257 |
| Mailing Address: | 49 IRIS LN WALLA WALLA, WA 99362 | % Ownership: | 100.0000000000% |
| | | Exemptions: | |
Taxes and Assessment Details
Property Tax Information as of
02/21/2026
Click on "Statement Details" to expand or collapse a tax statement.
* Please enter a valid date ** Please enter a valid date *
Statement Details |
| | TOTAL: | $0.00 | $0.00 | $0.00 | $0.00 | $0.00 | $0.00 |
|
| | $0.00 | $0.00 | $0.00 | $0.00 | $0.00 | $0.00 |
Values
| (+) Improvement Homesite Value: | + | $0 | |
| (+) Improvement Non-Homesite Value: | + | $34,900 | |
| (+) Land Homesite Value: | + | $150,000 | |
| (+) Land Non-Homesite Value: | + | $0 | |
| (+) Curr Use (HS): | + | $0 | $0 |
| (+) Curr Use (NHS): | + | $33,870 | $12,350 |
| | | -------------------------- | |
| (=) Market Value: | = | $218,770 | |
| (–) Productivity Loss: | – | $21,510 | |
| | | -------------------------- | |
| (=) Subtotal: | = | $197,260 | |
| (+) Senior Appraised Value: | + | $0 | |
| (+) Non-Senior Appraised Value: | + | $197,250 | |
| | | -------------------------- | |
| (=) Total Appraised Value: | = | $197,250 | |
| (–) Senior Exemption Loss: | – | $0 | |
| (–) Exemption Loss: | – | $0 | |
| | | -------------------------- | |
| (=) Taxable Value: | = | $197,250 | |
Taxing Jurisdiction
| Owner: | JONES DOUGLAS & RENEE MARTONICK-JONES | | |
| % Ownership: | 100.0000000000% | | |
| Total Value: | $218,770 | | |
| Tax Area: | 310 - 101-8 |
| CERFD | CURRENT EXPENSE REFUND 010 | 0.0000000000 | $197,250 | $197,250 | $0.00 | | |
| CURREXP | CURRENT EXPENSE 010 | 1.0175366760 | $197,250 | $197,250 | $200.71 | | |
| HUMNSERV | HUMAN SERVICES 119 | 0.0250000000 | $197,250 | $197,250 | $4.93 | | |
| SLDREL | SOLDIERS RELIEF 121 | 0.0155990005 | $197,250 | $197,250 | $3.08 | | |
| EMERGSER | EMS 147 | 0.3792580840 | $197,250 | $197,250 | $74.81 | | |
| EMSRFD | EMS REFUND 147 | 0.0000000000 | $197,250 | $197,250 | $0.00 | | |
| FD8EXP | FD #8 EXPENSE 697 | 0.6647992540 | $197,250 | $197,250 | $131.13 | | |
| RLBRFD | RURAL LIBRARY REFUND 623 | 0.0000000000 | $197,250 | $197,250 | $0.00 | | |
| RURALLIB | RURAL LIBRARY 623 | 0.3710609029 | $197,250 | $197,250 | $73.19 | | |
| PORTRFD | PORT REFUND 640 | 0.0000000000 | $197,250 | $197,250 | $0.00 | | |
| PORTWWGEN | PORT OF WW 640 | 0.2460186015 | $197,250 | $197,250 | $48.53 | | |
| SD101CAP | SD #101 CAP 752 | 0.5894423472 | $197,250 | $197,250 | $116.27 | | |
| SD101GEN | SD #101 GENERAL 750 | 0.7455117868 | $197,250 | $197,250 | $147.05 | | |
| ST2 | STATE SCHOOL PART 2 600 | 0.8131451643 | $197,250 | $197,250 | $160.39 | | |
| STATESCHL | STATE SCHOOL 600 | 1.5158548041 | $197,250 | $197,250 | $299.00 | | |
| STREFUND | STATE REFUND LEVY 603 | 0.0000000000 | $197,250 | $197,250 | $0.00 | | |
| COROAD | COUNTY ROAD 115 | 1.6549953990 | $197,250 | $197,250 | $326.45 | | |
| CRPRD | COUNTY ROAD REFUND 115 | 0.0000000000 | $197,250 | $197,250 | $0.00 | | |
| | Total Tax Rate: | 8.0382220203 | | | | | |
| | | | | Taxes w/Current Exemptions: | $1,585.54 | | |
| | | | | Taxes w/o Exemptions: | $1,585.54 | | |
Improvement / Building
| Improvement #1: | RESIDENTIAL | State Code: | 83 | 1317.0 sqft | Value: | $34,900 |
| Exterior Wall: | SIDING | Foundation: | POST & PIER | | Heating/Cooling: | STOVE-NO HEAT | Number of Bathrooms: | 1 | | Number of Bedrooms: | 3 | Plumbing: | 6 | | Roof Covering: | COMP SHINGLE |   |   |
|
| | Type | Description | Class CD | Sub Class CD | Year Built | Area |
| | MA | Main Area | 4 | 20 | 1950 | 1317.0 |
| | UPFL | Upper Floor (included in main area) | 1 | 20 | 1950 | 192.0 |
| | SI1 | SITE IMPROVEMENT | 1 | 20 | 1950 | 1.0 |
| | SWP | Solid Wall Porch | 4 | 20 | 1950 | 60.0 |
| | OSP | Open | 1 | 20 | 1950 | 252.0 |
| | UTILITY | UTILITY BUILDING | 1 | 20 | 1950 | 1120.0 |
| | UTILITY | UTILITY BUILDING | 1 | 20 | 1950 | 2400.0 |
| | GUH | GUEST HOUSE | 1 | 20 | 1950 | 640.0 |
| | BASE | BASEMENT | 1 | 20 | 1950 | 640.0 |
| | BPF | BASEMENT -PARTITIONED FINISH | 1 | 20 | 2022 | 640.0 |
| | CPC | COVERED CARPORT/PATIO | 1 | 20 | 2022 | 108.0 |
Sketch
Property Image
Land
| 1 | 80-C1AN | Class 1 80 BU Annual | 11.1000 | 483516.00 | 0.00 | 0.00 | 1.00 | $33,870 | $12,350 |
| 2 | 15-HS | HOMESITE 150,000 | 1.0000 | 0.00 | 0.00 | 0.00 | 1.00 | $150,000 | $0 |
Roll Value History
| 2026 | N/A | N/A | N/A | N/A | N/A |
| 2025 | $48,950 | $185,650 | $11,120 | $210,070 | $210,070 |
| 2024 | $48,950 | $184,750 | $11,930 | $210,880 | $210,880 |
| 2023 | $34,900 | $183,870 | $12,350 | $197,250 | $197,250 |
| 2022 | $65,300 | $62,230 | $11,820 | $107,120 | $107,120 |
| 2021 | $65,300 | $60,460 | $11,760 | $107,060 | $107,060 |
| 2020 | $65,300 | $58,730 | $12,070 | $107,370 | $107,370 |
| 2019 | $65,300 | $57,840 | $12,290 | $107,590 | $107,590 |
| 2018 | $65,300 | $57,750 | $14,000 | $109,300 | $109,300 |
| 2017 | $65,300 | $57,530 | $14,230 | $109,530 | $109,530 |
| 2016 | $65,300 | $57,530 | $14,250 | $109,550 | $109,550 |
| 2015 | $65,300 | $57,530 | $12,650 | $107,950 | $107,950 |
| 2014 | $65,300 | $57,530 | $12,740 | $108,040 | $108,040 |
| 2013 | $65,300 | $56,200 | $10,301 | $105,600 | $105,600 |
| 2012 | $64,900 | $36,600 | $0 | $0 | $0 |
| 2011 | $65,300 | $36,300 | $0 | $0 | $0 |
| 2010 | $63,700 | $35,600 | $0 | $0 | $0 |
| 2009 | $66,100 | $35,800 | $0 | $0 | $0 |
| 2008 | $46,000 | $38,500 | $0 | $0 | $0 |
| 2007 | $46,000 | $38,500 | $0 | $0 | $0 |
Deed and Sales History
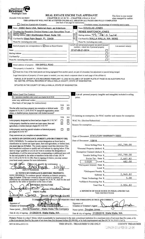
| 1 | 02/08/2016 | SWD | STATUTORY WARRANTY DEED | PEOPLE'S CHOICE HOME LOAN SECURITIES TRUST SERIES 2005-4 | JONES DOUGLAS & RENEE MARTONICK-JONES | | | $192,799.00 | 129639 | 2016-00952 |
| 2 | 09/02/2015 | SHERIFFS D | SHERIFFS DEED | STANGER CHARLES | PEOPLE'S CHOICE HOME LOAN SECURITIES TRUST SERIES 2005-4 | | | $0.00 | 128783 | 2015-07874 |
| 3 | 10/09/2014 | SHERIFFS D | SHERIFFS DEED | STANGER CHARLES | | | | | 0 | 2014-07407 |
| 4 | 04/10/2014 | SHERIFFS D | SHERIFFS DEED | STANGER CHARLES | | | | | 0 | 2014-02442 |
Payout Agreement
| No payout information available.. |