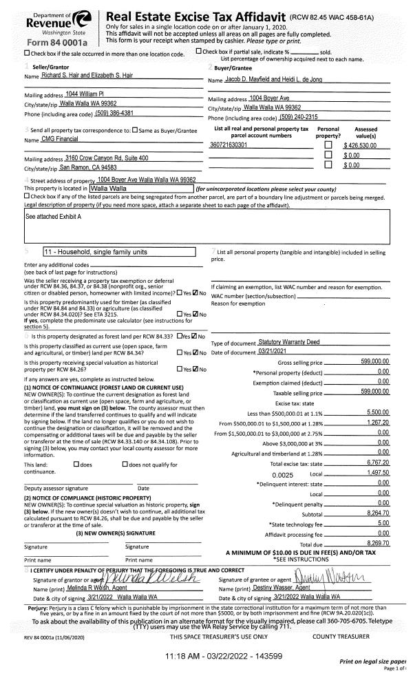
Property
Account |
| Property ID: | 8100 | Abbreviated Legal Description: | LENNONS & WILDWOOD LOT 1 BLK 3 |
| Parcel Number: | 360721630301 | Agent Code: | |
| Type: | Real | | |
| Tax Area: | 1 - OL-140-F | Land Use Code | 11 |
| Open Space: | N | DFL | N |
| Historic Property: | N | Remodel Property: | N |
| Multi-Family Redevelopment: | N | | |
| Township: | 7 | Section: | 21 |
| Range: | 36 |
Location |
| Address: | 1004 BOYER AVE WA 99362 | Mapsco: | |
| Neighborhood: | G-SFR | Map ID: | |
| Neighborhood CD: | 514011 |
Owner |
| Name: | MAYFIELD JACOB D | Owner ID: | 71332 |
| Mailing Address: | HEIDI L DE JONG 1004 BOYER AVE WALLA WALLA, WA 99362 | % Ownership: | 100.0000000000% |
| | | Exemptions: | |
Taxes and Assessment Details
Values
| (+) Improvement Homesite Value: | + | $0 | |
| (+) Improvement Non-Homesite Value: | + | $522,850 | |
| (+) Land Homesite Value: | + | $0 | |
| (+) Land Non-Homesite Value: | + | $60,900 | |
| (+) Curr Use (HS): | + | $0 | $0 |
| (+) Curr Use (NHS): | + | $0 | $0 |
| | | -------------------------- | |
| (=) Market Value: | = | $583,750 | |
| (–) Productivity Loss: | – | $0 | |
| | | -------------------------- | |
| (=) Subtotal: | = | $583,750 | |
| (+) Senior Appraised Value: | + | $0 | |
| (+) Non-Senior Appraised Value: | + | $583,750 | |
| | | -------------------------- | |
| (=) Total Appraised Value: | = | $583,750 | |
| (–) Senior Exemption Loss: | – | $0 | |
| (–) Exemption Loss: | – | $0 | |
| | | -------------------------- | |
| (=) Taxable Value: | = | $583,750 | |
Taxing Jurisdiction
| Owner: | MAYFIELD JACOB D | | |
| % Ownership: | 100.0000000000% | | |
| Total Value: | $583,750 | | |
| Tax Area: | 1 - OL-140-F |
| CERFD | CURRENT EXPENSE REFUND 010 | 0.0000000000 | $583,750 | $583,750 | $0.00 | | |
| CURREXP | CURRENT EXPENSE 010 | 1.0175366760 | $583,750 | $583,750 | $593.99 | | |
| HUMNSERV | HUMAN SERVICES 119 | 0.0250000000 | $583,750 | $583,750 | $14.59 | | |
| SLDREL | SOLDIERS RELIEF 121 | 0.0155990005 | $583,750 | $583,750 | $9.11 | | |
| EMERGSER | EMS 147 | 0.3792580840 | $583,750 | $583,750 | $221.39 | | |
| EMSRFD | EMS REFUND 147 | 0.0000000000 | $583,750 | $583,750 | $0.00 | | |
| PORTRFD | PORT REFUND 640 | 0.0000000000 | $583,750 | $583,750 | $0.00 | | |
| PORTWWGEN | PORT OF WW 640 | 0.2460186015 | $583,750 | $583,750 | $143.61 | | |
| SD140BOND | SD #140 BOND 764 | 0.8342371393 | $583,750 | $583,750 | $486.99 | | |
| SD140GEN | SD #140 GENERAL 760 | 2.0646500647 | $583,750 | $583,750 | $1,205.24 | | |
| ST2 | STATE SCHOOL PART 2 600 | 0.8131451643 | $583,750 | $583,750 | $474.67 | | |
| STATESCHL | STATE SCHOOL 600 | 1.5158548041 | $583,750 | $583,750 | $884.88 | | |
| STREFUND | STATE REFUND LEVY 603 | 0.0000000000 | $583,750 | $583,750 | $0.00 | | |
| CWWBOND | C OF WW BOND 643 | 0.2760494372 | $583,750 | $583,750 | $161.14 | | |
| CWWGEN | CITY OF WW 631 | 1.6100204973 | $583,750 | $583,750 | $939.85 | | |
| CWWRFD | CITY OF WALLA WALLA REFUND 631 | 0.0000000000 | $583,750 | $583,750 | $0.00 | | |
| | Total Tax Rate: | 8.7973694689 | | | | | |
| | | | | Taxes w/Current Exemptions: | $5,135.46 | | |
| | | | | Taxes w/o Exemptions: | $5,135.46 | | |
Improvement / Building
| Improvement #1: | RESIDENTIAL | State Code: | 11 | 2401.0 sqft | Value: | $522,850 |
| Exterior Wall: | COMMON BRICK | Heating/Cooling: | WARM & COOLED AIR | | Number of Bathrooms: | 3 | Number of Bedrooms: | 4 | | Plumbing: | 11 | Roof Covering: | COMP SHINGLE |
|
| | Type | Description | Class CD | Sub Class CD | Year Built | Area |
| | MA | Main Area | 2 | 40 | 1916 | 2401.0 |
| | UPFL | Upper Floor (included in main area) | 2 | 40 | 1916 | 1114.0 |
| | SI1 | SITE IMPROVEMENT | 2 | 40 | 1916 | 2.5 |
| | BASE | BASEMENT | 2 | 40 | 1916 | 1077.0 |
| | BPF | BASEMENT -PARTITIONED FINISH | 2 | 40 | 1916 | 757.0 |
| | S2F | Single 2S Fireplace | 2 | 40 | 1916 | 1.0 |
| | DTG | Detached Garage | 2 | 40 | 1916 | 360.0 |
| | RPS | PORCH W/STEPS,ROOF | 2 | 40 | 1916 | 36.0 |
| | CPC | COVERED CARPORT/PATIO | 2 | 40 | 1916 | 432.0 |
Sketch
Property Image
Land
| 1 | RES 1 | Converted: Residential | 0.1928 | 8400.00 | 0.00 | 0.00 | 1.00 | $60,900 | $0 |
Roll Value History
| 2026 | N/A | N/A | N/A | N/A | N/A |
| 2025 | $490,620 | $92,400 | $0 | $583,020 | $583,020 |
| 2024 | $490,620 | $92,400 | $0 | $583,020 | $583,020 |
| 2023 | $522,850 | $60,900 | $0 | $583,750 | $583,750 |
| 2022 | $475,320 | $60,900 | $0 | $536,220 | $536,220 |
| 2021 | $365,630 | $60,900 | $0 | $426,530 | $426,530 |
| 2020 | $317,940 | $60,900 | $0 | $378,840 | $378,840 |
| 2019 | $317,940 | $60,900 | $0 | $378,840 | $378,840 |
| 2018 | $302,800 | $60,900 | $0 | $363,700 | $363,700 |
| 2017 | $295,440 | $37,800 | $0 | $333,240 | $333,240 |
| 2016 | $295,440 | $37,800 | $0 | $333,240 | $333,240 |
| 2015 | $295,440 | $37,800 | $0 | $333,240 | $333,240 |
| 2014 | $246,200 | $37,800 | $0 | $284,000 | $284,000 |
| 2013 | $246,200 | $37,800 | $0 | $284,000 | $284,000 |
| 2012 | $246,200 | $37,800 | $0 | $0 | $0 |
| 2011 | $246,200 | $37,800 | $0 | $0 | $0 |
| 2010 | $232,700 | $37,800 | $0 | $0 | $0 |
| 2009 | $262,700 | $37,800 | $0 | $0 | $0 |
| 2008 | $266,900 | $33,600 | $0 | $0 | $0 |
| 2007 | $266,900 | $33,600 | $0 | $0 | $0 |
Deed and Sales History
| 1 | 03/22/2022 | SWD | STATUTORY WARRANTY DEED | HAIR RICHARD S & ELIZABETH | MAYFIELD JACOB D | | | $599,000.00 | 143599 | 2022-02380 |
| 2 | 11/05/1993 | WARRANTY D | WARRANTY DEED | | | | | $161,250.00 | 80419 | 2129-311536 |
Payout Agreement
| No payout information available.. |