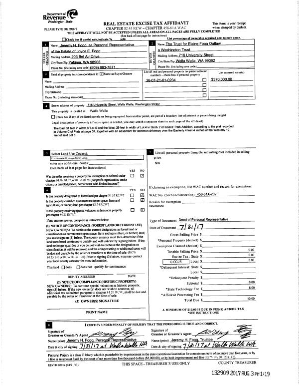
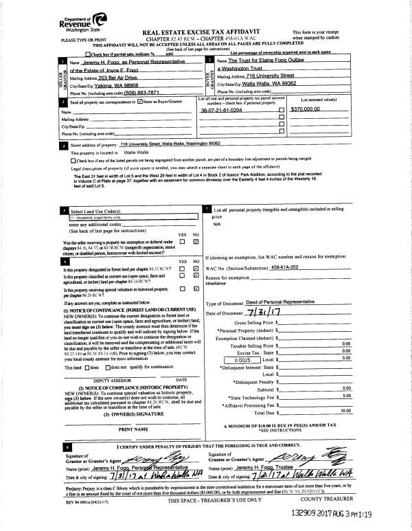
Property
Account |
| Property ID: | 8061 | Abbreviated Legal Description: | ISAACS PARK W 29' OF LOT 4 BLK 2 E 31' OF LOT 5 BLK 2 |
| Parcel Number: | 360721610204 | Agent Code: | |
| Type: | Real | | |
| Tax Area: | 1 - OL-140-F | Land Use Code | 11 |
| Open Space: | N | DFL | N |
| Historic Property: | N | Remodel Property: | N |
| Multi-Family Redevelopment: | N | | |
| Township: | 7 | Section: | 21 |
| Range: | 36 |
Location |
| Address: | 716 UNIVERSITY ST WA 99362 | Mapsco: | |
| Neighborhood: | G-SFR | Map ID: | |
| Neighborhood CD: | 514011 |
Owner |
| Name: | OUTLAW ELAINE FOGG TRUST | Owner ID: | 61442 |
| Mailing Address: | 716 UNIVERSITY ST WALLA WALLA, WA 99362 | % Ownership: | 100.0000000000% |
| | | Exemptions: | |
Taxes and Assessment Details
Property Tax Information as of
02/21/2026
Click on "Statement Details" to expand or collapse a tax statement.
* Please enter a valid date ** Please enter a valid date *
Statement Details |
| | TOTAL: | $0.00 | $0.00 | $0.00 | $0.00 | $0.00 | $0.00 |
|
| | $0.00 | $0.00 | $0.00 | $0.00 | $0.00 | $0.00 |
Values
| (+) Improvement Homesite Value: | + | $0 | |
| (+) Improvement Non-Homesite Value: | + | $716,210 | |
| (+) Land Homesite Value: | + | $0 | |
| (+) Land Non-Homesite Value: | + | $52,200 | |
| (+) Curr Use (HS): | + | $0 | $0 |
| (+) Curr Use (NHS): | + | $0 | $0 |
| | | -------------------------- | |
| (=) Market Value: | = | $768,410 | |
| (–) Productivity Loss: | – | $0 | |
| | | -------------------------- | |
| (=) Subtotal: | = | $768,410 | |
| (+) Senior Appraised Value: | + | $0 | |
| (+) Non-Senior Appraised Value: | + | $768,410 | |
| | | -------------------------- | |
| (=) Total Appraised Value: | = | $768,410 | |
| (–) Senior Exemption Loss: | – | $0 | |
| (–) Exemption Loss: | – | $0 | |
| | | -------------------------- | |
| (=) Taxable Value: | = | $768,410 | |
Taxing Jurisdiction
| Owner: | OUTLAW ELAINE FOGG TRUST | | |
| % Ownership: | 100.0000000000% | | |
| Total Value: | $768,410 | | |
| Tax Area: | 1 - OL-140-F |
| CERFD | CURRENT EXPENSE REFUND 010 | 0.0000000000 | $768,410 | $768,410 | $0.00 | | |
| CURREXP | CURRENT EXPENSE 010 | 1.0175366760 | $768,410 | $768,410 | $781.89 | | |
| HUMNSERV | HUMAN SERVICES 119 | 0.0250000000 | $768,410 | $768,410 | $19.21 | | |
| SLDREL | SOLDIERS RELIEF 121 | 0.0155990005 | $768,410 | $768,410 | $11.99 | | |
| EMERGSER | EMS 147 | 0.3792580840 | $768,410 | $768,410 | $291.43 | | |
| EMSRFD | EMS REFUND 147 | 0.0000000000 | $768,410 | $768,410 | $0.00 | | |
| PORTRFD | PORT REFUND 640 | 0.0000000000 | $768,410 | $768,410 | $0.00 | | |
| PORTWWGEN | PORT OF WW 640 | 0.2460186015 | $768,410 | $768,410 | $189.04 | | |
| SD140BOND | SD #140 BOND 764 | 0.8342371393 | $768,410 | $768,410 | $641.04 | | |
| SD140GEN | SD #140 GENERAL 760 | 2.0646500647 | $768,410 | $768,410 | $1,586.50 | | |
| ST2 | STATE SCHOOL PART 2 600 | 0.8131451643 | $768,410 | $768,410 | $624.83 | | |
| STATESCHL | STATE SCHOOL 600 | 1.5158548041 | $768,410 | $768,410 | $1,164.80 | | |
| STREFUND | STATE REFUND LEVY 603 | 0.0000000000 | $768,410 | $768,410 | $0.00 | | |
| CWWBOND | C OF WW BOND 643 | 0.2760494372 | $768,410 | $768,410 | $212.12 | | |
| CWWGEN | CITY OF WW 631 | 1.6100204973 | $768,410 | $768,410 | $1,237.16 | | |
| CWWRFD | CITY OF WALLA WALLA REFUND 631 | 0.0000000000 | $768,410 | $768,410 | $0.00 | | |
| | Total Tax Rate: | 8.7973694689 | | | | | |
| | | | | Taxes w/Current Exemptions: | $6,760.01 | | |
| | | | | Taxes w/o Exemptions: | $6,760.01 | | |
Improvement / Building
| Improvement #1: | RESIDENTIAL | State Code: | 11 | 2579.0 sqft | Value: | $716,210 |
| Exterior Wall: | SIDING | Heating/Cooling: | WARM & COOLED AIR | | Number of Bathrooms: | 2 | Number of Bedrooms: | 4 | | Plumbing: | 10 | Roof Covering: | COMP SHINGLE |
|
| | Type | Description | Class CD | Sub Class CD | Year Built | Area |
| | MA | Main Area | 2 | 45 | 1906 | 2579.0 |
| | UPFL | Upper Floor (included in main area) | 2 | 45 | 1906 | 1255.0 |
| | SI1 | SITE IMPROVEMENT | 2 | 45 | 1906 | 2.5 |
| | BASE | BASEMENT | 2 | 45 | 1906 | 1160.0 |
| | BPF | BASEMENT -PARTITIONED FINISH | 2 | 45 | 1906 | 1052.0 |
| | S2F | Single 2S Fireplace | 2 | 45 | 1906 | 1.0 |
| | WOD | Wood Deck | 2 | 45 | 1906 | 151.0 |
| | RCD | WOOD DECK W/ROOF, CEILED | 2 | 45 | 1906 | 232.0 |
| | DTG | Detached Garage | 2 | 45 | 1906 | 342.0 |
Sketch
Property Image
Land
| 1 | RES 1 | Converted: Residential | 0.1653 | 7200.00 | 0.00 | 0.00 | 1.00 | $52,200 | $0 |
Roll Value History
| 2026 | N/A | N/A | N/A | N/A | N/A |
| 2025 | $691,670 | $79,200 | $0 | $770,870 | $770,870 |
| 2024 | $691,670 | $79,200 | $0 | $770,870 | $770,870 |
| 2023 | $716,210 | $52,200 | $0 | $768,410 | $768,410 |
| 2022 | $622,790 | $52,200 | $0 | $674,990 | $674,990 |
| 2021 | $461,330 | $52,200 | $0 | $513,530 | $513,530 |
| 2020 | $384,440 | $52,200 | $0 | $436,640 | $436,640 |
| 2019 | $384,440 | $52,200 | $0 | $436,640 | $436,640 |
| 2018 | $384,440 | $52,200 | $0 | $436,640 | $436,640 |
| 2017 | $335,690 | $32,400 | $0 | $368,090 | $368,090 |
| 2016 | $319,700 | $32,400 | $0 | $352,100 | $352,100 |
| 2015 | $290,640 | $32,400 | $0 | $323,040 | $323,040 |
| 2014 | $276,800 | $32,400 | $0 | $309,200 | $309,200 |
| 2013 | $276,800 | $32,400 | $0 | $309,200 | $309,200 |
| 2012 | $276,800 | $32,400 | $0 | $0 | $0 |
| 2011 | $276,800 | $32,400 | $0 | $0 | $0 |
| 2010 | $262,100 | $32,400 | $0 | $0 | $0 |
| 2009 | $294,800 | $32,400 | $0 | $0 | $0 |
| 2008 | $240,300 | $32,400 | $0 | $0 | $0 |
| 2007 | $240,300 | $32,400 | $0 | $0 | $0 |
Deed and Sales History
| 1 | 07/31/2017 | DPR | DEED OF PERSONAL REPRESENTATIVE | FOGG JOYCE E | OUTLAW ELAINE FOGG TRUST | | | $0.00 | 132909 | 2017-05922 |
| 2 | 02/10/1975 | WARRANTY D | WARRANTY DEED | | | | | $32,500.00 | 0 | 2305-42473 |
Payout Agreement
| No payout information available.. |