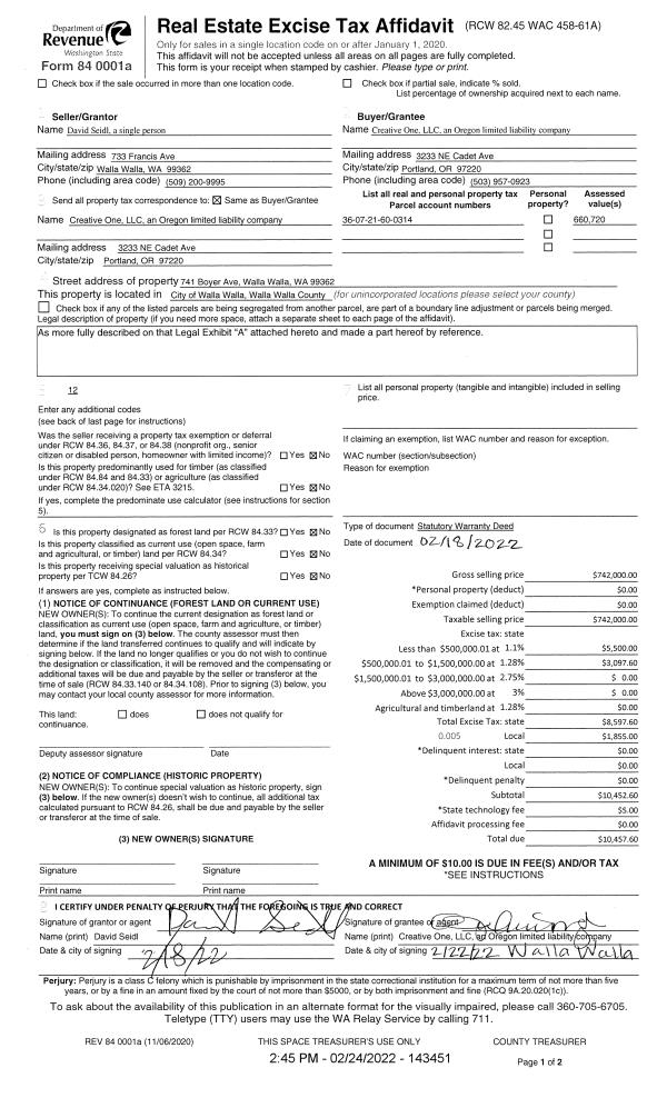
Property
Account |
| Property ID: | 8044 | Abbreviated Legal Description: | ISAACS 3RD SLY 120' OF LOT 14 BLK 3 |
| Parcel Number: | 360721600314 | Agent Code: | |
| Type: | Real | | |
| Tax Area: | 1 - OL-140-F | Land Use Code | 12 |
| Open Space: | N | DFL | N |
| Historic Property: | N | Remodel Property: | N |
| Multi-Family Redevelopment: | N | | |
| Township: | 7 | Section: | 21 |
| Range: | 36 |
Location |
| Address: | 741 BOYER AVE WA 99362 | Mapsco: | |
| Neighborhood: | G Superior Apartment | Map ID: | |
| Neighborhood CD: | 514221 |
Owner |
| Name: | CREATIVE ONE LLC | Owner ID: | 71154 |
| Mailing Address: | 741 BOYER AVE WALLA WALLA, WA 99362 | % Ownership: | 100.0000000000% |
| | | Exemptions: | |
Taxes and Assessment Details
Property Tax Information as of
02/21/2026
Click on "Statement Details" to expand or collapse a tax statement.
* Please enter a valid date ** Please enter a valid date *
Statement Details |
| | TOTAL: | $0.00 | $0.00 | $0.00 | $0.00 | $0.00 | $0.00 |
|
| | $0.00 | $0.00 | $0.00 | $0.00 | $0.00 | $0.00 |
Values
| (+) Improvement Homesite Value: | + | $0 | |
| (+) Improvement Non-Homesite Value: | + | $645,040 | |
| (+) Land Homesite Value: | + | $0 | |
| (+) Land Non-Homesite Value: | + | $74,320 | |
| (+) Curr Use (HS): | + | $0 | $0 |
| (+) Curr Use (NHS): | + | $0 | $0 |
| | | -------------------------- | |
| (=) Market Value: | = | $719,360 | |
| (–) Productivity Loss: | – | $0 | |
| | | -------------------------- | |
| (=) Subtotal: | = | $719,360 | |
| (+) Senior Appraised Value: | + | $0 | |
| (+) Non-Senior Appraised Value: | + | $719,360 | |
| | | -------------------------- | |
| (=) Total Appraised Value: | = | $719,360 | |
| (–) Senior Exemption Loss: | – | $0 | |
| (–) Exemption Loss: | – | $0 | |
| | | -------------------------- | |
| (=) Taxable Value: | = | $719,360 | |
Taxing Jurisdiction
| Owner: | CREATIVE ONE LLC | | |
| % Ownership: | 100.0000000000% | | |
| Total Value: | $719,360 | | |
| Tax Area: | 1 - OL-140-F |
| CERFD | CURRENT EXPENSE REFUND 010 | 0.0000000000 | $719,360 | $719,360 | $0.00 | | |
| CURREXP | CURRENT EXPENSE 010 | 1.0175366760 | $719,360 | $719,360 | $731.98 | | |
| HUMNSERV | HUMAN SERVICES 119 | 0.0250000000 | $719,360 | $719,360 | $17.98 | | |
| SLDREL | SOLDIERS RELIEF 121 | 0.0155990005 | $719,360 | $719,360 | $11.22 | | |
| EMERGSER | EMS 147 | 0.3792580840 | $719,360 | $719,360 | $272.82 | | |
| EMSRFD | EMS REFUND 147 | 0.0000000000 | $719,360 | $719,360 | $0.00 | | |
| PORTRFD | PORT REFUND 640 | 0.0000000000 | $719,360 | $719,360 | $0.00 | | |
| PORTWWGEN | PORT OF WW 640 | 0.2460186015 | $719,360 | $719,360 | $176.98 | | |
| SD140BOND | SD #140 BOND 764 | 0.8342371393 | $719,360 | $719,360 | $600.12 | | |
| SD140GEN | SD #140 GENERAL 760 | 2.0646500647 | $719,360 | $719,360 | $1,485.23 | | |
| ST2 | STATE SCHOOL PART 2 600 | 0.8131451643 | $719,360 | $719,360 | $584.94 | | |
| STATESCHL | STATE SCHOOL 600 | 1.5158548041 | $719,360 | $719,360 | $1,090.45 | | |
| STREFUND | STATE REFUND LEVY 603 | 0.0000000000 | $719,360 | $719,360 | $0.00 | | |
| CWWBOND | C OF WW BOND 643 | 0.2760494372 | $719,360 | $719,360 | $198.58 | | |
| CWWGEN | CITY OF WW 631 | 1.6100204973 | $719,360 | $719,360 | $1,158.18 | | |
| CWWRFD | CITY OF WALLA WALLA REFUND 631 | 0.0000000000 | $719,360 | $719,360 | $0.00 | | |
| | Total Tax Rate: | 8.7973694689 | | | | | |
| | | | | Taxes w/Current Exemptions: | $6,328.48 | | |
| | | | | Taxes w/o Exemptions: | $6,328.48 | | |
Improvement / Building
| Improvement #1: | RESIDENTIAL | State Code: | 12 | 4053.0 sqft | Value: | $645,040 |
| Exterior Wall: | SIDING | Heating/Cooling: | BASEBOARD HOT WATER | | Number of Bathrooms: | 5 | Number of Bedrooms: | 8 | | Plumbing: | 21 | Roof Covering: | COMP SHINGLE |
|
| | Type | Description | Class CD | Sub Class CD | Year Built | Area |
| | MA | Main Area | 2 | 55 | 1913 | 4053.0 |
| | UPFL | Upper Floor (included in main area) | 2 | 55 | 1913 | 1345.0 |
| | SI1 | SITE IMPROVEMENT | 2 | 55 | 1913 | 4.0 |
| | BASE | BASEMENT | 2 | 55 | 1913 | 2708.0 |
| | BPF | BASEMENT -PARTITIONED FINISH | 2 | 55 | 1913 | 2708.0 |
| | S2F | Single 2S Fireplace | 2 | 55 | 1913 | 2.0 |
| | OUT | OUTSIDE BASEMENT ENTRY | 2 | 55 | 1913 | 1.0 |
| | SMP | SWIMMING POOL | 2 | 55 | 1913 | 1.0 |
| | APP | APPLIANCE ALLOWANCE | 2 | 55 | 1913 | 3.0 |
| | WOD | Wood Deck | 2 | 55 | 1913 | 132.0 |
| | RCD | WOOD DECK W/ROOF, CEILED | 2 | 55 | 1913 | 530.0 |
| | DTG | Detached Garage | 2 | 55 | 1913 | 280.0 |
Sketch
Property Image
Land
| 1 | RES 1 | Converted: Residential | 0.3030 | 13200.00 | 0.00 | 0.00 | 1.00 | $74,320 | $0 |
Roll Value History
| 2026 | N/A | N/A | N/A | N/A | N/A |
| 2025 | $635,500 | $105,600 | $0 | $741,100 | $741,100 |
| 2024 | $635,500 | $105,600 | $0 | $741,100 | $741,100 |
| 2023 | $645,040 | $74,320 | $0 | $719,360 | $719,360 |
| 2022 | $645,040 | $74,320 | $0 | $719,360 | $719,360 |
| 2021 | $586,400 | $74,320 | $0 | $660,720 | $660,720 |
| 2020 | $533,090 | $74,320 | $0 | $607,410 | $607,410 |
| 2019 | $533,090 | $74,320 | $0 | $607,410 | $607,410 |
| 2018 | $533,090 | $74,320 | $0 | $607,410 | $607,410 |
| 2017 | $403,100 | $46,900 | $0 | $450,000 | $450,000 |
| 2016 | $403,100 | $46,900 | $0 | $450,000 | $450,000 |
| 2015 | $403,100 | $46,900 | $0 | $450,000 | $450,000 |
| 2014 | $403,100 | $46,900 | $0 | $450,000 | $450,000 |
| 2013 | $575,800 | $46,900 | $0 | $622,700 | $622,700 |
| 2012 | $575,800 | $46,900 | $0 | $0 | $0 |
| 2011 | $575,800 | $46,900 | $0 | $0 | $0 |
| 2010 | $575,800 | $46,900 | $0 | $0 | $0 |
| 2009 | $575,800 | $46,900 | $0 | $0 | $0 |
| 2008 | $202,200 | $46,900 | $0 | $0 | $0 |
| 2007 | $202,200 | $46,900 | $0 | $0 | $0 |
Deed and Sales History
| 1 | 02/24/2022 | SWD | STATUTORY WARRANTY DEED | SEIDL DAVID | CREATIVE ONE LLC | | | $742,000.00 | 143451 | 2022-01648 |
| 2 | 08/15/2001 | WARRANTY D | WARRANTY DEED | | | | | $223,500.00 | 97836 | 3180-108880 |
Payout Agreement
| No payout information available.. |