Property
Account |
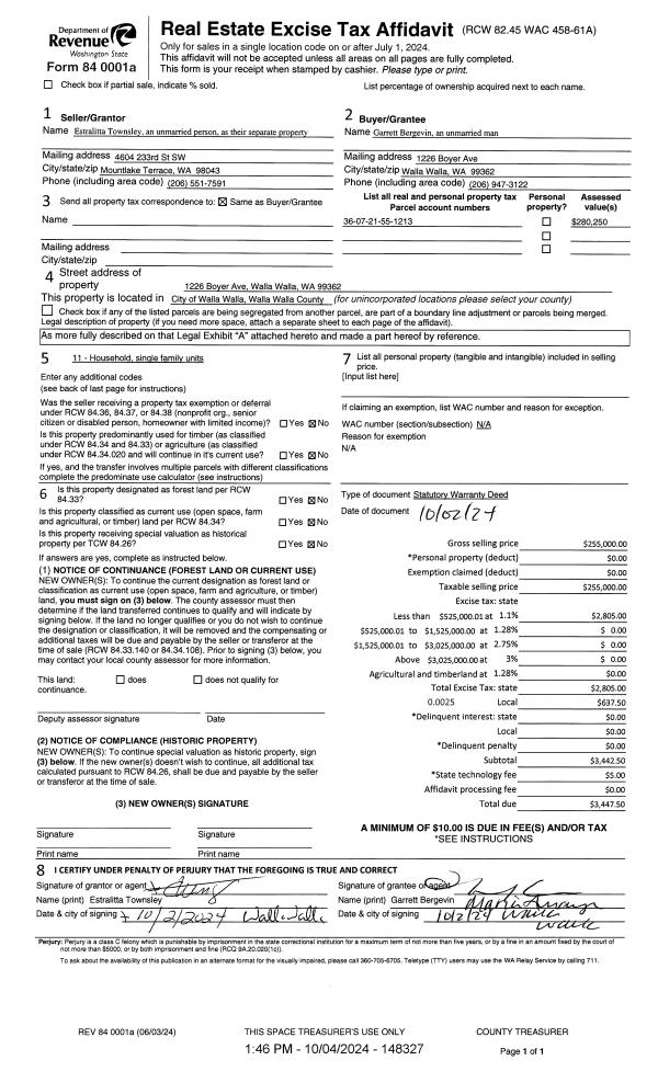
| Property ID: | 7967 | Abbreviated Legal Description: | ENNIS ANNEX TAX 3 LOT 2 BLK 12 |
| Parcel Number: | 360721551213 | Agent Code: | |
| Type: | Real | | |
| Tax Area: | 1 - OL-140-F | Land Use Code | 11 |
| Open Space: | N | DFL | N |
| Historic Property: | N | Remodel Property: | N |
| Multi-Family Redevelopment: | N | | |
| Township: | 7 | Section: | 21 |
| Range: | 36 |
Location |
| Address: | 1226 BOYER AVE WA 99362 | Mapsco: | |
| Neighborhood: | A-SFR | Map ID: | |
| Neighborhood CD: | 513011 |
Owner |
| Name: | TOWNSLEY ESTRALITTA | Owner ID: | 71059 |
| Mailing Address: | 4604 233RD ST SW MOUNTLAKE TERRACE, WA 98043 | % Ownership: | 100.0000000000% |
| | | Exemptions: | |
Taxes and Assessment Details
Property Tax Information as of
02/21/2026
Click on "Statement Details" to expand or collapse a tax statement.
* Please enter a valid date ** Please enter a valid date *
Statement Details |
| | TOTAL: | $0.00 | $0.00 | $0.00 | $0.00 | $0.00 | $0.00 |
|
| | $0.00 | $0.00 | $0.00 | $0.00 | $0.00 | $0.00 |
Values
| (+) Improvement Homesite Value: | + | $0 | |
| (+) Improvement Non-Homesite Value: | + | $219,410 | |
| (+) Land Homesite Value: | + | $0 | |
| (+) Land Non-Homesite Value: | + | $60,840 | |
| (+) Curr Use (HS): | + | $0 | $0 |
| (+) Curr Use (NHS): | + | $0 | $0 |
| | | -------------------------- | |
| (=) Market Value: | = | $280,250 | |
| (–) Productivity Loss: | – | $0 | |
| | | -------------------------- | |
| (=) Subtotal: | = | $280,250 | |
| (+) Senior Appraised Value: | + | $0 | |
| (+) Non-Senior Appraised Value: | + | $280,250 | |
| | | -------------------------- | |
| (=) Total Appraised Value: | = | $280,250 | |
| (–) Senior Exemption Loss: | – | $0 | |
| (–) Exemption Loss: | – | $0 | |
| | | -------------------------- | |
| (=) Taxable Value: | = | $280,250 | |
Taxing Jurisdiction
| Owner: | TOWNSLEY ESTRALITTA | | |
| % Ownership: | 100.0000000000% | | |
| Total Value: | $280,250 | | |
| Tax Area: | 1 - OL-140-F |
| CERFD | CURRENT EXPENSE REFUND 010 | 0.0000000000 | $280,250 | $280,250 | $0.00 | | |
| CURREXP | CURRENT EXPENSE 010 | 1.0175366760 | $280,250 | $280,250 | $285.16 | | |
| HUMNSERV | HUMAN SERVICES 119 | 0.0250000000 | $280,250 | $280,250 | $7.01 | | |
| SLDREL | SOLDIERS RELIEF 121 | 0.0155990005 | $280,250 | $280,250 | $4.37 | | |
| EMERGSER | EMS 147 | 0.3792580840 | $280,250 | $280,250 | $106.29 | | |
| EMSRFD | EMS REFUND 147 | 0.0000000000 | $280,250 | $280,250 | $0.00 | | |
| PORTRFD | PORT REFUND 640 | 0.0000000000 | $280,250 | $280,250 | $0.00 | | |
| PORTWWGEN | PORT OF WW 640 | 0.2460186015 | $280,250 | $280,250 | $68.95 | | |
| SD140BOND | SD #140 BOND 764 | 0.8342371393 | $280,250 | $280,250 | $233.79 | | |
| SD140GEN | SD #140 GENERAL 760 | 2.0646500647 | $280,250 | $280,250 | $578.62 | | |
| ST2 | STATE SCHOOL PART 2 600 | 0.8131451643 | $280,250 | $280,250 | $227.88 | | |
| STATESCHL | STATE SCHOOL 600 | 1.5158548041 | $280,250 | $280,250 | $424.82 | | |
| STREFUND | STATE REFUND LEVY 603 | 0.0000000000 | $280,250 | $280,250 | $0.00 | | |
| CWWBOND | C OF WW BOND 643 | 0.2760494372 | $280,250 | $280,250 | $77.36 | | |
| CWWGEN | CITY OF WW 631 | 1.6100204973 | $280,250 | $280,250 | $451.21 | | |
| CWWRFD | CITY OF WALLA WALLA REFUND 631 | 0.0000000000 | $280,250 | $280,250 | $0.00 | | |
| | Total Tax Rate: | 8.7973694689 | | | | | |
| | | | | Taxes w/Current Exemptions: | $2,465.46 | | |
| | | | | Taxes w/o Exemptions: | $2,465.46 | | |
Improvement / Building
| Improvement #1: | RESIDENTIAL | State Code: | 11 | 934.0 sqft | Value: | $219,410 |
| Exterior Wall: | SIDING | Heating/Cooling: | WARM & COOLED AIR | | Number of Bathrooms: | 1 | Number of Bedrooms: | 4 | | Plumbing: | 6 | Roof Covering: | COMP SHINGLE |
|
| | Type | Description | Class CD | Sub Class CD | Year Built | Area |
| | MA | Main Area | 1 | 30 | 1933 | 934.0 |
| | ATIC | ATTIC ROOM | 1 | 30 | 1933 | 100.0 |
| | SI1 | SITE IMPROVEMENT | 1 | 30 | 1933 | 1.5 |
| | BASE | BASEMENT | 1 | 30 | 1933 | 920.0 |
| | BMF | BASEMENT - MIN FINISH | 1 | 30 | 1933 | 286.0 |
| | DTG | Detached Garage | 1 | 30 | 1933 | 264.0 |
| | S1F | Single One Story Fireplace | 1 | 30 | 1933 | 1.0 |
| | OPS | OPEN PORCH W/STEPS | 1 | 30 | 1933 | 25.0 |
Sketch
Property Image
Land
| 1 | RES 1 | Converted: Residential | 0.2235 | 9734.00 | 0.00 | 0.00 | 1.00 | $60,840 | $0 |
Roll Value History
| 2026 | N/A | N/A | N/A | N/A | N/A |
| 2025 | $154,290 | $97,340 | $0 | $251,630 | $251,630 |
| 2024 | $192,860 | $97,340 | $0 | $290,200 | $290,200 |
| 2023 | $219,410 | $60,840 | $0 | $280,250 | $280,250 |
| 2022 | $190,790 | $60,840 | $0 | $251,630 | $251,630 |
| 2021 | $146,760 | $60,840 | $0 | $207,600 | $207,600 |
| 2020 | $104,830 | $60,840 | $0 | $165,670 | $165,670 |
| 2019 | $104,830 | $60,840 | $0 | $165,670 | $165,670 |
| 2018 | $95,300 | $60,840 | $0 | $156,140 | $156,140 |
| 2017 | $108,420 | $38,900 | $0 | $147,320 | $147,320 |
| 2016 | $103,260 | $38,900 | $0 | $142,160 | $142,160 |
| 2015 | $98,340 | $38,900 | $0 | $137,240 | $137,240 |
| 2014 | $89,400 | $38,900 | $0 | $128,300 | $128,300 |
| 2013 | $89,400 | $38,900 | $0 | $128,300 | $128,300 |
| 2012 | $89,400 | $38,900 | $0 | $0 | $0 |
| 2011 | $77,700 | $38,900 | $0 | $0 | $0 |
| 2010 | $72,100 | $38,900 | $0 | $0 | $0 |
| 2009 | $84,400 | $38,900 | $0 | $0 | $0 |
| 2008 | $84,400 | $38,900 | $0 | $0 | $0 |
| 2007 | $84,400 | $38,900 | $0 | $0 | $0 |
Deed and Sales History
| 1 | 10/04/2024 | SWD | STATUTORY WARRANTY DEED | TOWNSLEY ESTRALITTA | BERGEVIN GARRETT | | | $255,000.00 | 148327 | 2024-05802 |
| 2 | 01/27/2022 | DPR | DEED OF PERSONAL REPRESENTATIVE | MORRIS RUTHIE L | TOWNSLEY ESTRALITTA | | | $0.00 | 143342 | 2022-01022 |
| 3 | 12/07/1976 | WARRANTY D | WARRANTY DEED | | | | | $21,600.00 | 67131 | 3105-49146 |
Payout Agreement
| No payout information available.. |